Размещено на портале Архи.ру (www.archi.ru)

06.04.2012

Проницаемость фасадов

Объект:
Музей Синьцзинь-Чжи
Адрес:
Китай, None,
Общественный центр для пожилых
Адрес:
Япония, None, Рикудзентаката.

Кенго Кума возвел музей в центральном Китае и спроектировал общественный центр для пострадавшего от землетрясения и цунами японского города Рикудзентаката.

Музей Синьцзинь-Чжи © Kengo Kuma and Associates
Музей Синьцзинь-Чжи © Kengo Kuma and Associates
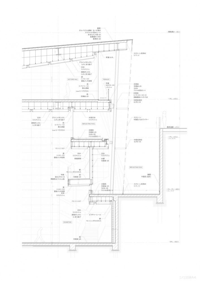
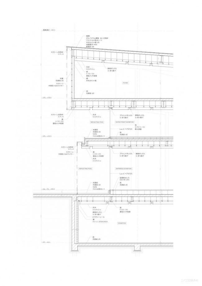
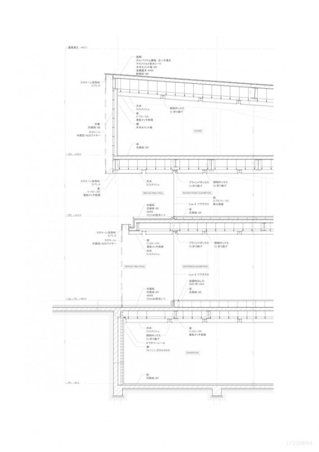
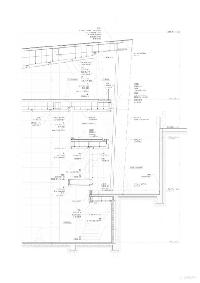
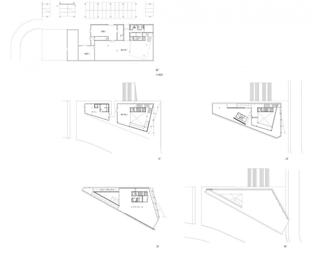
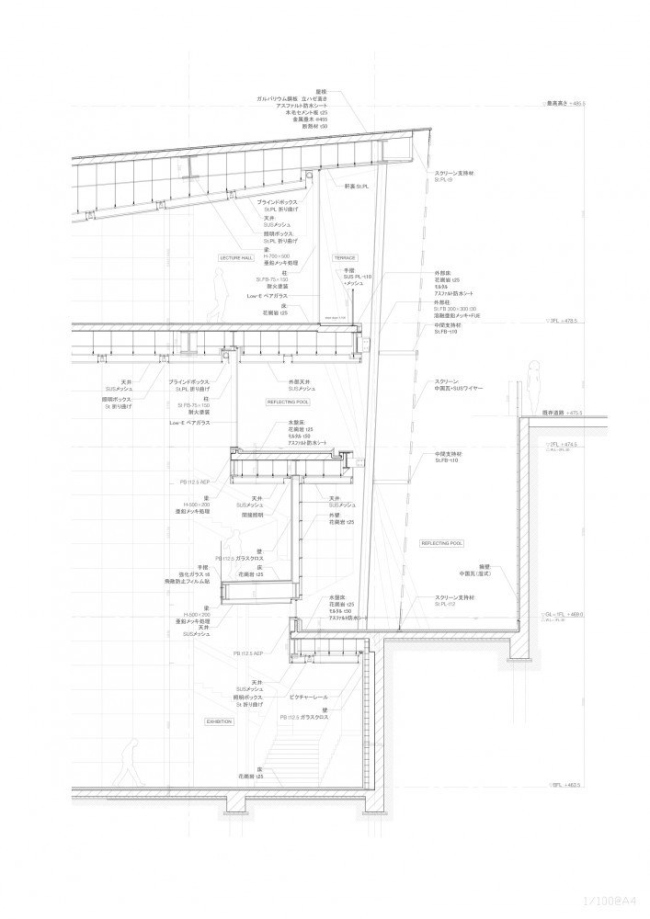
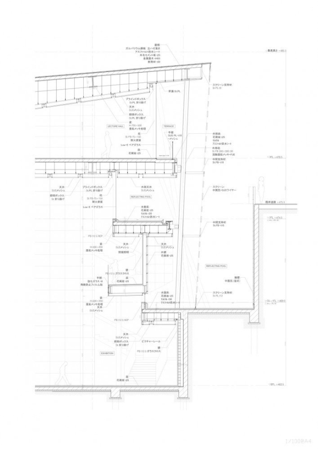
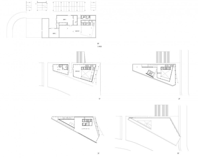
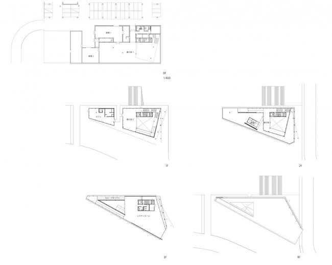
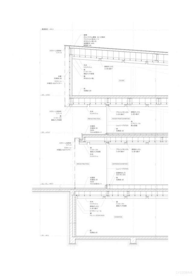
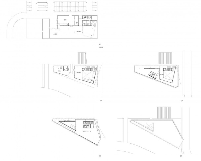
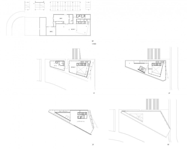
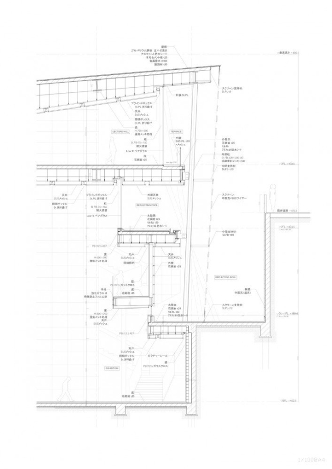
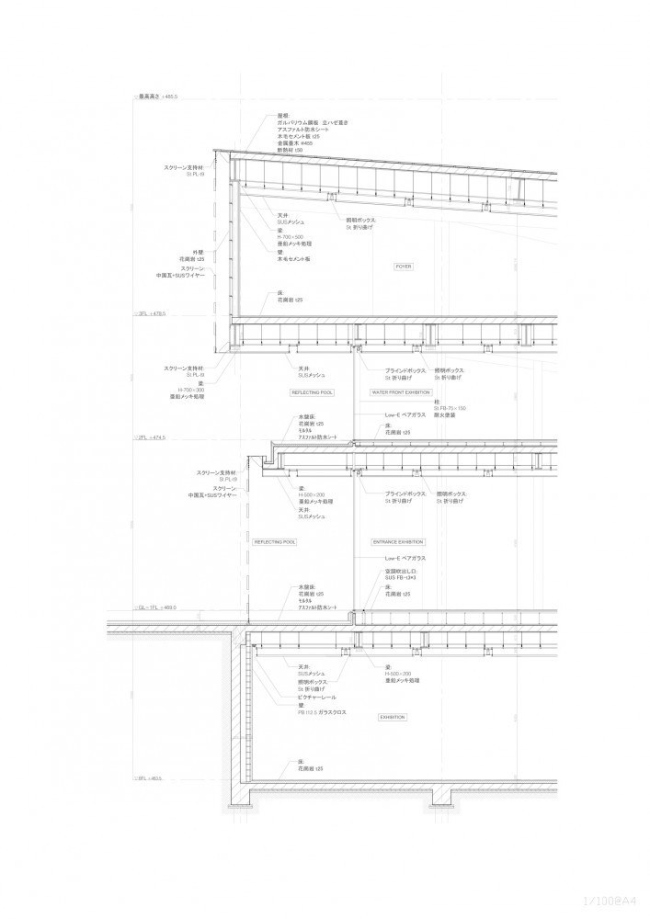
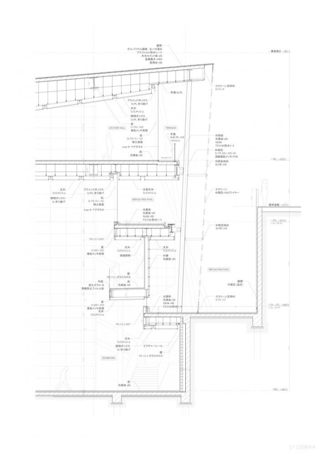
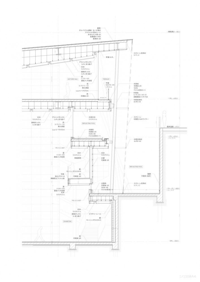
Музей Синьцзинь-Чжи расположен в уезде Синьцзинь, близ города Чэнду. Он служит своего рода преддверием почитаемого даосского святилища; экспозиция составлена из различных произведений религиозного искусства.
Музей Синьцзинь-Чжи © Kengo Kuma and Associates
Музей Синьцзинь-Чжи © Kengo Kuma and Associates


Идущая спиралью по периметру всех трех этажей постройки галерея выводит посетителей на крышу, откуда открывается вид на живописный ландшафт. Такое решение подчеркивает энергичность очертаний постройки, ее заостренные углы и консольные выносы. Фасад закрыт снаружи «занавесом» из подвешенной на металлических лесках черепицы, изготовленной из местных материалов по традиционному методу. Такая проницаемость позволила связать здание и окружающую среду, при этом защитив интерьер от солнечных лучей.
Музей Синьцзинь-Чжи © Kengo Kuma and Associates
Музей Синьцзинь-Чжи © Kengo Kuma and Associates
Общественный центр для пожилых © Kengo Kuma and Associates
Общественный центр для пожилых © Kengo Kuma and Associates


Проект общественного центра для пожилых людей в городе Рикудзентаката — результат международного сотрудничества. Собственно архитектурный проект выполнен бюро Кумы и его же лабораторией в Токийском университете, но его заказчиками и «девелоперами» выступили итальянская католическая община Святого Эгидия и благотворительная организация Italians for Tohoku, созданная для помощи пострадавшим от катастрофы марта 2011. Инициативу поддерживает посольство Италии в Японии.
Общественный центр для пожилых © Kengo Kuma and Associates
Общественный центр для пожилых © Kengo Kuma and Associates


Сейчас идет сбор средств на строительство деревянной ажурной постройки, форма которой вдохновлена листом лотоса. Кенго Кума подобным символом пожелал напомнить о важности гармонии с окружающей средой — особенно в сфере архитектуры и строительства. Также это попытка примирить жителей Рикудзентакаты с природой, причинившей им совсем недавно немало бед: катастрофическое цунами почти полностью смыло этот город с лица земли. Этот план можно сравнить с инициативой Шигеру Бана, построившего в разрушенном землетрясением итальянском городе Аквила концертный зал в качестве собственного благотворительного проекта.

Н. Ф.
Общественный центр для пожилых © Kengo Kuma and Associates
Общественный центр для пожилых © Kengo Kuma and Associates
Общественный центр для пожилых © Kengo Kuma and Associates
Общественный центр для пожилых © Kengo Kuma and Associates
Музей Синьцзинь-Чжи © Kengo Kuma and Associates
Музей Синьцзинь-Чжи © Kengo Kuma and Associates
Музей Синьцзинь-Чжи © Kengo Kuma and Associates
Музей Синьцзинь-Чжи © Kengo Kuma and Associates
Музей Синьцзинь-Чжи © Kengo Kuma and Associates
Музей Синьцзинь-Чжи © Kengo Kuma and Associates
Музей Синьцзинь-Чжи © Kengo Kuma and Associates
Музей Синьцзинь-Чжи © Kengo Kuma and Associates
Музей Синьцзинь-Чжи © Kengo Kuma and Associates
Музей Синьцзинь-Чжи © Kengo Kuma and Associates
Музей Синьцзинь-Чжи © Kengo Kuma and Associates
Музей Синьцзинь-Чжи © Kengo Kuma and Associates
Музей Синьцзинь-Чжи © Kengo Kuma and Associates
Музей Синьцзинь-Чжи © Kengo Kuma and Associates
Музей Синьцзинь-Чжи © Kengo Kuma and Associates
Музей Синьцзинь-Чжи © Kengo Kuma and Associates
Музей Синьцзинь-Чжи © Kengo Kuma and Associates
Музей Синьцзинь-Чжи © Kengo Kuma and Associates
Музей Синьцзинь-Чжи © Kengo Kuma and Associates
Музей Синьцзинь-Чжи © Kengo Kuma and Associates
Музей Синьцзинь-Чжи © Kengo Kuma and Associates
Музей Синьцзинь-Чжи © Kengo Kuma and Associates
Музей Синьцзинь-Чжи © Kengo Kuma and Associates
Музей Синьцзинь-Чжи © Kengo Kuma and Associates
Музей Синьцзинь-Чжи © Kengo Kuma and Associates
Музей Синьцзинь-Чжи © Kengo Kuma and Associates
Музей Синьцзинь-Чжи © Kengo Kuma and Associates
Музей Синьцзинь-Чжи © Kengo Kuma and Associates
Музей Синьцзинь-Чжи © Kengo Kuma and Associates
Музей Синьцзинь-Чжи © Kengo Kuma and Associates
Музей Синьцзинь-Чжи © Kengo Kuma and Associates
Музей Синьцзинь-Чжи © Kengo Kuma and Associates
Музей Синьцзинь-Чжи © Kengo Kuma and Associates
Музей Синьцзинь-Чжи © Kengo Kuma and Associates
Музей Синьцзинь-Чжи © Kengo Kuma and Associates
Музей Синьцзинь-Чжи © Kengo Kuma and Associates
Музей Синьцзинь-Чжи © Kengo Kuma and Associates
Музей Синьцзинь-Чжи © Kengo Kuma and Associates
Музей Синьцзинь-Чжи © Kengo Kuma and Associates
Музей Синьцзинь-Чжи © Kengo Kuma and Associates
Музей Синьцзинь-Чжи © Kengo Kuma and Associates
Музей Синьцзинь-Чжи © Kengo Kuma and Associates