Размещено на портале Архи.ру (www.archi.ru)

05.04.2012

Многочисленные точки зрения

Объект:
Нидерландский институт кино EYE
Адрес:
Нидерланды, None, Амстердам.
Мастерская:
Delugan Meissl

В Амстердаме открылось новое здание киномузея: Нидерландский институт кино EYE построен по проекту австрийского бюро «Делуган Майссль».

Нидерландский институт кино EYE © Iwan Baan
Нидерландский институт кино EYE © Iwan Baan
Сооружение, несколько напоминающее музей Porsche тех же архитекторов, расположено в бывшей промзоне Оверхук. Сейчас идет ее превращение в современный район смешанной застройки на берегу реки Эй.
Нидерландский институт кино EYE © Rene den Engelsman
Нидерландский институт кино EYE © Rene den Engelsman


Музей построен у самой воды, и с его открытой террасы и из вестибюля с панорамным остеклением открываются эффектные виды. Белые фасады — отсылка к белому экрану кинотеатра, а сложная форма — аллюзия на «многочисленные точки зрения», определяющие для искусства кино.
Нидерландский институт кино EYE © Rene den Engelsman
Нидерландский институт кино EYE © Rene den Engelsman


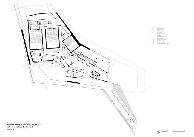
На первом этаже постройки, доступном всем желающим бесплатно, находятся точки доступа к оцифрованному архиву EYE, игровая площадка для всех возрастов, музейный магазин, ресторан и кафе. Выше — 4 зала в общей сложности на 640 зрителей и 1200 м2 выставочных площадей.
Нидерландский институт кино EYE © Rene den Engelsman
Нидерландский институт кино EYE © Rene den Engelsman


EYE был основан в 2010 путем слияния нескольких киноучреждений, и музей был лишь одним из них. Поэтому музейной функцией его назначение не исчерпывается: в новом здании есть студии и лаборатория, а рядом планируется построить еще один корпус для реставрационной и исследовательской работы. Также там откроют кинобиблиотеку.
Нидерландский институт кино EYE © Iwan Baan
Нидерландский институт кино EYE © Iwan Baan




Нидерландский институт кино — первое учреждение культуры, перебравшееся на другой берег Эй, в Оверхук из исторического центра Амстердама. Планируется, что за ним последуют и другие. Обе части города связывает круглосуточно курсирующий паром, что особенно удобно для любителей кино: EYE открыт с 10 утра до поздней ночи.

Н. Ф.
Нидерландский институт кино EYE © Iwan Baan
Нидерландский институт кино EYE © Iwan Baan
Нидерландский институт кино EYE © Iwan Baan
Нидерландский институт кино EYE © Iwan Baan
Нидерландский институт кино EYE © Iwan Baan
Нидерландский институт кино EYE © Iwan Baan
Нидерландский институт кино EYE © Iwan Baan
Нидерландский институт кино EYE © Iwan Baan
Нидерландский институт кино EYE © Delugan Meissl Associated Architects
Нидерландский институт кино EYE © Delugan Meissl Associated Architects
Нидерландский институт кино EYE © Delugan Meissl Associated Architects
Нидерландский институт кино EYE © Delugan Meissl Associated Architects
Нидерландский институт кино EYE © Delugan Meissl Associated Architects
Нидерландский институт кино EYE © Delugan Meissl Associated Architects
Нидерландский институт кино EYE © Delugan Meissl Associated Architects
Нидерландский институт кино EYE © Delugan Meissl Associated Architects
Нидерландский институт кино EYE © Delugan Meissl Associated Architects
Нидерландский институт кино EYE © Delugan Meissl Associated Architects
Нидерландский институт кино EYE © Delugan Meissl Associated Architects
Нидерландский институт кино EYE © Delugan Meissl Associated Architects
Нидерландский институт кино EYE © Delugan Meissl Associated Architects
Нидерландский институт кино EYE © Delugan Meissl Associated Architects
Нидерландский институт кино EYE © Delugan Meissl Associated Architects
Нидерландский институт кино EYE © Delugan Meissl Associated Architects