Размещено на портале Архи.ру (www.archi.ru)

05.04.2012

Спираль демократии

Объект:
Мэрия Ньювегейна
Адрес:
Нидерланды, None, Ньювегейн.
Мастерская:
3XN

В голландском городе Ньювегейне архитектурное бюро 3XN закончило строительство здания местной администрации, в состав которого также включен общественно-культурный центр.

Мэрия Ньювегейна © 3XN Architects
Мэрия Ньювегейна © 3XN Architects
В административном смысле Ньювегейн – город очень молодой. Расположенный в 5 км от Утрехта, он лишь в 1970-х перестал считаться его пригородом и начал развиваться самостоятельно. За прошедшие 40 лет его население выросло почти в 8 раз, и у города возникла настоятельная потребность в неком общественном центре, который бы не только стал символом динамично растущего Ньювегейна, но и смог бы служить своеобразным социальным магнитом, местом притяжения всех его обитателей.
Мэрия Ньювегейна © 3XN Architects
Мэрия Ньювегейна © 3XN Architects

Очень кстати оказалась и необходимость разместить в более комфортных условиях чиновников местной мэрии, а стремление сделать процесс управления городом максимально демократичным и понятным для жителей Ньювегейна подсказало идею объединить под одной крышей административные и социально-культурные функции. В итоге в состав комплекса были включены и городская библиотека, и офисные помещения, и выставочный зал, и пространство для культурных акций, и даже кафе с рестораном.
Мэрия Ньювегейна © 3XN Architects
Мэрия Ньювегейна © 3XN Architects

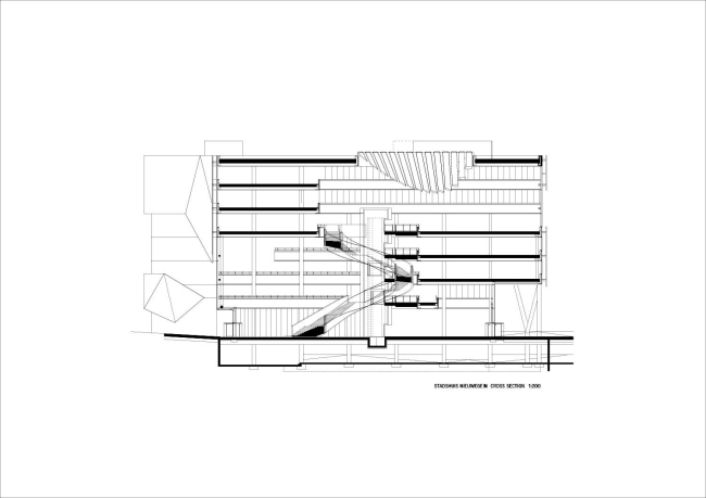
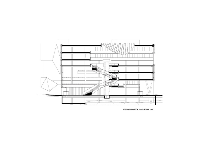
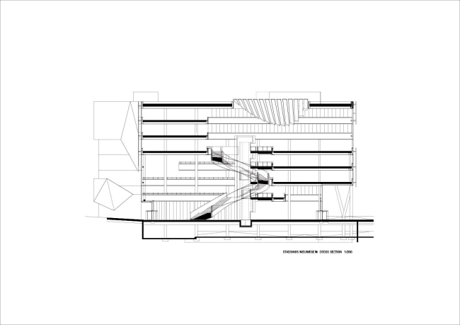
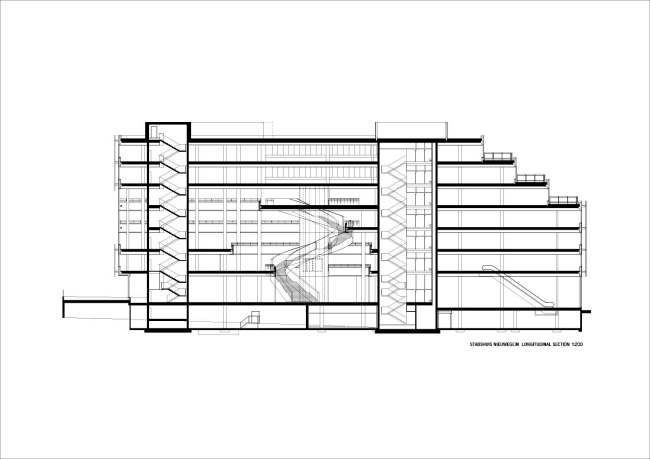
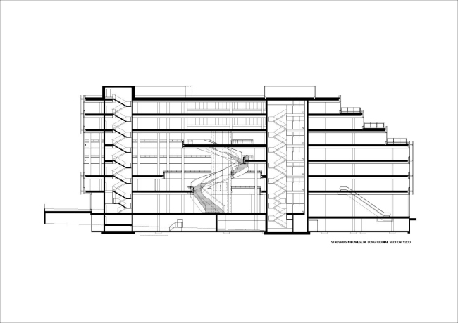
Здание, построенное на главной площади города, имеет пять этажей, хотя на первый взгляд его высота не очевидна. Этому способствуют и многочисленные консоли, выполненные на разных уровнях, и необычная фасадная оболочка, придуманная 3XN. Довольно стандартный по форме параллелепипед обернут в широкую ленту структурного остекления, на которое методом шелкографии нанесен геометрический рисунок.
Мэрия Ньювегейна © 3XN Architects
Мэрия Ньювегейна © 3XN Architects

В слоях этой ленты архитекторы делают разрывы, так что если бы не острые углы, здание можно было бы сравнить с частично очищенным апельсином. Плюс архитекторы стыкуют между собой разные по степени прозрачности стеклянные панели, чередуя их длинными клиньями, благодаря чему создается ощущение многочисленных заломов и сгибов, визуально усложняющих геометрию всего здания.
Мэрия Ньювегейна © 3XN Architects
Мэрия Ньювегейна © 3XN Architects

Ключевым элементом внутренней планировки комплекса 3XN сделали многосветный атриум, главным украшением которого служат белоснежная спираль лестницы и гигантский фонарь верхнего света. Не секрет, что подобное решение общественных комплексов – излюбленный прием датского бюро, отточенный им до совершенства на десятках объектах в разных странах Европы. Вместе с тем нельзя не признать, что в случае с администрацией Ньювегейна он пришелся как нельзя кстати: обращенные в пространство атриума залы заседаний мэрии и кабинеты ее чиновников действительно делают процесс управления городом предельно наглядным и открытым.

А.М.
Мэрия Ньювегейна © 3XN Architects
Мэрия Ньювегейна © 3XN Architects
Мэрия Ньювегейна © 3XN Architects
Мэрия Ньювегейна © 3XN Architects
Мэрия Ньювегейна © 3XN Architects
Мэрия Ньювегейна © 3XN Architects
Мэрия Ньювегейна © 3XN Architects
Мэрия Ньювегейна © 3XN Architects
Мэрия Ньювегейна © 3XN Architects
Мэрия Ньювегейна © 3XN Architects
Мэрия Ньювегейна © 3XN Architects
Мэрия Ньювегейна © 3XN Architects
Мэрия Ньювегейна © 3XN Architects
Мэрия Ньювегейна © 3XN Architects
Мэрия Ньювегейна © 3XN Architects
Мэрия Ньювегейна © 3XN Architects
Мэрия Ньювегейна © 3XN Architects
Мэрия Ньювегейна © 3XN Architects
Мэрия Ньювегейна © 3XN Architects
Мэрия Ньювегейна © 3XN Architects
Мэрия Ньювегейна © 3XN Architects
Мэрия Ньювегейна © 3XN Architects
Мэрия Ньювегейна © 3XN Architects
Мэрия Ньювегейна © 3XN Architects
Мэрия Ньювегейна © 3XN Architects
Мэрия Ньювегейна © 3XN Architects
Мэрия Ньювегейна © 3XN Architects
Мэрия Ньювегейна © 3XN Architects