Размещено на портале Архи.ру (www.archi.ru)

28.03.2012

В барочной оправе

Объект:
Жилой комплекс Baroque Court Apartments
Адрес:
Словения, None, Любляна.
Мастерская:
Ofis

В историческом центре Любляны архитектурное бюро OFIS arhitekti закончило реализацию жилого комплекса Baroque Court Apartments. «Барочный дворик» совсем не случайно получил именно такое название: новые квартиры устроены в объединенных внутренним двором трех домах 17-18 веков.

Жилой комплекс “Baroque Court Apartments”. Фото предоставлено OFIS arhitekti. Фотографы Tomaz Gregoric, Jan Celeda
Жилой комплекс “Baroque Court Apartments”. Фото предоставлено OFIS arhitekti. Фотографы Tomaz Gregoric, Jan Celeda
Новые апартаменты расположены в самом центре словенской столицы – отсюда рукой подать и до городской ратуши, и до фонтана Робба, и до трех знаменитых расходящихся веером мостов над Любляницей, сооруженных по проекту Йоже Плечника.
Жилой комплекс “Baroque Court Apartments”. Фото предоставлено OFIS arhitekti. Фотографы Tomaz Gregoric, Jan Celeda
Жилой комплекс “Baroque Court Apartments”. Фото предоставлено OFIS arhitekti. Фотографы Tomaz Gregoric, Jan Celeda

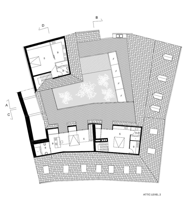
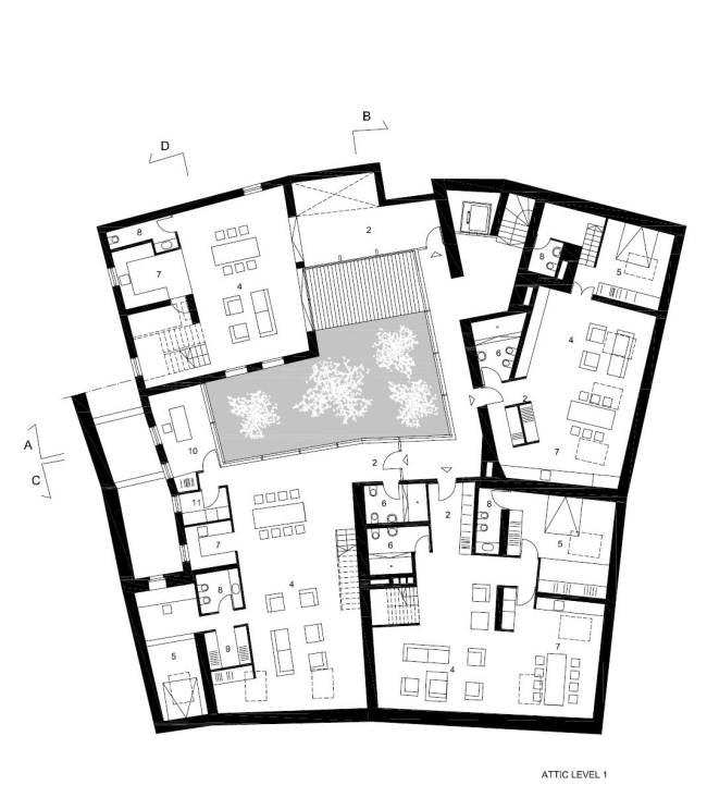
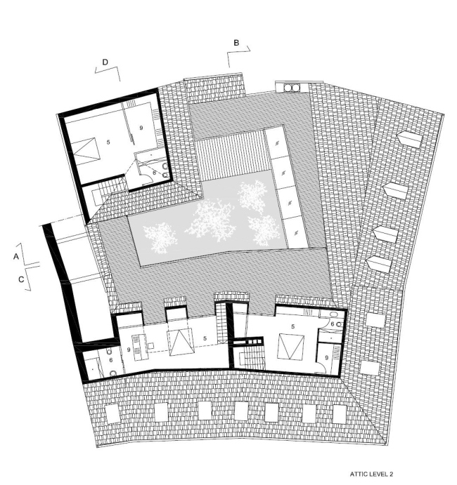
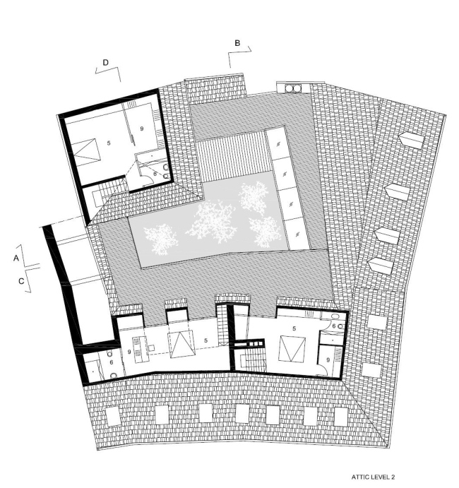
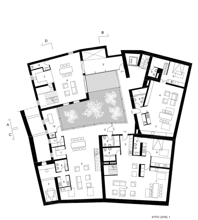
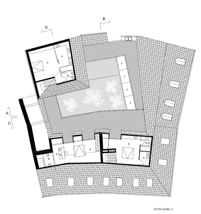
В качестве участка застройки был выделен внутренний дворик сложной многоугольной формы, образованный тремя барочными домами. Все они принадлежат издательству, на первом этаже одного из них находится книжный магазин, выше – офисы, сам же двор был частично перекрыт и использовался сугубо утилитарно – здесь размещались системы кондиционирования всех трех зданий, которые, в соответствии с охранным законодательством Словении, нельзя размещать на уличных фасадах старинных сооружений. Именно поэтому перед OFIS arhitekti было поставлено сразу две задачи: во-первых, придумать, как разместить сплит-системы более компактно (в итоге, от искусственного кондиционирования отказались вовсе), во-вторых, соединить между собой сами здания, спроектировав на частично «наращенных» площадях 12 квартир.
Жилой комплекс “Baroque Court Apartments”. Фото предоставлено OFIS arhitekti. Фотографы Tomaz Gregoric, Jan Celeda
Жилой комплекс “Baroque Court Apartments”. Фото предоставлено OFIS arhitekti. Фотографы Tomaz Gregoric, Jan Celeda

Никак не затрагивая главные фасады, обращенные к улицам, архитекторы могли частично перестроить дворовые фасады и деликатно использовали эту возможность. Фактически двор изнутри по всей своей высоте приобретает новый «слой» – это коридоры-галереи, связывающие между собой три здания.
Жилой комплекс “Baroque Court Apartments”. Фото предоставлено OFIS arhitekti. Фотографы Tomaz Gregoric, Jan Celeda
Жилой комплекс “Baroque Court Apartments”. Фото предоставлено OFIS arhitekti. Фотографы Tomaz Gregoric, Jan Celeda

Их внешние стены архитекторы выполняют полностью из стекла – такое решение позволяет наполнить апартаменты достаточным количеством дневного света и одновременно сделать частью двора отдельные конструкции и элементы декора барочной архитектуры. Особенно эффектно раскрытые в ходе реконструкции арки выглядят в темное время суток, когда подсвечиваются с помощью светодиодов. И именно поэтому пространство самого двора архитекторы решили как пространство, доступное лишь жильцам: здесь разбит небольшой уютный сад. Хотя площадь последнего совсем невелика, стеклянные стены визуально увеличивают это пространство, наполняя его отражениями расположенных рядом зданий и облаков.
Жилой комплекс “Baroque Court Apartments”. Фото предоставлено OFIS arhitekti. Фотографы Tomaz Gregoric, Jan Celeda
Жилой комплекс “Baroque Court Apartments”. Фото предоставлено OFIS arhitekti. Фотографы Tomaz Gregoric, Jan Celeda


Кроме того, почти зеркальные дворовые фасады отражают солнечный свет внутрь здания. Естественная вентиляция достигается благодаря сквозному проветриванию всех квартир, а тройное остекление всех новых окон обеспечивает термоизоляцию. Жилой комплекс подключен к центральному отоплению.
Жилой комплекс “Baroque Court Apartments”. Фото предоставлено OFIS arhitekti. Фотографы Tomaz Gregoric, Jan Celeda
Жилой комплекс “Baroque Court Apartments”. Фото предоставлено OFIS arhitekti. Фотографы Tomaz Gregoric, Jan Celeda


В отделке интерьеров квартир доминируют белый цвет и элементы из натурального дерева. Верхняя терраса, пол которой также обшит деревянной доской, защищена высокими стеклянными бортиками и служит смотровой площадкой для обитателей верхнего, мансардного этажа.


А. М.
Жилой комплекс “Baroque Court Apartments”. Фото предоставлено OFIS arhitekti. Фотографы Tomaz Gregoric, Jan Celeda
Жилой комплекс “Baroque Court Apartments”. Фото предоставлено OFIS arhitekti. Фотографы Tomaz Gregoric, Jan Celeda
Жилой комплекс “Baroque Court Apartments”. Фото предоставлено OFIS arhitekti. Фотографы Tomaz Gregoric, Jan Celeda
Жилой комплекс “Baroque Court Apartments”. Фото предоставлено OFIS arhitekti. Фотографы Tomaz Gregoric, Jan Celeda
Жилой комплекс “Baroque Court Apartments”. Фото предоставлено OFIS arhitekti. Фотографы Tomaz Gregoric, Jan Celeda
Жилой комплекс “Baroque Court Apartments”. Фото предоставлено OFIS arhitekti. Фотографы Tomaz Gregoric, Jan Celeda
Жилой комплекс “Baroque Court Apartments”. Фото предоставлено OFIS arhitekti. Фотографы Tomaz Gregoric, Jan Celeda
Жилой комплекс “Baroque Court Apartments”. Фото предоставлено OFIS arhitekti. Фотографы Tomaz Gregoric, Jan Celeda
Жилой комплекс “Baroque Court Apartments”. Фото предоставлено OFIS arhitekti. Фотографы Tomaz Gregoric, Jan Celeda
Жилой комплекс “Baroque Court Apartments”. Фото предоставлено OFIS arhitekti. Фотографы Tomaz Gregoric, Jan Celeda
Жилой комплекс “Baroque Court Apartments”. Фото предоставлено OFIS arhitekti. Фотографы Tomaz Gregoric, Jan Celeda
Жилой комплекс “Baroque Court Apartments”. Фото предоставлено OFIS arhitekti. Фотографы Tomaz Gregoric, Jan Celeda
Жилой комплекс “Baroque Court Apartments”. Фото предоставлено OFIS arhitekti. Фотографы Tomaz Gregoric, Jan Celeda
Жилой комплекс “Baroque Court Apartments”. Фото предоставлено OFIS arhitekti. Фотографы Tomaz Gregoric, Jan Celeda
Жилой комплекс “Baroque Court Apartments”. Фото предоставлено OFIS arhitekti. Фотографы Tomaz Gregoric, Jan Celeda
Жилой комплекс “Baroque Court Apartments”. Фото предоставлено OFIS arhitekti. Фотографы Tomaz Gregoric, Jan Celeda
Жилой комплекс “Baroque Court Apartments”. Фото предоставлено OFIS arhitekti. Фотографы Tomaz Gregoric, Jan Celeda
Жилой комплекс “Baroque Court Apartments”. Фото предоставлено OFIS arhitekti. Фотографы Tomaz Gregoric, Jan Celeda
Жилой комплекс “Baroque Court Apartments”. Фото предоставлено OFIS arhitekti. Фотографы Tomaz Gregoric, Jan Celeda
Жилой комплекс “Baroque Court Apartments”. Фото предоставлено OFIS arhitekti. Фотографы Tomaz Gregoric, Jan Celeda
Жилой комплекс “Baroque Court Apartments”. Фото предоставлено OFIS arhitekti. Фотографы Tomaz Gregoric, Jan Celeda
Жилой комплекс “Baroque Court Apartments”. Фото предоставлено OFIS arhitekti. Фотографы Tomaz Gregoric, Jan Celeda
Жилой комплекс “Baroque Court Apartments”. Фото предоставлено OFIS arhitekti. Фотографы Tomaz Gregoric, Jan Celeda
Жилой комплекс “Baroque Court Apartments”. Фото предоставлено OFIS arhitekti. Фотографы Tomaz Gregoric, Jan Celeda
Жилой комплекс “Baroque Court Apartments”. Фото предоставлено OFIS arhitekti. Фотографы Tomaz Gregoric, Jan Celeda
Жилой комплекс “Baroque Court Apartments”. Фото предоставлено OFIS arhitekti. Фотографы Tomaz Gregoric, Jan Celeda
Жилой комплекс “Baroque Court Apartments”. Фото предоставлено OFIS arhitekti. Фотографы Tomaz Gregoric, Jan Celeda
Жилой комплекс “Baroque Court Apartments”. Фото предоставлено OFIS arhitekti. Фотографы Tomaz Gregoric, Jan Celeda
Жилой комплекс “Baroque Court Apartments”. Фото предоставлено OFIS arhitekti. Фотографы Tomaz Gregoric, Jan Celeda
Жилой комплекс “Baroque Court Apartments”. Фото предоставлено OFIS arhitekti. Фотографы Tomaz Gregoric, Jan Celeda
Жилой комплекс “Baroque Court Apartments”. Фото предоставлено OFIS arhitekti. Фотографы Tomaz Gregoric, Jan Celeda
Жилой комплекс “Baroque Court Apartments”. Фото предоставлено OFIS arhitekti. Фотографы Tomaz Gregoric, Jan Celeda
Жилой комплекс “Baroque Court Apartments”. Фото предоставлено OFIS arhitekti. Фотографы Tomaz Gregoric, Jan Celeda
Жилой комплекс “Baroque Court Apartments”. Фото предоставлено OFIS arhitekti. Фотографы Tomaz Gregoric, Jan Celeda
Жилой комплекс “Baroque Court Apartments”. Фото предоставлено OFIS arhitekti. Фотографы Tomaz Gregoric, Jan Celeda
Жилой комплекс “Baroque Court Apartments”. Фото предоставлено OFIS arhitekti. Фотографы Tomaz Gregoric, Jan Celeda
Жилой комплекс “Baroque Court Apartments”. Фото предоставлено OFIS arhitekti. Фотографы Tomaz Gregoric, Jan Celeda
Жилой комплекс “Baroque Court Apartments”. Фото предоставлено OFIS arhitekti. Фотографы Tomaz Gregoric, Jan Celeda
Жилой комплекс “Baroque Court Apartments”. Фото предоставлено OFIS arhitekti. Фотографы Tomaz Gregoric, Jan Celeda
Жилой комплекс “Baroque Court Apartments”. Фото предоставлено OFIS arhitekti. Фотографы Tomaz Gregoric, Jan Celeda
Жилой комплекс “Baroque Court Apartments”. Фото предоставлено OFIS arhitekti. Фотографы Tomaz Gregoric, Jan Celeda
Жилой комплекс “Baroque Court Apartments”. Фото предоставлено OFIS arhitekti. Фотографы Tomaz Gregoric, Jan Celeda
Жилой комплекс “Baroque Court Apartments”. Фото предоставлено OFIS arhitekti. Фотографы Tomaz Gregoric, Jan Celeda
Жилой комплекс “Baroque Court Apartments”. Фото предоставлено OFIS arhitekti. Фотографы Tomaz Gregoric, Jan Celeda
Жилой комплекс “Baroque Court Apartments”. Фото предоставлено OFIS arhitekti. Фотографы Tomaz Gregoric, Jan Celeda
Жилой комплекс “Baroque Court Apartments”. Фото предоставлено OFIS arhitekti. Фотографы Tomaz Gregoric, Jan Celeda
Жилой комплекс “Baroque Court Apartments”. Фото предоставлено OFIS arhitekti. Фотографы Tomaz Gregoric, Jan Celeda
Жилой комплекс “Baroque Court Apartments”. Фото предоставлено OFIS arhitekti. Фотографы Tomaz Gregoric, Jan Celeda
Жилой комплекс “Baroque Court Apartments”. Фото предоставлено OFIS arhitekti. Фотографы Tomaz Gregoric, Jan Celeda
Жилой комплекс “Baroque Court Apartments”. Фото предоставлено OFIS arhitekti. Фотографы Tomaz Gregoric, Jan Celeda
Жилой комплекс “Baroque Court Apartments”. Предоставлено OFIS arhitekti
Жилой комплекс “Baroque Court Apartments”. Предоставлено OFIS arhitekti
Жилой комплекс “Baroque Court Apartments”. Предоставлено OFIS arhitekti
Жилой комплекс “Baroque Court Apartments”. Предоставлено OFIS arhitekti
Жилой комплекс “Baroque Court Apartments”. Предоставлено OFIS arhitekti
Жилой комплекс “Baroque Court Apartments”. Предоставлено OFIS arhitekti
Жилой комплекс “Baroque Court Apartments”. Предоставлено OFIS arhitekti
Жилой комплекс “Baroque Court Apartments”. Предоставлено OFIS arhitekti
Жилой комплекс “Baroque Court Apartments”. Предоставлено OFIS arhitekti
Жилой комплекс “Baroque Court Apartments”. Предоставлено OFIS arhitekti
Жилой комплекс “Baroque Court Apartments”. Предоставлено OFIS arhitekti
Жилой комплекс “Baroque Court Apartments”. Предоставлено OFIS arhitekti
Жилой комплекс “Baroque Court Apartments”. Предоставлено OFIS arhitekti
Жилой комплекс “Baroque Court Apartments”. Предоставлено OFIS arhitekti
Жилой комплекс “Baroque Court Apartments”. Предоставлено OFIS arhitekti
Жилой комплекс “Baroque Court Apartments”. Предоставлено OFIS arhitekti
Жилой комплекс “Baroque Court Apartments”. Предоставлено OFIS arhitekti
Жилой комплекс “Baroque Court Apartments”. Предоставлено OFIS arhitekti
Жилой комплекс “Baroque Court Apartments”. Предоставлено OFIS arhitekti
Жилой комплекс “Baroque Court Apartments”. Предоставлено OFIS arhitekti
Жилой комплекс “Baroque Court Apartments”. Предоставлено OFIS arhitekti
Жилой комплекс “Baroque Court Apartments”. Предоставлено OFIS arhitekti
Жилой комплекс “Baroque Court Apartments”. Предоставлено OFIS arhitekti
Жилой комплекс “Baroque Court Apartments”. Предоставлено OFIS arhitekti
Жилой комплекс “Baroque Court Apartments”. Вид до начала реконструкции. Предоставлено OFIS arhitekti
Жилой комплекс “Baroque Court Apartments”. Вид до начала реконструкции. Предоставлено OFIS arhitekti
Жилой комплекс “Baroque Court Apartments”. Вид до начала реконструкции. Предоставлено OFIS arhitekti
Жилой комплекс “Baroque Court Apartments”. Вид до начала реконструкции. Предоставлено OFIS arhitekti
Жилой комплекс “Baroque Court Apartments”. План 2-го этажа до начала реконструкции. Предоставлено OFIS arhitekti
Жилой комплекс “Baroque Court Apartments”. План 2-го этажа до начала реконструкции. Предоставлено OFIS arhitekti
Жилой комплекс “Baroque Court Apartments”. Историческое фото здания. Предоставлено OFIS arhitekti
Жилой комплекс “Baroque Court Apartments”. Историческое фото здания. Предоставлено OFIS arhitekti