Ðàçìåùåíî íà ïîðòàëå Àðõè.ðó (www.archi.ru)

21.03.2012

Æåëòûé öâåò ôèðìû

Îáúåêò:
Ìóçåé Ýíöî Ôåððàðè
Àäðåñ:
Èòàëèÿ, None, Ìîäåíà.
Ìàñòåðñêàÿ:
Future Systems

 Ìîäåíå îòêðûëñÿ ìóçåé Ýíöî Ôåððàðè, îñíîâàòåëÿ êîìïàíèè Ferrari è îäíîèìåííîé ãîíî÷íîé êîìàíäû, ñïðîåêòèðîâàííûé áþðî Future Systems.

Ìóçåé Ýíöî Ôåððàðè © Studio cento29
Ìóçåé Ýíöî Ôåððàðè © Studio cento29
Êîãäà áðèòàíñêàÿ ìàñòåðñêàÿ âûèãðàëà ýòîò àðõèòåêòóðíûé êîíêóðñ â 2004, ðå÷ü øëà î ìóçåå Maserati, ìàðêè, òîãäà ïðèíàäëåæàâøåé Ferrari, íî çàòåì áûëî ðåøåíî ïîñâÿòèòü ìóçåé Ýíöî Ôåððàðè, îáúåäèíèâ íîâîå çäàíèå è åãî ðîäíîé äîì â âûñòàâî÷íûé êîìïëåêñ.  2009 áþðî Future Systems ðàñïàëîñü, à åãî ãëàâà ßí Êàïëèöêè ñêîí÷àëñÿ, ïîýòîìó ðåàëèçàöèåé çàíèìàëñÿ ÃÀÏ Àíäðåà Ìîðãàíòå (Andrea Morgante) ïðè ó÷àñòèè ñâîåé íîâîé ìàñòåðñêîé Shiro Studio. Îí æå âûñòóïèë â êà÷åñòâå äèçàéíåðà ýêñïîçèöèè.
Ìóçåé Ýíöî Ôåððàðè © Studio cento29
Ìóçåé Ýíöî Ôåððàðè © Studio cento29


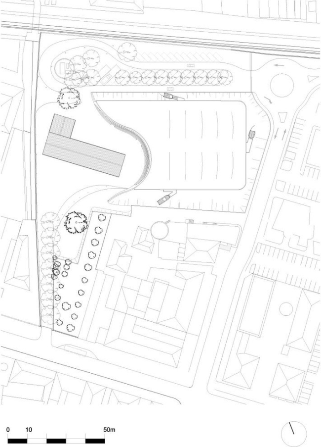
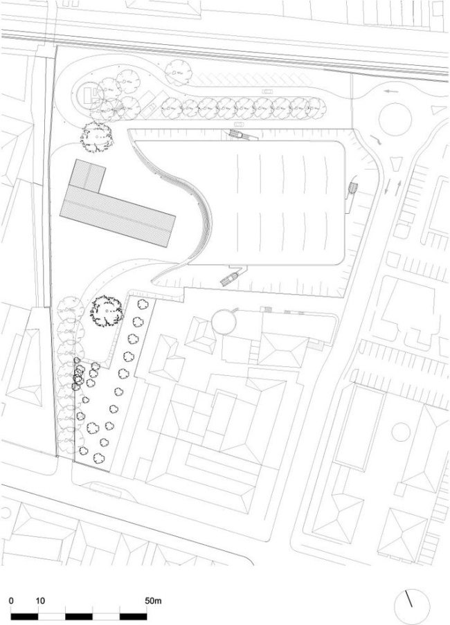
Ãëàâíàÿ ÷àñòü ïîñòðîéêè — ÿðêî-æåëòàÿ àëþìèíèåâàÿ êðûøà êðèâîëèíåéíîãî ïðîôèëÿ; ïðè ïëîùàäè â 3 300 ì2 ýòî ñàìîå áîëüøîå ïåðåêðûòèå èç ýòîãî ìàòåðèàëà, ïîýòîìó ïðè ñòðîèòåëüñòâå ïîòðåáîâàëèñü êîíñóëüòàöèè èíæåíåðîâ-ñóäîñòðîèòåëåé, õîðîøî çíàêîìûõ ñ ñîçäàíèåì èç ìåòàëëà êðóïíûõ îáúåìîâ ñëîæíîãî ïðîôèëÿ. Åå ïîâåðõíîñòü ïðîðåçàþò 10 ïîïåðå÷íûõ îêîí – «âîçäóõîçàáîðíèêîâ», íàïîìèíàþùèõ ðåøåíèå êóçîâà Ferrari. Ñêâîçü íèõ âíóòðü ïîïàäàåò ñîëíå÷íûé ñâåò, à â æàðêèå äíè — ñâåæèé âîçäóõ. Öâåò «ìîäåíñêèé æåëòûé» ÿâëÿåòñÿ ôèðìåííûì öâåòîì Ferrari (íà òàêîì ôîíå ãàðöóåò ÷åðíûé êîíü åå ìàðêè), à òàêæå îôèöèàëüíûì öâåòîì Ìîäåíû.
Ìóçåé Ýíöî Ôåððàðè © Studio cento29
Ìóçåé Ýíöî Ôåððàðè © Studio cento29


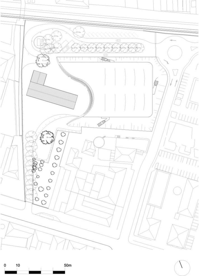
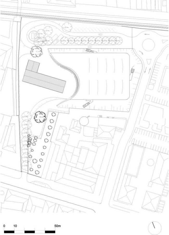
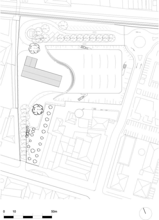
Âîãíóòûé ãëàâíûé îñòåêëåííûé ôàñàä ïîñòðîéêè êàê áóäòî îáíèìàåò ðàñïîëîæåííûé ðÿäîì äîì Ýíöî Ôåððàðè. Ýòî çäàíèå, ïîñòðîåííîå åãî îòöîì â 1830-õ ãîäàõ, âìåùàåò áèîãðàôè÷åñêóþ ýêñïîçèöèþ â áûâøèõ æèëûõ ïðîñòðàíñòâàõ è áîëüøîé ìàñòåðñêîé, à òàêæå àäìèíèñòðàòèâíûå ïîìåùåíèÿ.
Ìóçåé Ýíöî Ôåððàðè © David Pasek
Ìóçåé Ýíöî Ôåððàðè © David Pasek


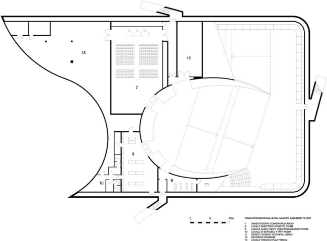
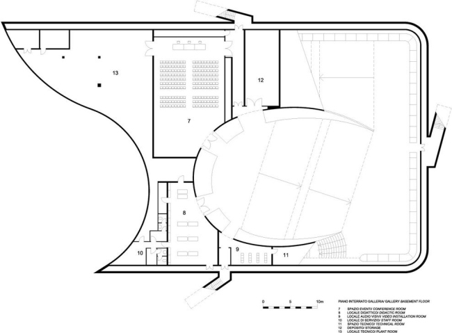
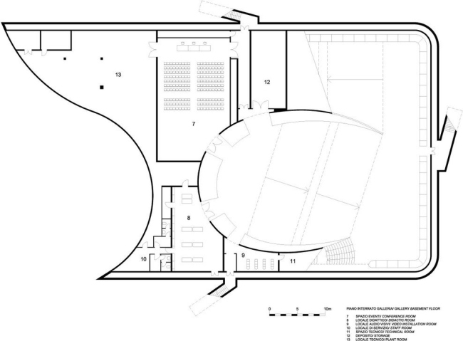
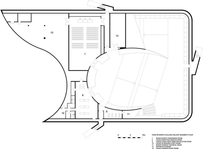
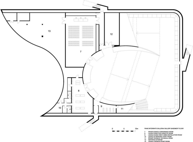
×òîáû ìóçåé íå ïðåâîñõîäèë ñîñåäíèé äîì ïî âûñîòå, îí ÷àñòè÷íî óòîïëåí â çåìëþ. Èíòåðüåð íîâîãî êîðïóñà ïðåäñòàâëÿåò ñîáîé åäèíûé âûñòàâî÷íûé çàë, ãäå áåëûå ïîë è ñòåíû ïëàâíî ïåðåòåêàþò äðóã â äðóãà. Ïîòîëîê çàòÿíóò ñâåòëîé ìåìáðàíîé, íàïîìèíàþùåé ïîêðûòèå êðûøè ñàëîíà àâòîìàøèíû. Òàì ìîæíî åäèíîâðåìåííî ýêñïîíèðîâàòü 21 àâòîìîáèëü, êàæäûé èç êîòîðûõ ïðèïîäíÿò íà 45 ñì íàä ïîëîì, ÷òîáû ïîä÷åðêíóòü êðàñîòó åãî äèçàéíà.
Ìóçåé Ýíöî Ôåððàðè © David Pasek
Ìóçåé Ýíöî Ôåððàðè © David Pasek


Êíèæíûé ìàãàçèí, êàôå, áèëåòíàÿ êàññà è òóàëåòû çàêëþ÷åíû â äâóõ æåëòûõ «ìîäóëÿõ», ôëàíêèðóþùèõ âõîä èçíóòðè. Òàêæå â çäàíèè íàõîäÿòñÿ êîíôåðåíö-çàë è îáðàçîâàòåëüíûé öåíòð.
Ìóçåé Ýíöî Ôåððàðè © Andrea Morgante
Ìóçåé Ýíöî Ôåððàðè © Andrea Morgante


Ñðåäè èñïîëüçîâàííûõ ýêî-òåõíîëîãèé — åñòåñòâåííîå ïðîâåòðèâàíèå (îêíà îòêðûâàþòñÿ àâòîìàòè÷åñêè, ïî ïîêàçàíèÿì òåðìî-ñåíñîðà), ãåîòåðìàëüíàÿ ñèñòåìà îõëàæäåíèÿ è îòîïëåíèÿ ïîìåùåíèé, èñïîëüçîâàíèå «ñåðîé» âîäû è ñîëíå÷íîé ýíåðãèè.
Ìóçåé Ýíöî Ôåððàðè © Studio cento29
Ìóçåé Ýíöî Ôåððàðè © Studio cento29


Ñëåäóåò îòìåòèòü, ÷òî êîìïàíèÿ Ferrari íå â ïåðâûé ðàç ðàáîòàåò ñ âèäíûìè àðõèòåêòîðàìè: íà òåððèòîðèè åå çàâîäà â Ìàðàíåëëî íàõîäÿòñÿ êîðïóñ àýðîäèíàìè÷åñêîé òðóáû, ñïðîåêòèðîâàííûé Ðåíöî Ïüÿíî, è èññëåäîâàòåëüñêèé öåíòð Ìàññèìèëèàíî Ôóêñàñà.

Í. Ô.

Ìóçåé Ýíöî Ôåððàðè © Studio cento29
Ìóçåé Ýíöî Ôåððàðè © Studio cento29
Ìóçåé Ýíöî Ôåððàðè © Andrea Morgante
Ìóçåé Ýíöî Ôåððàðè © Andrea Morgante
Ìóçåé Ýíöî Ôåððàðè © Andrea Morgante
Ìóçåé Ýíöî Ôåððàðè © Andrea Morgante
Ìóçåé Ýíöî Ôåððàðè © Andrea Morgante
Ìóçåé Ýíöî Ôåððàðè © Andrea Morgante
Ìóçåé Ýíöî Ôåððàðè © Andrea Morgante
Ìóçåé Ýíöî Ôåððàðè © Andrea Morgante
Ìóçåé Ýíöî Ôåððàðè © Andrea Morgante
Ìóçåé Ýíöî Ôåððàðè © Andrea Morgante
Ìóçåé Ýíöî Ôåððàðè © Andrea Morgante
Ìóçåé Ýíöî Ôåððàðè © Andrea Morgante
Ìóçåé Ýíöî Ôåððàðè © Studio cento29
Ìóçåé Ýíöî Ôåððàðè © Studio cento29
Ìóçåé Ýíöî Ôåððàðè © Studio cento29
Ìóçåé Ýíöî Ôåððàðè © Studio cento29
Ìóçåé Ýíöî Ôåððàðè © Andrea Morgante
Ìóçåé Ýíöî Ôåððàðè © Andrea Morgante
Ìóçåé Ýíöî Ôåððàðè © SHIRO STUDIO | Andrea Morgante
Ìóçåé Ýíöî Ôåððàðè © SHIRO STUDIO | Andrea Morgante
Ìóçåé Ýíöî Ôåððàðè © SHIRO STUDIO | Andrea Morgante
Ìóçåé Ýíöî Ôåððàðè © SHIRO STUDIO | Andrea Morgante
Ìóçåé Ýíöî Ôåððàðè © SHIRO STUDIO | Andrea Morgante
Ìóçåé Ýíöî Ôåððàðè © SHIRO STUDIO | Andrea Morgante
Ìóçåé Ýíöî Ôåððàðè © SHIRO STUDIO | Andrea Morgante
Ìóçåé Ýíöî Ôåððàðè © SHIRO STUDIO | Andrea Morgante
Ìóçåé Ýíöî Ôåððàðè © SHIRO STUDIO | Andrea Morgante
Ìóçåé Ýíöî Ôåððàðè © SHIRO STUDIO | Andrea Morgante
Ìóçåé Ýíöî Ôåððàðè © SHIRO STUDIO | Andrea Morgante
Ìóçåé Ýíöî Ôåððàðè © SHIRO STUDIO | Andrea Morgante
Ìóçåé Ýíöî Ôåððàðè © SHIRO STUDIO | Andrea Morgante
Ìóçåé Ýíöî Ôåððàðè © SHIRO STUDIO | Andrea Morgante
Ìóçåé Ýíöî Ôåððàðè © SHIRO STUDIO | Andrea Morgante
Ìóçåé Ýíöî Ôåððàðè © SHIRO STUDIO | Andrea Morgante
Ìóçåé Ýíöî Ôåððàðè © SHIRO STUDIO | Andrea Morgante
Ìóçåé Ýíöî Ôåððàðè © SHIRO STUDIO | Andrea Morgante
Ìóçåé Ýíöî Ôåððàðè © SHIRO STUDIO | Andrea Morgante
Ìóçåé Ýíöî Ôåððàðè © SHIRO STUDIO | Andrea Morgante
Ìóçåé Ýíöî Ôåððàðè © SHIRO STUDIO | Andrea Morgante
Ìóçåé Ýíöî Ôåððàðè © SHIRO STUDIO | Andrea Morgante
Ìóçåé Ýíöî Ôåððàðè © SHIRO STUDIO | Andrea Morgante
Ìóçåé Ýíöî Ôåððàðè © SHIRO STUDIO | Andrea Morgante
Ìóçåé Ýíöî Ôåððàðè © SHIRO STUDIO | Andrea Morgante
Ìóçåé Ýíöî Ôåððàðè © SHIRO STUDIO | Andrea Morgante