Размещено на портале Архи.ру (www.archi.ru)

20.03.2012

Увлекательный лабораторный опыт

Объект:
Корпус факультета физики Брокман-холл университета Райса
Адрес:
США, None, Хьюстон.
Мастерская:
KieranTimberlake

В рекордно короткий срок — за 33 месяца — в Хьюстоне, штат Техас был создан и реализован проект корпуса физического факультета университета Райса. В роли генпроектировщика выступило филадельфийское бюро KieranTimberlake.

Корпус факультета физики Брокман-холл университета Райса © Peter Aaron/OTTO
Корпус факультета физики Брокман-холл университета Райса © Peter Aaron/OTTO
Здание, получившее название Брокман-холл, простым назвать нельзя. Главная задача авторов состояла в том, чтобы гармонично вписать его в существующий архитектурный контекст. Сотрудники KieranTimberlake работали на «исторической» площадке: дело в том, что генплан университетского кампуса был создан еще в 1910 году бюро Cram, Goodhue, and Ferguson; в документах тех лет студгородок назван «Научным четырехугольником».
Корпус факультета физики Брокман-холл университета Райса © Hester + Hardaway
Корпус факультета физики Брокман-холл университета Райса © Hester + Hardaway


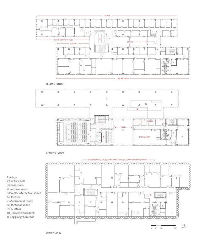
Новое здание окружено шестью прямоугольными в плане корпусами различного функционального назначения. Брокман-холл также имеет прямоугольный план, однако его объемно-пространственная композиция усложнена. Постройка общей площадью чуть более 10 тыс. м2 состоит из двух элементов, соединенных на верхнем уровне двумя остекленными переходами. Северный объем приподнят на резных бетонных колоннах, на которых есть изображения, иллюстрирующие классические и современные физические теории; так образован «портал», ведущий во внутренний двор. Полупрозрачный фасад северного корпуса украшен сложным геометрическим узором, имитирующим «мозаику Пенроуза».
Корпус факультета физики Брокман-холл университета Райса © Hester + Hardaway
Корпус факультета физики Брокман-холл университета Райса © Hester + Hardaway


Фасад более закрытого южного объема облицован алюминиевыми композитными панелями с терракотовым покрытием. Стены первого уровня выложены стеклоблоками со вставками из настоящего глиняного кирпича — это воспринимается как дань славным архитектурным традициям прошлого. Благодаря прозрачному заполнению и стеклянным ограждающим конструкциям интерьер лабораторного корпуса в дневное время всегда залит солнечным светом.
Корпус факультета физики Брокман-холл университета Райса © Hester + Hardaway
Корпус факультета физики Брокман-холл университета Райса © Hester + Hardaway


Тем не менее, самые сложно организованные в техническом смысле лаборатории, наполненные чувствительной к вибрации аппаратурой (лаборатории ядерной и молекулярной физики, нанотехнологий, биофизики), обустроены в подвальном этаже. На первом этаже находятся лабораторные помещения, а кроме них — кабинеты преподавателей и исследователей, лекционный зал и учебные аудитории. На верхних ярусах — также кабинеты, администрация факультета, залы для семинарских занятий. В процентном отношении функциональная нагрузка распределяется так: 60% площадей — лаборатории, около 30% — офисы и 10% — учебные аудитории.
Корпус факультета физики Брокман-холл университета Райса © Michael Moran/OTTO
Корпус факультета физики Брокман-холл университета Райса © Michael Moran/OTTO


Бюджет проекта составляет 67 млн. долларов США. Благодаря использованию ресурсосберегающих технологий (система сбора и очистки дождевой воды, естественная вентиляция, датчики интенсивности электрического освещения) зданию присужден «золотой» сертификат LEED.

А. Б.
Корпус факультета физики Брокман-холл университета Райса © Michael Moran/OTTO
Корпус факультета физики Брокман-холл университета Райса © Michael Moran/OTTO
Корпус факультета физики Брокман-холл университета Райса © Michael Moran/OTTO
Корпус факультета физики Брокман-холл университета Райса © Michael Moran/OTTO
Корпус факультета физики Брокман-холл университета Райса © Peter Aaron/OTTO
Корпус факультета физики Брокман-холл университета Райса © Peter Aaron/OTTO
Корпус факультета физики Брокман-холл университета Райса © Peter Aaron/OTTO
Корпус факультета физики Брокман-холл университета Райса © Peter Aaron/OTTO
Корпус факультета физики Брокман-холл университета Райса © Peter Aaron/OTTO
Корпус факультета физики Брокман-холл университета Райса © Peter Aaron/OTTO
Корпус факультета физики Брокман-холл университета Райса © Michael Moran/OTTO
Корпус факультета физики Брокман-холл университета Райса © Michael Moran/OTTO
Корпус факультета физики Брокман-холл университета Райса © Michael Moran/OTTO
Корпус факультета физики Брокман-холл университета Райса © Michael Moran/OTTO
Корпус факультета физики Брокман-холл университета Райса © Peter Aaron/OTTO
Корпус факультета физики Брокман-холл университета Райса © Peter Aaron/OTTO
Корпус факультета физики Брокман-холл университета Райса © Peter Aaron/OTTO
Корпус факультета физики Брокман-холл университета Райса © Peter Aaron/OTTO
Корпус факультета физики Брокман-холл университета Райса © Peter Aaron/OTTO
Корпус факультета физики Брокман-холл университета Райса © Peter Aaron/OTTO
Корпус факультета физики Брокман-холл университета Райса © Hester + Hardaway
Корпус факультета физики Брокман-холл университета Райса © Hester + Hardaway
Корпус факультета физики Брокман-холл университета Райса © Michael Moran/OTTO
Корпус факультета физики Брокман-холл университета Райса © Michael Moran/OTTO
Корпус факультета физики Брокман-холл университета Райса © Michael Moran/OTTO
Корпус факультета физики Брокман-холл университета Райса © Michael Moran/OTTO
Корпус факультета физики Брокман-холл университета Райса © Michael Moran/OTTO
Корпус факультета физики Брокман-холл университета Райса © Michael Moran/OTTO
Корпус факультета физики Брокман-холл университета Райса © Michael Moran/OTTO
Корпус факультета физики Брокман-холл университета Райса © Michael Moran/OTTO
Корпус факультета физики Брокман-холл университета Райса © Peter Aaron/OTTO
Корпус факультета физики Брокман-холл университета Райса © Peter Aaron/OTTO
Корпус факультета физики Брокман-холл университета Райса © Peter Aaron/OTTO
Корпус факультета физики Брокман-холл университета Райса © Peter Aaron/OTTO
Корпус факультета физики Брокман-холл университета Райса © Hester + Hardaway
Корпус факультета физики Брокман-холл университета Райса © Hester + Hardaway
Корпус факультета физики Брокман-холл университета Райса © Hester + Hardaway
Корпус факультета физики Брокман-холл университета Райса © Hester + Hardaway
Корпус факультета физики Брокман-холл университета Райса © Michael Moran/OTTO
Корпус факультета физики Брокман-холл университета Райса © Michael Moran/OTTO
Корпус факультета физики Брокман-холл университета Райса © Michael Moran/OTTO
Корпус факультета физики Брокман-холл университета Райса © Michael Moran/OTTO
Корпус факультета физики Брокман-холл университета Райса © Peter Aaron/OTTO
Корпус факультета физики Брокман-холл университета Райса © Peter Aaron/OTTO
Корпус факультета физики им. Брокмана университета Райса © Red Wing Aerials
Корпус факультета физики им. Брокмана университета Райса © Red Wing Aerials
Корпус факультета физики Брокман-холл университета Райса © KieranTimberlake
Корпус факультета физики Брокман-холл университета Райса © KieranTimberlake
Корпус факультета физики Брокман-холл университета Райса © KieranTimberlake
Корпус факультета физики Брокман-холл университета Райса © KieranTimberlake
Корпус факультета физики Брокман-холл университета Райса © KieranTimberlake
Корпус факультета физики Брокман-холл университета Райса © KieranTimberlake
Корпус факультета физики Брокман-холл университета Райса © KieranTimberlake
Корпус факультета физики Брокман-холл университета Райса © KieranTimberlake