Размещено на портале Архи.ру (www.archi.ru)

18.06.2007

Всемирная паутина на зеленых полях

Объект:
Технологический центр Ла Риоха
Адрес:
Испания, None, Логроньо.
Мастерская:
FOA - Foreign Office Architects

В испанском городе Логроньо открылся Технологический центр Ла Риоха, потроенный по проекту британской мастерской «Форин Офис Акитектс».

Технологический центр Ла Риоха. Планы подземного уровня, первого и второго этажей © FOA – Foreign Office Architects
Технологический центр Ла Риоха. Планы подземного уровня, первого и второго этажей © FOA – Foreign Office Architects
Новое здание предназначено для размещения там «стартовых» офисов компаний, работающих в сфере информационных технологий, в частности, сети Интернет. Власти автономной области Ла Риоха (административным центром которой является Логроньо) стремятся развивать не только сельское хозяйство (в частности, виноделие), исконную специализацию этой территории, но и сферу IT. Этому должно способствовать то, что один из крупнейших Интернет-провайдеров страны недавно выбрал местом расположения своего головного офиса именно Логроньо.
Технологический центр Ла Риоха. Ситуационный план
Технологический центр Ла Риоха. Ситуационный план


Также в постройке FOA откроется школа повышения квалификации для подготовки специалистов в сфере web-технологий и исследовательский центр.
Технологический центр Ла Риоха
Технологический центр Ла Риоха


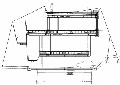
Здание возвели на окраине города, в новом, быстро развивающемся районе. Оно стоит посреди лесопитомника, где выращиваются деревья для озеления Логроньо. Рядом находится проходящее по насыпи шоссе. Высота Технологического центра такова, что насыпь полностью скрывает его при взгляде с юга и запада. Подобная ситуация использована архитекторами также и в отношении использования этой постройки горожанами: они могут попасть на крышу здания с шоссе, и использовать ее для прогулок днем; ночью доступ туда закрыт, так как убираются подъемные мосты, соединяющие крышу с насыпью.
Технологический центр Ла Риоха © Sergio Padura, Ramon Prat
Технологический центр Ла Риоха © Sergio Padura, Ramon Prat


Планировка здания основана на функциональных требованиях: внутреннее пространство состоит из расходящихся от основного блока под разными углами коридоров, из которых можно попасть в стандартные ячейки-помещения. Как основные строительные материалы использованы дерево и сталь. Конструктивные опоры отнесены внутрь от стен здания, что позволило устроить сплошное застекление по всей протяженности постройки. Стекло повышенной прочности защищают от солнечного света жалюзи, которые надо раскрывать и открывать в ручную. Из каждой «ячейки» открывается стеклянная же дверь наружу.
Технологический центр Ла Риоха © Sergio Padura, Ramon Prat
Технологический центр Ла Риоха © Sergio Padura, Ramon Prat


Вокруг Технологического центра высажены вьющиеся растения разных видов, которые уже через два года должны полностью оплести здание и скрыть его вдохновленные Краун-Холлом Мис ван дер Роэ фасады. Поэтому пока здание оплетено паутиной стальных кабелей – опорой для будущего зеленого ковра.
Технологический центр Ла Риоха
Технологический центр Ла Риоха
Технологический центр Ла Риоха © Sergio Padura, Ramon Prat
Технологический центр Ла Риоха © Sergio Padura, Ramon Prat
Технологический центр Ла Риоха. Разрез
Технологический центр Ла Риоха. Разрез