Размещено на портале Архи.ру (www.archi.ru)

16.02.2012

Образцовый капремонт

Нина Фролова
Объект:
Жилой дом «Тур Буа Ле Претр» – реконструкция
Адрес:
Франция, None, Париж.
Мастерская:
Lacaton & Vassal

Бюро «Лакатон & Вассаль» закончило реконструкцию жилой башни на севере Парижа. Эффективный проект удостоился престижной архитектурной премии «Серебряный угольник» за 2011 год.

Жилой дом «Тур Буа Ле Претр» – реконструкция © Frédéric Druot
Жилой дом «Тур Буа Ле Претр» – реконструкция © Frédéric Druot
17-этажный дом «Тур Буа Ле Претр» был построен в 1958–1961 рядом с парижской окружной дорогой архитектором Раймоном Лопесом (Raymond Lopez). Это сооружение с 96 квартирами в окружении зелени, как и другие постройки послевоенного модернизма по всему миру, в 21 веке было признано устаревшим и приговорено к сносу. Этому решению властей способствовало неудачное обновление фасадов, проведенное около 1990: новые панели почти перекрыли доступ в квартиры свету и свежему воздуху.
Жилой дом «Тур Буа Ле Претр» – реконструкция © Frédéric Druot
Жилой дом «Тур Буа Ле Претр» – реконструкция © Frédéric Druot
Жилой дом «Тур Буа Ле Претр» – реконструкция © Frédéric Druot
Жилой дом «Тур Буа Ле Претр» – реконструкция © Frédéric Druot


Но Анн Лакатон и Жан-Филипп Вассаль совместно с Фредериком Дрюо (Frédéric Druot) предложили «зеленую» альтернативу сносу: реконструировать башню, приспособив ее к современному стандарту комфорта. Такой вариант позволил ей сохранить статус социального жилья: все нынешние жильцы остались при своих квартирах. Им даже не понадобилось временно съезжать из дома: при реконструкции использовались сборные детали, что свело «разрушительную» сторону ремонта к минимуму.
Жилой дом «Тур Буа Ле Претр» – вид до реконструкции © Frédéric Druot
Жилой дом «Тур Буа Ле Претр» – вид до реконструкции © Frédéric Druot


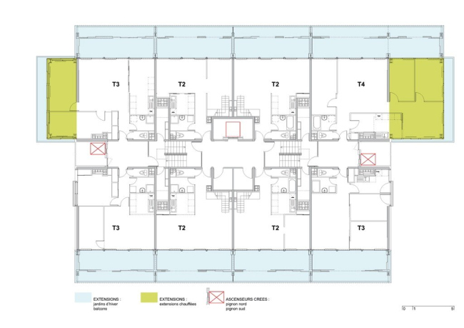
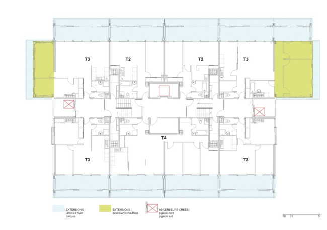
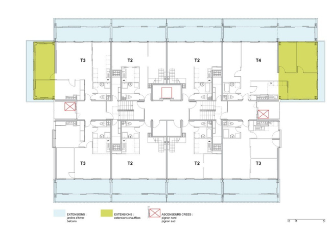
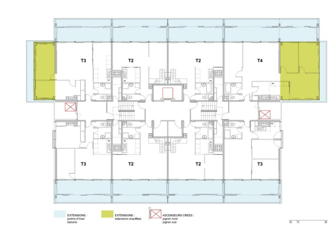
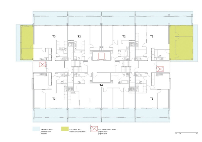
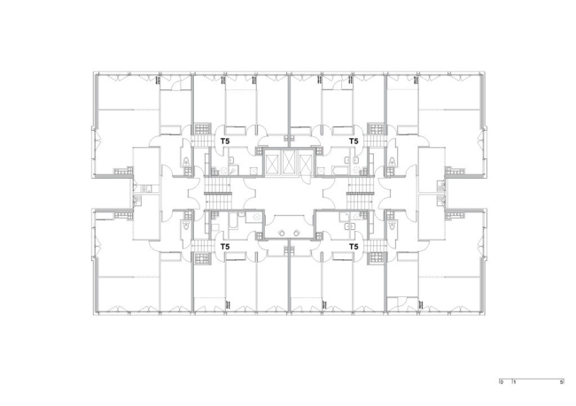
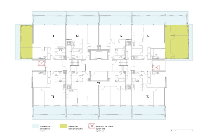
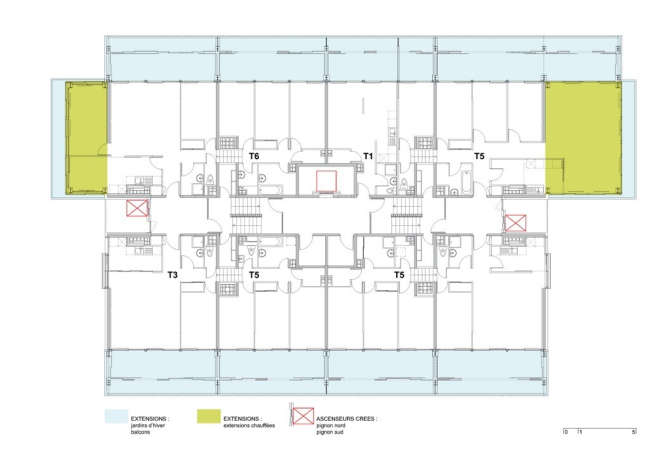
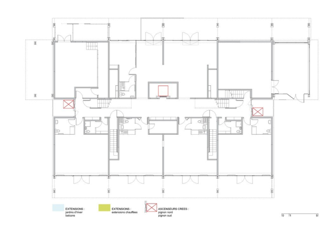
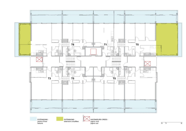
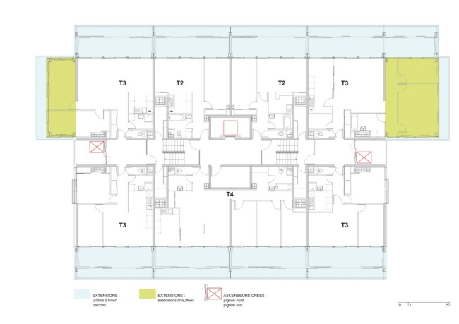
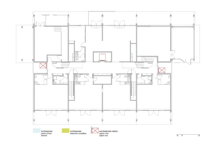
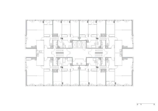
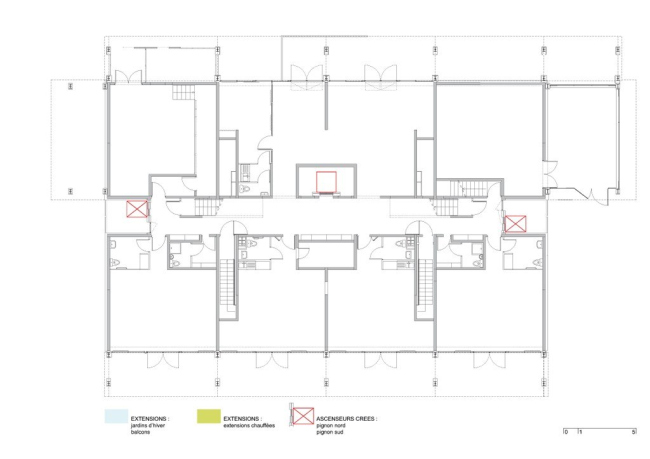
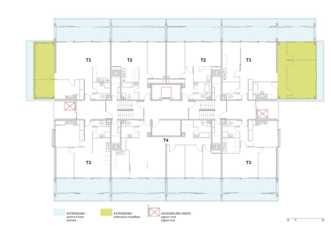
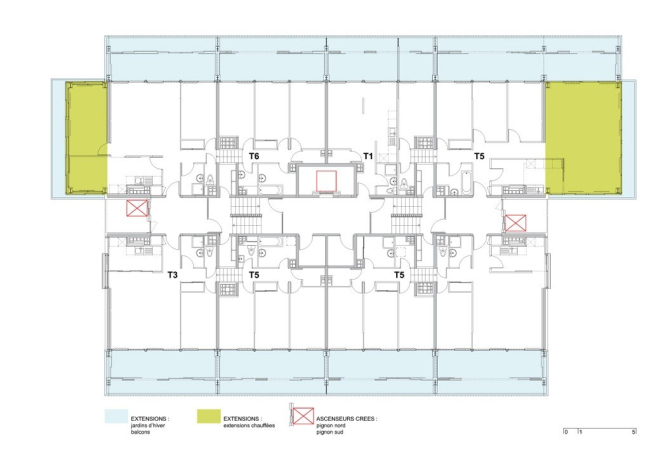
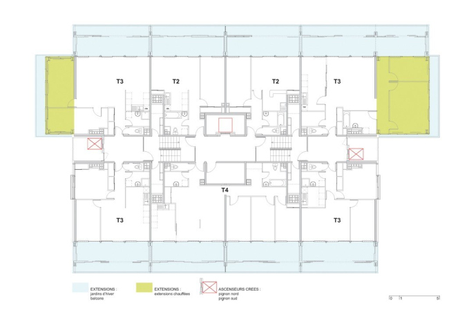
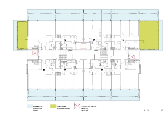
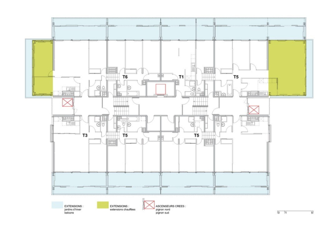
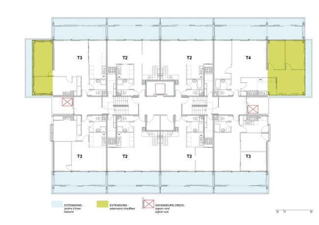
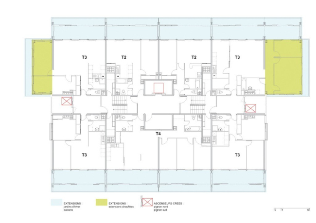
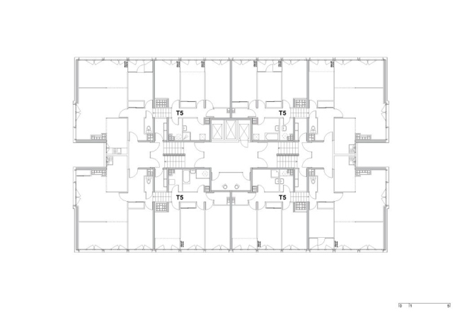
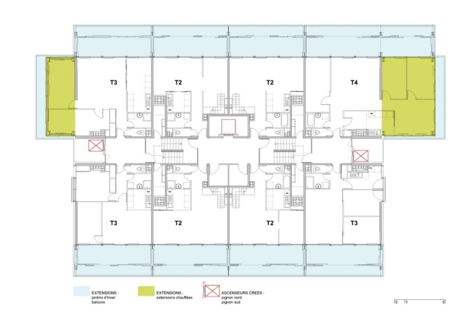
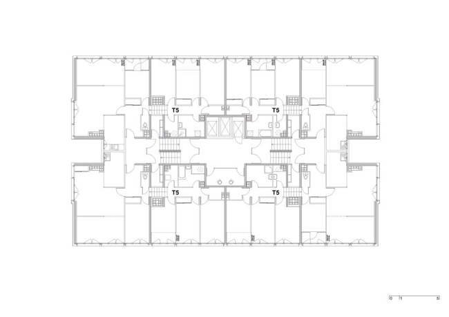
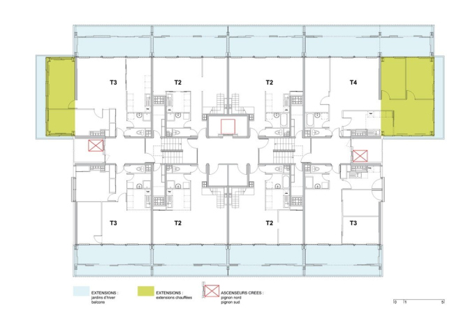
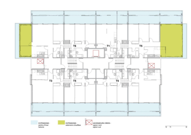
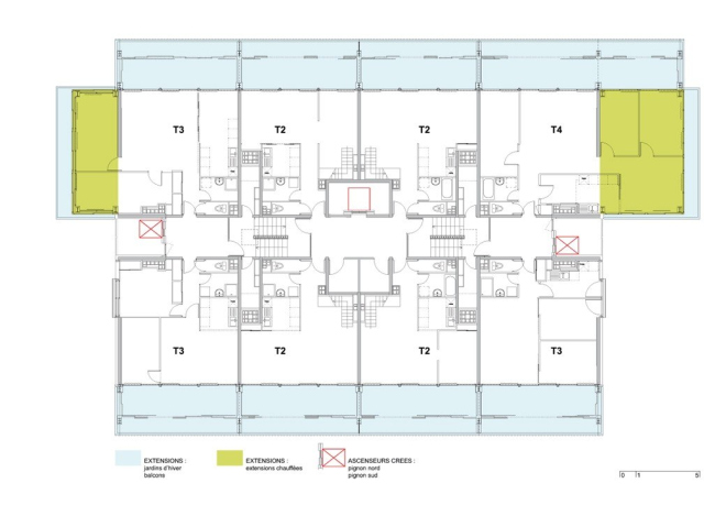
Существовавшие фасады постройки были разобраны, а на их месте была сооружена самонесущая конструкция из террас и балконов. В результате, каждая квартира получила остекленный «зимний сад» шириной 2 м и открытый балкон шириной в 1 м во всю длину своего участка фасада. От гостиной новые пространства отделены раздвижными дверьми из оргстекла. В результате, благодаря прозрачности новых перегородок, квартиры прекрасно освещены солнечным светом, а от лишнего жара их защищают подвижные жалюзи; также есть дополнительная изоляция для сохранения тепла в зимние месяцы. Кроме того, учитывая выгодное положение и высоту здания, жильцы могут теперь любоваться панорамными видами Парижа. Но главным все же остается увеличение площади: так, квартира в 44 м2 получила дополнительные 26 м2, и т. д. Итого, к существовавшим общим 8900 м2 добавилось 3560 м2.
Жилой дом «Тур Буа Ле Претр» вскоре после завершения строительства
Жилой дом «Тур Буа Ле Претр» вскоре после завершения строительства
Жилой дом «Тур Буа Ле Претр» – реконструкция © Frédéric Druot
Жилой дом «Тур Буа Ле Претр» – реконструкция © Frédéric Druot


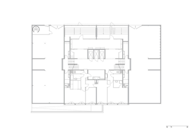
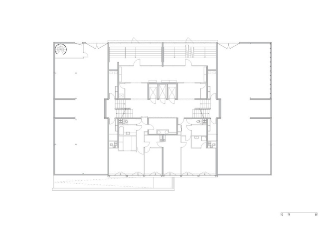
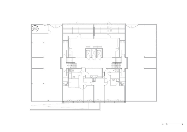
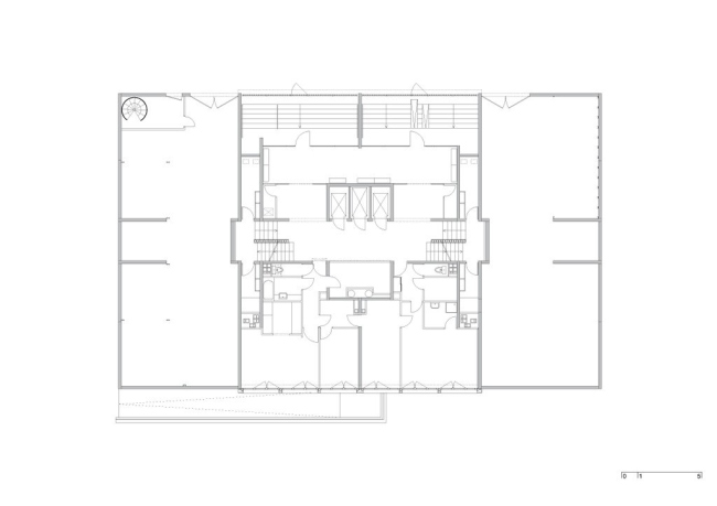
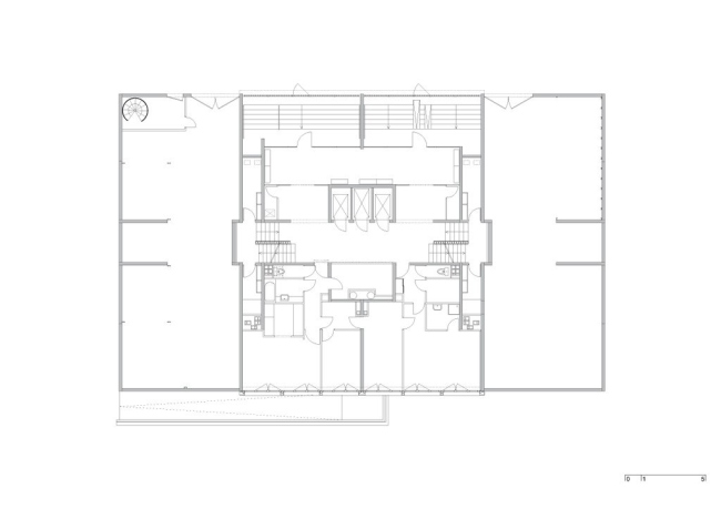
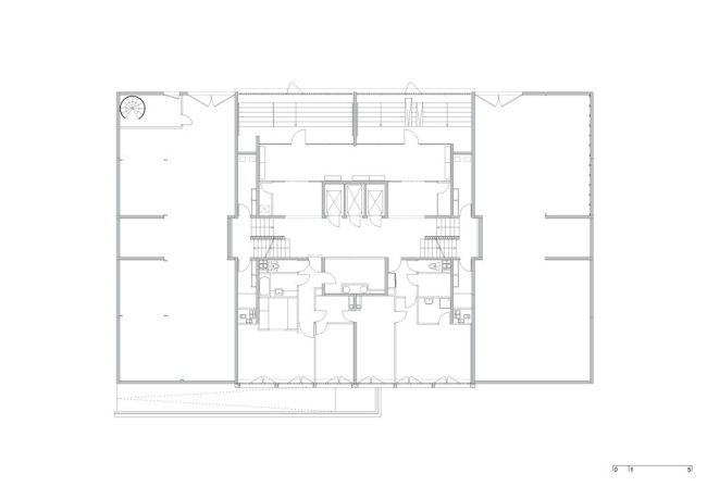
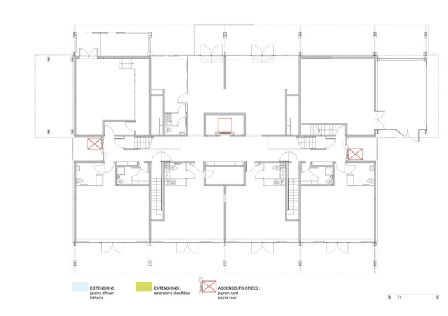
Вместо одного лифта, чья шахта пошла на улучшение внутренней планировки дома, были устроены два новых. Значительные изменения коснулись также нежилого первого этажа: его выровняли в высоте с улицей, убрали все перегородки (большинство помещений там не использовалось), создали две новых комнаты для общественных функций, в остальном связав вход в здание через просторный вестибюль с разбитым за домом новым садом.
Жилой дом «Тур Буа Ле Претр» – реконструкция © Frédéric Druot
Жилой дом «Тур Буа Ле Претр» – реконструкция © Frédéric Druot


Изначально башня «Тур Буа Ле Претр» считалась образцово-показательной: первый вариант этого проекта был осуществлен в 1957 в рамках выставки InterBau в берлинском Ганзейском квартале (там его ценят и без перестройки: квартиры в имеющем статус памятника архитектуры доме очень популярны). Теперь же, после реконструкции с бюджетом в 11,4 млн. евро, парижская башня вновь стала образцом – теперь уже обновления жилого фонда.
Жилой дом «Тур Буа Ле Претр» – реконструкция © Frédéric Druot
Жилой дом «Тур Буа Ле Претр» – реконструкция © Frédéric Druot
Жилой дом «Тур Буа Ле Претр» – реконструкция © Frédéric Druot
Жилой дом «Тур Буа Ле Претр» – реконструкция © Frédéric Druot
Жилой дом «Тур Буа Ле Претр» – реконструкция. Бюро Lacaton & Vassal © Frédéric Druot
Жилой дом «Тур Буа Ле Претр» – реконструкция. Бюро Lacaton & Vassal © Frédéric Druot
Жилой дом «Тур Буа Ле Претр» – реконструкция © Frédéric Druot
Жилой дом «Тур Буа Ле Претр» – реконструкция © Frédéric Druot
Жилой дом «Тур Буа Ле Претр» – реконструкция © Frédéric Druot
Жилой дом «Тур Буа Ле Претр» – реконструкция © Frédéric Druot
Жилой дом «Тур Буа Ле Претр» – реконструкция © Frédéric Druot
Жилой дом «Тур Буа Ле Претр» – реконструкция © Frédéric Druot
Жилой дом «Тур Буа Ле Претр» – реконструкция © Frédéric Druot
Жилой дом «Тур Буа Ле Претр» – реконструкция © Frédéric Druot
Жилой дом «Тур Буа Ле Претр» – реконструкция © Frédéric Druot
Жилой дом «Тур Буа Ле Претр» – реконструкция © Frédéric Druot
Жилой дом «Тур Буа Ле Претр» – реконструкция © Frédéric Druot
Жилой дом «Тур Буа Ле Претр» – реконструкция © Frédéric Druot
Жилой дом «Тур Буа Ле Претр» – реконструкция © Frédéric Druot
Жилой дом «Тур Буа Ле Претр» – реконструкция © Frédéric Druot
Жилой дом «Тур Буа Ле Претр» – реконструкция © Frédéric Druot
Жилой дом «Тур Буа Ле Претр» – реконструкция © Frédéric Druot
Жилой дом «Тур Буа Ле Претр» – реконструкция © Frédéric Druot
Жилой дом «Тур Буа Ле Претр» – реконструкция © Frédéric Druot
Жилой дом «Тур Буа Ле Претр» – реконструкция © Frédéric Druot
Жилой дом «Тур Буа Ле Претр» – реконструкция © Frédéric Druot
Жилой дом «Тур Буа Ле Претр» – вид до реконструкции © Frédéric Druot
Жилой дом «Тур Буа Ле Претр» – вид до реконструкции © Frédéric Druot
Жилой дом «Тур Буа Ле Претр» – реконструкция © Lacaton Vassal
Жилой дом «Тур Буа Ле Претр» – реконструкция © Lacaton Vassal
Жилой дом «Тур Буа Ле Претр» – реконструкция © Lacaton Vassal
Жилой дом «Тур Буа Ле Претр» – реконструкция © Lacaton Vassal
Жилой дом «Тур Буа Ле Претр» – реконструкция © Lacaton Vassal
Жилой дом «Тур Буа Ле Претр» – реконструкция © Lacaton Vassal
Жилой дом «Тур Буа Ле Претр» – реконструкция © Lacaton Vassal
Жилой дом «Тур Буа Ле Претр» – реконструкция © Lacaton Vassal
Жилой дом «Тур Буа Ле Претр» – реконструкция © Lacaton Vassal
Жилой дом «Тур Буа Ле Претр» – реконструкция © Lacaton Vassal
Жилой дом «Тур Буа Ле Претр» – реконструкция © Lacaton Vassal
Жилой дом «Тур Буа Ле Претр» – реконструкция © Lacaton Vassal
Жилой дом «Тур Буа Ле Претр» – реконструкция © Lacaton Vassal
Жилой дом «Тур Буа Ле Претр» – реконструкция © Lacaton Vassal
Жилой дом «Тур Буа Ле Претр» – реконструкция © Lacaton Vassal
Жилой дом «Тур Буа Ле Претр» – реконструкция © Lacaton Vassal
Жилой дом «Тур Буа Ле Претр» – реконструкция © Lacaton Vassal
Жилой дом «Тур Буа Ле Претр» – реконструкция © Lacaton Vassal
Жилой дом «Тур Буа Ле Претр» – реконструкция © Lacaton Vassal
Жилой дом «Тур Буа Ле Претр» – реконструкция © Lacaton Vassal
Жилой дом «Тур Буа Ле Претр» – реконструкция © Lacaton Vassal
Жилой дом «Тур Буа Ле Претр» – реконструкция © Lacaton Vassal
Жилой дом «Тур Буа Ле Претр» – реконструкция © Lacaton Vassal
Жилой дом «Тур Буа Ле Претр» – реконструкция © Lacaton Vassal
Жилой дом «Тур Буа Ле Претр» в  процессе реконструкции © Frédéric Druot
Жилой дом «Тур Буа Ле Претр» в процессе реконструкции © Frédéric Druot
Жилой дом «Тур Буа Ле Претр» в процессе реконструкции © Frédéric Druot
Жилой дом «Тур Буа Ле Претр» в процессе реконструкции © Frédéric Druot
Жилой дом «Тур Буа Ле Претр» в процессе реконструкции © Frédéric Druot
Жилой дом «Тур Буа Ле Претр» в процессе реконструкции © Frédéric Druot
Жилой дом «Тур Буа Ле Претр» в процессе реконструкции © Frédéric Druot
Жилой дом «Тур Буа Ле Претр» в процессе реконструкции © Frédéric Druot
Жилой дом «Тур Буа Ле Претр» в процессе реконструкции © Frédéric Druot
Жилой дом «Тур Буа Ле Претр» в процессе реконструкции © Frédéric Druot