Размещено на портале Архи.ру (www.archi.ru)

10.02.2012

Глубокий фасад

Объект:
Городской концертный зал Теулады
Адрес:
Испания, None, Теулада.

В Теуладе на востоке Испании открылся концертный зал, спроектированный Франсиско Мангадо.

Городской концертный зал Теулады © Juan Rodriguez
Городской концертный зал Теулады © Juan Rodriguez
Здание расположено в центре города, в верхней части спускающейся к морю долины, поэтому его хорошо видно как из окружающих кварталов, так и из приморского района Морайра. Хотя этот район отделен от собственно Теулады полями и представляет собой, по сути, почти самостоятельное поселение, теперь издалека заметное новая постройка соединит обе части городка визуальными связями.
Городской концертный зал Теулады © Juan Rodriguez
Городской концертный зал Теулады © Juan Rodriguez


Также особенности ландшафта позволили Мангадо использовать эффектные виды долины и воды: главным стал фасад, выходящий на Средиземное море. Он обращен на юг, поэтому важной задачей стало уберечь его панорамное застекление от солнечного жара. Поэтому оно помещено в глубокую лоджию, облицованную синими изразцами; ее «складки» напоминают грани драгоценного камня. «Складки» продолжаются и в интерьере, там они — из грубого бетона или оштукатурены.
Городской концертный зал Теулады © Juan Rodriguez
Городской концертный зал Теулады © Juan Rodriguez


За прозрачным фасадом скрываются кафе и ресторан; под ними, на первом этаже находится выставочное пространство, скрытое снаружи за легкой «колоннадой». Оба яруса соединены остекленными проемами в перекрытиях.

Н. Ф.
Городской концертный зал Теулады © Juan Rodriguez
Городской концертный зал Теулады © Juan Rodriguez
Городской концертный зал Теулады © Juan Rodriguez
Городской концертный зал Теулады © Juan Rodriguez
Городской концертный зал Теулады © Juan Rodriguez
Городской концертный зал Теулады © Juan Rodriguez
Городской концертный зал Теулады © Juan Rodriguez
Городской концертный зал Теулады © Juan Rodriguez
Городской концертный зал Теулады © Francisco Mangado
Городской концертный зал Теулады © Francisco Mangado
Городской концертный зал Теулады © Francisco Mangado
Городской концертный зал Теулады © Francisco Mangado
Городской концертный зал Теулады © Francisco Mangado
Городской концертный зал Теулады © Francisco Mangado
Городской концертный зал Теулады © Francisco Mangado
Городской концертный зал Теулады © Francisco Mangado
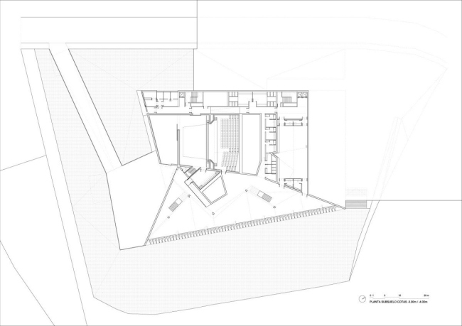
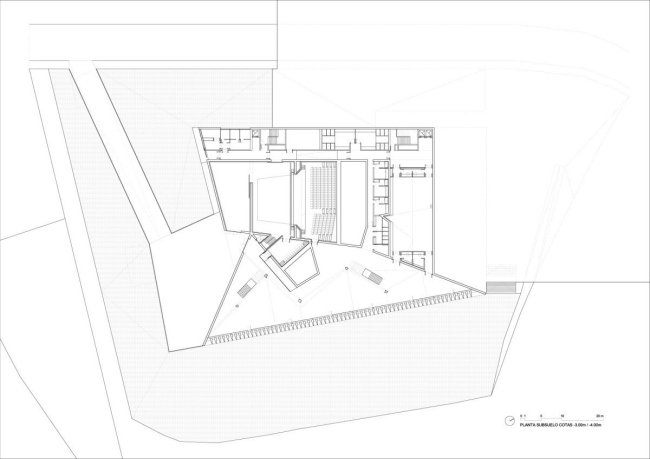
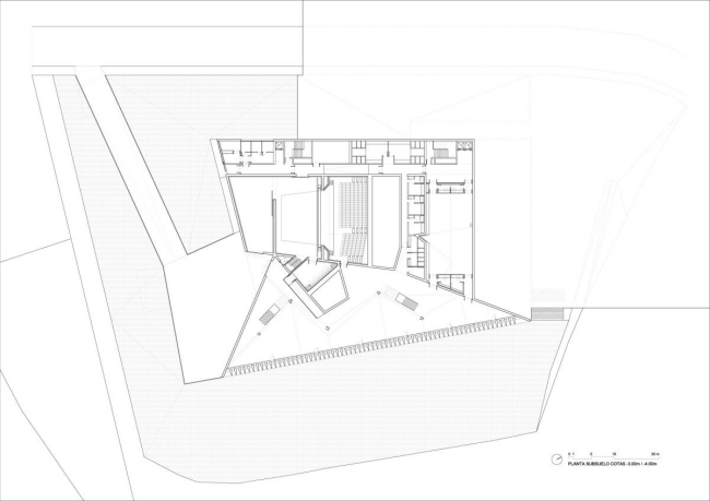
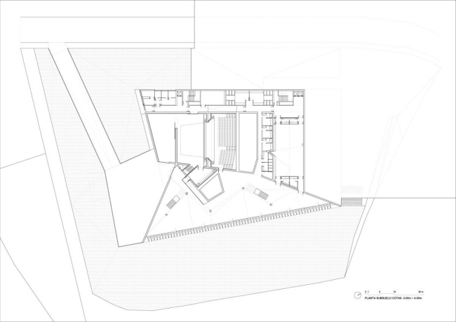
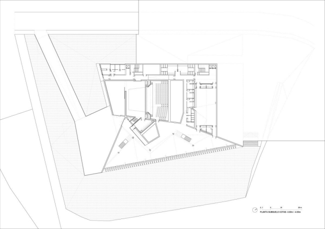
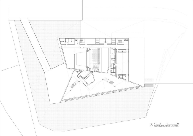
Городской концертный зал Теулады. План по уровню -4 м © Francisco Mangado
Городской концертный зал Теулады. План по уровню -4 м © Francisco Mangado
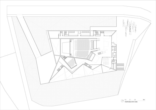
Городской концертный зал Теулады. План по уровню 0 © Francisco Mangado
Городской концертный зал Теулады. План по уровню 0 © Francisco Mangado
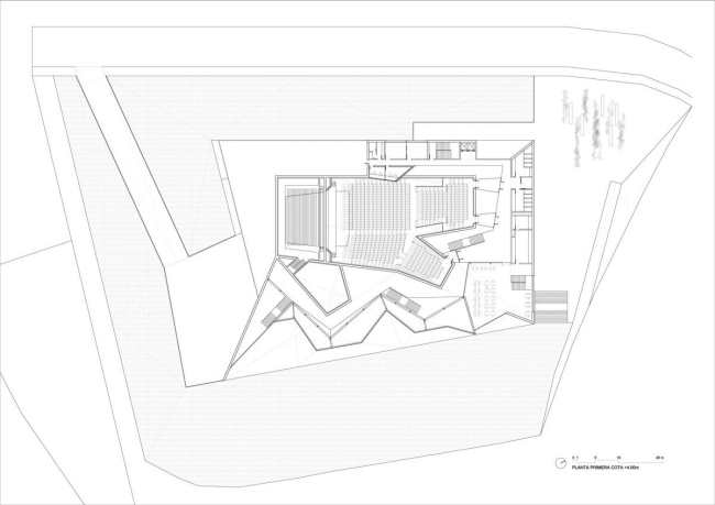
Городской концертный зал Теулады. План по уровню +4 м © Francisco Mangado
Городской концертный зал Теулады. План по уровню +4 м © Francisco Mangado