Размещено на портале Архи.ру (www.archi.ru)

03.02.2012

Городская администрация вместо казино

Объект:
Комплекс Raakspoort - ратуша и кинотеатр
Адрес:
Нидерланды, None, Харлем.
Мастерская:
Bolles+Wilson

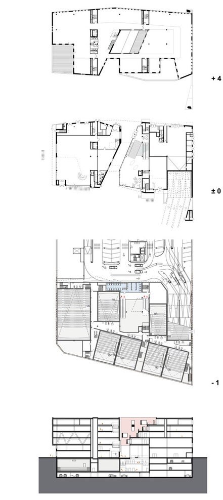
В Харлеме построен комплекс из ратуши и кинотеатра, спроектированный немецким бюро «Боллес + Уилсон».

Комплекс Raakspoort - ратуша и кинотеатр © Christian Richters
Комплекс Raakspoort - ратуша и кинотеатр © Christian Richters
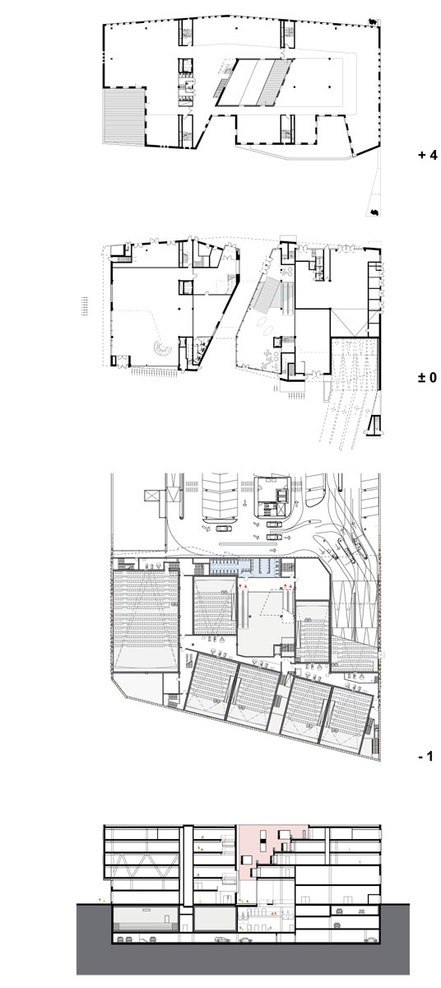
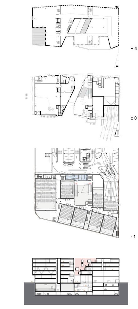
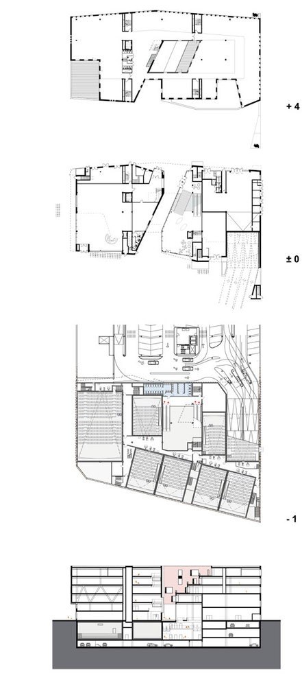
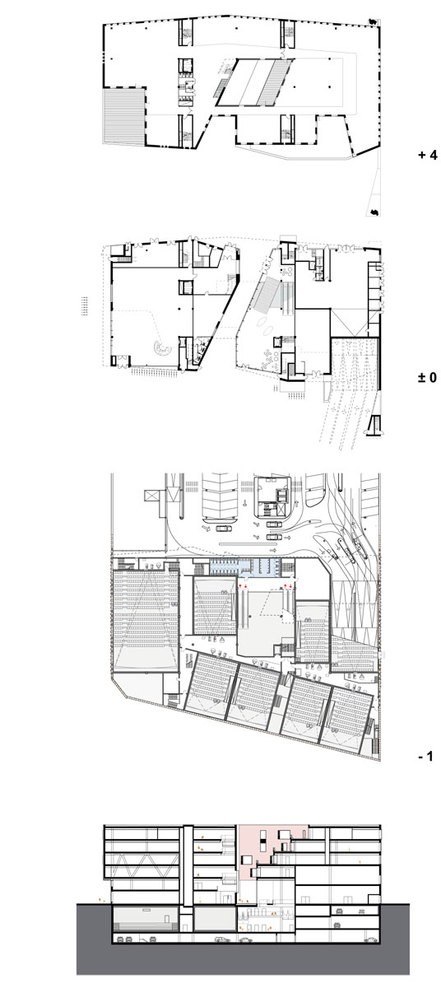
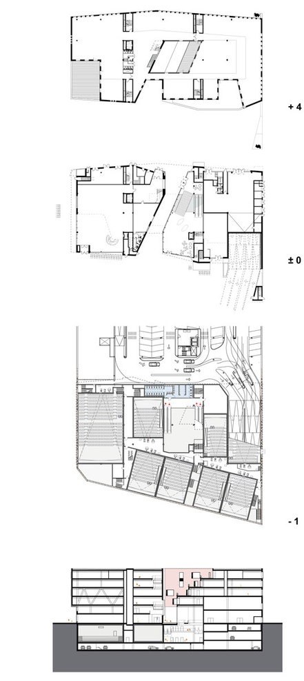
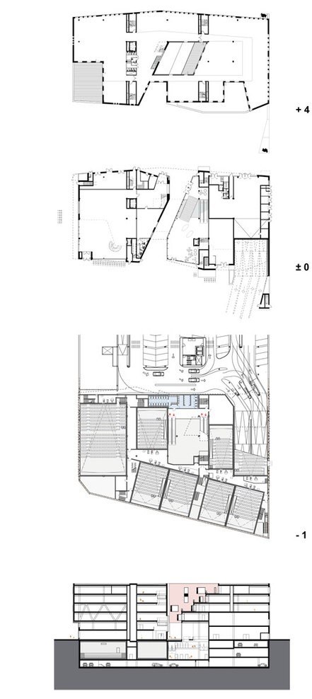
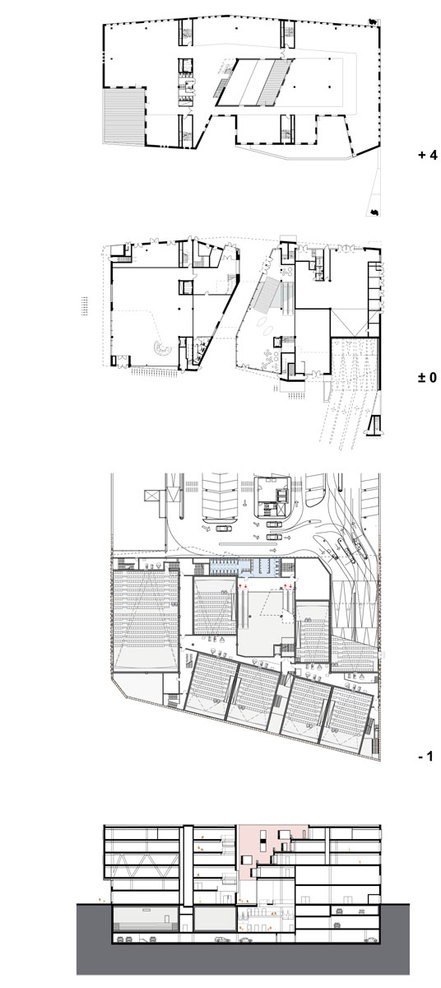
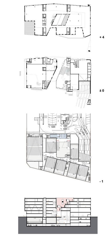
Комплекс Raakspoort (с голландского — «Ворота Ракса») отмечает вход в район новой застройки Ракс в историческом центре города; он одновременно закрывает от шума машин внутреннюю часть квартала и приглашает зайти туда пешеходов (постройку прорезает широкий «коридор»).
Комплекс Raakspoort - ратуша и кинотеатр © Christian Richters
Комплекс Raakspoort - ратуша и кинотеатр © Christian Richters


Композиция здания состоит из серии объемов, чтобы она, как и остальные корпуса Ракса, сочеталась с маломасштабной застройкой центра. Это особенно важно, так как Raakspoort вписался в линию исторических домов по границе старого города.
Комплекс Raakspoort - ратуша и кинотеатр © Christian Richters
Комплекс Raakspoort - ратуша и кинотеатр © Christian Richters


Фасады постройки облицованы кирпичом разного оттенка: более темные участки сложены нависающими друг над другом рядами, более светлая кладка — гладкая, с широкими полосами кремовой штукатурки. Такой прием также позволил зрительно разбить комплекс на меньшие части (при том, что его общая площадь — 18,5 тыс. м2).
Комплекс Raakspoort - ратуша и кинотеатр © Christian Richters
Комплекс Raakspoort - ратуша и кинотеатр © Christian Richters


Изначально Raakspoort должен был включать в себя кинотеатр и казино; в процессе консультаций с заказчиками эти учреждения менялись между собой местами: кинозалы под игральными, и наоборот. Их объединяло более чем равнодушное отношение к окнам: и тем, и другим предпринимателям они были не нужны, хотя монолитные стены не нравились архитекторам.

По счастью, казино решено было убрать, и его место заняли городские власти. Кирпич фасадов и часовая башня стали их инициативой: для харлемского мэра идеалом была ратуша Хилверсюма 1930-х годов архитектора Виллема Дудока.
Комплекс Raakspoort - ратуша и кинотеатр © Christian Richters
Комплекс Raakspoort - ратуша и кинотеатр © Christian Richters


Со стороны кинотеатра на месте Raakspoort находилось здание 19 в.: как ни пытались архитекторы сохранить его, согласовать его с функцией мультиплекса оказалось невозможным. Поэтому «Боллес + Уилсон» поступили по методу Карло Скарпы, восстанавливавшего так образ утраченных средневековых памятников. Архитекторы сохранили важные детали исторического фасада (рельефы и статуи, пышно декорированный портал и т. д.) и разместили их на новом здании как напоминание о прошлом.
Комплекс Raakspoort - ратуша и кинотеатр © Christian Richters
Комплекс Raakspoort - ратуша и кинотеатр © Christian Richters


Интерьеры помещений городской администрации проектировало бюро Döll architecten; они включают в себя двухсветный главный зал со стойками сотрудников, консультационными кабинетами и «точками самообслуживания»; выше расположены офисы трех городских департаментов, где традиционные кабинеты существуют в общем пространстве с рабочими местами свободного плана и переговорными. Источником вдохновения для создания интерьера стала картина голландской художницы 17 в. Юдит Лейстер «Веселый пьяница»; ее увеличенная репродукция помещена в главном зале.

Н. Ф.
Комплекс Raakspoort - ратуша и кинотеатр © Christian Richters
Комплекс Raakspoort - ратуша и кинотеатр © Christian Richters
Комплекс Raakspoort - ратуша и кинотеатр © Christian Richters
Комплекс Raakspoort - ратуша и кинотеатр © Christian Richters
Комплекс Raakspoort - ратуша и кинотеатр © Christian Richters
Комплекс Raakspoort - ратуша и кинотеатр © Christian Richters
Комплекс Raakspoort - ратуша и кинотеатр © Christian Richters
Комплекс Raakspoort - ратуша и кинотеатр © Christian Richters
Комплекс Raakspoort - ратуша и кинотеатр © Christian Richters
Комплекс Raakspoort - ратуша и кинотеатр © Christian Richters
Комплекс Raakspoort - ратуша и кинотеатр © Bolles+Wilson
Комплекс Raakspoort - ратуша и кинотеатр © Bolles+Wilson
Комплекс Raakspoort - ратуша и кинотеатр © Bolles+Wilson
Комплекс Raakspoort - ратуша и кинотеатр © Bolles+Wilson
Комплекс Raakspoort - ратуша и кинотеатр © Bolles+Wilson
Комплекс Raakspoort - ратуша и кинотеатр © Bolles+Wilson
Комплекс Raakspoort - ратуша и кинотеатр © Bolles+Wilson
Комплекс Raakspoort - ратуша и кинотеатр © Bolles+Wilson