Размещено на портале Архи.ру (www.archi.ru)

30.01.2012

Башня с эркерами

Объект:
Башня Jameson House
Адрес:
Канада, None, Ванкувер.
Мастерская:
Foster + Partners

В Ванкувере закончено строительство высотного здания по проекту бюро Нормана Фостера.

Башня Jameson House © Foster + Partners / Photo: Nigel Young
Башня Jameson House © Foster + Partners / Photo: Nigel Young
35-этажная башня Jameson House появилась в историческом центре города. Ее основание состыковано с двумя небольшими постройками 1920-х годов; от одной, впрочем, сохранился лишь фасад.
Башня Jameson House © Foster + Partners / Photo: Nigel Young
Башня Jameson House © Foster + Partners / Photo: Nigel Young


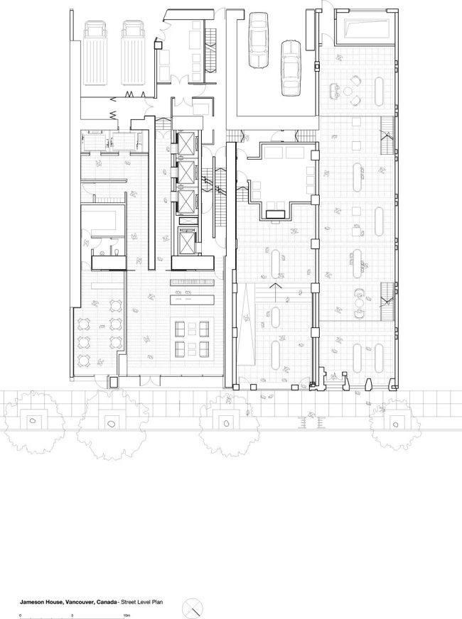
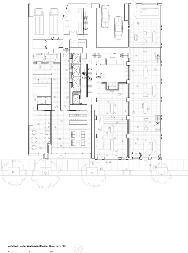
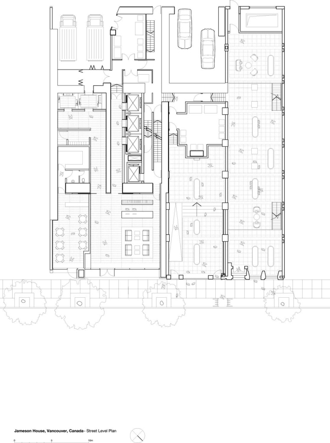
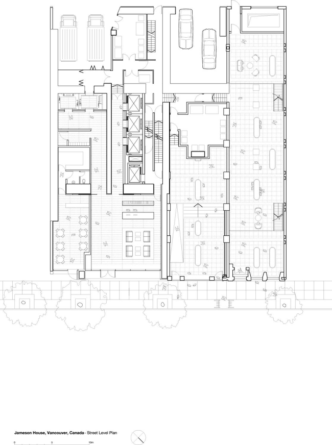
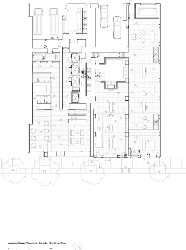
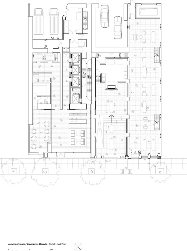
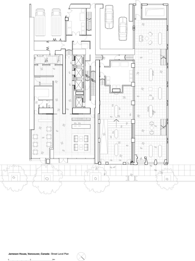
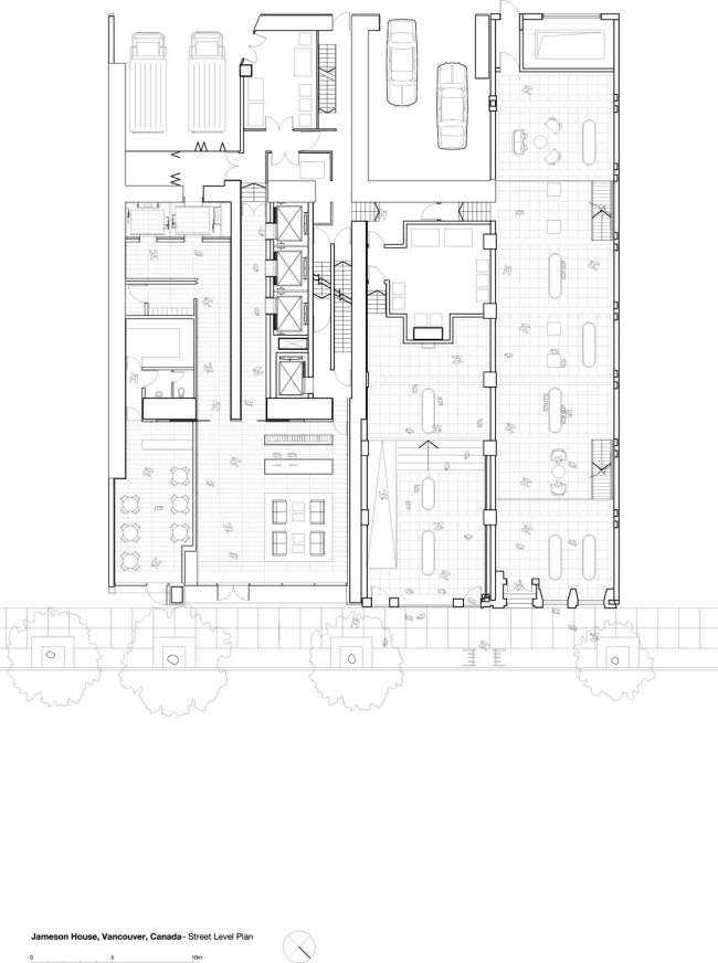
Два первых этажа здания занимают магазины, продолжая торговую зону на нижних ярусах соседних домов. Выше расположены 10 этажей офисов с плоской навесной стеной фасада; они завершаются на уровне карниза окружающих построек, подчиняясь их масштабу.
Башня Jameson House © Foster + Partners / Photo: Nigel Young
Башня Jameson House © Foster + Partners / Photo: Nigel Young


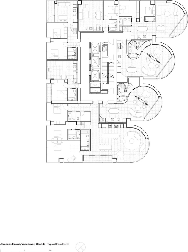
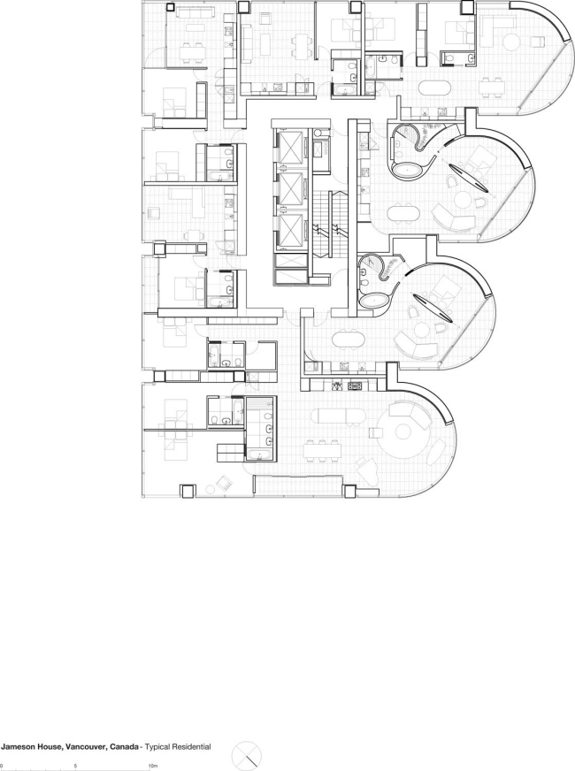
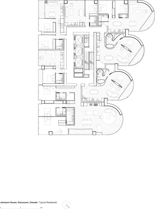
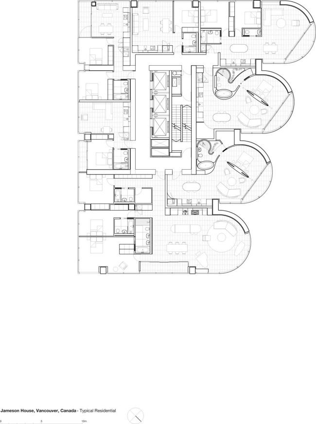
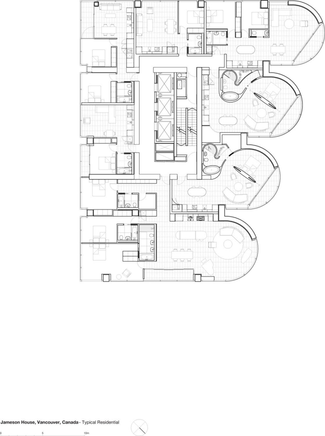
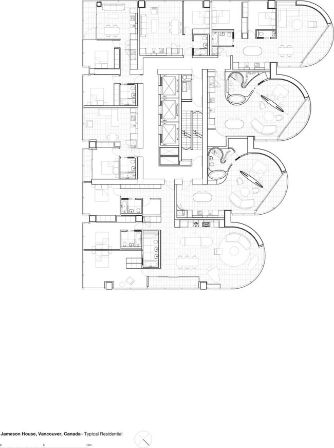
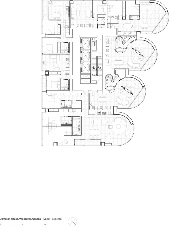
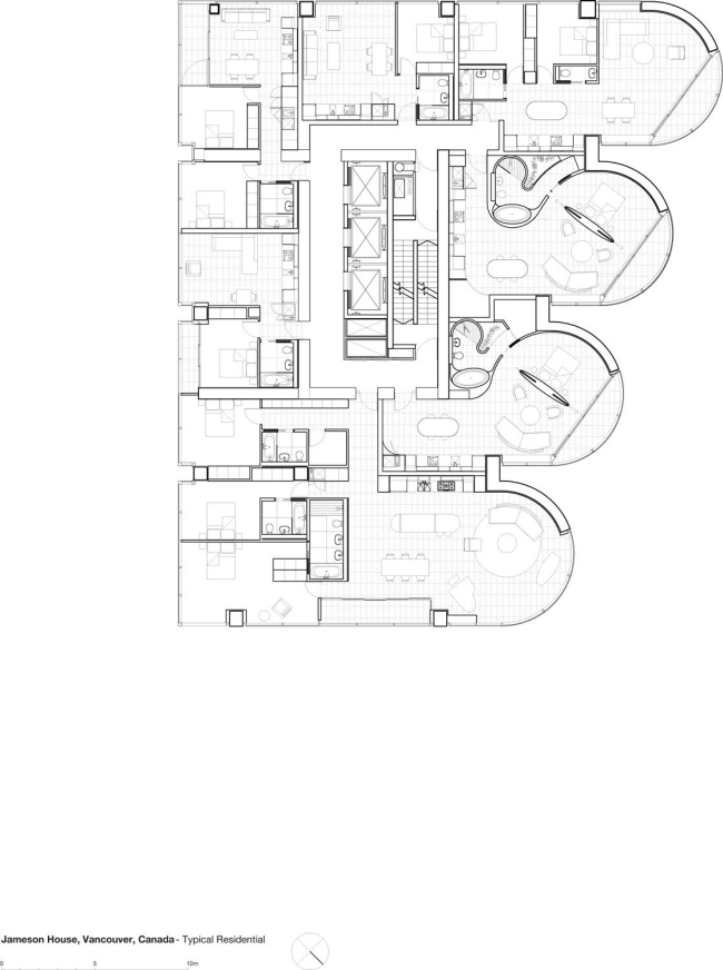
Выше находятся 23 этажа квартир: эта часть здания выступает над офисной «базой». Более того, ее главный фасад полностью занят четырьмя полукруглыми «эркерами», расположенным по кривой линии, чтобы не загораживать виды и солнечный свет окружающим сооружениям. Пространства в «эркерах» заняты гостиными; в Jameson House интерьерами также занимались архитекторы мастерской Фостера, что нечасто случается в таких крупных проектах. Башню завершает двухъярусный пентхаус и крыша с озелененными террасами.
Башня Jameson House © Foster + Partners / Photo: Nigel Young
Башня Jameson House © Foster + Partners / Photo: Nigel Young


В подземной части здания устроен гараж с автоматическим парковочным механизмом. Это позволило сэкономить на его размерах, освещении и т. д.

Н. Ф.
Башня Jameson House © Foster + Partners / Photo: Nigel Young
Башня Jameson House © Foster + Partners / Photo: Nigel Young
Башня Jameson House © Foster + Partners / Photo: Nigel Young
Башня Jameson House © Foster + Partners / Photo: Nigel Young
Башня Jameson House © Foster + Partners / Photo: Nigel Young
Башня Jameson House © Foster + Partners / Photo: Nigel Young
Башня Jameson House © Foster + Partners / Photo: Nigel Young
Башня Jameson House © Foster + Partners / Photo: Nigel Young
Башня Jameson House © Foster + Partners / Photo: Nigel Young
Башня Jameson House © Foster + Partners / Photo: Nigel Young
Башня Jameson House © Foster + Partners / Photo: Nigel Young
Башня Jameson House © Foster + Partners / Photo: Nigel Young
Башня Jameson House © Foster + Partners / Photo: Nigel Young
Башня Jameson House © Foster + Partners / Photo: Nigel Young
Башня Jameson House. План по уровню улицы © Foster + Partners
Башня Jameson House. План по уровню улицы © Foster + Partners
Башня Jameson House. План типового жилого этажа © Foster + Partners
Башня Jameson House. План типового жилого этажа © Foster + Partners
Башня Jameson House © Foster + Partners
Башня Jameson House © Foster + Partners
Башня Jameson House © Foster + Partners
Башня Jameson House © Foster + Partners