Размещено на портале Архи.ру (www.archi.ru)

26.01.2012

22 оттенка логотипа

Объект:
Штаб-квартира Немецкого автомобильного клуба (ADAC)
Адрес:
Германия, None, Мюнхен.
Мастерская:
Sauerbruch Hutton

В Мюнхене завершено строительство здания штаб-квартиры Немецкого автомобильного клуба (ADAC), спроектированного бюро «Зауербрух Хаттон».

Штаб-квартира Немецкого автомобильного клуба (ADAC). Фото с сайта baunetz.de
Штаб-квартира Немецкого автомобильного клуба (ADAC). Фото с сайта baunetz.de
Комплекс общей площадью 130 000 м2 состоит из 5-этажного цоколя и возвышающейся над ним 18-этажной башни (93 м). Углы обоих объемов плавно закруглены, но если неправильный треугольник плана башни выглядит вполне сдержанно, то многочисленные выступы ее базы заставили критиков сравнить ее с амебой.
Штаб-квартира Немецкого автомобильного клуба (ADAC). Фото с сайта baunetz.de
Штаб-квартира Немецкого автомобильного клуба (ADAC). Фото с сайта baunetz.de


В отношении фасадов ситуация прямо противоположная: стены основания покрыты серой штукатуркой и оживлены только полосами остекления. Башня, напротив, получила яркое решение вполне в духе «Зауербрух Хаттон»: архитекторы «извлекли» из ярко-желтого логотипа ADAC 22 оттенка желтого и оранжевого и окрасили ими 30 000 м2 навесной стены высотного здания.
Штаб-квартира Немецкого автомобильного клуба (ADAC). Фото с сайта baunetz.de
Штаб-квартира Немецкого автомобильного клуба (ADAC). Фото с сайта baunetz.de


Композиции придает динамизм смелое расположение башни: она поставлена на самый край цоколя и даже выступает за его пределы, образуя консольный вынос.
Штаб-квартира Немецкого автомобильного клуба (ADAC). Фото с сайта baunetz.de
Штаб-квартира Немецкого автомобильного клуба (ADAC). Фото с сайта baunetz.de


Сотрудники ADAC уже успели въехать в новое здание в конце декабря 2011, торжественное открытие запланировано на март 2012, но отношения архитекторов и заказчика не настраивают на праздничный лад: в связи с финансовыми разногласиями и другими проблемами «Зауербрух Хаттон» покинули проект еще в 2009, и их конфликт с ADAC сейчас рассматривается в суде.

Н. Ф.
Штаб-квартира Немецкого автомобильного клуба (ADAC). Фото с сайта baunetz.de
Штаб-квартира Немецкого автомобильного клуба (ADAC). Фото с сайта baunetz.de
Штаб-квартира Немецкого автомобильного клуба (ADAC). Фото с сайта baunetz.de
Штаб-квартира Немецкого автомобильного клуба (ADAC). Фото с сайта baunetz.de
Штаб-квартира Немецкого автомобильного клуба (ADAC). Фото с сайта baunetz.de
Штаб-квартира Немецкого автомобильного клуба (ADAC). Фото с сайта baunetz.de
Штаб-квартира Немецкого автомобильного клуба (ADAC). Фото с сайта baunetz.de
Штаб-квартира Немецкого автомобильного клуба (ADAC). Фото с сайта baunetz.de
Штаб-квартира Немецкого автомобильного клуба (ADAC). Фото с сайта baunetz.de
Штаб-квартира Немецкого автомобильного клуба (ADAC). Фото с сайта baunetz.de
Штаб-квартира Немецкого автомобильного клуба (ADAC). Фото с сайта baunetz.de
Штаб-квартира Немецкого автомобильного клуба (ADAC). Фото с сайта baunetz.de
Штаб-квартира Немецкого автомобильного клуба (ADAC). Фото с сайта baunetz.de
Штаб-квартира Немецкого автомобильного клуба (ADAC). Фото с сайта baunetz.de
Штаб-квартира Немецкого автомобильного клуба (ADAC). Фото с сайта baunetz.de
Штаб-квартира Немецкого автомобильного клуба (ADAC). Фото с сайта baunetz.de
Штаб-квартира Немецкого автомобильного клуба (ADAC). Фото с сайта baunetz.de
Штаб-квартира Немецкого автомобильного клуба (ADAC). Фото с сайта baunetz.de
Штаб-квартира Немецкого автомобильного клуба (ADAC). Фото с сайта baunetz.de
Штаб-квартира Немецкого автомобильного клуба (ADAC). Фото с сайта baunetz.de
Штаб-квартира Немецкого автомобильного клуба (ADAC). Фото с сайта baunetz.de
Штаб-квартира Немецкого автомобильного клуба (ADAC). Фото с сайта baunetz.de
Штаб-квартира Немецкого автомобильного клуба (ADAC). Фото с сайта baunetz.de
Штаб-квартира Немецкого автомобильного клуба (ADAC). Фото с сайта baunetz.de
Штаб-квартира Немецкого автомобильного клуба (ADAC) © Sauerbruch Hutton
Штаб-квартира Немецкого автомобильного клуба (ADAC) © Sauerbruch Hutton
Штаб-квартира Немецкого автомобильного клуба (ADAC) © Sauerbruch Hutton
Штаб-квартира Немецкого автомобильного клуба (ADAC) © Sauerbruch Hutton
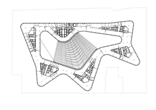
Штаб-квартира Немецкого автомобильного клуба (ADAC). План 1-го этажа © Sauerbruch Hutton
Штаб-квартира Немецкого автомобильного клуба (ADAC). План 1-го этажа © Sauerbruch Hutton
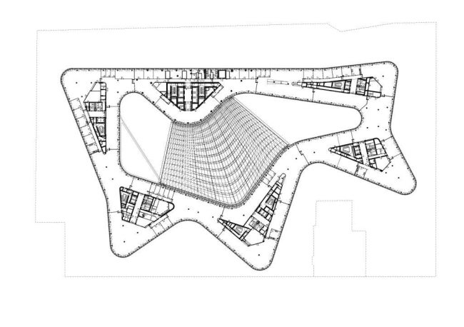
Штаб-квартира Немецкого автомобильного клуба (ADAC). План 2-го этажа © Sauerbruch Hutton
Штаб-квартира Немецкого автомобильного клуба (ADAC). План 2-го этажа © Sauerbruch Hutton
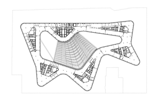
Штаб-квартира Немецкого автомобильного клуба (ADAC). План 4-го этажа © Sauerbruch Hutton
Штаб-квартира Немецкого автомобильного клуба (ADAC). План 4-го этажа © Sauerbruch Hutton
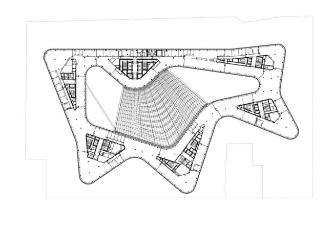
Штаб-квартира Немецкого автомобильного клуба (ADAC). План 11-го этажа © Sauerbruch Hutton
Штаб-квартира Немецкого автомобильного клуба (ADAC). План 11-го этажа © Sauerbruch Hutton