Размещено на портале Архи.ру (www.archi.ru)

16.01.2012

Две стихии цвета

Анна Мартовицкая
Объект:
Интерьер квартиры на ул.Микояна
Адрес:
Россия, Москва. улица Микояна
Архитектор:
Левон Айрапетов
Валерия Преображенская
Мастерская:
TOTEMENT/PAPER
Авторский коллектив:
Левон Айрапетов, Валерия Преображенская, Диана Грекова, Юлия Преснякова, Зоя Наливайко, Ирина Дьяконова, Андрей Гуляев

Неподалеку от Ходынского поля, в доме на улице авиаконструктора Микояна, архитектурное бюро TOTEMENT/PAPER реализовало проект жилого интерьера. Квартира, переделанная под руководством архитекторов, напоминает белый город, раскинувшийся под ночным небом.

Интерьер квартиры на ул.Микояна © Архитектурное бюро «Тотемент/Пейпер»
Интерьер квартиры на ул.Микояна © Архитектурное бюро «Тотемент/Пейпер»
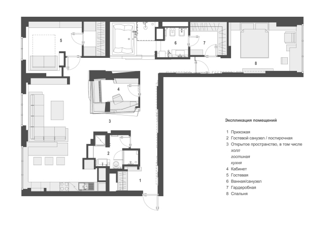
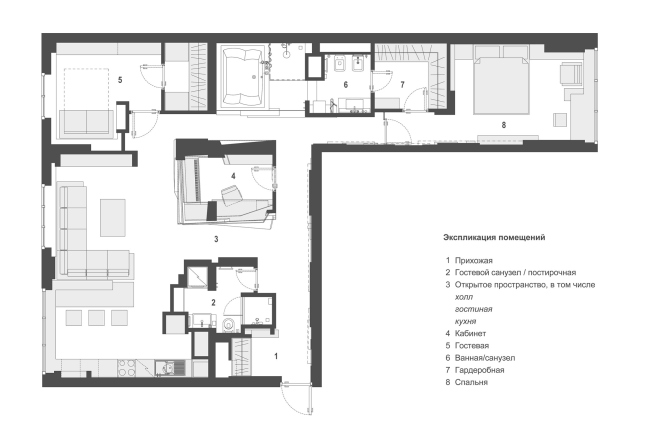
Квартира, дизайн-проект которой предстояло разработать бюро TOTEMENT/PAPER, изначально не отличалась оригинальной планировкой. В плане она представляла собой букву «Г»: основное прямоугольное пространство имело три окна, а длинный узкий аппендикс заканчивался еще одним. Площадь квартиры составляла 105 квадратных метров («по нынешним временам почти крошечная», – отмечают сами архитекторы), и все эти метры были «порезаны» несущими бетонными стенами на неудобные клетушки, что заранее исключало возможность тотальной перепланировки. Заказчик, между тем, хотел именно радикальных перемен: стильный футуристический дизайн и большое открытое пространство с кабинетом в центре. При этом пожеланий по изолированным приватным помещениям у него был минимум: одна гостевая комната и одна спальня с гардеробной и ванной. Архитекторы, особенно ценящие в своей работе нетривиальность задачи и сложность исходных условий, охотно взялись за этот проект.

Длинный аппендикс авторы трактовали как полностью приватное «крыло» хозяина, отделенное дверью от остальной квартиры. Небольшой коридор ведет в спальню, расположенную в торце, у окна, из него же можно попасть и в просторную гардеробную, а также в двухчастный санузел, одну из комнат которого занимает джакузи. На одной оси с частным блоком расположена и гостевая комната с собственной гардеробной, однако она уже непосредственно соседствует с общественной зоной, «занимая» одно из трех окон основного прямоугольника.

Полностью освободить центральную часть квартиры от несущих стен не представлялось возможным, поэтому архитекторы включили их в состав новой планировочной схемы. Фактически в неприкосновенности они оставили гостевой санузел, расположенный рядом с прихожей, а стены, отделяющие «прямоугольник» от аппендикса и задающие ортогональные векторы коридоров, использовали в качестве остова будущего кабинета.

«Для разворачивания пространства, зажатого несущими стенами и самой формой помещения, мы использовали принцип «динамического параллелепипеда» Казимира Малевича, – рассказывают авторы проекта. – Образованные с его помощью серии вертикалей и горизонталей создают новые объемы, «обволакивают» ими функциональные зоны и декорируют границы помещения, создавая необходимые пустоты и заполняя их воздухом». Вписывая многофункциональное пространство в прямоугольник с жестко заданными границами, архитекторы многократно обыгрывают геометризм исходной формы. Параллелепипеды здесь повсюду: из них сложены стены, из них же собраны предметы мебели и светильники. Этим приемом архитекторы создали новый, более мелкий масштаб, который визуально увеличил объем помещения, наполнив его вместо банальных прямых углов и длинных коридоров сложными телескопическими формами.

Границы жилого пространства существенно расширяются и за счет выбранной двухцветной палитры – все параллелепипеды, от мала до велика, здесь выкрашены в ослепительно белый цвет, тогда как «пустоты» – потолок и отдельные ниши – оформлены черным цветом. Сами архитекторы получившийся объем сравниваются с белым городом, раскинувшимся под ночным небом. «Белый цвет лучше всего выявляет форму, черный же символизирует дыру, пустоту», – комментируют они.

Архитектурный образ, в основу которого положена антагонистическая пара, – вообще один из самых излюбленных приемов TOTEMENT/PAPER, и в данном небольшом проекте бюро доводит его до абсолюта. Противостоя друг другу во всем, как два взаимоотталкивающихся магнита, белое и черное тем не менее не создают ощущение непересекающихся реальностей. Наоборот, архитекторы находят способ примирить две стихии цвета – и делают это в самом сердце всего интерьера, кабинете хозяина.

Это единственный непрямоугольный объект в данном пространстве, в котором белое и черное соединились, выйдя за отведенные им границы. Кабинет представляет своего рода футляр ломаных очертаний, две стены которого выполнены глухими (и это, естественно, белые поверхности), а еще две решены как экран из черного зеркала, почти не просматриваемого снаружи и прозрачного изнутри. Последний материал привносит в пространство гостиной нотку сюрреализма – выполненные из него наклонные поверхности изменяют в своем отражении все окружающее.

На создание данного проекта бюро TOTEMENT/PAPER вдохновил архитектон Казимира Малевича, и получившийся интерьер, несмотря на всю его подчеркнутую современность, сполна отдает дать этому архитектору. В том числе и с помощью цветовой гаммы: черный и белый здесь дополняют лишь редчайшие вкрапления ярко-красного – символа движения и энергии, столь любимого великим авангардистом.
Интерьер квартиры на ул.Микояна © Архитектурное бюро «Тотемент/Пейпер»
Интерьер квартиры на ул.Микояна © Архитектурное бюро «Тотемент/Пейпер»
Интерьер квартиры на ул.Микояна © Архитектурное бюро «Тотемент/Пейпер»
Интерьер квартиры на ул.Микояна © Архитектурное бюро «Тотемент/Пейпер»
Интерьер квартиры на ул.Микояна © Архитектурное бюро «Тотемент/Пейпер»
Интерьер квартиры на ул.Микояна © Архитектурное бюро «Тотемент/Пейпер»
Интерьер квартиры на ул.Микояна © Архитектурное бюро «Тотемент/Пейпер»
Интерьер квартиры на ул.Микояна © Архитектурное бюро «Тотемент/Пейпер»
Интерьер квартиры на ул.Микояна © Архитектурное бюро «Тотемент/Пейпер»
Интерьер квартиры на ул.Микояна © Архитектурное бюро «Тотемент/Пейпер»
Интерьер квартиры на ул.Микояна © Архитектурное бюро «Тотемент/Пейпер»
Интерьер квартиры на ул.Микояна © Архитектурное бюро «Тотемент/Пейпер»
Интерьер квартиры на ул.Микояна © Архитектурное бюро «Тотемент/Пейпер»
Интерьер квартиры на ул.Микояна © Архитектурное бюро «Тотемент/Пейпер»
Интерьер квартиры на ул.Микояна © Архитектурное бюро «Тотемент/Пейпер»
Интерьер квартиры на ул.Микояна © Архитектурное бюро «Тотемент/Пейпер»
Интерьер квартиры на ул.Микояна © Архитектурное бюро «Тотемент/Пейпер»
Интерьер квартиры на ул.Микояна © Архитектурное бюро «Тотемент/Пейпер»