Размещено на портале Архи.ру (www.archi.ru)

11.01.2012

Мраморное оригами

Объект:
Офисное здание Origami - штаб-квартира Barclays Capital Bank
Адрес:
Франция, None, Париж.

Мануэль Готран возвела штаб-квартиру Barclays Capital Bank в центре Парижа.

Офисное здание Origami - штаб-квартира Barclays Capital Bank © Manuelle Gautrand Architecture
Офисное здание Origami - штаб-квартира Barclays Capital Bank © Manuelle Gautrand Architecture
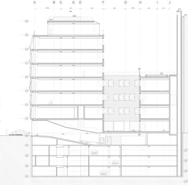
Речь идет об офисном здании общей площадью 5800 м2 близ площади Звезды с ее знаменитой Триумфальной аркой. Его окружают доходные дома 2-й половины 19 в., поэтому, чтобы согласовать новую постройку с историческим окружением, было решено закрыть стеклянную навесную стену фасада мраморным солнцезащитным экраном.
Офисное здание Origami - штаб-квартира Barclays Capital Bank © Manuelle Gautrand Architecture
Офисное здание Origami - штаб-квартира Barclays Capital Bank © Manuelle Gautrand Architecture


Этот экран представляет собой легкую конструкцию из двух слоев стекла и очень тонкого слоя мрамора с ярко выраженным рисунком. Сложная конфигурация проемов и заполненных частей напоминает оригами; в нескольких участках фасада из двухмерной она становится трехмерной, превращаясь в рельеф. Кроме предохранения интерьера от перегрева экран также обеспечивает работникам (их порядка 300) защиту от взглядов с улицы.
Офисное здание Origami - штаб-квартира Barclays Capital Bank © Manuelle Gautrand Architecture
Офисное здание Origami - штаб-квартира Barclays Capital Bank © Manuelle Gautrand Architecture


Наряду с основным, выходящим на бульвар корпусом, Готран спроектировала еще один, в глубине квартала: там находятся кафе для сотрудников, комнаты для переговоров и другие помещения, требующие большей тишины и уединения. Обе части здания соединены двумя озелененными внутренними дворами. На крыше также устроен сад, делящий ее пространство с обшитой деревом прогулочной террасой.

Н. Ф.
Офисное здание Origami - штаб-квартира Barclays Capital Bank © Manuelle Gautrand Architecture
Офисное здание Origami - штаб-квартира Barclays Capital Bank © Manuelle Gautrand Architecture
Офисное здание Origami - штаб-квартира Barclays Capital Bank © Manuelle Gautrand Architecture
Офисное здание Origami - штаб-квартира Barclays Capital Bank © Manuelle Gautrand Architecture
Офисное здание Origami - штаб-квартира Barclays Capital Bank © Manuelle Gautrand Architecture
Офисное здание Origami - штаб-квартира Barclays Capital Bank © Manuelle Gautrand Architecture
Офисное здание Origami - штаб-квартира Barclays Capital Bank © Manuelle Gautrand Architecture
Офисное здание Origami - штаб-квартира Barclays Capital Bank © Manuelle Gautrand Architecture
Офисное здание Origami - штаб-квартира Barclays Capital Bank © Manuelle Gautrand Architecture
Офисное здание Origami - штаб-квартира Barclays Capital Bank © Manuelle Gautrand Architecture
Офисное здание Origami - штаб-квартира Barclays Capital Bank © Manuelle Gautrand Architecture
Офисное здание Origami - штаб-квартира Barclays Capital Bank © Manuelle Gautrand Architecture
Офисное здание Origami - штаб-квартира Barclays Capital Bank © Manuelle Gautrand Architecture
Офисное здание Origami - штаб-квартира Barclays Capital Bank © Manuelle Gautrand Architecture
Офисное здание Origami - штаб-квартира Barclays Capital Bank © Manuelle Gautrand Architecture
Офисное здание Origami - штаб-квартира Barclays Capital Bank © Manuelle Gautrand Architecture
Офисное здание Origami - штаб-квартира Barclays Capital Bank © Manuelle Gautrand Architecture
Офисное здание Origami - штаб-квартира Barclays Capital Bank © Manuelle Gautrand Architecture
Офисное здание Origami - штаб-квартира Barclays Capital Bank © Manuelle Gautrand Architecture
Офисное здание Origami - штаб-квартира Barclays Capital Bank © Manuelle Gautrand Architecture
Офисное здание Origami - штаб-квартира Barclays Capital Bank © Manuelle Gautrand Architecture
Офисное здание Origami - штаб-квартира Barclays Capital Bank © Manuelle Gautrand Architecture
Офисное здание Origami - штаб-квартира Barclays Capital Bank © Manuelle Gautrand Architecture
Офисное здание Origami - штаб-квартира Barclays Capital Bank © Manuelle Gautrand Architecture
Офисное здание Origami - штаб-квартира Barclays Capital Bank © Manuelle Gautrand Architecture
Офисное здание Origami - штаб-квартира Barclays Capital Bank © Manuelle Gautrand Architecture
Офисное здание Origami - штаб-квартира Barclays Capital Bank © Manuelle Gautrand Architecture
Офисное здание Origami - штаб-квартира Barclays Capital Bank © Manuelle Gautrand Architecture
Офисное здание Origami - штаб-квартира Barclays Capital Bank © Manuelle Gautrand Architecture
Офисное здание Origami - штаб-квартира Barclays Capital Bank © Manuelle Gautrand Architecture
Офисное здание Origami - штаб-квартира Barclays Capital Bank © Manuelle Gautrand Architecture
Офисное здание Origami - штаб-квартира Barclays Capital Bank © Manuelle Gautrand Architecture
Офисное здание Origami - штаб-квартира Barclays Capital Bank © Manuelle Gautrand Architecture
Офисное здание Origami - штаб-квартира Barclays Capital Bank © Manuelle Gautrand Architecture
Офисное здание Origami - штаб-квартира Barclays Capital Bank © Manuelle Gautrand Architecture
Офисное здание Origami - штаб-квартира Barclays Capital Bank © Manuelle Gautrand Architecture
Офисное здание Origami - штаб-квартира Barclays Capital Bank © Manuelle Gautrand Architecture
Офисное здание Origami - штаб-квартира Barclays Capital Bank © Manuelle Gautrand Architecture
Офисное здание Origami - штаб-квартира Barclays Capital Bank © Manuelle Gautrand Architecture
Офисное здание Origami - штаб-квартира Barclays Capital Bank © Manuelle Gautrand Architecture
Офисное здание Origami - штаб-квартира Barclays Capital Bank © Manuelle Gautrand Architecture
Офисное здание Origami - штаб-квартира Barclays Capital Bank © Manuelle Gautrand Architecture
Офисное здание Origami - штаб-квартира Barclays Capital Bank © Manuelle Gautrand Architecture
Офисное здание Origami - штаб-квартира Barclays Capital Bank © Manuelle Gautrand Architecture