Размещено на портале Архи.ру (www.archi.ru)

22.12.2011

Таблетка комфорта

Анна Мартовицкая
Объект:
Офисные помещения компании Sanofi-Aventis
Адрес:
Россия, Москва. Тверская ул., 22
Мастерская:
Архитектурная мастерская Сергея Эстрина
Авторский коллектив:
С.Эстрин, Р.Фомин (ГИП), Ю.Шереметьева (ГАП). Архитекторы: Б.Елагин, Т.Гришина, О.Бурковская, В.Пасынков

Летом этого года «Архитектурная мастерская Сергея Эстрина» реализовала проект нового офиса компании Sanofi-Aventis. Ведущая фармацевтическая корпорация переехала в бизнес-центр на Тверской улице, арендовав в нем сразу четыре этажа, типовое пространство которых архитекторы наполнили светом, цветом и буйной растительностью.

Свой новый офис – в бизнес-центре, построенном на месте гостиницы «Минск», – компания Sanofi-Aventis выбрала, в первую очередь, за чрезвычайно удобное расположение в самом центре города, на одной из его главных улиц. Однако у подобного географического преимущества были и свои слабые стороны: в частности, здание на Тверской имело очень жесткие ограничения по высоте, что неизбежно повлекло за собой появление этажей с довольно низкими потолками. При первом же знакомстве с арендованными помещениями Сергей Эстрин и его команда поняли, что основное, с чем им придется бороться, это ощущение давящих перекрытий. Нельзя было назвать слишком удачной и исходную планировку этажей – по центру они прорезаны прямоугольным атриумом, однако его площадь несоизмеримо меньше площади самого этажа и поэтому он фактически «теряется» в пространстве.

«Первые наброски получались очень скучными: крошечный атриум, «толстые» помещения по его периметру, куча коммуникаций, которые никуда нельзя было перенести, – вспоминает Сергей Эстрин. – Я крутил этот план и так и эдак, пока, наконец, не придумал пробить этажи несколькими сквозными проходами, которые не параллельны друг другу». Всего таких осей-коридоров четыре, и лишь два из них пересекаются под прямым углом и воспроизводят жесткую геометрию атриума, тогда как два других идут совершенно вразнобой. Варьируется и их ширина – они то сужаются, то расширяются, иногда и вовсе прерываются открытыми переговорными, благодаря чему архитекторам удалось избавиться от той визуальной монотонности, которая чаще всего отличает офисные коридоры. Важно и то, что каждая из получившихся галерей не заканчивается банальным тупиком, но ориентирована на помещение, которое, в свою очередь, обращено в атриум, либо выходит в зимний сад. Это наполняет довольно узкие проходы дополнительным светом и «воздухом», а главное позволяет создать очень разные ракурсы, делающие коридоры совершенно не похожими друг на друга.

Частично компенсировать скромную высоту этажей архитекторы постарались за счет очень низких фальшполов и тонкой обшивки самих потолков (для этих целей использованы перфорированные гипсокартонные листы), но большую часть работы по «удержанию» потолка на должном уровне, конечно, взяли на себя светильники. В одних коридорах архитекторы использовали вытянутые лампы, по длине сопоставимые с самими галереями и дающие ровный легкий свет, в других, наоборот, применили разнонаправленные крошечные светильники, вставленные в декоративные щели, дробящие пространство на отдельные сегменты. Специальные лампы дневного света использованы в зонах зимних садов, а для переговорных, конференц-залов, кофепоинтов и стойки ресепшн архитекторы выбрали крупные круглые плафоны, которые безошибочно идентифицируются с таблетками – основным продуктом компании Sanofi-Aventis.

Главная переговорная компании соседствует с зимним садом, и к ее оформлению заказчики выдвигали особые требования. В частности, перед архитекторами была поставлена задача предусмотреть возможность затемнения стекла, обращенного в сад, в тех случаях, когда в переговорной идут конфиденциальные встречи и не предназначенные для чужих глаз презентации. На этом же стекле заказчики просили разместить карту России, на которой были бы обозначены города, где присутствует Sanofi-Aventis. «Фактически нам предстояло придумать карту, которая была бы прозрачной, иначе переговорная была бы отрезана от зеленой зоны, – поясняет Сергей Эстрин. – Эту нетривиальную задачу мы решили с помощью многослойного стекла. Один его слой выполнен из стекла с жидкокристаллической пленкой, которая может затемняться, а второй представляет собой триплекс с выгравированным периметром карты». К каждому городу страны архитекторы также подвели светодиоды на токопроводящем прозрачном клее – при желании заказчик может зажигать те населенные пункты, в которых работает, а по мере расширения бизнеса подключать все новые города. В описании этот замысел звучит довольно громоздко, но благодаря именно такому решению сама карта получилась легкой и полупрозрачной как паутинка и не мешает растениям быть частью интерьера переговорной.

Еще один элемент из стекла – одновременно функциональный и декоративный – появился в интерьере компании почти случайно. Уже на стадии реализации проекта выяснилось, что перед зоной ресепшн имеется вентстояк, который владелец здания никуда переносить не собирается, и замаскировать его Сергей Эстрин придумал с помощью полупрозрачной загородки, на которой со стороны входа начертаны слова миссии компании. Эта лаконичная ширма не только оттеняет динамичный силуэт белоснежно-синей стойки ресепшн, но и удачно зонирует входное пространство – за ней посетители могут оставить одежду, курьеры – почту или новогодние подарки.

Корпоративный цвет Sanofi-Aventis – глубокий синий, – и в оформлении всех четырех этажей, арендованных компанией, он присутствует. Правда, учитывая его насыщенность, архитекторы старались использовать его с осторожностью. И если во входной зоне этот тон предсказуемо доминирует, то в остальных пространствах он присутствует в виде отдельных акцентов, а дополняют его песочно-желтый, светло-серый, светло-голубой и оранжевый. Благодаря подобному многообразию палитры, офис Sanofi-Aventis выглядит комфортным и светлым, подчеркивая и масштаб этой компании, и ее ориентированность в будущее.
Зона ресепшн. Эскиз Сергея Эстрина
Зона ресепшн. Эскиз Сергея Эстрина
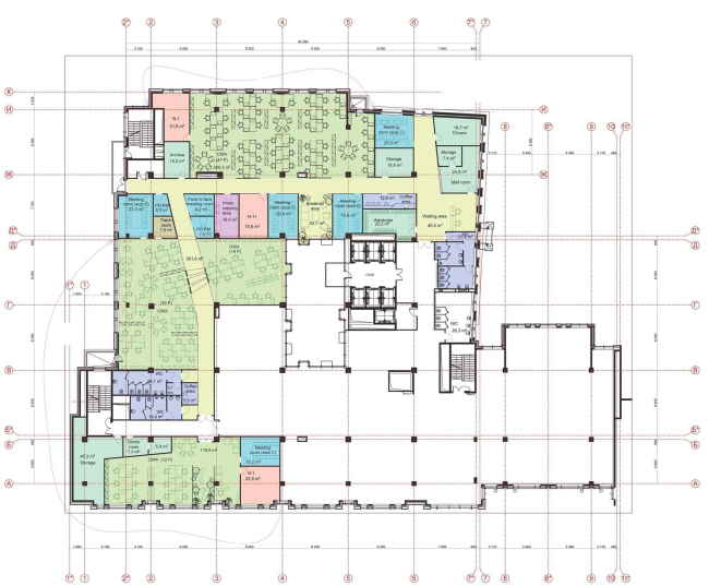
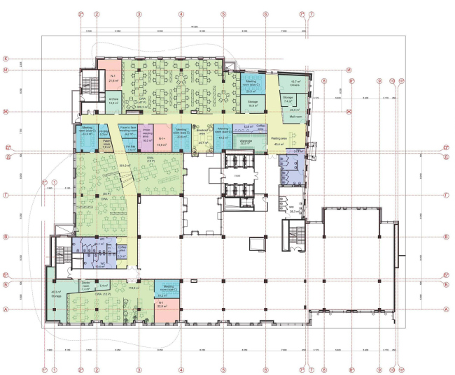
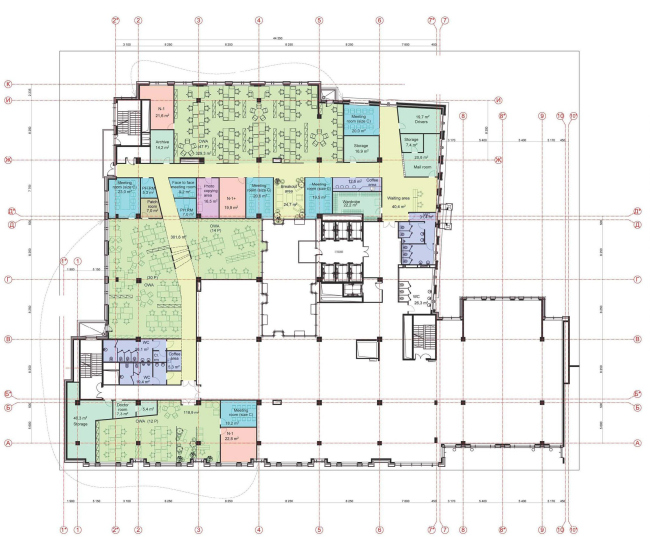
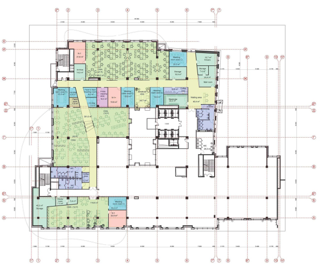
План 5 этажа
План 5 этажа
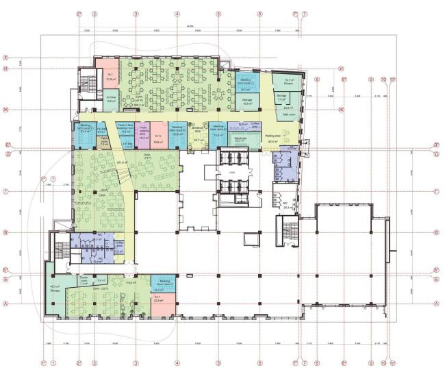
План 6 этажа
План 6 этажа
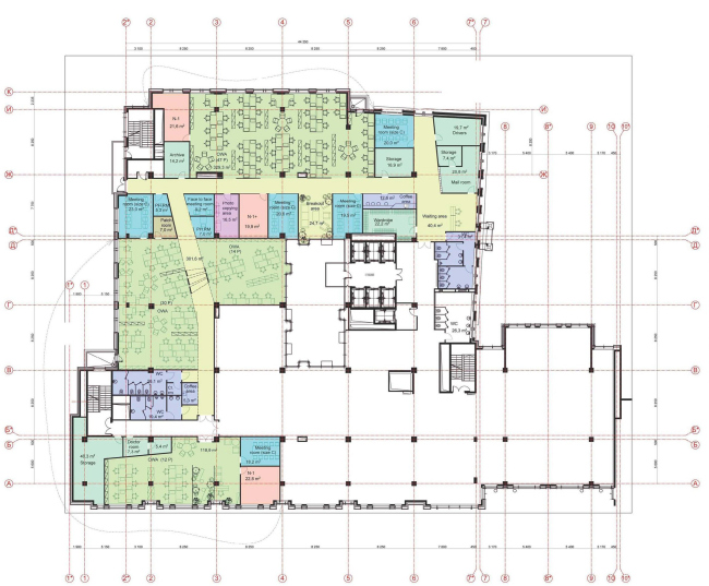
План 7 этажа
План 7 этажа
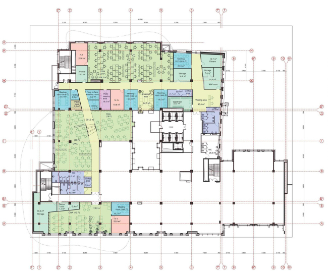
План 8 этажа
План 8 этажа