Размещено на портале Архи.ру (www.archi.ru)

13.12.2011

Корабль бескрайней степи

Анна Мартовицкая
Объект:
Коттеджный поселок «Старочеркасская ривьера»
Адрес:
Россия, Ростов-на-Дону.
Архитектор:
Андрей Асадов
Александр Асадов
Мастерская:
АБ ASADOV
Авторский коллектив:
Архитекторы: А.Асадов, А.А.Асадов, А.Виноградова, И.Коренев, К.Жариков; менеджеры проекта: Г.Каркло, Т.Петрова

Под Ростовом-на-Дону Александр и Андрей Асадовы спроектировали коттеджный поселок «Старочеркасская Ривьера», который сегодня вступил в стадию реализации.

Коттеджный поселок «Старочеркасская ривьера» © Архитектурное бюро Асадова
Коттеджный поселок «Старочеркасская ривьера» © Архитектурное бюро Асадова
«Старочеркасская Ривьера» расположена в 17 километрах от Ростова-на-Дону, в районе архитектурного заповедника Старочеркасской станицы, живописные окрестности которой уже давно облюбованы инвесторами. Поселок, реализуемый Азово-Донской девелоперской компанией, расположен в просторной пойме реки Дон и на самом деле входит в состав целой агломерации частных домовладений. В частности, участок, на котором реализуется «Старочеркасская Ривьера», вплотную примыкает к 1 очереди этого проекта – поселку, получившему название Riverside.

Нужно сказать, что величественная река и для архитекторов Асадовых стала ключевым фактором при разработке генплана будущего поселения. В частности, то обстоятельство, что участок имеет довольно узкую форму и вытянут вдоль Дона, продиктовало создание нескольких «линий» застройки, постепенно удаляющихся от водной глади. Участки на получившейся первой линии застройки непосредственно выходят на  благоустроенную набережную реки, а между 2 и 3 линиями архитекторы расположили центральный бульвар поселка. Впрочем, активную пластику генплану придает не только плавно изгибающееся русло реки, но и искусственная марина – далеко вглубь территории архитекторы отводят водный рукав, по своей форме в плане напоминающий петлю или большую перевернутую запятую. Соответственно, и все продольные улицы в поселке, включая уже упомянутый центральный бульвар, оказываются не прямыми, а послушно изгибаются, обходя  искусственный водоем. Благодаря этому архитекторам удается избежать монотонности планировки, казалось бы, изначально заданной самой конфигурацией земельного надела.

«Начиная с общей планировки и кончая типологией домов, мы пытались развить идеи тотального разнообразия в архитектуре, – рассказывает Андрей Асадов. –  А поскольку планировка всех участков изначально должна была использовать преимущество расположения поселка у реки, мы посадили коттеджи со сдвигом на один участок. Благодаря этому простому приему, каждый из них получает свой сектор видимости на воду».

Повидав за свою практику очень много самых разных коттеджных поселков, отец и сын Асадовы понимали, что главный враг подобной застройки – однообразие. И хотя первым и основным средством борьбы с этим недугом является генплан, не менее важны архитектурные решения, разработанные для самих коттеджей, и здесь авторы проекта постарались сделать все возможное. «Мы разработали несколько типов домов, к каждому из которых предполагались множественные вариации по отделке, так что в результате получилось, что практически все жилье в поселке чем-то отличается друг от друга», – поясняет Андрей Асадов.

В самом этом описании можно уловить методологическое сходство с концепцией «Лоскутки»,  которую архитекторы представляли на самый первый конкурс «Дом XXI века». Основная идея «Лоскутков» заключалась в том, что из нескольких базовых модулей можно составить множество жилых комбинаций, а различные варианты отделки фасадов и крыш еще больше разнообразят визуальную среду и придадут каждому объему индивидуальный характер. Проектировщики не скрывают, что именно этот принцип создания «каталога» домов, конечно, с поправкой на загородную типологию, был использован в проекте «Старочеркасской ривьеры». В основу архитектурного решения коттеджей лег образ «скорлупы», защищающей от посторонних взглядов соседей и прохожих и, вместе с тем, раскрывающей дом в сторону реки. Каждый дом в плане напоминает раструб, а широкий «капюшон» его кровли позволяет организовать большую террасу, ориентированную на Дон. И хотя на самом деле в поселке запроектировано всего 4 типа домов, за счет разнообразия палитры и отделочных материалов архитекторам удается достичь эффекта подлинной пестроты застройки.

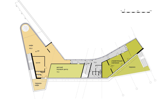
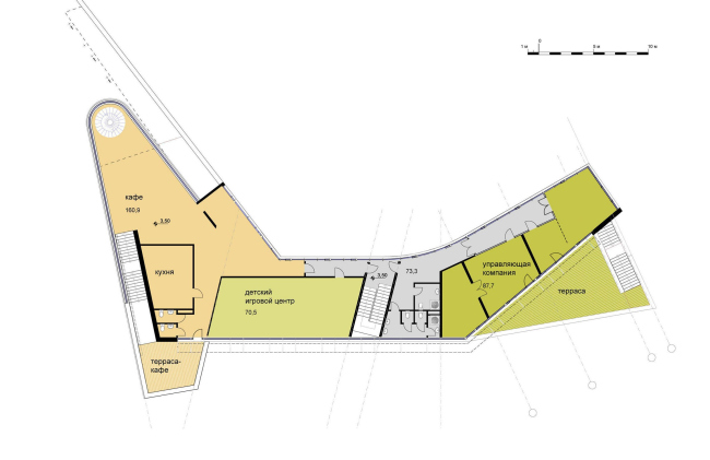
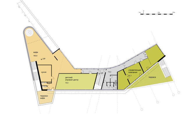
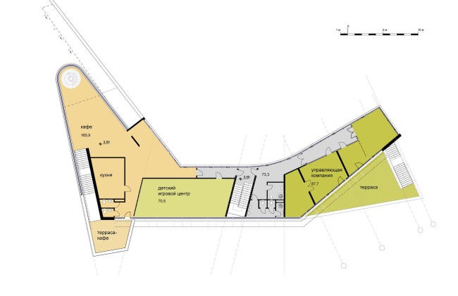
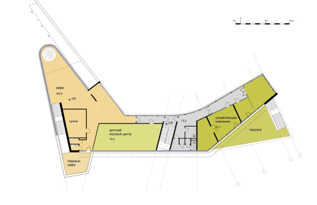
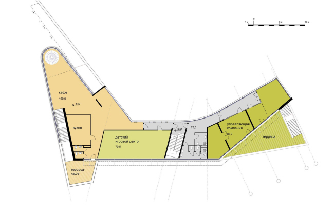
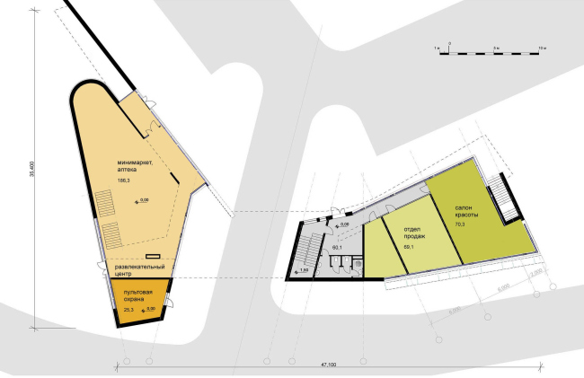
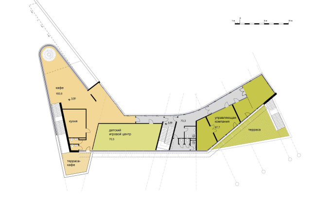
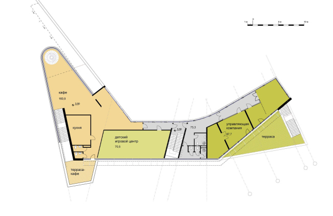
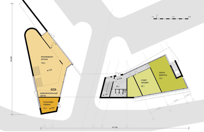
Визитной карточкой всего комплекса служит здание въездной группы. Оно задумано архитекторами одновременно и как своеобразный «маяк» на въезде в поселок, и как смотровая площадка, с которой открывается вид на будущие землевладения и бескрайние просторы казачьих степей. Последняя расположена на верхнем уровне башни, и подняться на нее можно как из самого здания, так и непосредственно с улицы. Соответственно, сам комплекс представляет собой ассиметричную композицию, одно крыло которой вздымается как нос корабля. В этой части комплекса расположены минимаркет, аптека и развлекательный центр, в противоположном же крыле разместились салон красоты и отдел продаж компании-застройщика, а в арке-галерее, соединяющей два объема и превращающей их в полноценные въездные ворота, архитекторы предусмотрели детский центр и кафе. Здание расчерчено динамичными стеклянными горизонталями окон и облицовано бежево-песчаным бакинским камнем, цвет которого идеально рифмуется и с южной архитектурой в целом, и со сдержанным колоритом окружающей поселок степи.

В этом году «Старочеркасская ривьера» вступила в стадию реализации. Правда, как это часто случается с региональными проектами, разработка рабочей документации и авторский надзор были поручены местным зодчим. Как рассказывает Андрей Асадов, в итоге и дома строятся по проектам ростовских проектировщиков, хотя в основу застройки поселка лег разработанный Асадовыми генплан. «Фактически от нашей концепции здесь, помимо генплана, осталось только здание въездной группы, которое было реализовано строго по эскизному проекту и вполне ему соответствует, – комментирует ситуацию архитектор. – И должен признаться, что при всех минусах подобной реализации у нее есть одно интересное преимущество – когда в качестве основы будущего «знакового» объекта берется эскиз одного из известных архитектурных бюро и воплощается в жизнь усилиями местных специалистов, проект выполняется во всей свежести первоначального решения, не успевая «засохнуть» в процессе проработки. Причина очень проста: местным специалистам дается строгий наказ со стороны заказчиков в точности соответствовать эскизу, вплоть до рисунка переплетов. Так случилось и с нашей въездной группой, и мы результатом в целом довольны».
Коттеджный поселок «Старочеркасская ривьера» © Архитектурное бюро Асадова
Коттеджный поселок «Старочеркасская ривьера» © Архитектурное бюро Асадова
Коттеджный поселок «Старочеркасская ривьера» © Архитектурное бюро Асадова
Коттеджный поселок «Старочеркасская ривьера» © Архитектурное бюро Асадова
Коттеджный поселок «Старочеркасская ривьера» © Архитектурное бюро Асадова
Коттеджный поселок «Старочеркасская ривьера» © Архитектурное бюро Асадова
Коттеджный поселок «Старочеркасская ривьера» © Архитектурное бюро Асадова
Коттеджный поселок «Старочеркасская ривьера» © Архитектурное бюро Асадова
Коттеджный поселок «Старочеркасская ривьера» © Архитектурное бюро Асадова
Коттеджный поселок «Старочеркасская ривьера» © Архитектурное бюро Асадова
Коттеджный поселок «Старочеркасская ривьера» © Архитектурное бюро Асадова
Коттеджный поселок «Старочеркасская ривьера» © Архитектурное бюро Асадова
Коттеджный поселок «Старочеркасская ривьера» © Архитектурное бюро Асадова
Коттеджный поселок «Старочеркасская ривьера» © Архитектурное бюро Асадова
Коттеджный поселок «Старочеркасская ривьера» © Архитектурное бюро Асадова
Коттеджный поселок «Старочеркасская ривьера» © Архитектурное бюро Асадова
Коттеджный поселок «Старочеркасская ривьера» © Архитектурное бюро Асадова
Коттеджный поселок «Старочеркасская ривьера» © Архитектурное бюро Асадова
Коттеджный поселок «Старочеркасская ривьера» © Архитектурное бюро Асадова
Коттеджный поселок «Старочеркасская ривьера» © Архитектурное бюро Асадова
Коттеджный поселок «Старочеркасская ривьера» © Архитектурное бюро Асадова
Коттеджный поселок «Старочеркасская ривьера» © Архитектурное бюро Асадова
Коттеджный поселок «Старочеркасская ривьера» © Архитектурное бюро Асадова
Коттеджный поселок «Старочеркасская ривьера» © Архитектурное бюро Асадова