Размещено на портале Архи.ру (www.archi.ru)

28.11.2011

Вибрирующий свет

Объект:
Школа коммуникаций Westerdals
Адрес:
Норвегия, None, Осло.

Кристин Ярмунд построила здание Школы коммуникаций Westerdals в Осло.

Школа коммуникаций Westerdals. Фото KJARK - Benjamin Hummitzsc
Школа коммуникаций Westerdals. Фото KJARK - Benjamin Hummitzsc
Школа с заметными черно-желтым фасадами расположена в новом многофункциональном комплексе Vulkan, бывшей промзоне; неподалеку — живописные берега реки Акерсэльвы и популярный парк Куба.
Школа коммуникаций Westerdals. Фото KJARK - Benjamin Hummitzsc
Школа коммуникаций Westerdals. Фото KJARK - Benjamin Hummitzsc
Школа коммуникаций Westerdals. Фото KJARK - Benjamin Hummitzsc
Школа коммуникаций Westerdals. Фото KJARK - Benjamin Hummitzsc


Подземный этаж здания больше по площади его наземной части; из-за этого на уровне земли постройку обрамляет пояс остекления. Днем через прозрачную «вымостку» свет проникает в подвальный уровень, в темное время суток, наоборот, свет, поступающий снизу, подсвечивает фасады школы. За счет этого создается ощущение, будто здание «вибрирует» в границах своего периметра.
Школа коммуникаций Westerdals. Фото KJARK - Benjamin Hummitzsc
Школа коммуникаций Westerdals. Фото KJARK - Benjamin Hummitzsc
Школа коммуникаций Westerdals. Фото Нины Фроловой
Школа коммуникаций Westerdals. Фото Нины Фроловой


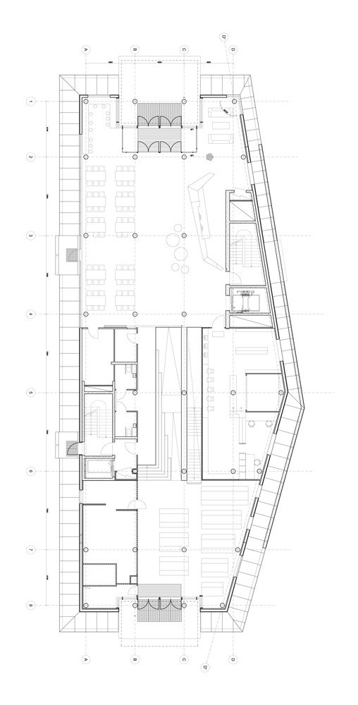
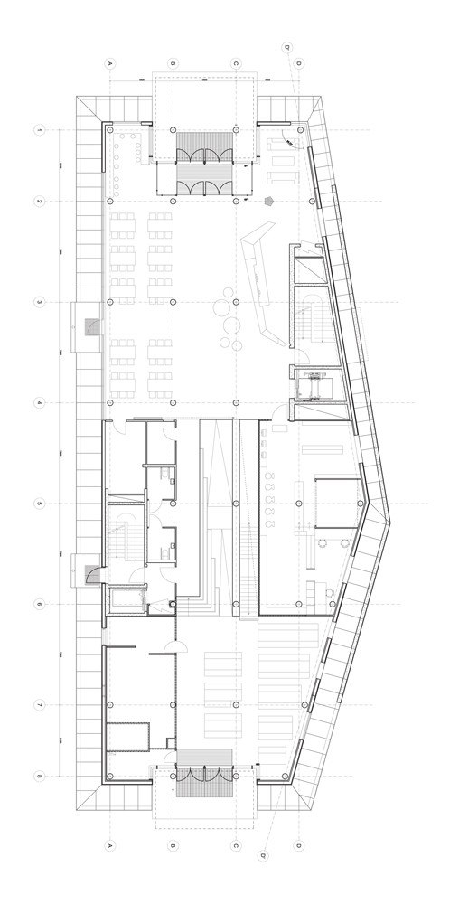
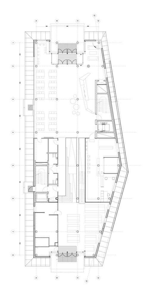
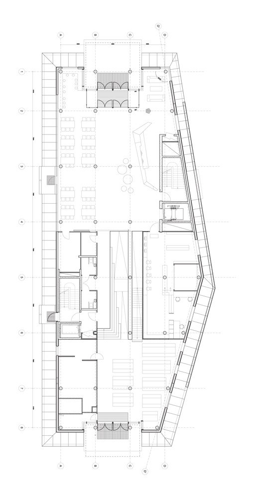
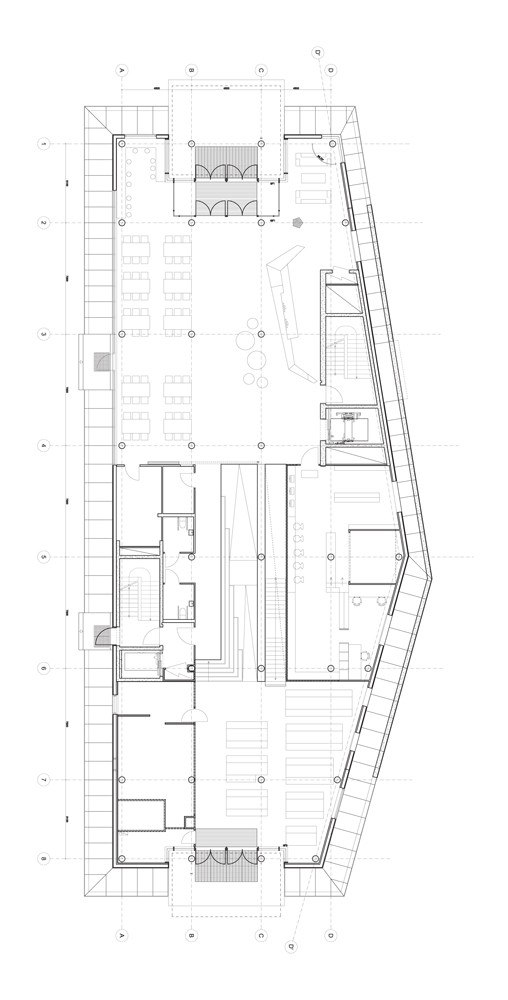
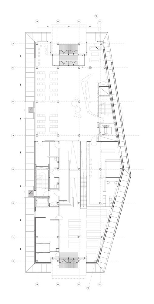
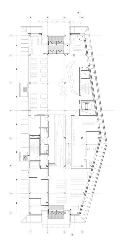
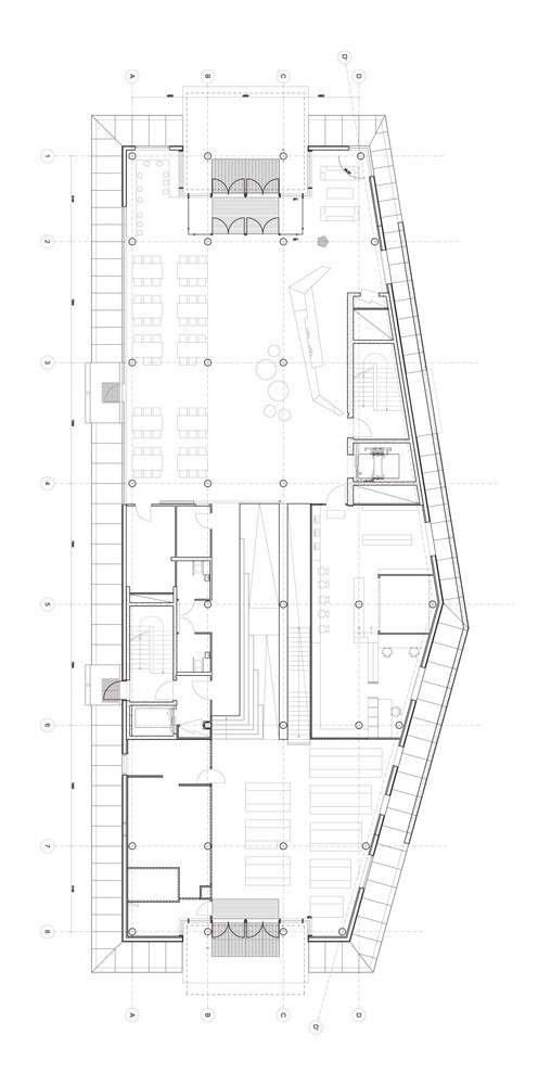
Открытость, доступность и обозримость — основные ценности школы Westerdals, нашедшие свое отражение в проекте. Просторные входы и свободная планировка первого этажа словно приглашают публику внутрь. Там расположены стойка ресепшн, небольшая медиатека, открытое всем желающим студенческое кафе с верандой, выходящей на Акерсэльву, а также многофункциональное пространство, пригодное для проведения выставок, вечеринок или организации «неформальных» рабочих зон.

А. Г.
Школа коммуникаций Westerdals. Фото Нины Фроловой
Школа коммуникаций Westerdals. Фото Нины Фроловой
Школа коммуникаций Westerdals в комплексе Vulkan. Фото Нины Фроловой
Школа коммуникаций Westerdals в комплексе Vulkan. Фото Нины Фроловой
Школа коммуникаций Westerdals. Фото KJARK - Benjamin Hummitzsc
Школа коммуникаций Westerdals. Фото KJARK - Benjamin Hummitzsc
Школа коммуникаций Westerdals. Фото KJARK - Benjamin Hummitzsc
Школа коммуникаций Westerdals. Фото KJARK - Benjamin Hummitzsc
Школа коммуникаций Westerdals. Фото KJARK - Benjamin Hummitzsc
Школа коммуникаций Westerdals. Фото KJARK - Benjamin Hummitzsc
Школа коммуникаций Westerdals. Фото KJARK - Benjamin Hummitzsc
Школа коммуникаций Westerdals. Фото KJARK - Benjamin Hummitzsc
Школа коммуникаций Westerdals. Фото KJARK - Benjamin Hummitzsc
Школа коммуникаций Westerdals. Фото KJARK - Benjamin Hummitzsc
Школа коммуникаций Westerdals. Фото KJARK - Benjamin Hummitzsc
Школа коммуникаций Westerdals. Фото KJARK - Benjamin Hummitzsc
Школа коммуникаций Westerdals © KJARK
Школа коммуникаций Westerdals © KJARK
Школа коммуникаций Westerdals © KJARK
Школа коммуникаций Westerdals © KJARK
Школа коммуникаций Westerdals © KJARK
Школа коммуникаций Westerdals © KJARK