Размещено на портале Архи.ру (www.archi.ru)

06.12.2011

Из пустого в полное

Анна Мартовицкая
Объект:
Надстройка дома в п. Николо-Урюпино
Адрес:
Россия, Московская область, п. Николо-Урюпино
Архитектор:
Левон Айрапетов
Валерия Преображенская
Мастерская:
TOTEMENT/PAPER
Авторский коллектив:
Левон Айрапетов, Валерия Преображенская, Егор Легков, Диана Грекова

В престижном коттеджном поселке Николо-Урюпино архитектурная мастерская TOTEMENT/PAPER реконструировала один из домов. Сооружению, выполненному в традиционном «новорусском» стиле, архитекторы сделали прививку современности, кардинально преобразившую коттедж.

Надстройка дома в п. Николо-Урюпино © Архитектурное бюро «Тотемент/Пейпер»
Надстройка дома в п. Николо-Урюпино © Архитектурное бюро «Тотемент/Пейпер»
К участию в этом проекте бюро TOTEMENT/PAPER было приглашено летом 2010 года. На словах задание заказчика звучало довольно просто: добавить к уже имеющимся на участке строениям несколько новых построек. Однако, внимательно изучив и сам дом, и его ближайшее окружение, архитекторы пришли к выводу, что им предстоит весьма сложная и нетривиальная работа. Во-первых, к тому времени территория дома уже несколько раз претерпевала изменения и дополнения, не предусмотренные исходным проектом, – например, появились летняя кухня с площадкой под тентом и гостевой дом. Во-вторых, сама исходная стилистика была архитекторам совершенно чужда. «К тому же развивать эту архитектурную идею дальше означало полностью утерять хоть какую-то согласованность построек на участке и перегрузить его массами зданий, – вспоминают архитекторы. – Поэтому мы решили создать нечто совершенно иное, контрастное всему, что стоит не только на данном участке, но и в поселке. Нашей главной задачей было придать дому новое качество и новый масштаб, вживив в него «чужую плоть», способную оказать сопротивление окружающей архитектурной действительности».

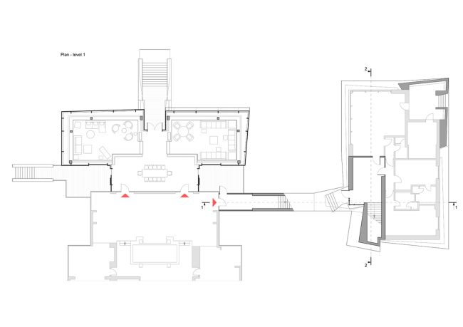
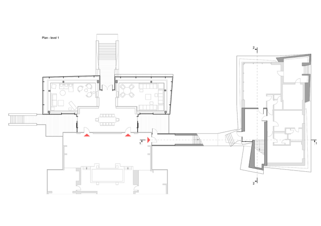
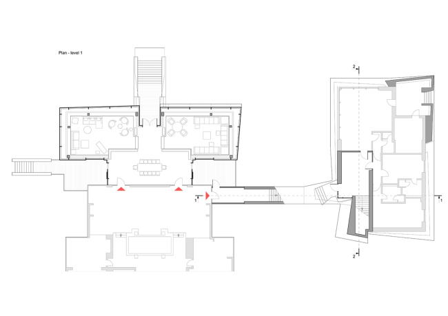
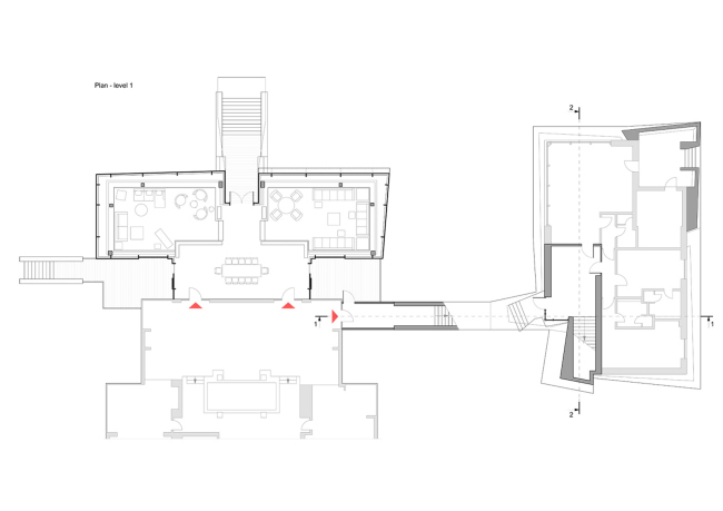
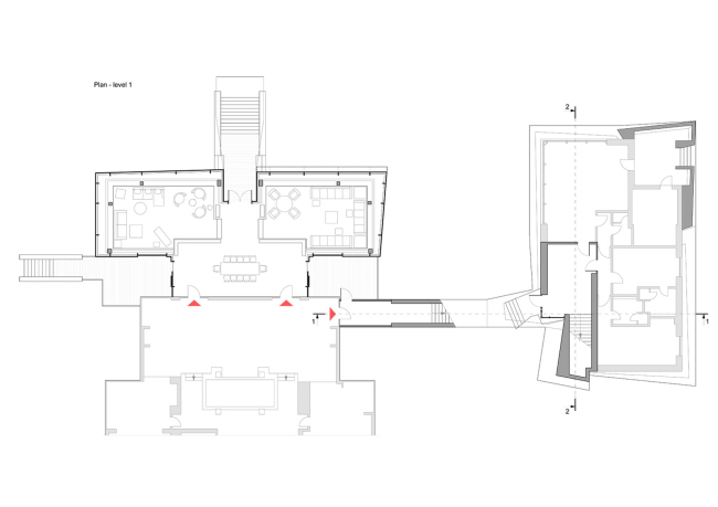
При этом с точки зрения функции поставленная перед архитекторами задача была довольно проста. Семья заказчика увеличилась, и ей потребовались новые помещения, в частности, зона отдыха для взрослых и вместительная игровая для детей. Впрочем, и тут были свои подводные камни: например, площади для обеих новых зон архитекторы должны были найти вовне – в планировку дома они вмешиваться не могли. И если место «взрослого» отдыха так и просилось разместиться на существующей террасе над бассейном, то над поиском оптимального варианта размещения детской комнаты пришлось изрядно попотеть. «Поскольку больше свободных площадей ни внутри, ни примыкающих к дому не было, мы приняли решение реконструировать гостевой дом, расположенный к северо-западу от главного, надстроив его еще одним этажом и соединив с основным домом теплым переходом», – поясняют авторы проекта.

«Взрослый» блок решен как стеклянный объем, максимально сливающийся с окружающей средой и обеспечивающий отдыхающим панорамные виды на участок и окрестности. Он разделен на два стеклянных параллелепипеда с наклонными стенами, смещенными относительно оси симметрии существующего дома. В левой половине расположена «женская» гостиная, в правой – «мужская». Части, формально решенные одинаково, имеют в своей архитектуре едва уловимые гендерные признаки: так, «женская» выполнена более пластично и делает плавный наклон в сторону «мужской», а та, в свою очередь, дерзко нависает над бассейном и отражает детский блок. Обе части соединены динамичным деревянным козырьком, маскирующим систему забора свежего воздуха.

Детский блок, в противовес взрослому, сделан практически глухим – в этом объеме, имеющем сложную форму пятиконечного маховика, есть всего несколько «надрезов» окон и световой фонарь в кровле. В качестве основного облицовочного материала выбран алюминий, идеально противостоящий всем капризам подмосковной погоды и столь же идеально подходящий для нанесения «боевой раскраски». В данном случае в роли последней выступает динамичный рисунок, который с близкого расстояния «разрушает» или «размывает» плоскость и, конечно, полностью видоизменяет гостевой дом. «Мы старались получить максимально динамичную направленную, но незавершенную форму, как будто «сделанную» ребенком. Этот объем связан с основным домом некой «пуповиной» – переходом, который держится на одной точке опоры, – он развивается и смотрит в «будущее», впуская  теплое юго-западное солнце через длинные горизонтальные щели окон и фонаря», – поясняют свой замысел архитекторы. И если взрослые комнаты обставлены предельно рационально и стильно, как бы даже немного напоказ, учитывая их полностью прозрачные стены, то детский блок изнутри представляет собой эдакий графитный бело-серо-черный сундук, который меняется в зависимости от времен суток и положения солнца. Внутренние плоскости здесь наклонны, а объемы имеют столь замысловатую конфигурацию, что кажется, будто они находятся в постоянном движении, не найдя еще окончательного положения и работая фоном для своего «содержания» – детей, их сверхподвижных теней и многочисленных игрушек.

Игра в «полное» и «пустое» и есть основная пространственно-композиционная идея этого дома. Еще одной важной составляющей архитектурного образа этого объекта стала связь времен. Существующий дом служит своего рода точкой отсчета, от которой в разные стороны разбегаются векторы прошлого (блока для взрослых) и будущего (детской зоны): и если прошлое прозрачно, поскольку оно уже свершилось и стремится к отсутствию, растворению, то будущее, наоборот, пока не имеет определенной формы, находится в фазе активного развития, что так живо передает его сверхдинамичное архитектурное решение.

Своего рода мостиком между двумя новыми объемами служит панно, выложенное из черных и белых камней на крыше стеклянной пристройки и изображающее лабиринт. Это «тату», как его называют сами архитекторы, визуально продолжает тему пятнистого детского блока, правда, обнаружить эту связь можно только при взгляде с верхних этажей дома – такой крошечный архитектурный секрет, свидетельствующий о том, что реконструкция TOTEMENT/PAPER навсегда изменила эту постройку.
Надстройка дома в п. Николо-Урюпино © Архитектурное бюро «Тотемент/Пейпер»
Надстройка дома в п. Николо-Урюпино © Архитектурное бюро «Тотемент/Пейпер»
Надстройка дома в п. Николо-Урюпино © Архитектурное бюро «Тотемент/Пейпер»
Надстройка дома в п. Николо-Урюпино © Архитектурное бюро «Тотемент/Пейпер»
Надстройка дома в п. Николо-Урюпино © Архитектурное бюро «Тотемент/Пейпер»
Надстройка дома в п. Николо-Урюпино © Архитектурное бюро «Тотемент/Пейпер»
Надстройка дома в п. Николо-Урюпино © Архитектурное бюро «Тотемент/Пейпер»
Надстройка дома в п. Николо-Урюпино © Архитектурное бюро «Тотемент/Пейпер»
Надстройка дома в п. Николо-Урюпино © Архитектурное бюро «Тотемент/Пейпер»
Надстройка дома в п. Николо-Урюпино © Архитектурное бюро «Тотемент/Пейпер»
Надстройка дома в п. Николо-Урюпино © Архитектурное бюро «Тотемент/Пейпер»
Надстройка дома в п. Николо-Урюпино © Архитектурное бюро «Тотемент/Пейпер»
Надстройка дома в п. Николо-Урюпино © Архитектурное бюро «Тотемент/Пейпер»
Надстройка дома в п. Николо-Урюпино © Архитектурное бюро «Тотемент/Пейпер»
Надстройка дома в п. Николо-Урюпино © Архитектурное бюро «Тотемент/Пейпер»
Надстройка дома в п. Николо-Урюпино © Архитектурное бюро «Тотемент/Пейпер»
Надстройка дома в п. Николо-Урюпино © Архитектурное бюро «Тотемент/Пейпер»
Надстройка дома в п. Николо-Урюпино © Архитектурное бюро «Тотемент/Пейпер»
Надстройка дома в п. Николо-Урюпино © Архитектурное бюро «Тотемент/Пейпер»
Надстройка дома в п. Николо-Урюпино © Архитектурное бюро «Тотемент/Пейпер»
Надстройка дома в п. Николо-Урюпино © Архитектурное бюро «Тотемент/Пейпер»
Надстройка дома в п. Николо-Урюпино © Архитектурное бюро «Тотемент/Пейпер»
Надстройка дома в п. Николо-Урюпино © Архитектурное бюро «Тотемент/Пейпер»
Надстройка дома в п. Николо-Урюпино © Архитектурное бюро «Тотемент/Пейпер»