Размещено на портале Архи.ру (www.archi.ru)

30.11.2011

Дом экономного архитектора

Анна Мартовицкая
Объект:
Дом для архитектора
Адрес:
Россия, Москва.
Архитектор:
Роман Леонидов
Мастерская:
АБ Романа Леонидова

Проектируя загородный дом для самого себя, архитектор Роман Леонидов исходил из необходимости разумной экономии ресурсов и потому придумал простой и предельно рациональный объем.

Дом для архитектора © Архитектурное бюро Романа Леонидова
Дом для архитектора © Архитектурное бюро Романа Леонидова
Участок, предназначенный для строительства дома, расположен в Подмосковье, на территории садово-дачного товарищества, которое граничит с живописным полем и начинающимся за ним лесом. Именно это соседство с очень эффектным ландшафтом, а также сама подчеркнуто прямоугольная форма земельного надела подсказали архитектору, как лучше всего расположить на участке будущий коттедж. Дом, который автор предполагает использовать не для постоянного проживания, а как дачу, то есть место отдыха и релаксации, посажен в самом начале участка, вдоль одной из узких сторон прямоугольника, а длина сооружения фактически равна ширине участка. Все основные помещения максимально раскрыты на поле и лес, так что живописный вид станет неотъемлемым элементом композиции всего дома.

Поскольку архитектор изначально делал ставку на экономичность, он решил использовать при строительстве своего дома самые доступные строительные материалы, позволяющие реализовать проект не только относительно дешево, но и быстро. В роли основной конструктивной системы здесь выступает металлический каркас, на который навешиваются легкие самонесущие сэндвич-панели. А в качестве внешнего облицовочного материала использованы деревянная рейка и профилированный лист, импонирующий Леонидову не только своей демократичной ценой, но и способностью долго противостоять агрессивной внешней среде. На фасаде, обращенном к улице, таких листов несколько, и для того, чтобы разнообразить ребристую поверхность, архитектор красит их в белый, черный и красный цвета, а поверх наносит несколько надписей, выполненных очень крупным шрифтом. Как рассказывает сам Леонидов, этот прием он позаимствовал у хорватских коллег – бюро Bruketa&Zinic, которые недавно реконструировали в Загребе бизнес-центр Zavrtnica, расписав его фасады гигантскими буквами и цифрами и назвав этот прием назвали «typotecture», что означает своего рода гибрид типографики и архитектуры. Правда, если у хорватов в ход пошли абстрактные понятия, вроде слова «object», то Роман Леонидов использует «типотектуру» для того, чтобы оставить на фасаде дома автограф и порядковый номер сооружения (01 – архитектор не исключает, что со временем этот проект может быть адаптирован для серийного производства).

Красным же оформлена входная дверь – от фасада она отличается гладкой поверхностью, – а вот скрытый от глаз посторонних дворовый фасад решен совершенно иначе. Здесь доминирующую роль выполняют уже упомянутая терраса и расположенный над ней балкон, огражденный деревянной перголой. Та часть дома, где расположены кабинет-студия и спальни, представляет собой закрытый рейкой короб, на который вывешен прямоугольный эркер окна. Строгие геометричные формы и небольшая глубина этого элемента делают его больше похожим на гигантский плазменный телевизор, размещенный на фасаде. Кстати, точно такое же окно выходит и на уличный фасад, где в сочетании с гофрированным металлом оно выглядит еще более технократично.

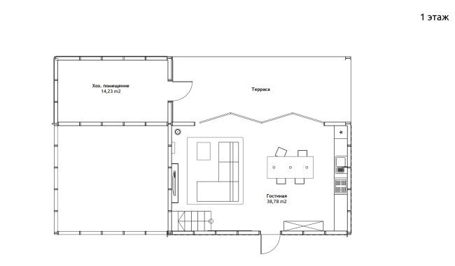
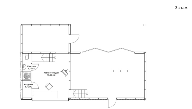
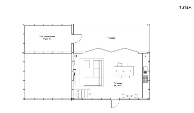
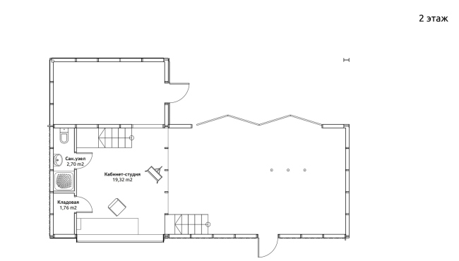
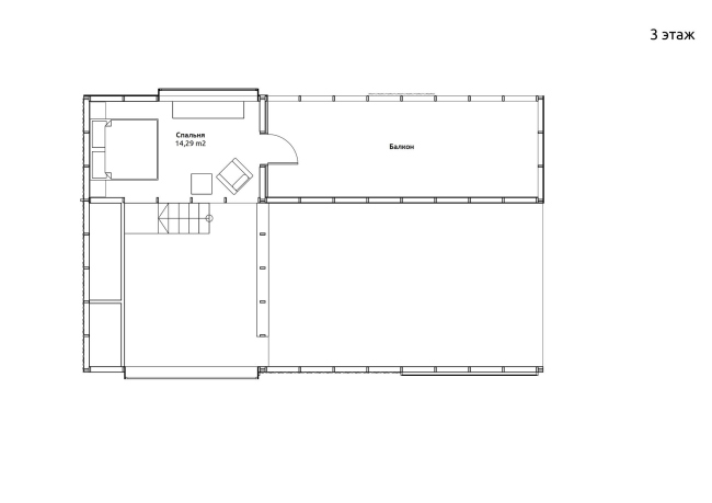
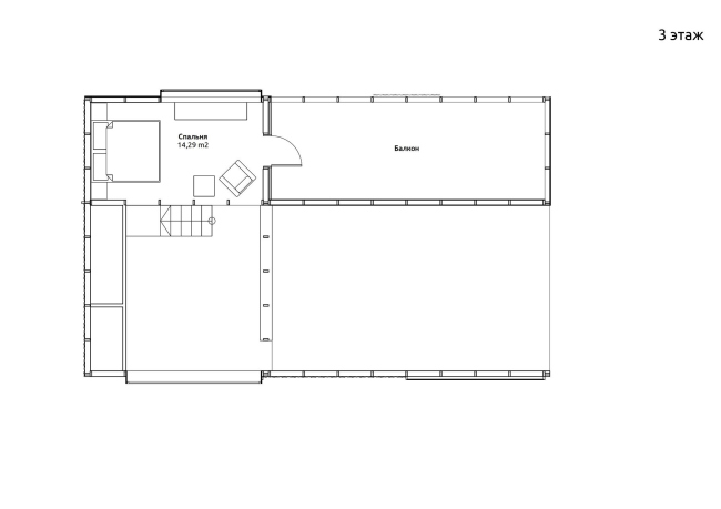
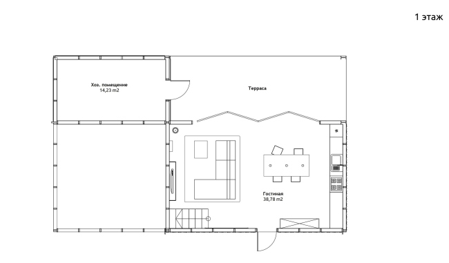
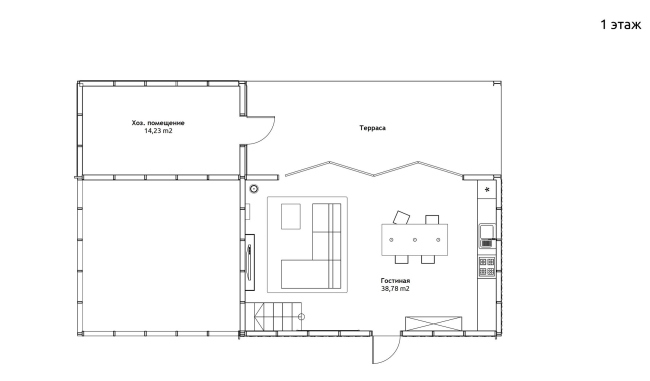
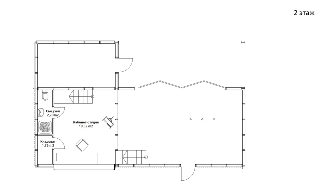
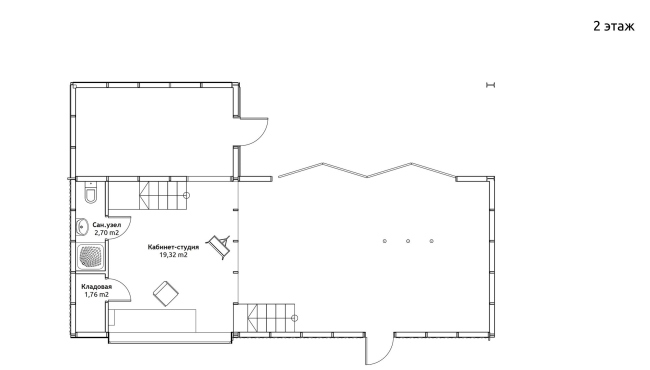
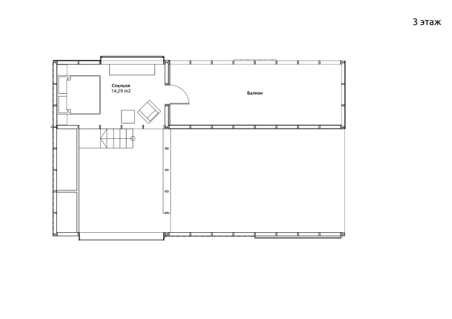
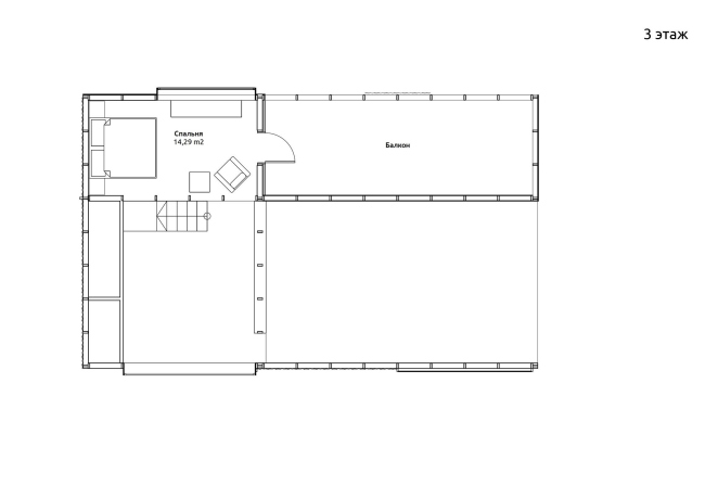
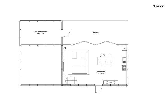
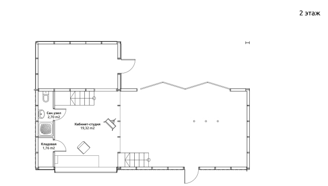
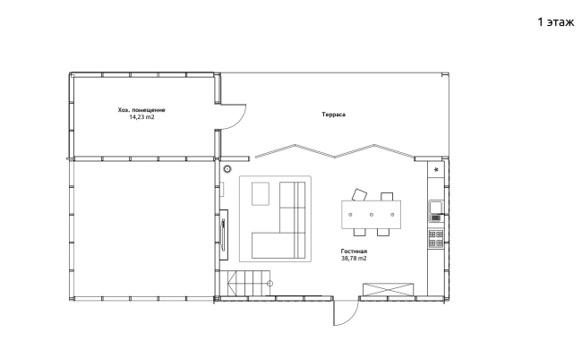
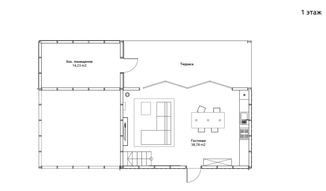
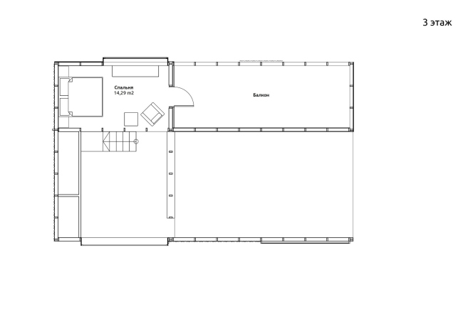
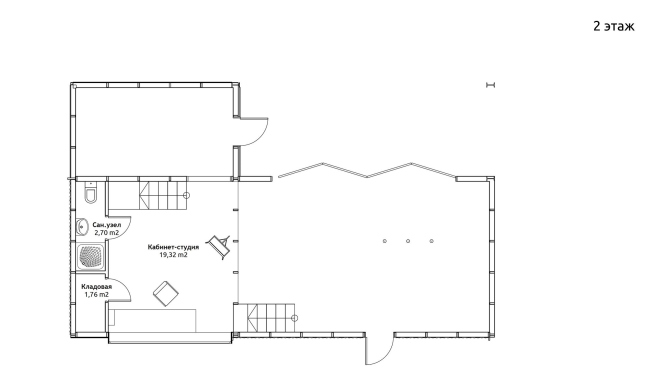
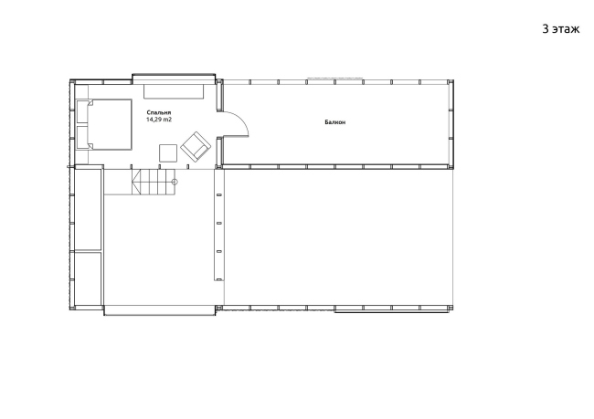
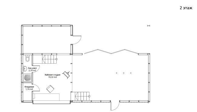
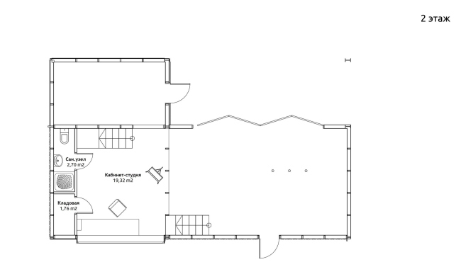
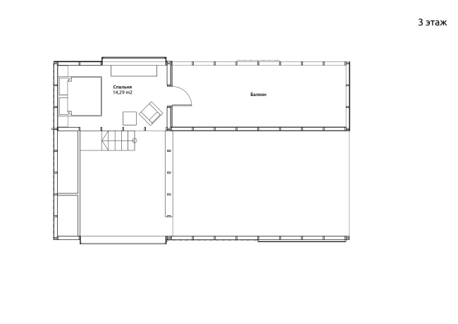
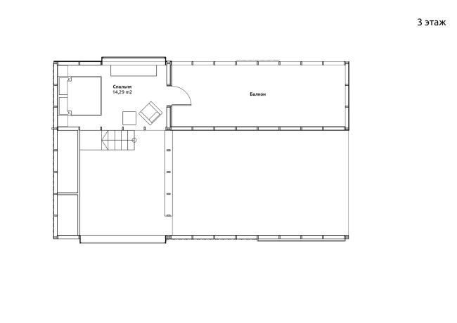
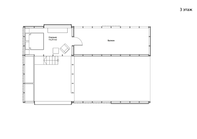
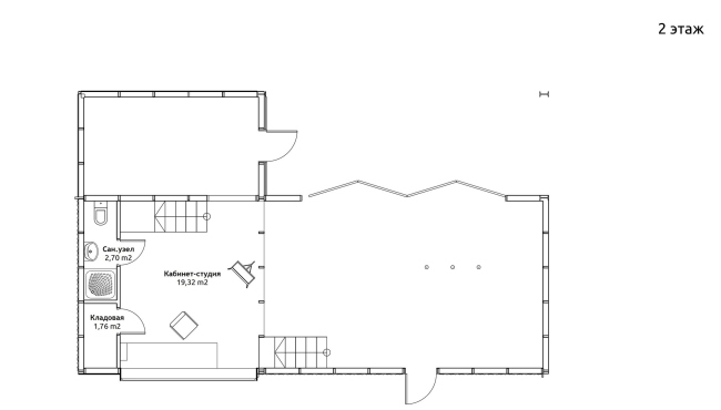
Компоновка самого объема также проста и лаконична. На первом этаже расположена одна общая комната, сочетающая в себе сразу несколько функций, – это и гостиная, и кухня, и столовая, она же является зоной отдыха. Отсюда же можно подняться на второй этаж, а рядом с главной террасой размещен хозяйственный блок. Над гостиной архитектор проектирует санузел с душевой, кладовую комнату и кабинет-студию, в которой на небольшом подиуме также расположено гостевой спальное место. На третьем этаже Роман Леонидов располагает спальню, из которой можно выйти на уже упомянутый балкон.

В отделке интерьера использованы натуральные и также максимально недорогие строительные материалы – на пол архитектор предполагает постелить доску, стены и потолок обшить фанерой, выпустив стропильные конструкции. «Большое количество дерева призвано смягчить первоначальную жесткость самого каркаса-коробки, а нейтральная цветовая гамма (натуральный медовый оттенок дерева и белая мебель) растворит интерьер в экстерьере и погрузит его обитателей в атмосферу покоя», – поясняет Роман Леонидов. Созданию комфортной атмосферы в доме будут способствовать и большие площади остекления, кроме того они максимально обеспечат жилище естественным освещением, что особенно актуально для сооружения, работающего на электричестве. «Поставленная перед самим собой задача строгой экономии места и пространства позволила получить максимум полезной площади, а необходимость заранее думать об эксплуатационных расходах заставила найти самые простые и при этом энергоэффективные планировочные решения», – резюмирует архитектор. И именно столь скрупулезная продуманность данного проекта дает Леонидову все основания надеяться, что этот  простой и при этом подчеркнуто современный и обеспеченный всеми удобствами загородный дом со временем может быть запущен в серийное производство.
Дмитрий Васильев, дизайнер интерьера и 3D-визуализатор проекта
Дмитрий Васильев, дизайнер интерьера и 3D-визуализатор проекта
Дом для архитектора © Архитектурное бюро Романа Леонидова
Дом для архитектора © Архитектурное бюро Романа Леонидова
Дом для архитектора © Архитектурное бюро Романа Леонидова
Дом для архитектора © Архитектурное бюро Романа Леонидова
Дом для архитектора © Архитектурное бюро Романа Леонидова
Дом для архитектора © Архитектурное бюро Романа Леонидова
Дом для архитектора © Архитектурное бюро Романа Леонидова
Дом для архитектора © Архитектурное бюро Романа Леонидова
Дом для архитектора © Архитектурное бюро Романа Леонидова
Дом для архитектора © Архитектурное бюро Романа Леонидова
План первого этажа
План первого этажа
План второго этажа
План второго этажа
План третьего этажа
План третьего этажа