|
|
|
Размещено на портале Архи.ру (www.archi.ru)
|
|
01.11.2011
|
|
Скульптурный минимализм
|
Анна Мартовицкая
|
| Объект: |
|
Жилой комплекс на ул. Береговая
|
| Адрес: |
|
Россия,
Ростов-на-Дону.
улица Береговая, 33/4
|
|
Архитектор:
|
|
Сергей Скуратов
|
|
Мастерская:
|
|
Сергей Скуратов ARCHITECTS
|
|
Авторский коллектив:
|
|
Творческий руководитель мастерской: Скуратов С.А. Главный архитектор проекта: Обвинцев В.А. Архитекторы: Демидов Н.А., Харитонова К.С., Тирских Е.И. Главный инженер проекта: Горин С.Р.
|
|
На центральной набережной Ростова-на-Дону мастерская «Сергей Скуратов Architects» спроектировала жилой комплекс, обещающий стать новой высотной доминантой города. На фестивале «Зодчество-2011» этот проект был награжден «Серебряным дипломом».
Жилой комплекс с небольшой офисной частью, рестораном и парковкой будет построен на улице Береговой, между Ворошиловским проспектом и Газетным переулком. Это самый центр Ростова-на-Дону, правда, несмотря на подобное расположение, достопримечательностей здесь не много. Крутой берег Дона, разлинованный тремя уровнями улиц, застроен весьма хаотически – сегодня в его панораме преобладают крупные красно-кирпичные дома 1990-2000-х годов, едва ли способные сформировать качественную и визуально благополучную среду обитания. На самой Береговой на протяжении многих лет и вовсе преобладали хозяйственные постройки ангарного типа, придававшие набережной откровенно неопрятный вид. Решить проблему градостроительной привлекательности этой части города призван новый генплан Ростова-на-Дону, который, в частности, предусматривает, что по обе стороны Ворошиловского проспекта, начинающегося от Береговой, должны быть построены здания-доминанты – своего рода пропилеи, которые обозначат въезд в центр и зададут новый масштаб застройки набережной. Роль одного из таких комплексов выполнит бизнес-центр «Пять морей» мастерской «SPEECH Чобан&Кузнецов», а по другую сторону проспекта вырастет жилой комплекс, спроектированный Сергеем Скуратовым.
Архитектор вспоминает, что первое знакомство с будущим участком застройки и его ближайшим окружением произвело на него очень депрессивное впечатление: «Фактически взгляду не за что было зацепиться: перед собой я увидел крутой неблагоустроенный склон, в который то тут то там были воткнуты многоэтажные груды кирпича и частные особняки очень богатых людей». Кстати, одни из таких коттеджей расположен непосредственно за предполагаемым местом строительства нового жилого комплекса, и авторов проекта с самого начала вежливо предупредили, что он не должен лишиться вида на реку. Единственным же «культурным» ориентиром оказался установленный на набережной памятник Максиму Горькому – расположенный напротив Газетного переулка, спускающегося к Береговой широкой лестницей, он хоть как-то организует пространство, и именно эта антонимичная пара – памятник и коттедж – во многом предопределила композицию жилого комплекса.
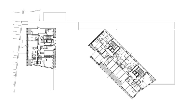
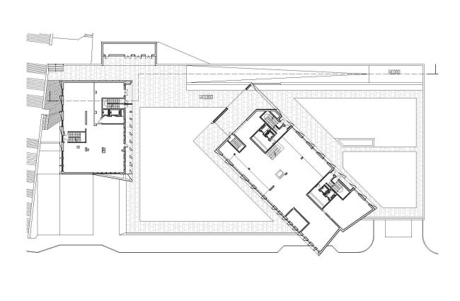
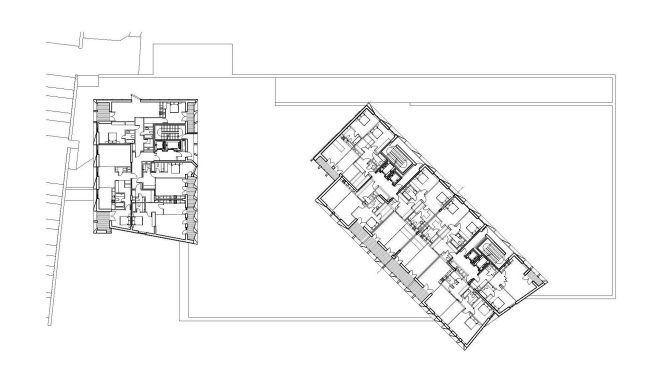
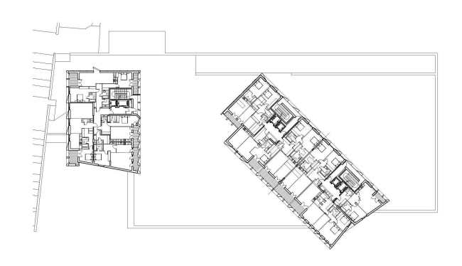
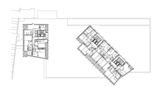
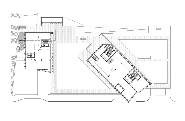
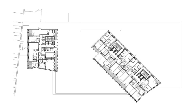
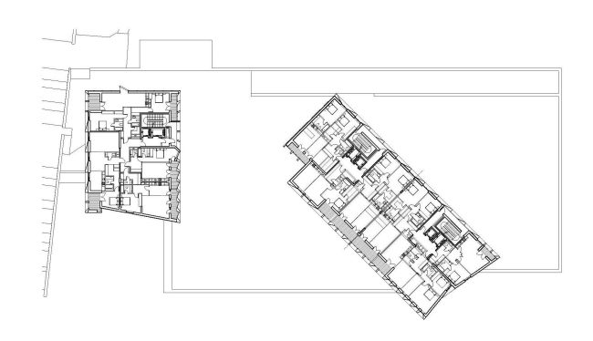
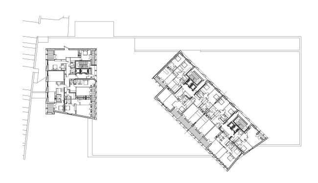
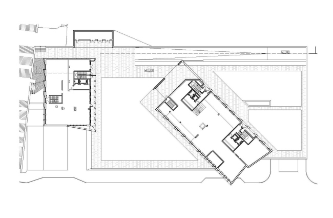
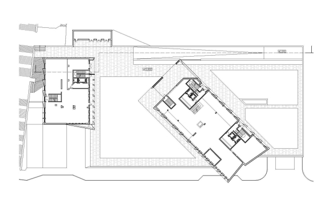
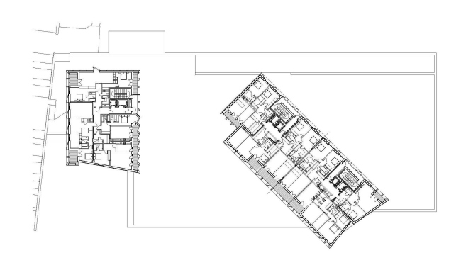
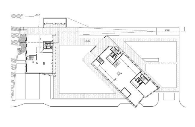
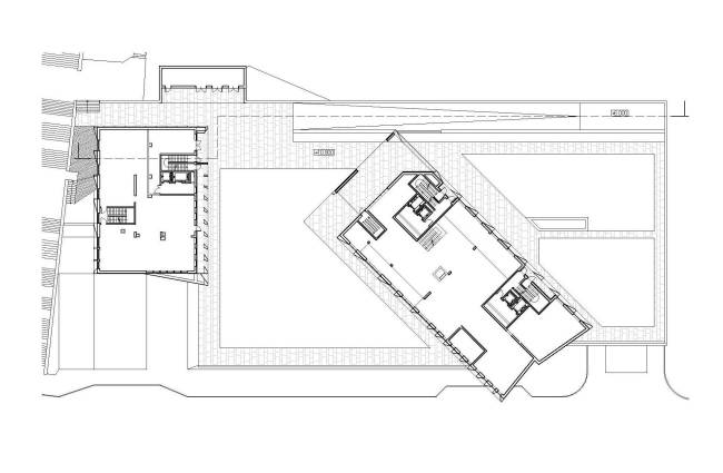
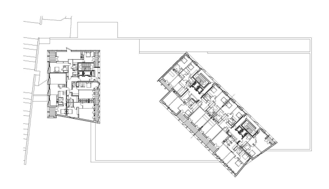
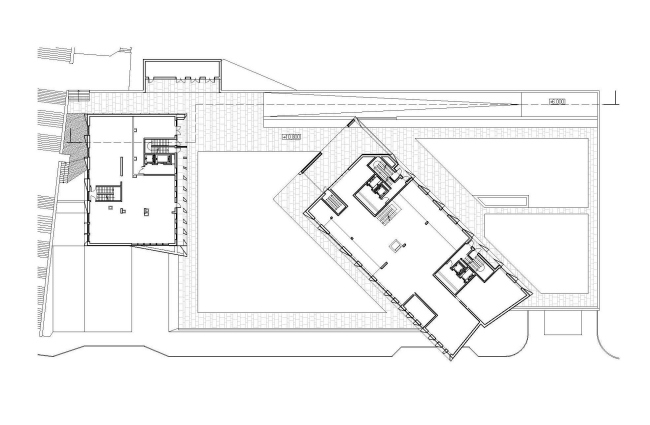
Дом состоит из двух башен, установленных на единый стилобат. Одна высотка расположена перпендикулярно набережной, другая словно вполоборота к ней – она обращена к упомянутому памятнику и разбитой перед ним площади, а разрыва между этими объемами как раз хватает для того, чтобы частный особняк не чувствовал себя отрезанным от Дона. При этом башня, выходящая на набережную узким торцом, примерно на треть выше своей соседки, – и в самом таком соотношении высот, и в расположении объемов, при котором один визуально воспринимается, скорее, как небоскреб, а другой как «пластина», легко узнается композиция «Дома на Мосфильмовской». Сам Скуратов это охотно признает, добавляя, правда, что своим архитектурным решением комплекс, скорее, вырос из проектов «Баркли-плаза» и «Арсенал Палас». И при более пристальном изучении проекта с этим трудно не согласиться.
На что в первую очередь обращаешь внимание, так это экспрессивная скульптурность обоих объемов. Торцы высоток словно вмяты внутрь и составлены из отдельных врезанных друг в друга сегментов, а главные фасады «набраны» из окон с широкими вертикальными откосами, имеющими разный угол наклона. Похожие окна Скуратов, действительно, уже рисовал – и в проекте «Арсенала», и в строящемся сейчас доме на Бурденко, 11, но на этот раз архитектор так разнообразно и динамично чередует проемы, что издалека плоскость фасада кажется закрытой вертикальными жалюзи, отдельные ламели которых в хаотичном порядке развернуты в разные стороны. Чуть более упорядочен в этом смысле фасад трехэтажного стилобата – благодаря более ровному расположению «ламелей» он приобретает визуально почти невесомую пластинчатую структуру. Добавляет визуальной легкости всему комплексу и выбранный Сергеем Скуратовым материал – это светлый натуральный камень, идеально соответствующий характеру «южной» архитектуры и демонстративно протестующий против засилья краснокирпичной застройки в этом районе города. Само же сочетание дома из белого камня и воды, в которой он отражается, конечно, не может не напомнить «Баркли-плазу». Интересно решены и фасады, обращенные к городу. Так, торец более высокой башни, выходящий на Газетный переулок, прошит крупными стежками треугольных эркеров – как будто деформация противоположного торца не прошла для объема незамеченной, – а фасад пластины украшен микропластикой, недвусмысленно напоминающей облезающую после загара кожу.
Впрочем, даже позаимствовав у самого себя часть архитектурных элементов, Скуратов не ограничился компиляцией уже испробованных приемов. Башни на Береговой находятся между собой в более близких и равноправных отношениях, чем их прообразы с Мосфильмовской – они облицованы одним материалом, имеют схожую пластику и, вместо того, чтобы вести напряженный диалог друг с другом, сплочены в противостоянии окружающей их агрессивной визуальной среде. При этом башня, фиксирующая Газетный переулок, сознательно удлинена – архитектор хотел усилить ее роль доминанты и надстроил жилые этажи (доведенные до разрешенной отметки в 75 метров) высокой проницаемой «короной». За этой конструкцией спрятаны технический этаж и котельная, а южный климат позволяет сделать ее максимально открытой и экономичной. Пластина, в свою очередь, берет тектоникой – она слегка выезжает за пределы стилобата, и под образовавшейся консолью авторы размещают вход в жилой комплекс с узким двусветным вестибюлем. Второй входной вестибюль расположен со стороны лестницы, а въезд в подземную парковку (существующий на участке перепад в 10 метров позволил обеспечить все будущие квартиры достаточным количеством машиномест) обозначен брутальным прямоугольным порталом, решительно раздвинувшим «ламели» фасада стилобата. Помимо парковки, в этой части комплекса расположены офисы, кафе и ресторан, а на озелененной кровле стилобата Сергей Скуратов предлагает разместить зону отдыха с полноценным парком.
В панораме набережной и всего центра города новый жилой комплекс будет доминировать не только за счет своей высотности. Благодаря светлому оттенку камня, не слишком свойственному современному Ростову-на-Дону, и фирменной скуратовской минималистичной пластике объемы уподоблены скульптурам, которые способны менять свой облик в зависимости от освещения и времени суток.
|
|