Размещено на портале Архи.ру (www.archi.ru)

17.10.2011

Фестивальная крыша

Объект:
Киноцентр Пусана
Адрес:
Южная Корея, None, Пусан.
Мастерская:
Coop Himmelb(l)au

В южнокорейском городе Пусан открылся киноцентр, построенный по проекту австрийского бюро «Кооп Химмельб(л)ау».

Киноцентр Пусана © Woochang Choi Korea
Киноцентр Пусана © Woochang Choi Korea
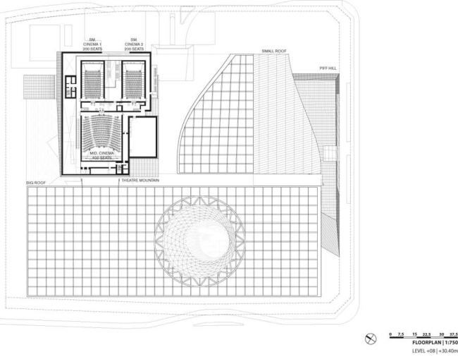
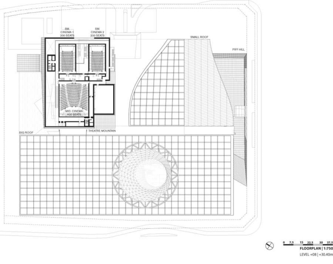
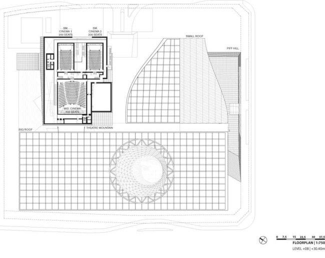
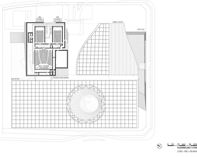
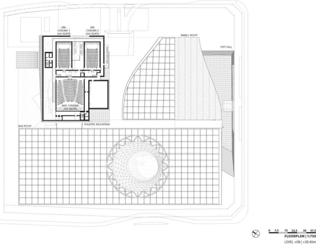
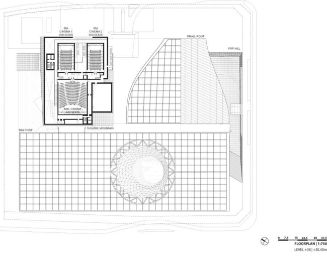
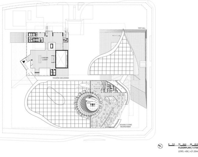
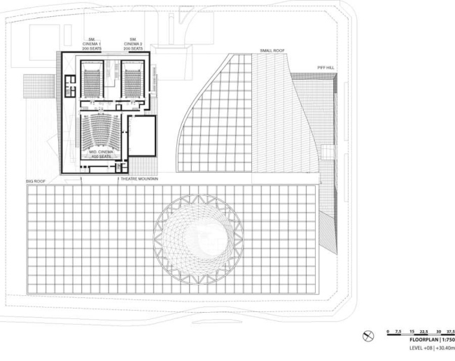
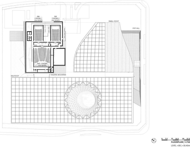
Характерный элемент здания, призванного стать новым домом для Пусанского международного кинофестиваля (BIFF) — самая длинная в мире консольная кровля с выносом в 85 м и размером 60 на 120 метров. Бросая вызов силе притяжения, консоль опирается на конусообразную колонну, внутри которой расположены главный вход и кафе.
Киноцентр Пусана. Фото с сайта hollywoodreporter.com
Киноцентр Пусана. Фото с сайта hollywoodreporter.com


Инновационности сооружению добавляет то, что «изнанка» крыши-консоли покрыта светодиодными панелями. В дни работы кинофестиваля эта поверхность играет роль экрана для динамичного светового шоу,  а также способно служить «холстом» для художников, работающих в жанре видео-арта. 
Киноцентр Пусана © Coop Himmelb(l)au
Киноцентр Пусана © Coop Himmelb(l)au


Внутренние и внешние пространства здания могут вместить до 6 800 посетителей. На 60 тыс. м2 в комплекса расположены кинозалы, рестораны, многофункциональный зрительный зал на 1000 мест и многочисленные общественные зоны.
Киноцентр Пусана © Woochang Choi Korea
Киноцентр Пусана © Woochang Choi Korea


Выступивший 29 сентября 2011 на открытии киноцентра президент Южной Кореи Ли Мен Бак заявил, что с новым зданием Пусанский кинофестиваль войдет в тройку лучших кинофестивалей мира.

А. Г.
Киноцентр Пусана © Woochang Choi Korea
Киноцентр Пусана © Woochang Choi Korea
Киноцентр Пусана © Coop Himmelb(l)au
Киноцентр Пусана © Coop Himmelb(l)au
Киноцентр Пусана © Coop Himmelb(l)au
Киноцентр Пусана © Coop Himmelb(l)au
Киноцентр Пусана © Coop Himmelb(l)au
Киноцентр Пусана © Coop Himmelb(l)au
Киноцентр Пусана © Coop Himmelb(l)au
Киноцентр Пусана © Coop Himmelb(l)au
Киноцентр Пусана © Coop Himmelb(l)au
Киноцентр Пусана © Coop Himmelb(l)au
Киноцентр Пусана © Coop Himmelb(l)au
Киноцентр Пусана © Coop Himmelb(l)au
Киноцентр Пусана © Coop Himmelb(l)au
Киноцентр Пусана © Coop Himmelb(l)au
Киноцентр Пусана © Coop Himmelb(l)au
Киноцентр Пусана © Coop Himmelb(l)au
Киноцентр Пусана © Coop Himmelb(l)au
Киноцентр Пусана © Coop Himmelb(l)au
Киноцентр Пусана © Coop Himmelb(l)au
Киноцентр Пусана © Coop Himmelb(l)au
Киноцентр Пусана © Coop Himmelb(l)au
Киноцентр Пусана © Coop Himmelb(l)au