Размещено на портале Архи.ру (www.archi.ru)

07.11.2011

На правах ближайшего соседа

Анна Мартовицкая
Объект:
Многофункциональный комплекс President Plaza
Адрес:
Россия, Москва. Кутузовский проспект, д. 32, к. 2
Архитектор:
Сергей Чобан
Сергей Кузнецов
Игорь Членов
Мастерская:
СПИЧ
Авторский коллектив:
Авторы проекта: Сергей Чобан, Сергей Кузнецов
Главные архитекторы проекта: Николай Гордюшин, Игорь Членов, Евгения Муринец 
Главный инженер проекта: Сергей Сердюков
Архитекторы проекта: Татьяна Варюхина, Сергей Глубокин, Марина Дигилева, Алексей Евсиков, Любовь Картавченко, Татьяна Логунова, Евгений Ляшков, Сергей Попов

На улице Кульнева, рядом с Третьим транспортным кольцом, бюро «SPEECH Чобан&Кузнецов» проектирует многофункциональный комплекс.

Многофункциональный комплекс President Plaza
Многофункциональный комплекс President Plaza
© SPEECH
На карте Москвы улица Кульнева, расположенная с внешней стороны Третьего транспортного кольца между Кутузовским проспектом и набережной Тараса Шевченко, обозначена серым цветом. И это неудивительно, ведь она находится на территории масштабной промзоны. В середине 2000-х годов здесь планировалось реализовать проект Большого Сити – создать деловой квартал, который станет логичным продолжением ММДЦ «Москва-Сити» и благоустроит набережные Москвы-реки, доселе занятые не слишком симпатичными производствами. В своем комплексном виде этому начинанию так и не суждено было сбыться, но единичные проекты крупных офисных зданий все-таки были реализованы. К числу самых заметных и титулованных, безусловно, относится комплекс «Миракс-плаза», спроектированный бюро «Сергей Киселев и Партнеры» в 2006-2007 годах. Участок, для которого проектирует бюро «SPEECH Чобан&Кузнецов», примыкает к этому объекту практически вплотную, поэтому требование органично войти в уже созданную композицию «Миракс-Плазы» стало для архитекторов одним из основных при работе над новым МФК.

Впрочем, это отнюдь не единственное предписание ТЗ, которое архитекторам следовало соблюсти. Например, жестко были заданы габариты будущего здания – 135х76 м, при высоте 68 м, – продиктованные размерами участка и отметками соседних зданий. Кроме того, был заранее известен класс будущего комплекса, и этот класс был предсказуемо высок («А») – как ни крути, соседство располагает и в чем-то даже обязывает.

Приведенные выше цифры, в общем, говорят сами за себя: архитекторам предстояло спроектировать здание очень протяженное и при этом широкое. Это, в свою очередь, грозило дать колоссальный процент площадей, лишенных естественного света, что совершенно недопустимо с точки зрения нормативов. В поисках  решения, при котором  выход квадратных метров получился бы максимальным, а их освещенность – приемлемой, «SPEECH Чобан&Кузнецов» разработало 4 принципиальные схемы застройки прямоугольного в плане участка, которые между собой они различались количеством и вариантами размещения световых карманов. В одном случае карманов было четыре и они проектировались с двух длинных сторон (и комплекс напоминал в плане букву спаренные буквы НН), в другом – всего два и они располагались либо с одной стороны (Ш-образный план), либо с разных (положенная на бок S), в третьем карманы и вовсе заменялись двумя внутренними открытыми атриумами. Последний вариант в итоге был признан самым рациональным, гарантирующим наибольшую планировочную и коммуникационную свободу, поэтому его приняли за основной.

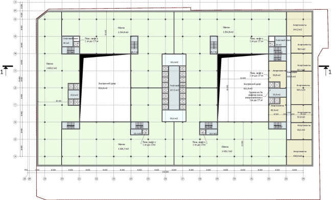
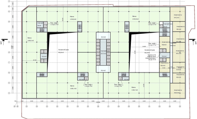
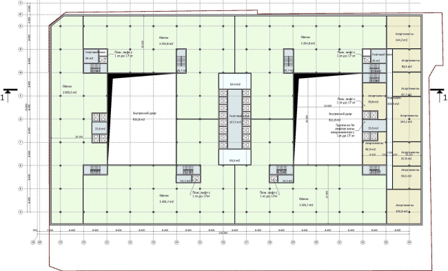
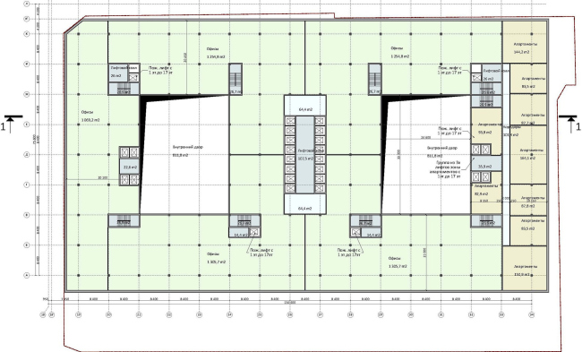
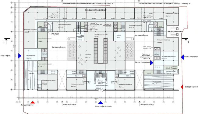
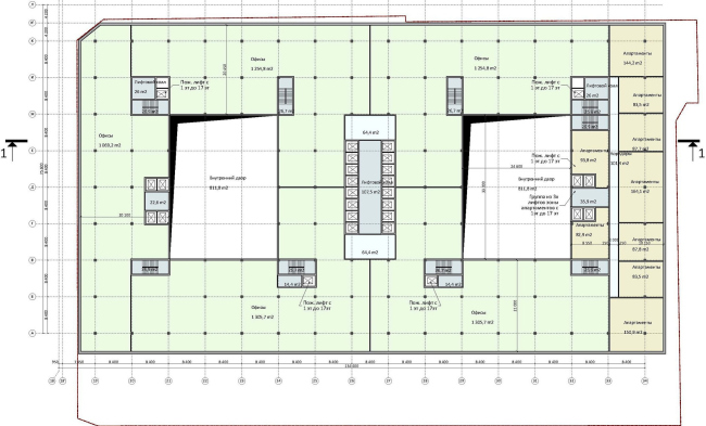
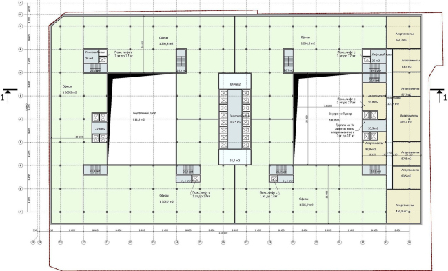
Первые два этажа комплекса отведены под общественные и торговые помещения, причем магазины сосредоточены, в основном, на первом этаже и ориентированы на небольшую пешеходную улочку между новым комплексом и «Миракс-плазой». На втором этаже расположены конференц-залы, переговорные и фитнес-центр, которыми смогут пользоваться как арендаторы, так и гости комплекса. Офисные помещения, располагающиеся на этажах с 3 по 17, сгруппированы в 4 независимых блока со свободной планировкой, каждый из которых имеет свой лифтовой холл. А по торцам комплекса «разведены» два блока апартаментов – они решены как гостиничные номера высшей категории и имеют собственные коммуникационные узлы с лифтами, просторными холлами, зимними садами и security-point на каждом этаже. Благодаря такому решению входные группы организованы на всех четырех уличных фасадах комплекса – две для офисов, две для жилья.

И если общая форма комплекса была задана изначальной конфигурацией участка, а его планировка во многом продиктована СНиПами, то архитектурное решение МФК целиком и полностью «завязано» на высотных соседей – облицованные стеклом треугольные башни с элегантными скругленными фасадами (напомним, пока построена только одна из них). В частности, архитекторы чередуют плоские и рельефные фасады, объединенные общим рисунком, отдаленно напоминающих микросхему или электронную плату. «Выпуклые» детали авторы используют на внешних фасадах комплекса, выходящих на улицу Кульнева и высотку: на основное структурное остекление накладывается объемная крупноформатная решетка из широких горизонтальных и вертикальных тяг-импостов, облицованных металлическими композитными панелями. Любопытно, что эти тяги, образованные двумя скошенными под 60 градусов плоскостями, выполняют не только эстетическую, но и важную практическую роль – возникающие выступы-эркеры обеспечивают довольно ощутимую прибавку к площади офисов.

Дворовые фасады решены иначе. Гладкое структурное остекление здесь прерывают только вертикальные объемы лестнично-лифтовых блоков, но тем не менее иллюзия многомерности и глубины присутствует и здесь. Она создается с помощью чередования двух видов стекла – прозрачного и цветного (от ярко-желтого, через оранжевый и красный к приглушенному фиолетовому), – что не только делает визуально обогащает пространство внутренних дворов, но и помогает частично компенсировать их затесненность. Что же касается цветовой гаммы, то архитекторы признаются: они стремились подобрать оттенки таким образом, чтобы у сотрудников офисов возникало ощущение движущихся по фасадам солнечных лучей.
Многофункциональный комплекс President Plaza
Многофункциональный комплекс President Plaza
© SPEECH
Многофункциональный комплекс President Plaza. Варианты планировочных схем
Многофункциональный комплекс President Plaza. Варианты планировочных схем
© SPEECH
Многофункциональный комплекс President Plaza. Варианты решения фасадов
Многофункциональный комплекс President Plaza. Варианты решения фасадов
© SPEECH
Многофункциональный комплекс President Plaza
Многофункциональный комплекс President Plaza
© SPEECH
Многофункциональный комплекс President Plaza
Многофункциональный комплекс President Plaza
© SPEECH
Многофункциональный комплекс President Plaza
Многофункциональный комплекс President Plaza
© SPEECH
Многофункциональный комплекс President Plaza
Многофункциональный комплекс President Plaza
© SPEECH
Многофункциональный комплекс President Plaza
Многофункциональный комплекс President Plaza
© SPEECH
Многофункциональный комплекс President Plaza
Многофункциональный комплекс President Plaza
© SPEECH
Многофункциональный комплекс President Plaza. План 1 этажа
Многофункциональный комплекс President Plaza. План 1 этажа
© SPEECH
Многофункциональный комплекс President Plaza. План типового этажа
Многофункциональный комплекс President Plaza. План типового этажа
© SPEECH