Размещено на портале Архи.ру (www.archi.ru)

03.10.2011

Иллюзия цвета

Анна Мартовицкая
Объект:
Конкурсный проект жилого комплекса в г. Мытищи
Адрес:
Россия, Москва. ул. Кирпичная, 13
Мастерская:
АМ Сергей Киселев и Партнеры
Авторский коллектив:
Андрей Никифоров, Андрей Бреславцев, Антон Бусалов

В Мытищах завершился архитектурный конкурс на проект жилого комплекса, который предполагается построить в самом центре этого подмосковного города. Одним из участников состязания стала «Архитектурная мастерская «Сергей Киселев и Партнеры».

Андрей Никифоров, главный архитектор проекта
Андрей Никифоров, главный архитектор проекта
Участок, ставший предметом конкурсного проектирования, расположен действительно очень удобно: от улиц Кирпичная и Воровского, его ограничивающих, рукой подать и до автовокзала, и до железнодорожной станции, и до нового ТРЦ «Красный кит». И, видимо, именно транспортная доступность натолкнула инвестора на идею построить здесь максимально крупный жилой комплекс: архитекторы должны были спроектировать дома (один или несколько) общей площадью около 130 тысяч кв.м. Их высоту при этом следовало ограничить 23 этажами – вокруг довольно много жилых домов, рядом с которыми совсем уж небоскребы были бы вряд ли уместны.

Существовал и целый ряд градостроительных «осложнений». Так, например, уже упомянутый ТРЦ, название которого как нельзя лучше передает его масштабы, сейчас готовится к возведению второй очереди, которая грозит лишить прилегающий жилой район прямой пешеходной связи со станцией. Непосредственно скажется это и на новых домах, поскольку они расположены к «Красному киту» ближе всего. Значительно осложнило работу над проектом и другое соседство: на сгибе Кирпичной улицы, под углом 45 градусов к участку застройки, стоит многоподъездный жилой дом. Строго говоря, логика его установки в квартале не совсем очевидна, но участникам конкурса от этого не легче: дом уже стоит, в нем живут люди, а значит, следовало соблюсти его инсоляцию. Во многом это и предопределило решения генплана жилого комплекса, по крайней мере, в случае с командой «СКиП».

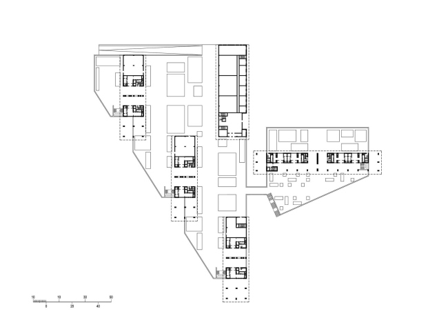
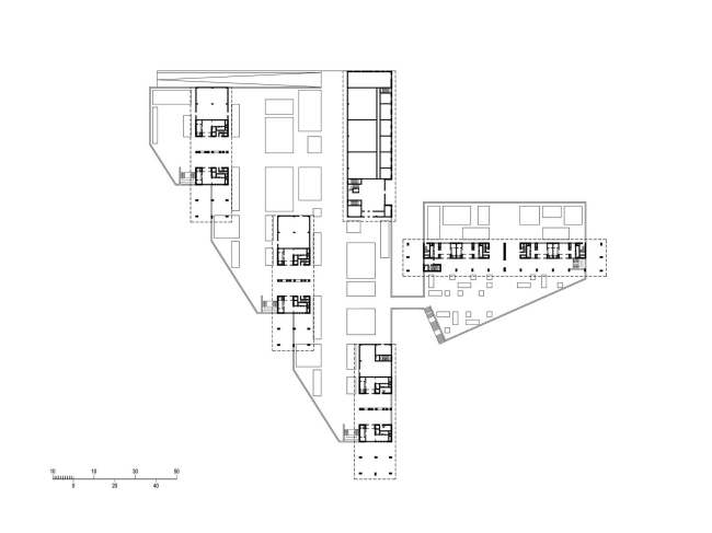
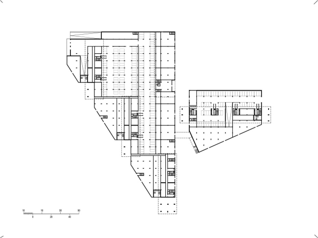
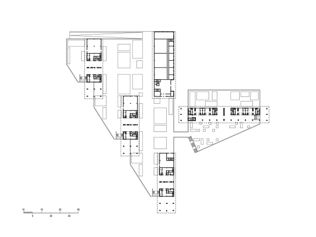
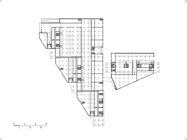
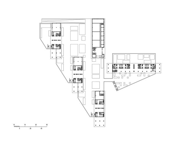
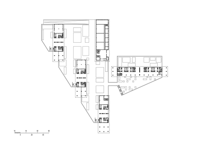
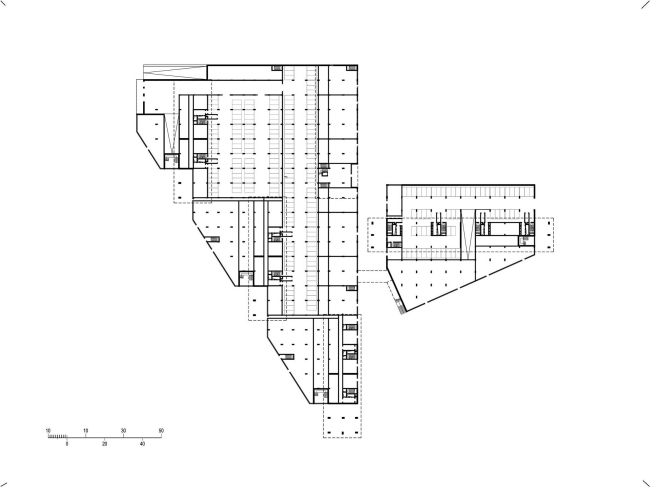
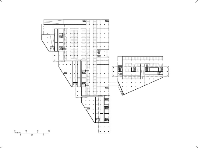
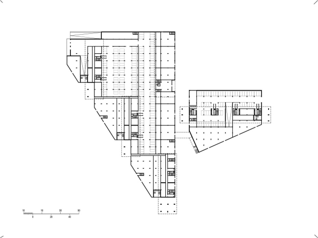
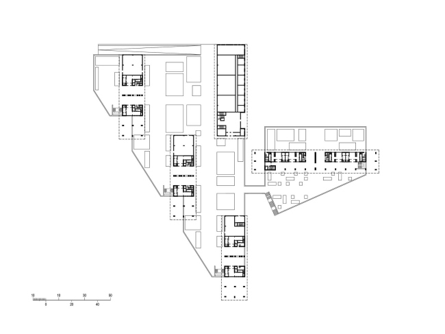
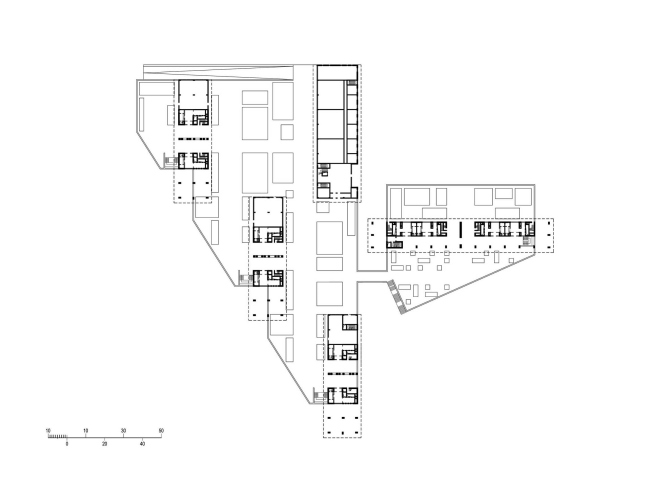
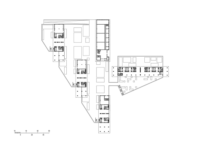
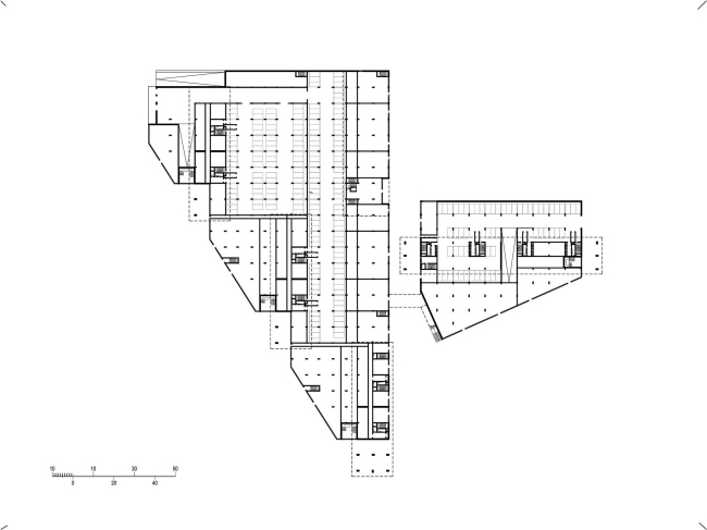
От идеи высказаться в жанре сверхкрупной формы и создать один-единственный объем архитекторы сразу отказались: и пресловутая инсоляция в этом случае была бы под вопросом, и эффекта стены, окончательно отрезающей район от главного транспортного узла города, хотелось избежать. Именно поэтому комплекс был разделен на отдельные корпуса. Не менее важным архитекторам показалось сохранение существующих пешеходных связей, поэтому центральной осью композиции, на которую нанизаны все элементы, стало продолжение Кирпичной улицы: в плане участок имеет форму двух треугольников, один из которых побольше, другой поменьше, и от трассы они, словно лепестки, распадаются в разные стороны.

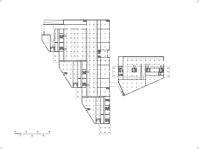
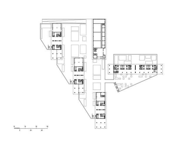
Вдоль длинной стороны большего треугольника, который прилегает к проектируемому парку, архитекторы разместили три 23-этажных корпуса, а на меньший поставили один 19-этажный дом, состоящий из четырех секций. Последний ниже своих собратьев – иначе солнце не смогло бы добраться до окон упомянутого жилого дома, – и именно разница в «росте» подтолкнула авторов расположить этот корпус перпендикулярно остальным. При этом у домов общий стилобат, а прихотливо вьющаяся улочка, пущенная поверх него, не только обозначает очереди строительства комплекса, но и отделяет дворы корпусов друг от друга. Тем самым внутри нового микрорайона создается собственное почти приватное пространство, которое при этом имеет удобные пешеходные связи с окружающим миром.

На уровне первого этажа по контуру стилобатной части архитекторы размещают общественную часть комплекса. Ближе всего к будущей улице спроектированы всевозможные магазины (оно и понятно, ведь их потенциальными посетителями станут не только жители нового ЖК, но и все, кто привык ходить этим маршрутом от станции к себе домой), а с противоположной стороны, в той части стилобата, которая повернута в сторону планируемого парка, наоборот, размещены кафе и рестораны. Кроме того, в общественную зону включен оздоровительный комплекс – он также расположен на стилобате, и главный вход в него организован с уровня жилых дворов, но планировочно этот объем обособлен от них. Попасть в оздоровительный комплекс можно и с пешеходной улицы, к которой он обращен главным фасадом, набранным из разноцветных вертикальных полос. Яркие вертикали вообще становятся ключевой чертой оформления стилобата: жилые корпуса частично приподняты на опоры, но архитекторы стремились замаскировать и нивелировать этот массивный конструктивный элемент, и с помощью имитации пестрого «частокола» на остекленных фасадах им это вполне удалось.

В противоположность активному использованию цвета в отделке стилобата на фасадах жилых корпусов он присутствует более иллюзорно, хоть и играет в формировании облика важнейшую роль. Три 23-этажных корпуса облицованы плитами белого цвета, стоящий перпендикулярно к ним длинный дом, наоборот, выкрашен в темный цвет, а вот откосы окон во всех четырех случаях сделаны разноцветными. «У нас возникла дискуссия, не будут ли цветные откосы каким-то образом искажать восприятие вида из окна, но после долгих исследований мы убедились в том, что это не так, – рассказывает главный архитектор проекта Андрей Никифоров. – Так что мы смело пошли на такое решение». За счет этого фасады не кажутся очень пестрыми, когда смотришь на них анфас, но при движении вокруг домов в самых различных ракурсах неожиданно возникает эффект мерцания цвета на светлых и темных поверхностях стен.

«К решению, в котором цвет является определяющим элементом композиции, нас подтолкнули и расположение в центре жилой застройки Мытищ, и сам объем поставленной задачи, – продолжает Андрей Никифоров. – Недаром рабочим названием проекта стало веселое итальянское слово confetti». По мнению архитекторов, явное присутствие ярких тонов на столь масштабных плоскостях могло бы визуально утяжелить жилые объемы, тогда как едва уловимая искра цвета, наоборот, притягивает взгляд и создает интересную визуальную интригу – как при взгляде из внутренних дворов жилого комплекса, так и в масштабе застройки всего города.
Конкурсный проект жилого комплекса в г. Мытищи
Конкурсный проект жилого комплекса в г. Мытищи
© АМ Сергей Киселев и Партнеры
Конкурсный проект жилого комплекса в г. Мытищи
Конкурсный проект жилого комплекса в г. Мытищи
© АМ Сергей Киселев и Партнеры
Конкурсный проект жилого комплекса в г. Мытищи
Конкурсный проект жилого комплекса в г. Мытищи
© АМ Сергей Киселев и Партнеры
Конкурсный проект жилого комплекса в г. Мытищи
Конкурсный проект жилого комплекса в г. Мытищи
© АМ Сергей Киселев и Партнеры
Конкурсный проект жилого комплекса в г. Мытищи
Конкурсный проект жилого комплекса в г. Мытищи
© АМ Сергей Киселев и Партнеры
Конкурсный проект жилого комплекса в г. Мытищи
Конкурсный проект жилого комплекса в г. Мытищи
© АМ Сергей Киселев и Партнеры
Конкурсный проект жилого комплекса в г. Мытищи
Конкурсный проект жилого комплекса в г. Мытищи
© АМ Сергей Киселев и Партнеры
Конкурсный проект жилого комплекса в г. Мытищи
Конкурсный проект жилого комплекса в г. Мытищи
© АМ Сергей Киселев и Партнеры
Конкурсный проект жилого комплекса в г. Мытищи
Конкурсный проект жилого комплекса в г. Мытищи
© АМ Сергей Киселев и Партнеры
Конкурсный проект жилого комплекса в г. Мытищи
Конкурсный проект жилого комплекса в г. Мытищи
© АМ Сергей Киселев и Партнеры