Размещено на портале Архи.ру (www.archi.ru)

19.09.2011

Медные сталагмиты Пятигорска

Анна Мартовицкая
Объект:
Конкурсный проект высотного жилого дома класса de luxe в Пятигорске
Адрес:
Россия, Пятигорск. ул. 40-летия октября
Мастерская:
АМ Сергей Киселев и Партнеры
Авторский коллектив:
Андрей Никифоров, Андрей Бреславцев, Глеб Холопов, Антон Бусалов, Елена Клюева

В самом центре Пятигорска «Архитектурная мастерская «Сергей Киселев и Партнеры» спроектировала высотный жилой комплекс класса de luxe с простым, но выразительным силуэтом, продиктованным окружающими город горами.

Конкурсный проект высотного жилого дома класса de luxe в Пятигорске
Конкурсный проект высотного жилого дома класса de luxe в Пятигорске
© АМ Сергей Киселев и Партнеры
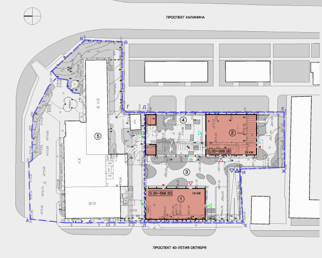
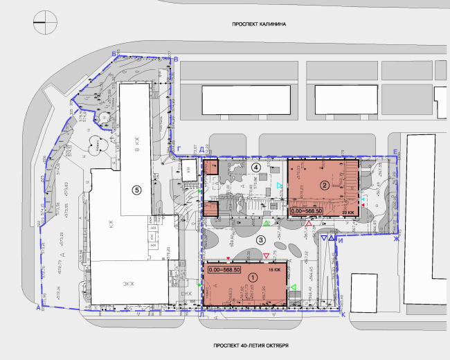
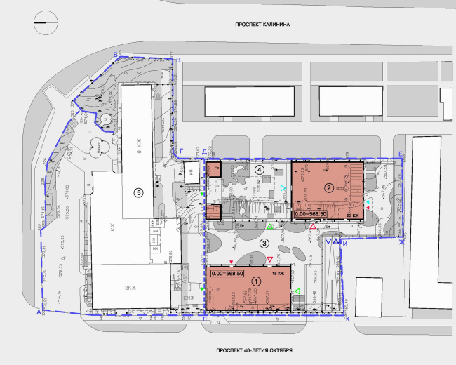
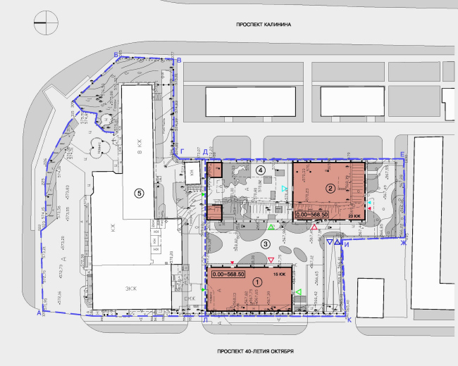
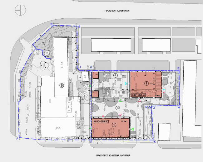
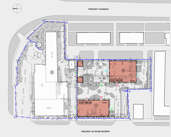
Участок, предназначенный для строительства нового жилого комплекса, расположен в самом центре столицы Северо-Кавказского федерального округа между двумя главными проспектами города – Калинина и 40-летия Октября. Между собой эти трассы связывает улица Бульварная, вдоль которой вытянулся туристический комплекс «Бештау» – одна из лучших гостиниц Пятигорска, которая может похвастаться не только эффектными видами на Кавказский хребет, Эльбрус и собственно Бештау, но и развитой инфраструктурой. Именно этот отель и должен стать ближайшим соседом новых жилых домов – они будут возведены прямо за ним.

К архитектуре будущего комплекса у инвестора было несколько требований: выразительный и запоминающийся облик, отделка и планировки, соответствующие классу de luxe, высота не выше 75 метров (сейсмичность Пятигорска оценивается в 9 баллов). В техническое задание, таким образом, с самого начала оказалось заложено определенное противоречие: дом самой дорогой категории не должен был получиться маленьким и камерным, поскольку инвестор стремился максимально использовать потенциал площадки. «Представление об элитности во многом определяется социально-историческими условиями развития общества. В Европе, например, элитный небоскреб, скорее, исключение из правил. В Америке встречается часто, а в Китае, который бурно развивается в условиях сверхурбанизации, явление почти повсеместное. Что же касается России, то у нас, как мне кажется, тренд выделить сложно, – говорит главный архитектор проекта Андрей Никифоров. – Так что сама география подсказала нам выход из положения: мы должны были найти золотую середину, и, как нам кажется, нам это удалось».

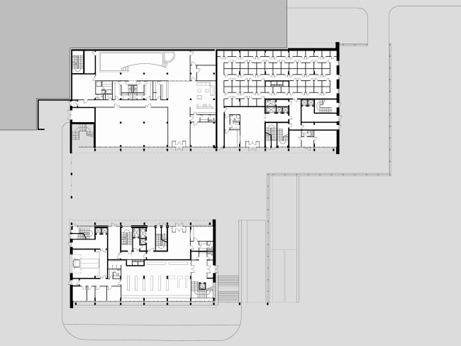
Предваряя описание разработанного архитекторами генплана, отметим, что участок, обособленный двумя шумными трассами и параллелепипедом гостиницы, имел бы строгую прямоугольную форму, если бы не «кубик» кабинета стоматологии, приютившийся на его юго-западной границе. Благодаря ему площадка со стороны проспекта 40-летия Октября приобрела характерный «выгрыз», что, в свою очередь, заставило авторов проекта поломать голову над конфигурацией жилого комплекса. В частности, именно неправильная форма участка (а также требования по инсоляции соседних жилых домов) подтолкнула архитекторов разделить объект на два объема и не замыкать периметр нового квартала. Так у «СКиП» получилась планировочная структура, напоминающая открытые кварталы Портзампарка: периметр зафиксирован с помощью двух башен, а по диагонали между ними разбит пешеходный двор.

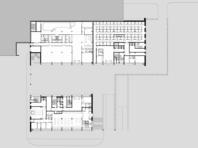
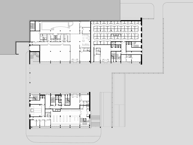
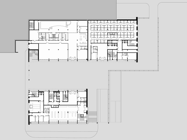
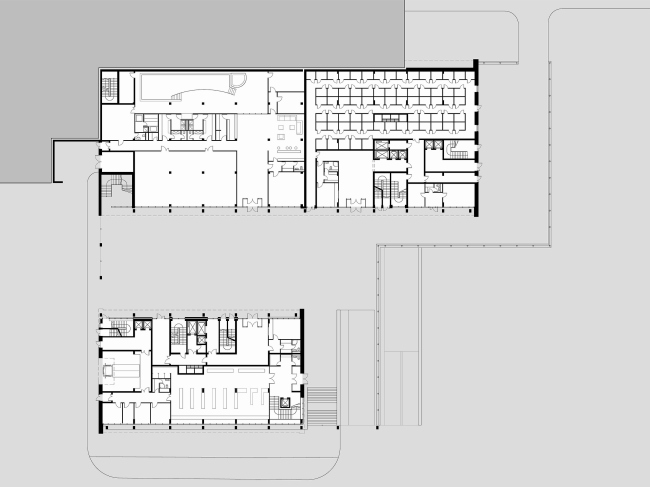
Активный рельеф, вообще очень свойственный ландшафту Пятигорска, не обошел стороной и данный участок: перепад высот между его северной и южной границей составляет почти 6 метров, и это тоже во многом предопределило композицию жилого комплекса. Его подземная часть занята паркингом, который по мере приближения к проспекту Калинина становится трехуровневым (такой запас площади позволил архитекторам, помимо собственно машиномест, спроектировать еще и кладовые для каждой квартиры), внутренний двор поднят над уровнем улицы, а в роли самой верхней террасы выступает игровая площадка детского сада. Помимо дошкольного учреждения, в состав комплекса включены кафе и фитнес-клуб – они занимают первые этажи домов.

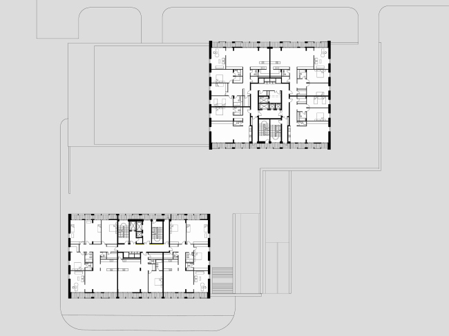
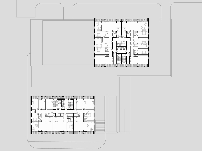
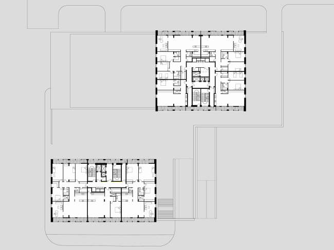
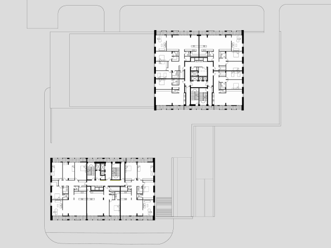
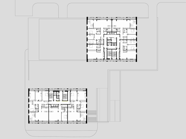
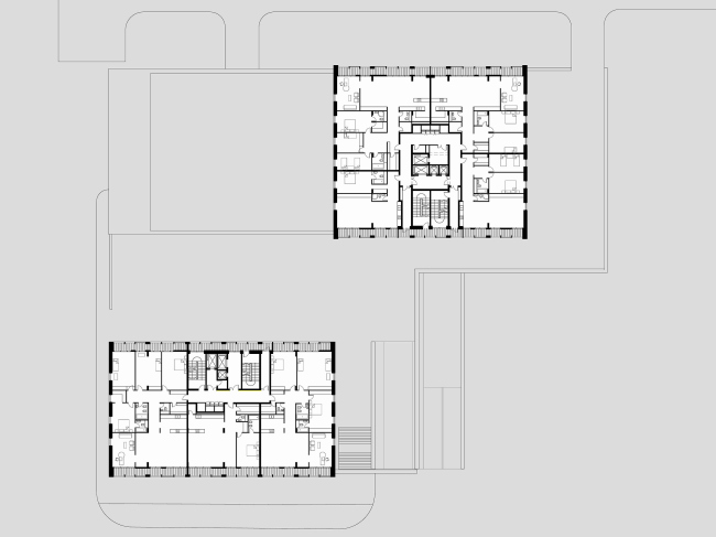
Жилые объемы имеют разную этажность – 15 и 23 этажа, причем более высокий дом в плане представляет собой почти квадрат, а 15-этажный – это вытянутый прямоугольник, ориентированный вдоль проспекта 40-летия Октября. При этом дома, естественно, трактованы архитекторами как родные братья: их фасады облицованы одними и теми же материалами, а кровли имеют одинаковые форму. «Сначала мы проектировали башни с плоскими кровлями, но поняли, что в панораме Пятигорска подобные объемы смотрятся чужеродно, – поясняет Андрей Никифоров. – И тогда мы придали завершениям домов простую, даже лапидарную форму двухскатных кровель. Семантически такая форма напоминает нарисованный ребенком домик, но при всей своей простоте она прекрасно  решает проблему выразительного силуэта».

Дома напоминают два сталагмита, которые очень уместно смотрятся в холмистом ландшафте города и гармонично уживаются с «кардиограммой» Кавказского хребта, неизменно присутствующей на горизонте. Примечательно, что коньки обеих кровель архитекторы в нескольких местах прорезают насквозь – южный климат позволяет сделать эту конструкцию максимально экономичной, поскольку ее не нужно ни остеклять, ни утеплять. Вместо мансардного этажа, который бы непременно появился в среднерусской полосе, пятигорские дома имеют широкие террасы, доступные обитателям самых верхних двухуровневых квартир.

Скаты кровель переходят в боковые фасады – и те и другие облицованы медью, патинированной в разные оттенки, – а щели, фигурно прорезающие каждый конек, превращаются в меру узкие окна, «струящиеся» до самой земли. К этим почти глухим фасадам, которые по своей фактуре и палитре недвусмысленно напоминают горы,  обращены приватные зоны квартир. А все гостиные, наоборот, имеют панорамное остекление – два других фасада представляют собой решетку из толстых и тонких перекладин, пространство между которыми заполнено прозрачными плашками окон и лоджий.

Планировки квартир отличаются предельной рациональностью. И это касается не только разделения на общественные и приватные зоны – в зависимости от потребностей инвестора и рынка, общее количество квартир на этаже может варьироваться от двух до пяти. Гордятся архитекторы и тем, что смогли в каждом жилом доме спроектировать черный ход – без разделения «грузовых» и «парадных» потоков, уверены они, типология жилья de luxe вообще вряд ли мыслима. Конечно, обеспечить черным ходом каждую квартиру означало бы существенно перерасходовать площади (на это вряд ли бы согласился инвестор), но входные зоны с пассажирскими лифтами и холлы грузовых лифтов архитекторы друг от друга отделили: в подъезды можно попасть из внутреннего двора, а стройматериалы или мебель загрузить прямо с улицы. Туда же ориентирована вся загрузка общественных зон комплекса, благодаря чему внутренний двор хоть и не закрыт от города и визуально с ним связан, но превращается в самодостаточное пространство, предназначенное лишь для жильцов домов, – живописное плато  между двух горных вершин.
Андрей Никифоров, главный архитектор проекта
Андрей Никифоров, главный архитектор проекта
Конкурсный проект высотного жилого дома класса de luxe в Пятигорске
Конкурсный проект высотного жилого дома класса de luxe в Пятигорске
© АМ Сергей Киселев и Партнеры
Конкурсный проект высотного жилого дома класса de luxe в Пятигорске
Конкурсный проект высотного жилого дома класса de luxe в Пятигорске
© АМ Сергей Киселев и Партнеры
Конкурсный проект высотного жилого дома класса de luxe в Пятигорске
Конкурсный проект высотного жилого дома класса de luxe в Пятигорске
© АМ Сергей Киселев и Партнеры
Конкурсный проект высотного жилого дома класса de luxe в Пятигорске
Конкурсный проект высотного жилого дома класса de luxe в Пятигорске
© АМ Сергей Киселев и Партнеры
Конкурсный проект высотного жилого дома класса de luxe в Пятигорске
Конкурсный проект высотного жилого дома класса de luxe в Пятигорске
© АМ Сергей Киселев и Партнеры
Конкурсный проект высотного жилого дома класса de luxe в Пятигорске
Конкурсный проект высотного жилого дома класса de luxe в Пятигорске
© АМ Сергей Киселев и Партнеры
Конкурсный проект высотного жилого дома класса de luxe в Пятигорске
Конкурсный проект высотного жилого дома класса de luxe в Пятигорске
© АМ Сергей Киселев и Партнеры
Конкурсный проект высотного жилого дома класса de luxe в Пятигорске
Конкурсный проект высотного жилого дома класса de luxe в Пятигорске
© АМ Сергей Киселев и Партнеры
Конкурсный проект высотного жилого дома класса de luxe в Пятигорске
Конкурсный проект высотного жилого дома класса de luxe в Пятигорске
© АМ Сергей Киселев и Партнеры
Конкурсный проект высотного жилого дома класса de luxe в Пятигорске
Конкурсный проект высотного жилого дома класса de luxe в Пятигорске
© АМ Сергей Киселев и Партнеры
Конкурсный проект высотного жилого дома класса de luxe в Пятигорске
Конкурсный проект высотного жилого дома класса de luxe в Пятигорске
© АМ Сергей Киселев и Партнеры
Конкурсный проект высотного жилого дома класса de luxe в Пятигорске
Конкурсный проект высотного жилого дома класса de luxe в Пятигорске
© АМ Сергей Киселев и Партнеры
Конкурсный проект высотного жилого дома класса de luxe в Пятигорске
Конкурсный проект высотного жилого дома класса de luxe в Пятигорске
© АМ Сергей Киселев и Партнеры