Размещено на портале Архи.ру (www.archi.ru)

14.09.2011

Театр в кубе

Анна Мартовицкая
Объект:
Оперный театр (конкурсный проект)
Адрес:
Южная Корея, Пусан.
Архитектор:
Левон Айрапетов
Валерия Преображенская
Мастерская:
TOTEMENT/PAPER
Авторский коллектив:
Левон Айрапетов, Валерия Преображенская, Егор Легков, Аделина Ривкина, Евгений Косцов

В южнокорейском городе Пусане завершился международный открытый архитектурный конкурс на лучший проект оперного театра. Одним из участников этого состязания стало архитектурное бюро TOTEMENT/PAPER.

Оперный театр (конкурсный проект) © Архитектурное бюро «Тотемент/Пейпер»
Оперный театр (конкурсный проект) © Архитектурное бюро «Тотемент/Пейпер»
Пусан – второй по величине и значению после Сеула город Южной Кореи, крупнейший порт этой страны. Он был основан 135 лет назад и сегодня переживает период активного обновления своего имиджа, в том числе и архитектурного Пусан знаменит сразу несколькими сооружениями-рекордсменами, в частности, именно здесь находится самый длинный мост Южной Кореи – Кванъан, работает самый большой универмаг в мире – Shinsegae Centum City, а также возводится один из высочайших небоскребов на планете – Lotte Super Tower. Впрочем, городу этого мало. В рамках обновления Северного порта Чун-гу администрация Пусана намерена построить на небольшом искусственном острове уникальный оперный театр – на проект этого здания, призванного стать новым символом города, был объявлен международный открытый конкурс, в котором могли участвовать как профессиональные архитекторы, так и студенты архитектурных ВУЗов.

Левон Айрапетов и Валерия Преображенская, руководители TOTEMENT/PAPER, вспоминают, что конкурсное задание сразу показалось им очень интересным – прежде всего, из-за самой функции объекта (в состав комплекса следовало включить два зала – для оперных постановок на 2000 мест и универсальный на 1100-1300 мест), его большой площади (до 60000 кв.м) и, конечно, расположения на искусственном острове.  «В своей работе над проектом мы исходили из того, что подобный заказ на общественное здание, являющееся символом культурного развития города и его туристической привлекательности, событие отнюдь не исключительное, и ответов на поставленную задачу существует много, – рассказывают архитекторы. – Поэтому мы решили, что необходимо новое, не приевшееся формообразование, и именно на этом заострили наше внимание, выбирая варианты из эскизов, сделанных по этому поводу в нашем бюро. Образ театра для нас должен был совмещать ощущение невероятности (чуда), дерзкости и быть «не-знакомым». Нам также казалось необходимым, чтобы «восточное» – корейское – считывалось в создаваемом образе. Учитывая, что конкурсное задание было сформулировано крайне абстрактно, мы решили, что здание должно предусматривать возможность перекомпановки функций при сохранении образа. Все вместе это и определило способ формообразования: структура состоит из простых объемов, скомпанованных с учетом связей и обрезанная простой формой, поставленной в невероятное положение. При любом изменении в задании по набору помещений и их размеру, действия повторяются подобным образом: простые геометрические формы складываются и обрезаются».

В основу образа здания положен куб. Правда, TOTEMENT/PAPER не были бы собой, если бы позволили кубу просто встать на одну из граней и неподвижно замереть в таком положении, поэтому опорой в данном случае служит ребро. А поскольку, напомним, театр расположен в центре искусственного водоема, то получается, что куб одним из своих углов полностью уходит под воду, а поверхность последней, в свою очередь, отражает и подчеркивает его наклонные грани. Помимо всего прочего, кубическая форма здания сделала одинаково значимыми все фасады театрального здания– по замыслу архитекторов, благодаря этому оно будет одинаково динамично восприниматься и с набережной Пусана, и с моря.

Перед нами куб, максимально открытый своему окружению: многочисленные складки разной глубины, образовавшиеся в ходе складывания сложной формы, делают оболочку здания похожей на искусно снятую кожуру какого-то экзотического фрукта, которая, кажется, то растягивается как пружина, то скручивается в тугую спираль. Динамизм придуманной структуры подчеркнут с помощью материалов: внешние поверхности куба обшиты листами полированного металла, внутренние стены лоджий и лож выкрашены в ярко-красный цвет. «Благодаря металлу, куб своими нижними гранями отражает землю и воду, верхними – небо и солнце, таким образом, объединяя в себе все четыре стихии мира, – поясняют свой замысел архитекторы. – Красный цвет, в свою очередь, способствует возникновению множества визуальных ассоциаций (здание похоже и на ограненный кристалл, и на раскрывающийся цветок, и на «пагоду без основания») и надолго задерживает в памяти этот образ». Конечно, красный цвет был выбран архитекторами еще и потому, что он исторически ассоциируется с театром, особенно оперным, залы которого традиционно украшались именно алым бархатом.

В той части куба, которая уходит под воду (и ниже воды, поскольку чаша водоема приподнята над уровнем земли), расположены кафе, билетные кассы, сувенирные магазины и внутренние дворики с бассейнами. Попасть в подземно-подводную часть театра посетители могут непосредственно с набережной или спустившись по пандусам, прорезающим водоем. С городом же театр связан двумя мостами. Один из них – транспортно-пешеходный, – ведет с набережной под водоем, к опорной части куба, где осуществляется вся необходимая загрузка, а также спроектирована парковка для туристических автобусов. Второй – сугубо пешеходный, – поднимается с набережной к вестибюлю театра на отметку +13 м, а переход по нему превращается в целый пространственный спектакль: с его помощью зрители получают возможность не только рассмотреть пиктограммы водоема, но и обойти сам театр, а также через многочисленные ниши заглянуть внутрь здания.

Необычное путешествие можно продолжить и после того, как вошел в здание: перемещаясь с уровня на уровень и попадая на многочисленные внутренне-внешние площадки, зрители, по замыслу TOTEMENT/PAPER, смогут наблюдать за внутренней жизнью театра, для этого сюда открыты части балетных классов и репетиционных комнат, кухни ресторанов и мастерские декораторов, сцены, офисы и даже часть складских пространств. «Таким образом мы стремились рассказать о грандиозных усилиях сотен людей, создающих завораживающее действие – Театр», – говорят авторы проекта.

Яркое архитектурное решение здания, амфитеатры, парящие между небом и землей, и смотровые площадки, расположенные на всех уровнях здания, с которых открываются великолепные виды на город и океан, делают новый театр неотъемлемой частью городской панорамы, а панораму, в свою очередь, частью незабываемого шоу. И эта взаимосвязь внешнего и внутреннего, простого (внешняя форма куба) и сложного (внутренняя структура здания), отражающего (металл) и поглощающего (отделка интерьера) также очень характерна для TOTEMENT/PAPER – сами они сравнивают свое театральное здание с увертюрой к основному действию, которое ждет зрителя в самом центре куба – одном из двух театральных залов.
Оперный театр (конкурсный проект) © Архитектурное бюро «Тотемент/Пейпер»
Оперный театр (конкурсный проект) © Архитектурное бюро «Тотемент/Пейпер»
Оперный театр (конкурсный проект) © Архитектурное бюро «Тотемент/Пейпер»
Оперный театр (конкурсный проект) © Архитектурное бюро «Тотемент/Пейпер»
Оперный театр (конкурсный проект) © Архитектурное бюро «Тотемент/Пейпер»
Оперный театр (конкурсный проект) © Архитектурное бюро «Тотемент/Пейпер»
Оперный театр (конкурсный проект) © Архитектурное бюро «Тотемент/Пейпер»
Оперный театр (конкурсный проект) © Архитектурное бюро «Тотемент/Пейпер»
Оперный театр (конкурсный проект) © Архитектурное бюро «Тотемент/Пейпер»
Оперный театр (конкурсный проект) © Архитектурное бюро «Тотемент/Пейпер»
Оперный театр (конкурсный проект) © Архитектурное бюро «Тотемент/Пейпер»
Оперный театр (конкурсный проект) © Архитектурное бюро «Тотемент/Пейпер»
Разрез
Разрез
Оперный театр (конкурсный проект) © Архитектурное бюро «Тотемент/Пейпер»
Оперный театр (конкурсный проект) © Архитектурное бюро «Тотемент/Пейпер»
Оперный театр (конкурсный проект) © Архитектурное бюро «Тотемент/Пейпер»
Оперный театр (конкурсный проект) © Архитектурное бюро «Тотемент/Пейпер»
Оперный театр (конкурсный проект) © Архитектурное бюро «Тотемент/Пейпер»
Оперный театр (конкурсный проект) © Архитектурное бюро «Тотемент/Пейпер»
Оперный театр (конкурсный проект) © Архитектурное бюро «Тотемент/Пейпер»
Оперный театр (конкурсный проект) © Архитектурное бюро «Тотемент/Пейпер»
План на отметке +13.000
План на отметке +13.000
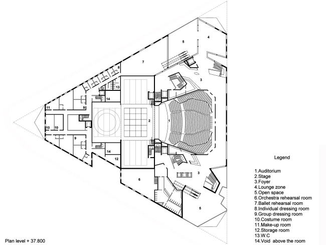
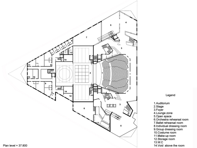
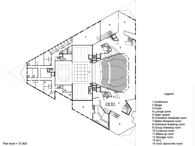
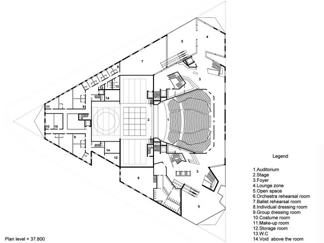
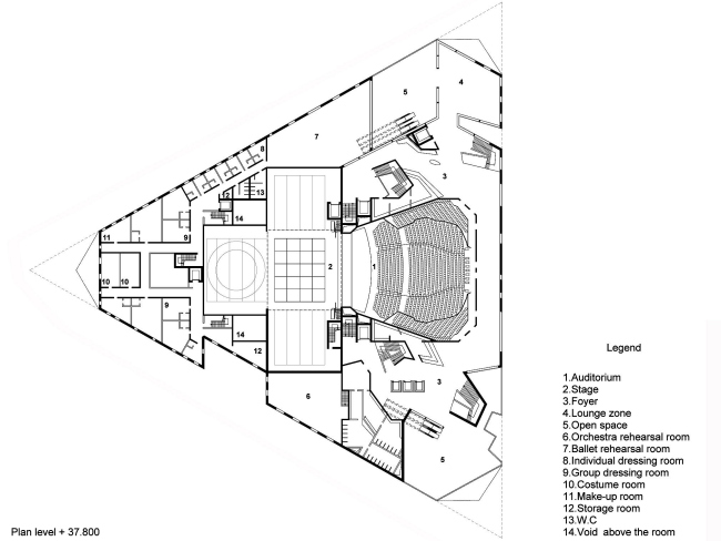
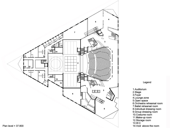
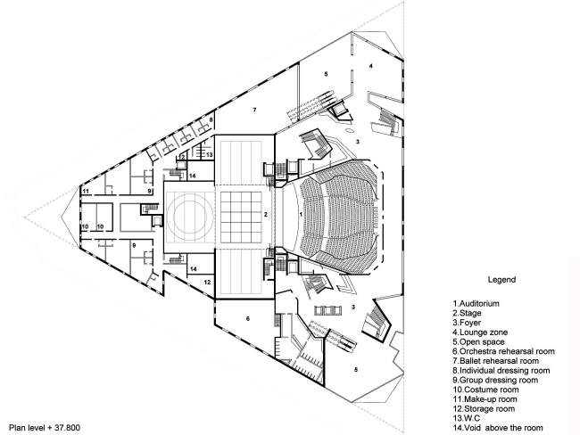
План на отметке +37.800
План на отметке +37.800
План на отметке +74.460
План на отметке +74.460
План на отметке +92.200
План на отметке +92.200
Оперный театр (конкурсный проект) © Архитектурное бюро «Тотемент/Пейпер»
Оперный театр (конкурсный проект) © Архитектурное бюро «Тотемент/Пейпер»
Оперный театр (конкурсный проект) © Архитектурное бюро «Тотемент/Пейпер»
Оперный театр (конкурсный проект) © Архитектурное бюро «Тотемент/Пейпер»
Функциональные диаграммы
Функциональные диаграммы
Морфогенез
Морфогенез