Размещено на портале Архи.ру (www.archi.ru)

08.08.2011

Автономные дуплексы

Объект:
Жилой комплекс Metal Shutter Houses
Адрес:
США, None, Нью-Йорк.

Реализован первый жилой проект Шигеру Бана в Нью-Йорке.

Жилой комплекс Metal Shutter Houses © Shigeru Ban Architects
Жилой комплекс Metal Shutter Houses © Shigeru Ban Architects
Многоквартирный дом на Манхэттене расположен рядом с парком Хай-Лайн, штаб-квартирой IAC Фрэнка Гери и жилым комплексом 100 11th Жана Нувеля и не уступает всем этим сооружениям по оригинальности решения.
Жилой комплекс Metal Shutter Houses © Shigeru Ban Architects
Жилой комплекс Metal Shutter Houses © Shigeru Ban Architects


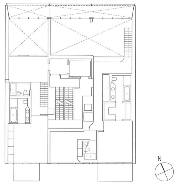
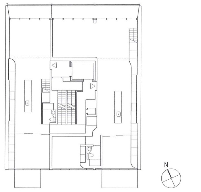
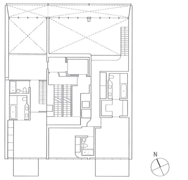
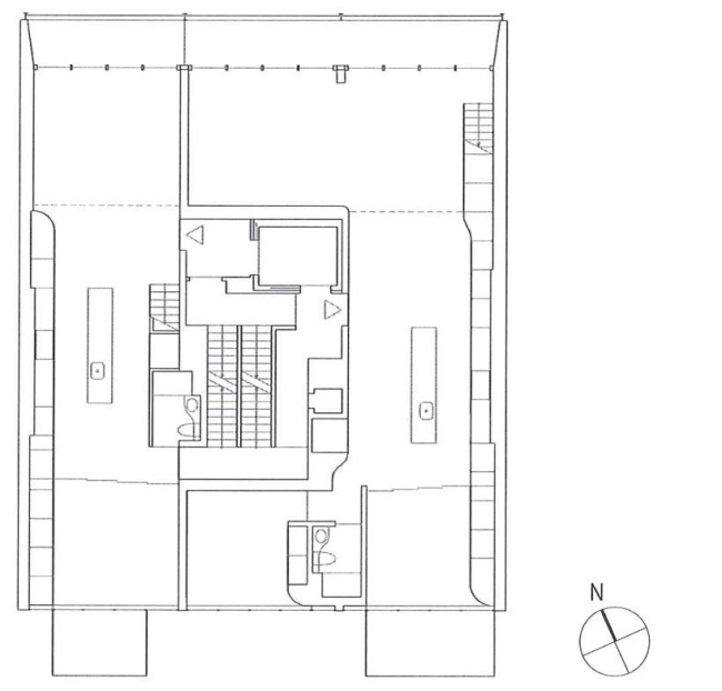
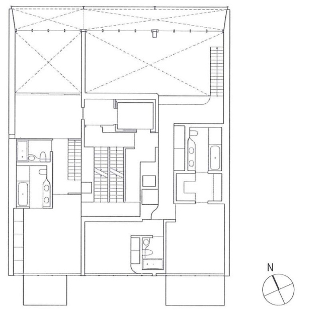
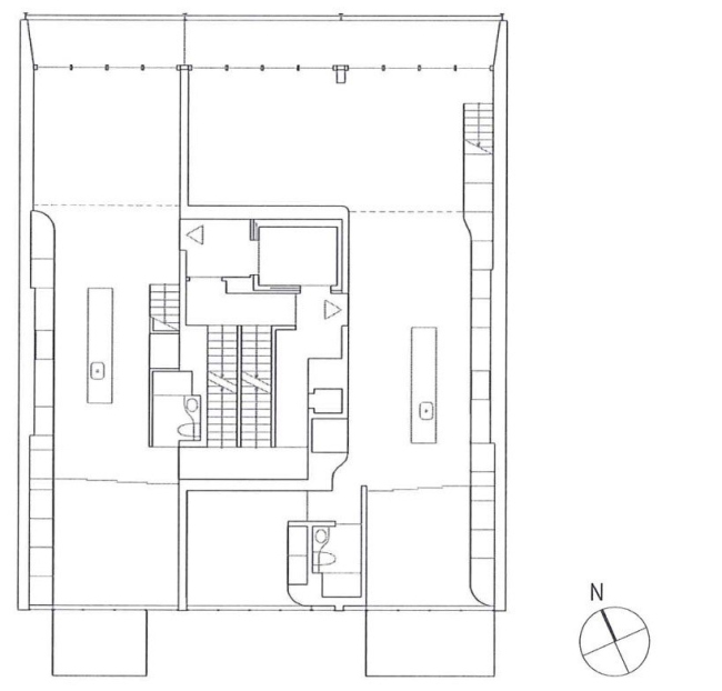
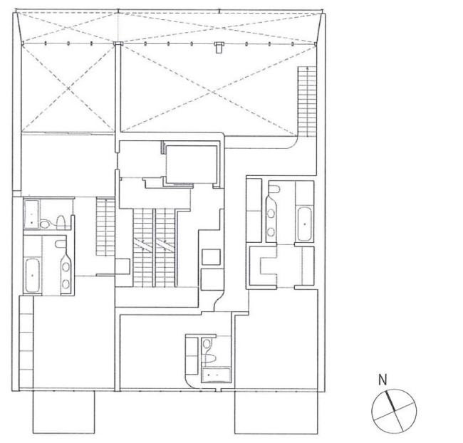
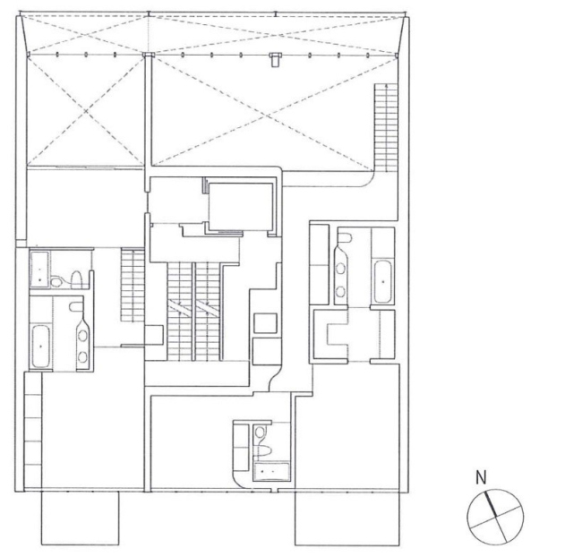
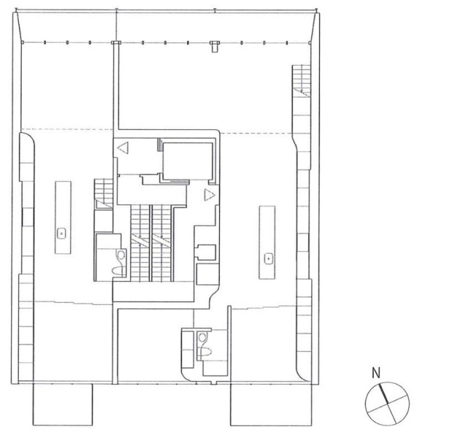
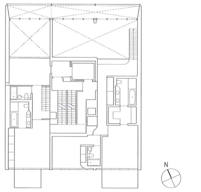
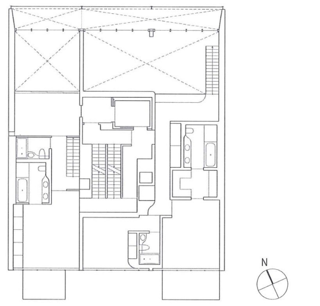
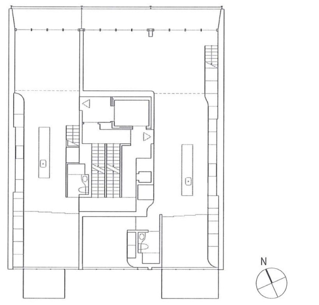
В 36-метровом здании находятся 8 двухуровневых квартир, выходящих одновременно на оба фасада, северный и южный. В каждую из квартир можно попасть непосредственно из лифта, что позволяет жильцам практически забыть о соседях.
Жилой комплекс Metal Shutter Houses © Wade Zimmerman
Жилой комплекс Metal Shutter Houses © Wade Zimmerman


Также чувство автономности подчеркивает возможность регулировать связь жилого пространства с окружающей средой: с севера и юга фасады дома полностью остеклены, но каждый жилец может защитить свою квартиру от солнца и взглядов прохожих с помощью металлических жалюзи — с одной или обеих сторон, от пола до потолка или частично. Этот убирающийся и выдвигающийся с помощью мотора «экран» напоминает о подобных устройствах, защищающих ночью витрины магазинов или же художественных галерей, которых особенно много в округе (одна даже есть в самом здании).
Жилой комплекс Metal Shutter Houses © Shigeru Ban Architects
Жилой комплекс Metal Shutter Houses © Shigeru Ban Architects


Но на этом связь фасадов с индустриальными приспособлениями не заканчивается: остекление в каждой квартире также можно убрать, полностью открыв ее пространство наружу: схема работы таких окон позаимствована у дверей авиационных ангаров.
Жилой комплекс Metal Shutter Houses © Shigeru Ban Architects
Жилой комплекс Metal Shutter Houses © Shigeru Ban Architects


Бан занимался и дизайном интерьеров: вместо стен-перегородок там устроены раздвижные стеклянные двери, с помощью которых можно быстро превратить квартиру в единый зал или поделить ее на функциональные зоны. Кроме того, архитектор продумал оборудование ванной и кухни, встроенные шкафы, разнообразную фурнитуру. Площадь квартир варьируется от 180 м2 до 430 м2.

Н. Ф.
Жилой комплекс Metal Shutter Houses © Shigeru Ban Architects
Жилой комплекс Metal Shutter Houses © Shigeru Ban Architects
Жилой комплекс Metal Shutter Houses © Wade Zimmerman
Жилой комплекс Metal Shutter Houses © Wade Zimmerman
Жилой комплекс Metal Shutter Houses © Shigeru Ban Architects
Жилой комплекс Metal Shutter Houses © Shigeru Ban Architects
Жилой комплекс Metal Shutter Houses © Wade Zimmerman
Жилой комплекс Metal Shutter Houses © Wade Zimmerman
Жилой комплекс Metal Shutter Houses © Wade Zimmerman
Жилой комплекс Metal Shutter Houses © Wade Zimmerman
Жилой комплекс Metal Shutter Houses © Wade Zimmerman
Жилой комплекс Metal Shutter Houses © Wade Zimmerman
Жилой комплекс Metal Shutter Houses © Shigeru Ban Architects
Жилой комплекс Metal Shutter Houses © Shigeru Ban Architects
Жилой комплекс Metal Shutter Houses © Shigeru Ban Architects
Жилой комплекс Metal Shutter Houses © Shigeru Ban Architects
Жилой комплекс Metal Shutter Houses © Shigeru Ban Architects
Жилой комплекс Metal Shutter Houses © Shigeru Ban Architects
Жилой комплекс Metal Shutter Houses © Shigeru Ban Architects
Жилой комплекс Metal Shutter Houses © Shigeru Ban Architects