Размещено на портале Архи.ру (www.archi.ru)

06.10.2011

Практичность в теплых тонах

Анна Гараненко
Объект:
Бизнес-центр «Marr Plaza»
Адрес:
Россия, Москва. ул. С. Макеева, вл. 13
Мастерская:
Архитектурная мастерская «Группа АБВ»
Авторский коллектив:
Руководитель мастерской – Бирюков Н.Ю.,
главный инженер мастерской – Маркова Л.И.,
главный инженер проекта – Саватеев И.В.,
главный архитектор проекта – Темников Д.Г.,
архитекторы – Алешина О.В., Морозова О.А., Железнов П.В., Семенов А.Р., Потешина А.Л., Лях З.В.

Неподалеку от Красной Пресни готовится к открытию новый офисный центр MARR Plaza. Это здание добавляет к пролетарской эстетике старого промышленного района немецкой респектабельности и прагматизма. А фасад при желании можно рассматривать как постиндустриальный манифест: керамические панели рифмуются с кирпичом фабричных цехов, а полированное тонированное стекло – с дорогими иномарками «белых воротничков».

Бизнес-центр «Marr Plaza». Фрагмент. Реализация, 2008 © Архитектурная мастерская «Группа АБВ»
Бизнес-центр «Marr Plaza». Фрагмент. Реализация, 2008 © Архитектурная мастерская «Группа АБВ»
MARR Plaza расположен в 10 минутах ходьбы от метро «Улица 1905 года» – это еще не откровенные промзоны Магистральных улиц, но уже и не центр города. Некоторая промежуточность (не в смысле «неприкаянность» – скорее, золотая середина) расположения позиционирует новостройку не только в пространстве, но и во времени. С верхних этажей девятиэтажного офиса открывается вид на небоскребы «Москва-Сити» – это если не опускать глаза. Если опустить, то можно обнаружить заброшенную автобазу, парковку, несколько догнивающих бараков и старую котельную. В этом контрастном социально-экономическом пейзаже MARR Plaza занимает здоровую нишу среднего класса – устойчивого, основательного, уверенного в себе, не склонного к крайностям. Впрочем, не он один – офисные центры вытесняют из района прежнюю застройку, постепенно меняя характер городской среды: превращают ее из руинированно-промышленной в строгую деловую.

Надо признать, что MARR Plaza преобразует окружающую среду весьма интенсивно. Прямоугольный объем гармонично продолжает ряд кирпичных сталинских домов, выстроившихся здесь вдоль Звенигородского шоссе. Только при ближайшем рассмотрении выясняется, что это не один объем, а два – второй, задний, чуть выше и слегка смещен по отношению к параллелепипеду, выходящему на улицу Макеева. Как поясняют авторы проекта, решение родилось из необходимости обеспечить инсоляцию соседнего жилого дома. Прием получил продолжение на фасаде: окна каждого этажа сдвинуты на полшага, в результате чего на фасаде образуется терракотовое переплетение в виде «елочки». Грозившая монотонностью обширная плоскость фасада получила таким образом ритм и рельеф – и стала напоминать дорогую ткань ручной выделки, что-то вроде твида. Сходства с тканью добавляет дружелюбный, теплый рыжий цвет керамики, которая обильно использована в отделке. Полосатая фактура панелей, разделяющих окна, будучи подсвечена вечером, выглядит как частокол свечей, отчего теплеет, кажется, во всей округе.

Фасады задней части чуть менее нарядны: здесь сплошные стеклянные полосы чередуются с керамическими. Традиционный для офисных зданий горизонтальный ритм оживляют массивные алюминиевые жалюзи. Они не только защищают от солнца (этой части здания достается больше всего света), но и добавляют фасаду глубины, поскольку работают как стереопластины, заставляя картинку меняться в зависимости от точки зрения и угла падения света.

Стоит обратить внимание на то, что фасады были изготовлены как модульные, или элементные – то есть панели (стекло, керамика, эмалит) монтировались в заводских условиях, что позволило максимально быстро собрать их без дополнительной обработки. Здание вообще демонстрирует приверженность к инновациям: например, это единственное офисное здание в Москве с шагом несущих колонн 8 на 12 метров – идеальный вариант для расстановки офисной мебели.  Интерьеры максимально функциональны – центральное ядро с лифтами и свободная планировка (авторы трактуют его как здание-машину, где четкая логичная схема внутреннего пространства позволяет получить максимальный результат от процесса). Двухсветный входной холл отделан, как и фасад, керамическими панелями, а также мрамором и добавляющим тепла  
деревом.   

Офисный центр, строительство которого началось в 2008 году, в самый разгар кризиса – был благополучно сдан в долгосрочную (на срок от 10 лет) аренду крупным международным компаниям. За что и получил премию Commercial Real Estate Awards Moscow 2011 (CRE) в номинации «Бизнес-центр класса A», а также был признан лучшим архитектурным проектом года в области коммерческой недвижимости.
Бизнес-центр «Marr Plaza». Проект, 3D. Реализация, 2008 © Архитектурная мастерская «Группа АБВ»
Бизнес-центр «Marr Plaza». Проект, 3D. Реализация, 2008 © Архитектурная мастерская «Группа АБВ»
Бизнес-центр «Marr Plaza». Проект, 3D. Реализация, 2008 © Архитектурная мастерская «Группа АБВ»
Бизнес-центр «Marr Plaza». Проект, 3D. Реализация, 2008 © Архитектурная мастерская «Группа АБВ»
Бизнес-центр «Marr Plaza». Главный фасад. Реализация, 2008 © Архитектурная мастерская «Группа АБВ»
Бизнес-центр «Marr Plaza». Главный фасад. Реализация, 2008 © Архитектурная мастерская «Группа АБВ»
Бизнес-центр «Marr Plaza». Вид ночью. Реализация, 2008 © Архитектурная мастерская «Группа АБВ»
Бизнес-центр «Marr Plaza». Вид ночью. Реализация, 2008 © Архитектурная мастерская «Группа АБВ»
Бизнес-центр «Marr Plaza». Вид с ул. Сергея Макеева. Реализация, 2008 © Архитектурная мастерская «Группа АБВ»
Бизнес-центр «Marr Plaza». Вид с ул. Сергея Макеева. Реализация, 2008 © Архитектурная мастерская «Группа АБВ»
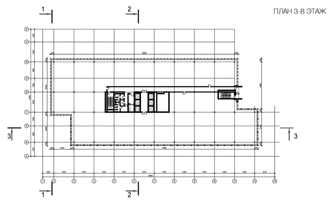
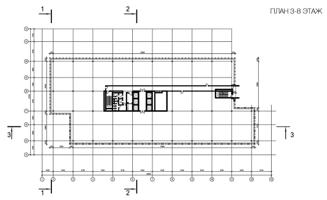
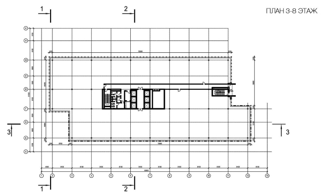
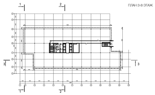
Бизнес-центр «Marr Plaza». План 8 этажа. Реализация, 2008 © Архитектурная мастерская «Группа АБВ»
Бизнес-центр «Marr Plaza». План 8 этажа. Реализация, 2008 © Архитектурная мастерская «Группа АБВ»