Размещено на портале Архи.ру (www.archi.ru)

18.07.2011

Тактичное обновление

Объект:
Национальный морской музей - крыло Сэмми Офера
Адрес:
Великобритания, None, Лондон.
Мастерская:
C. F. Møller

Датское бюро C. F. Møller пристроило новое крыло к Национальному морскому музею в Гринвиче.

Национальный морской музей - крыло Сэмми Офера © National Maritime Museum
Национальный морской музей - крыло Сэмми Офера © National Maritime Museum
Задание, полученное архитекторами в результате конкурса в 2006, было ответственным не только из-за известности музея — его комплекс является седьмым по популярности туристическим объектом Великобритании (во многом благодаря нулевому меридиану, разумеется) с 2 млн. посетителей в год — но и из-за выдающейся историко-архитектурной ценности ансамбля.

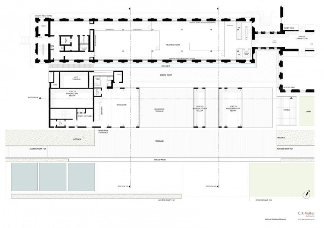
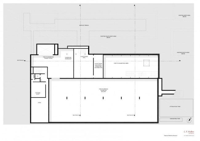
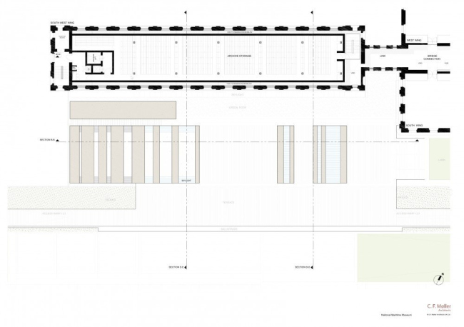
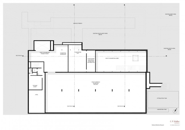
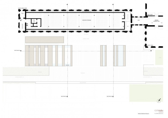
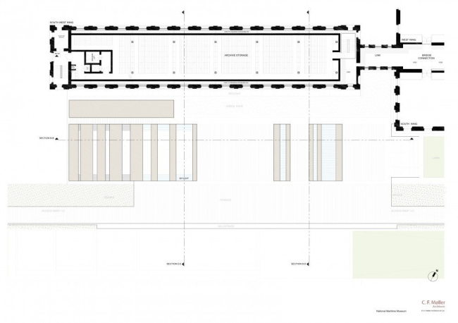
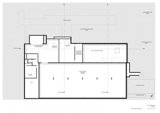
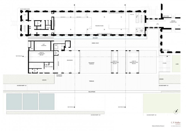
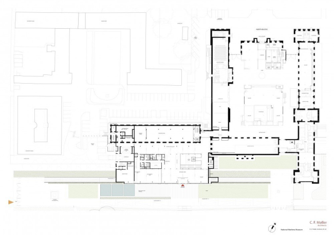
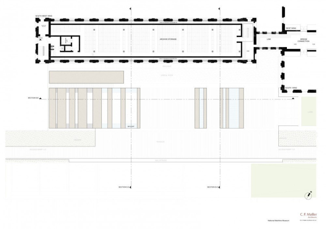
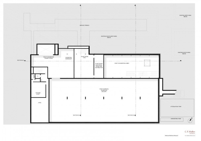
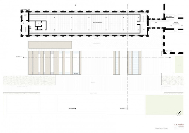
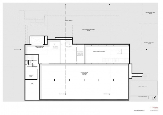
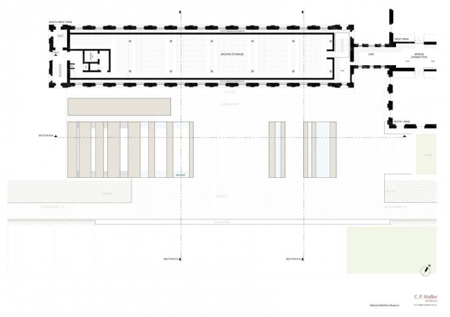
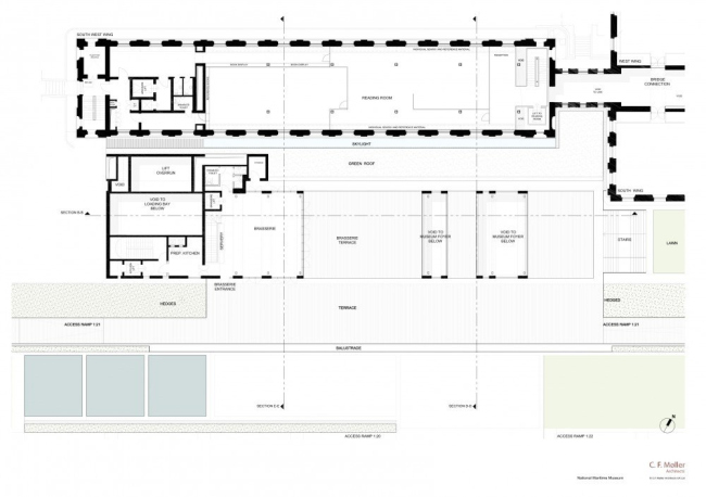
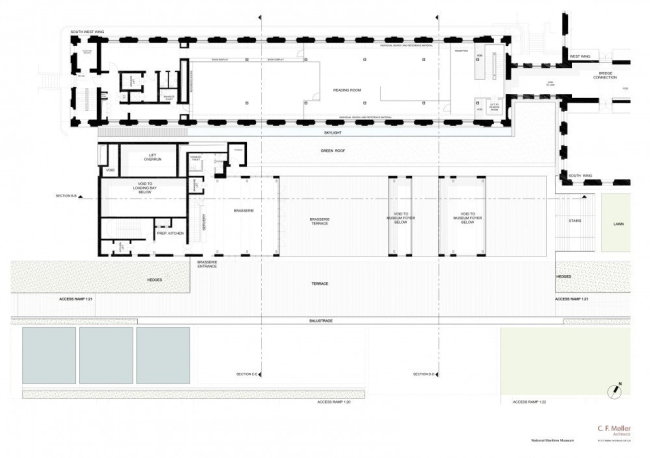
Хотя основные выставочные площади и запасники расположены в корпусах 19 в., музею принадлежат здания Королевского морского госпиталя и обсерватории (оба построены К. Реном) и «Дом королевы» Иниго Джонса. Вся музейная территория является объектом Всемирного наследия ЮНЕСКО, поэтому архитекторам пришлось поместить большую часть своего сооружения под землю (5500 м2 из 7300 м2) — несмотря на то, что речь идет, помимо прочего, о новом главном входе в музей.

Крыша постройки превращена в озелененную террасу с водным каскадом, что, наряду с использованием природного камня, роднит постройку в духе неомодернизма с классицистическим и барочным окружением.

В новом крыле, названном в честь недавно скончавшегося израильского магната-судостроителя Сэмми Офера (он почти полностью профинансировал строительство), расположены выставочные залы, кафе, библиотека и архивы, что особенно важно: значительная часть среди 2 млн. экспонатов музея - это уникальные документы, а также 100 000 книг и манускрипты, занимающие 3,2 км полок.

Н. Ф.
Национальный морской музей - крыло Сэмми Офера © National Maritime Museum
Национальный морской музей - крыло Сэмми Офера © National Maritime Museum
Национальный морской музей - крыло Сэмми Офера © Julian Weyer
Национальный морской музей - крыло Сэмми Офера © Julian Weyer
Национальный морской музей - крыло Сэмми Офера © Julian Weyer
Национальный морской музей - крыло Сэмми Офера © Julian Weyer
Национальный морской музей - крыло Сэмми Офера © Julian Weyer
Национальный морской музей - крыло Сэмми Офера © Julian Weyer
Национальный морской музей - крыло Сэмми Офера © Julian Weyer
Национальный морской музей - крыло Сэмми Офера © Julian Weyer
Национальный морской музей - крыло Сэмми Офера © Julian Weyer
Национальный морской музей - крыло Сэмми Офера © Julian Weyer
Национальный морской музей - крыло Сэмми Офера © Julian Weyer
Национальный морской музей - крыло Сэмми Офера © Julian Weyer
Национальный морской музей - крыло Сэмми Офера © Julian Weyer
Национальный морской музей - крыло Сэмми Офера © Julian Weyer
Национальный морской музей - крыло Сэмми Офера © Julian Weyer
Национальный морской музей - крыло Сэмми Офера © Julian Weyer
Национальный морской музей - крыло Сэмми Офера © Julian Weyer
Национальный морской музей - крыло Сэмми Офера © Julian Weyer
Национальный морской музей - крыло Сэмми Офера © National Maritime Museum
Национальный морской музей - крыло Сэмми Офера © National Maritime Museum
Национальный морской музей - крыло Сэмми Офера © National Maritime Museum
Национальный морской музей - крыло Сэмми Офера © National Maritime Museum
Национальный морской музей - крыло Сэмми Офера © National Maritime Museum
Национальный морской музей - крыло Сэмми Офера © National Maritime Museum
Национальный морской музей - крыло Сэмми Офера ©  Julian Weyer
Национальный морской музей - крыло Сэмми Офера © Julian Weyer
Национальный морской музей - крыло Сэмми Офера ©  Julian Weyer
Национальный морской музей - крыло Сэмми Офера © Julian Weyer
Национальный морской музей - крыло Сэмми Офера ©  Julian Weyer
Национальный морской музей - крыло Сэмми Офера © Julian Weyer
Национальный морской музей - крыло Сэмми Офера ©  Julian Weyer
Национальный морской музей - крыло Сэмми Офера © Julian Weyer
Национальный морской музей - крыло Сэмми Офера © Julian Weyer
Национальный морской музей - крыло Сэмми Офера © Julian Weyer
Национальный морской музей - крыло Сэмми Офера © Julian Weyer
Национальный морской музей - крыло Сэмми Офера © Julian Weyer
Национальный морской музей - крыло Сэмми Офера © Julian Weyer
Национальный морской музей - крыло Сэмми Офера © Julian Weyer
Национальный морской музей - крыло Сэмми Офера © C. F. Moller
Национальный морской музей - крыло Сэмми Офера © C. F. Moller
Национальный морской музей - крыло Сэмми Офера © C. F. Moller
Национальный морской музей - крыло Сэмми Офера © C. F. Moller
Национальный морской музей - крыло Сэмми Офера © C. F. Moller
Национальный морской музей - крыло Сэмми Офера © C. F. Moller
Национальный морской музей - крыло Сэмми Офера © C. F. Moller
Национальный морской музей - крыло Сэмми Офера © C. F. Moller
Национальный морской музей - крыло Сэмми Офера © C. F. Moller
Национальный морской музей - крыло Сэмми Офера © C. F. Moller
Национальный морской музей - крыло Сэмми Офера © C. F. Moller
Национальный морской музей - крыло Сэмми Офера © C. F. Moller
Национальный морской музей - крыло Сэмми Офера © C. F. Moller
Национальный морской музей - крыло Сэмми Офера © C. F. Moller
Национальный морской музей - крыло Сэмми Офера © C. F. Moller
Национальный морской музей - крыло Сэмми Офера © C. F. Moller
Национальный морской музей - крыло Сэмми Офера © C. F. Moller
Национальный морской музей - крыло Сэмми Офера © C. F. Moller