Размещено на портале Архи.ру (www.archi.ru)

29.08.2011

Искусная пластика

Анна Мартовицкая
Объект:
Частный жилой дом в поселке «Сокол»
Адрес:
Россия, Москва.
Мастерская:
АСБ Карлсон & К

Этот дом с необычной кровлей в московском поселке художников «Сокол» несколько лет назад построил архитектор Владислав Платонов (АСБ «Карлсон и К»).

В этот проект Платонов входил постепенно. Сначала архитектор получил заказ на разработку интерьеров – к тому времени сам особняк уже вовсю строился по проекту другого автора, – а потом, придумывая внутренний облик дома, в полной мере осознал необходимость реконструкции его внешней оболочки и, что самое удивительное, смог убедить в этом заказчиков. Реконструировать действительно было что: на небольшом участке возводился массивный, многосоставной объем, который грозил подавить соседние коттеджи. Еще больше ситуация осложнялась тем, что сам участок расположен на одном из перекрестков поселка – понятно, что громоздкий «сундук» мог изменить его до неузнаваемости. При этом у Владислава Платонова, конечно, не было возможности снести полупостроенный объект, поэтому архитектор работал с тем, что есть, приложив максимум усилий для того, чтобы нивелировать внушительность сооружения, «растворить» его в окружающем пространстве.

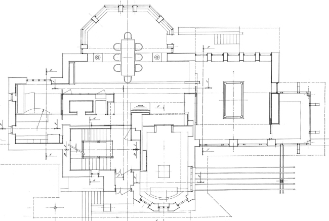
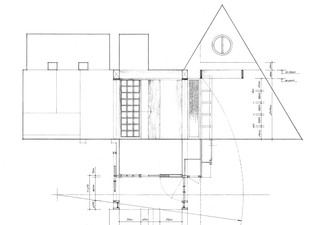
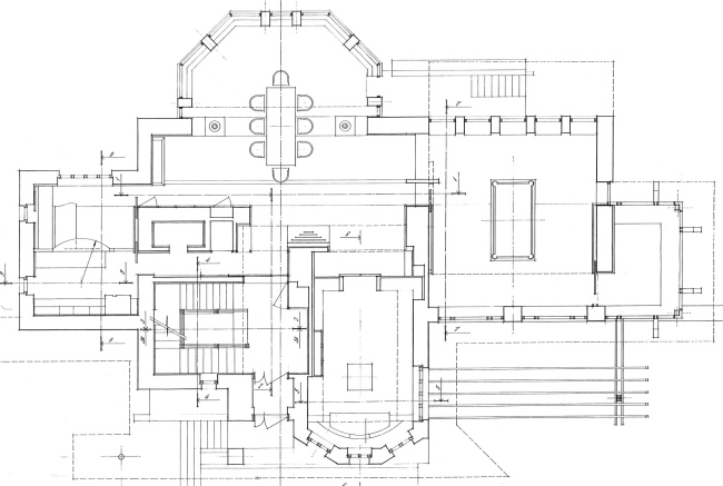
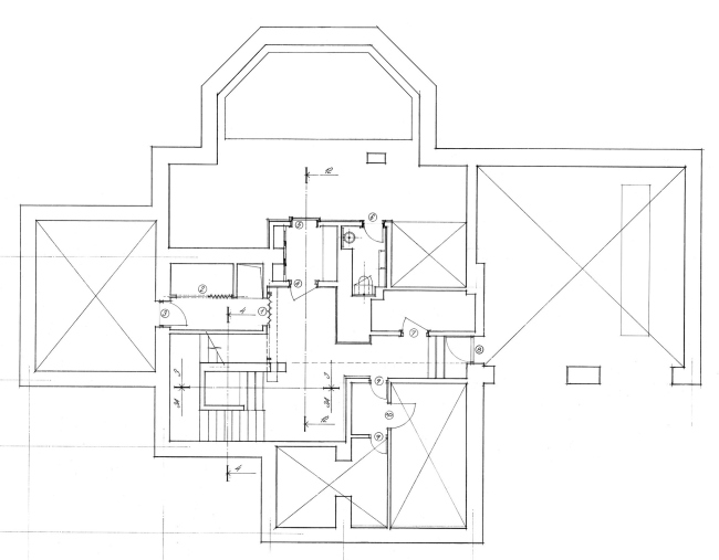
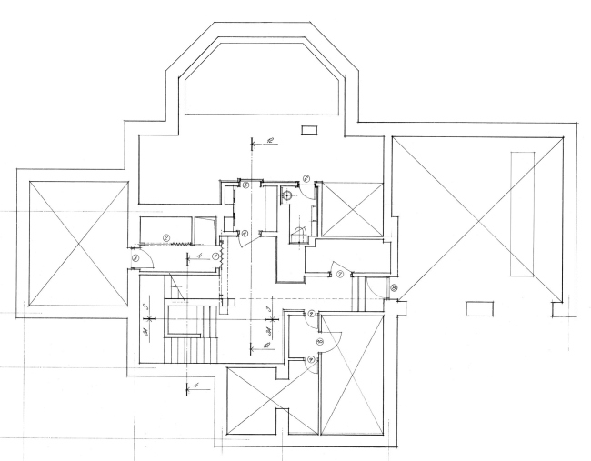
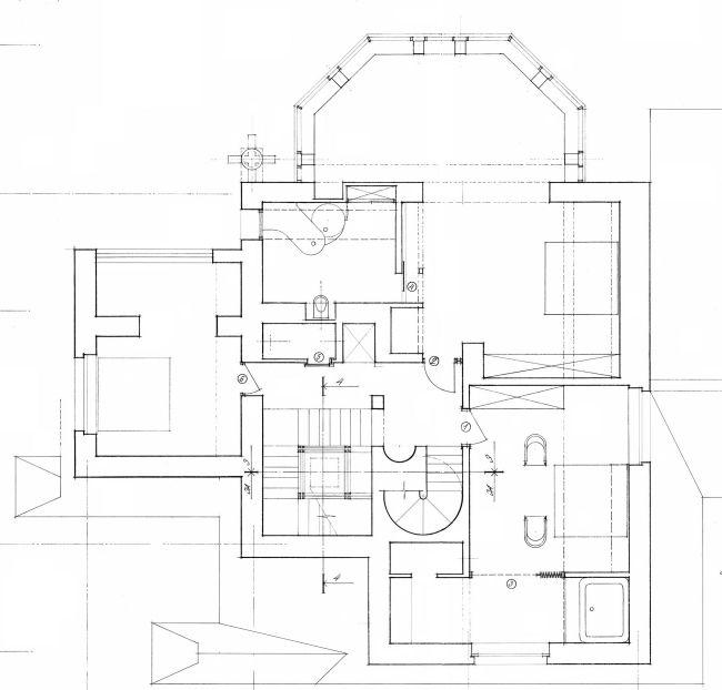
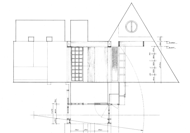
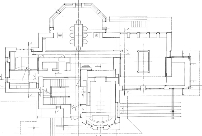
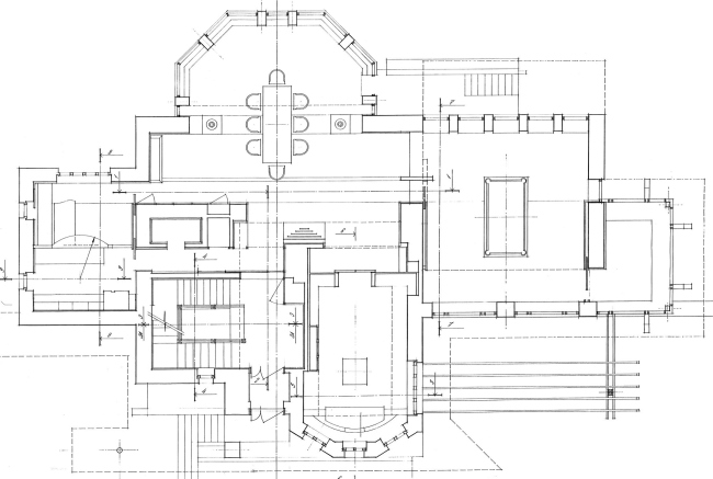
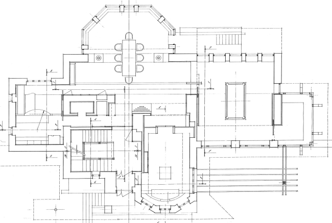
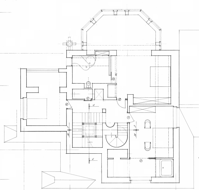
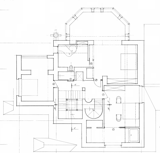
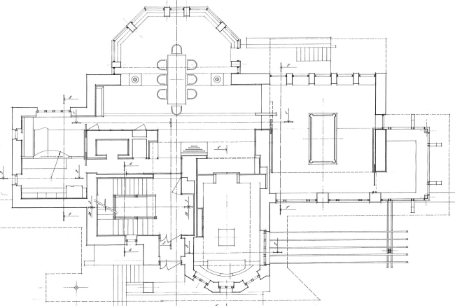
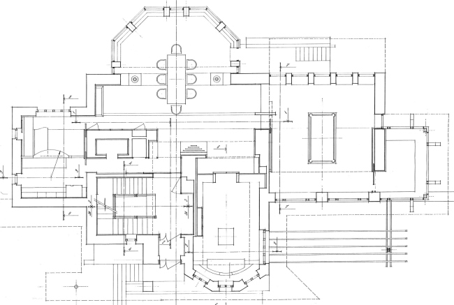
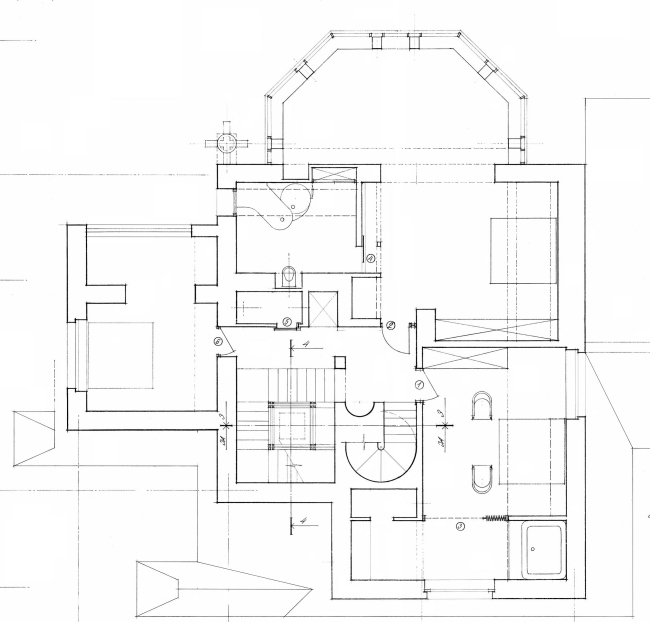
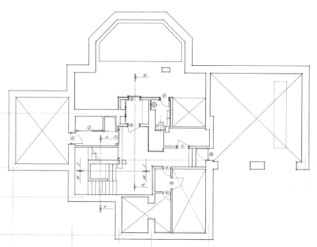
В первую очередь архитектор хотел изменить масштаб тех фасадов, которые обращены к перекрестку. Чтобы сделать эти «представительские» стороны более соразмерными своим визави, Платонов притянул свесы кровли почти к самой земле, а пристроенные к основному объему гараж и веранду сделал максимально открытыми, накрыв их нарочито удлиненными навесами. Вообще все толстые, почти крепостные стены, нарисованные предшественником Платонова, в итоге были рассечены на отдельные, более мелкие фрагменты. Особенно хорошо это видно на плане: стены истончились и словно «расступились», освободив место отдельным опорам.

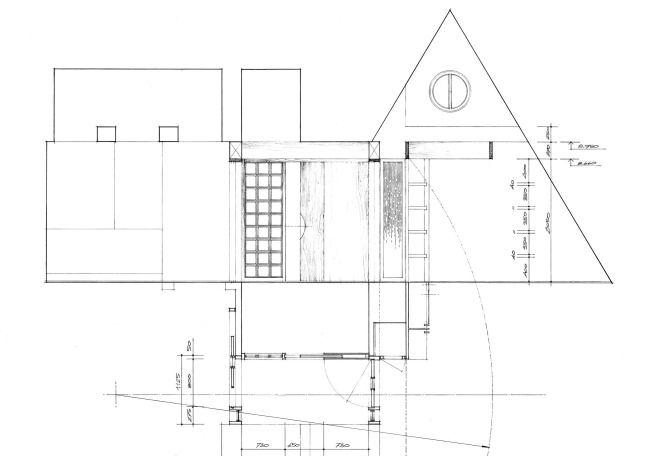
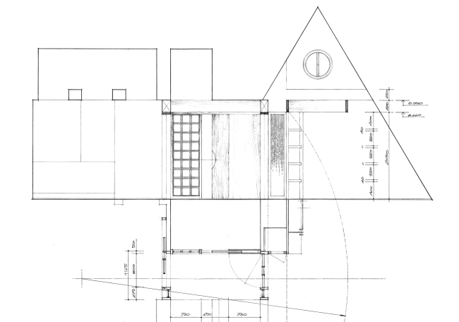
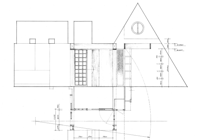
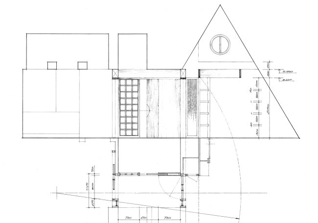
Введенная таким образом в облик дома игра плоскостей визуально дробит крупный объем на несколько более мелких – эта тема активно развивается на двух других фасадах дома, где многогранные эркеры чередуются с фронтонами и окнами разных размеров и форм. Очень эффектным получился и высокий фронтон на главном фасаде, где конек кровли «пробит» двумя белыми вертикалями балок, – помимо общей выразительности силуэта, этот элемент играет и важную утилитарную роль: на нем размещена массивная антенна спутникового телевидения.

Два слова необходимо сказать и о колористике этого объекта. Для стен Владислав Платонов, не задумываясь, выбрал белый цвет – вряд ли какой другой тон способен визуально облегчить крупный объем, сделать его столь же торжественным. А вот от традиционной коттеджной гаммы «светлые стены – темная кровля» архитектор, наоборот, предпочел отказаться. По фотографиям, к сожалению, это понять довольно сложно, а вот когда знакомишься с домом в реальности, его необычное цветовое решение с первого взгляда покоряет своей нарядностью и мягкостью. Дело в том, что в роли ключевого элемента make up выступают сиреневато-серая мягкая кровля «Экопал» и насыщенный фиолетовый цвет края кровли – обшивки стропил конструкции. Таким же цветом отделаны каминные трубы и оконные переплеты.

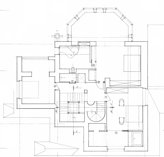
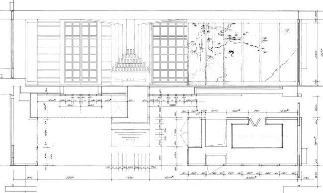
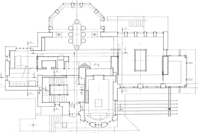
В оформлении интерьеров этого дома, который сам автор часто называет «фантазией на тему модерна» (аллюзии на северный модерн в облике этого особняка действительно очевидны), доминирует натуральное дерево разных пород и оттенков. И если снаружи особняк кажется собранным из множества разрозненных элементов, то в его внутренней структуре главенствующая роль, наоборот, отдана принципу единого пространства. В частности, все общественные зоны первого этажа Платонов увязывает друг с другом: в эту парадную часть, решенную как своеобразная анфилада, раскрывающаяся вдоль продольной оси здания, входят прихожая и лестничный холл, большая гостиная и диванная, а также бильярдная. Интересно, что эркеры при этом (один расположен в гостиной, другой в диванной) хоть и находятся друг напротив друга, но не совпадают осями симметрии: по замыслу архитектора, это привносит в пространство дома дополнительный динамизм, так как дает возможность видеть оба центра притяжения «общественной» жизни под самыми разными углами зрения. Максимально разнообразить визуальные впечатления при движении по дому и лишить его помещения замкнутости Платонову помогает и выбранный в качестве основной темы геометрический рисунок – простой, но имеющий сотни вариаций: и обшивка стен, и дверные полотна, и встроенные шкафы выполнены из деревянных пересекающих планок.

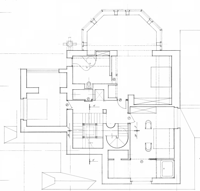
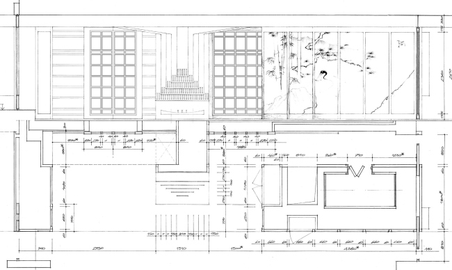
Большая часть мебели, в том числе встроенной, выполнена по авторским эскизам, придумал для этого дома Владислав Платонов и светильники – металлические остроугольные конструкции, по форме напоминающие днище корабля, – а также камин, выполненный из наложенных друг на друга в шахматном порядке черных и белых листов металла. Но, пожалуй, самым необычным элементом этого интерьера является парадная лестница, организованная вокруг псевдоатриума, потолок которого выложен панелями полированного стекла, а роль опор играют разветвляющиеся кверху деревянные колонны.

Как и в предыдущей работе Владислава Платонова, также реализованной в поселке «Сокол», в этом проекте главную роль играют качество проработки каждой детали. Дом, архитектурный облик которого развивался «изнутри наружу», напоминает сложный пазл, собранный из мельчайших фрагментов в искусное полотно, к которому нечего прибавить.