Размещено на портале Архи.ру (www.archi.ru)

28.11.2011

Каждой паре по паре

Анна Мартовицкая
Объект:
Жилой дом на Саввинской набережной
Адрес:
Россия, Москва. Саввинская набережная, вл. 17
Архитектор:
Владимир Плоткин
Мастерская:
ТПО «Резерв»
Авторский коллектив:
Архитекторы: В.Плоткин, С.Успенский, С.Сенкевич, Е.Быкова. Инженер: Р.Каюмов

На Саввинской набережной, рядом с так называемым «Японским домом», Владимир Плоткин спроектировал жилой комплекс, имеющий несколько зеленых террас.


Жилой дом на Саввинской набережной © ТПО «Резерв»
Жилой дом на Саввинской набережной © ТПО «Резерв»
Участок, выделенный под строительство жилого комплекса, имеет адрес «Саввинская, 17». Сегодня на этом месте расположен четырехэтажный дом, выходящий на набережную затрапезным торцом. При взгляде на карту кажется, что это и вовсе боковое крыло расположенного рядом сталинского дома, ориентированного вдоль Москвы-реки, однако в реальности между ними обнаруживается скромный разрыв. Кроме того, строение №17 заметно ниже своих ближайших соседей, поэтому при движении по набережной или, скажем, с воды, во время прогулки на теплоходе, это место визуально воспринимается как провал, невнятная затертая заплатка на речном фасаде города. Другое дело, что Саввинская набережная в принципе не может похвастаться сложившимся архитектурным обликом: исторически она застраивалась заводами и фабриками, которые теперь в массе своей уже не функционируют и затянуты строительной сеткой. Город и инвесторы сообща пытаются исправить ситуацию: сразу несколько площадок готовятся к реконструкции, а на проекты их застройки проводятся архитектурные конкурсы. Об одном из них – на проект жилого комплекса на месте бывшего прядильно-ткацкого производства «Гардтекс» Архи.ру уже рассказывал (правда, итоги этого состязания так и не были подведены, а заказ ушел к бюро, которое в нем не участвовало), о втором, в котором лучшим было признано предложение ТПО «Резерв», речь и пойдет сейчас.

Итак, участникам конкурса предстояло на место имеющегося дома вписать жилой комплекс большей площади и этажности, обеспечив при этом квартиры видами на реку и не испортив инсоляцию соседним зданиям (офисному и жилому). Впрочем, это, конечно, не все: главной архитектурной задачей было решение «фасадного вопроса» – имеющийся унылый торец надлежало заменить на столь же узкий по ширине, но гораздо более выразительный по внешности, сделав именно выходящий на реку фасад визитной карточкой нового комплекса.

Сначала архитекторы ТПО «Резерв» нарисовали на месте сносимого дома плотный прямоугольный объем. Понятно, что именно эта форма способна дать максимальный выход площадей, что всегда так импонирует заказчикам. Однако у параллелепипеда были и темные стороны, причем в самом прямом смысле: большая часть квартир в таком доме не получила бы достаточного количества солнечного света и даже мечтать не смогла бы о видах на реку. Поэтому исходный «брусок» архитекторы поделили на четыре равные части и начали смещать их относительно друг друга таким образом, чтобы каждая следующая оказалась чуть правее предыдущей. Очень кстати оказался и имеющийся довольно сильный перепад рельефа: двигая каждый следующий «кубик» правее, Плоткин одновременно поднимает его на этаж выше, так что в итоге комплекс представляет собой эдакую лестницу, ориентированную по диагонали.

В такой ситуации идея двухуровневых квартир на последних этажах, имеющих выходы на озелененные террасы, разбитые на кровлях более низких корпусов, конечно, напрашивалась сама собой. Однако архитекторы не стали ограничиваться зелеными «ступенями» кровель, но включили насаждения в состав комплекса и на уровне первого этажа. Фактически дом со всех сторон «обнимают» новые скверы, а для того, чтобы увеличить их площадь, авторы максимально сужают пятно застройки: на первом этаже комплекса расположены лишь входной вестибюль, два лифтовых холла и коридор-галерея, соединяющий их между собой, а жилые этажи нависают над ним консолью.

Поскольку в каждом из четырех блоков расположено по одной квартире на этаже, двух лифтов на весь комплекс более чем достаточно: они неизбежно «съедают» некоторую  площадь, и благодаря этому в доме появляются квартиры нескольких типов – трешка поменьше (183 кв.м.) и трешка побольше (почти 200 кв.м.), а также 4 двухуровневые квартиры. Под домом расположена подземная парковка, также насчитывающая два уровня и унаследовавшая от первоначального параллелепипеда свою практичную прямоугольную форму, благодаря которой сможет вместить 62 автомобиля (между прочим, получается почти фантастический для центра Москвы коэффициент в 2,5 машиноместа на квартиру).

В корпусе, непосредственно выходящем на набережную, всего шесть этажей. Правда, это высокие этажи, полностью удовлетворяющие современным требованиям к элитному жилью, поэтому с расположенным рядом семиэтажным «сталинским» домом новый объем одного роста. На близкое соседство проектируемый комплекс отвечает широкой лентой карниза: в более высоких, сдвинутых в глубину участка блоках он также присутствует, играя роль навеса над террасой для двухуровневых квартир.  

Диагональ, определившая композицию всего комплекса, играет ключевую роль и в оформлении его фасадов. Тот, что обращен к реке, словно заштрихован окнами разной ширины, и от этого с одной стороны лаконичного, а с другой вполне самодостаточного рисунка другие корпуса не отвлекают – места сдвижек просто остеклены, так как являются «ловушками» видов и света. Совсем другое дело – боковые фасады. По определению длинные и со многих ракурсов даже более заметные, чем тот, что выходит непосредственно на набережную, они решены максимально фактурно. Так как всего блоков четыре, Владимир Плоткин использует в их оформлении принцип «на первый-второй рассчитайся», создавая на Саввинской веселую перекличку. Первый и третий дома здесь деревянные, второй и четвертый – каменные, причем в каждой паре есть и светлый объем, и темный. При этом каменные фасады украшены сквозными орнаментальными рельефами, во всей красе демонстрирующими изысканность и благородство этого материала, а деревянные, напротив, собраны из сложенных внахлест плит, чья активная тектоника как нельзя лучше соответствует отзывчивой природе дерева. Вместе же фасады создают чрезвычайно пестрый и запоминающийся архитектурный облик, оживляющий застройку набережной и при этом не конфликтующий со своими столь разными соседями. 
Схема генплана.  
Жилой дом на Саввинской набережной © ТПО «Резерв»
Схема генплана. Жилой дом на Саввинской набережной © ТПО «Резерв»

Жилой дом на Саввинской набережной © ТПО «Резерв»
Жилой дом на Саввинской набережной © ТПО «Резерв»
Жилой дом на Саввинской набережной © ТПО «Резерв»
Жилой дом на Саввинской набережной © ТПО «Резерв»

Жилой дом на Саввинской набережной © ТПО «Резерв»
Жилой дом на Саввинской набережной © ТПО «Резерв»

Жилой дом на Саввинской набережной © ТПО «Резерв»
Жилой дом на Саввинской набережной © ТПО «Резерв»

Жилой дом на Саввинской набережной © ТПО «Резерв»
Жилой дом на Саввинской набережной © ТПО «Резерв»

Жилой дом на Саввинской набережной © ТПО «Резерв»
Жилой дом на Саввинской набережной © ТПО «Резерв»

Жилой дом на Саввинской набережной © ТПО «Резерв»
Жилой дом на Саввинской набережной © ТПО «Резерв»
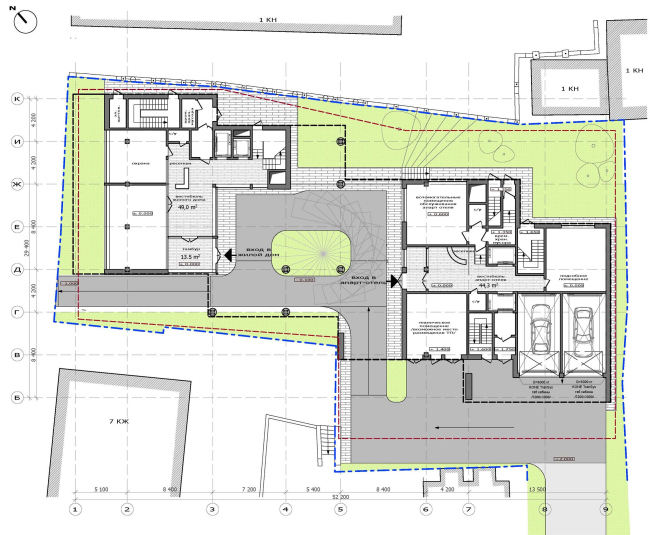
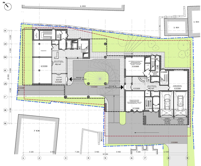
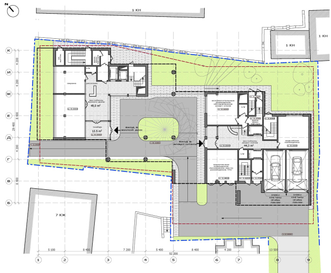
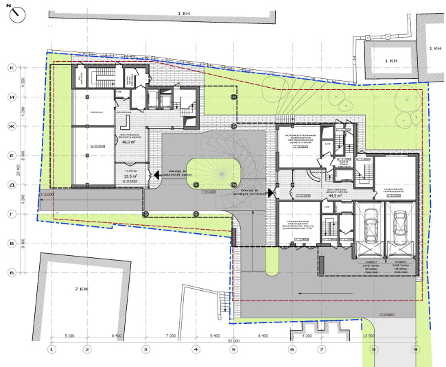
План 1 этажа. Жилой дом на Саввинской набережной © ТПО «Резерв»
План 1 этажа. Жилой дом на Саввинской набережной © ТПО «Резерв»
План 2 этажа. 
Жилой дом на Саввинской набережной © ТПО «Резерв»
План 2 этажа. Жилой дом на Саввинской набережной © ТПО «Резерв»
План 7 этажа. 
Жилой дом на Саввинской набережной © ТПО «Резерв»
План 7 этажа. Жилой дом на Саввинской набережной © ТПО «Резерв»
План 9 этажа. 
Жилой дом на Саввинской набережной © ТПО «Резерв»
План 9 этажа. Жилой дом на Саввинской набережной © ТПО «Резерв»