Размещено на портале Архи.ру (www.archi.ru)

01.07.2011

Рекорд со второй попытки

Объект:
Башня FIRST – реконструкция
Адрес:
Франция, None, Париж.
Мастерская:
KPF - Kohn Pedersen Fox

После реконструкции по проекту бюро KPF небоскреб FIRST в парижском районе Дефанс стал самым высоким во Франции.

Башня FIRST - реконструкция © Hufton + Crow
Башня FIRST - реконструкция © Hufton + Crow
Ранее башня называлась AXA (UAP) и была построена в 1974 архитектором Пьером Дюфо (Pierre Dufau): тогда ее высота даже не приближалась к отметке в 200 м. Теперь же офисное здание достигло общей высоты в 231 м, оставив за собой башню «Монпарнас» (210 м), долгое время бывшую самой высокой и в столице, и во всей Франции.

Следует отметить, что с юридической точки зрения Дефанс не входит в состав Парижа, но де-факто является его деловым центром и сосредоточением большинства высотных зданий (за исключением Эйфелевой башни (300 м), остающейся самым высоким сооружением города, и башни «Монпарнас», расположенной в границах «малого» Парижа). Это качество сохранится и впредь: в ближайшем будущем в Дефансе планируется построить башни около и даже более 300 м высотой по проектам Тома Мейна, Жана Нувеля и Нормана Фостера.

Но нынешний рекордсмен, башня FIRST, интересна в первую очередь тем, что это реконструкция. С экологической точки зрения было правильнее перестроить здание, а не сносить и возводить на его месте новое. «Зеленые» принципы воплощены и в самом проекте KPF: в первую очередь, это касается новой энергоэффективной облицовки. Изначальная структура здания из трех «лопастей» вокруг центрального ядра была сохранена, но в бетонных стенах были сделаны новые проемы, облегчающие естественное освещение интерьеров (не говоря уже о доступе сотрудников к эффектным видам Парижа). На данный момент башня является крупнейшим в стране офисным зданием, получившим национальный сертификат экологичности HQE (Haute qualité environnementale).

Н. Ф.
Башня FIRST - реконструкция © Hufton + Crow
Башня FIRST - реконструкция © Hufton + Crow
Башня FIRST - реконструкция © Hufton + Crow
Башня FIRST - реконструкция © Hufton + Crow
Башня FIRST - реконструкция © Hufton + Crow
Башня FIRST - реконструкция © Hufton + Crow
Башня FIRST - реконструкция © Hufton + Crow
Башня FIRST - реконструкция © Hufton + Crow
Башня FIRST - реконструкция © Hufton + Crow
Башня FIRST - реконструкция © Hufton + Crow
Башня FIRST - реконструкция © Hufton + Crow
Башня FIRST - реконструкция © Hufton + Crow
Башня FIRST - реконструкция © Hufton + Crow
Башня FIRST - реконструкция © Hufton + Crow
Башня FIRST - реконструкция © Hufton + Crow
Башня FIRST - реконструкция © Hufton + Crow
Башня FIRST - реконструкция © KPF
Башня FIRST - реконструкция © KPF
Башня FIRST - реконструкция © KPF
Башня FIRST - реконструкция © KPF
Башня FIRST - реконструкция © KPF
Башня FIRST - реконструкция © KPF
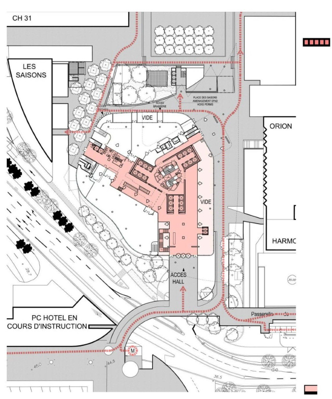
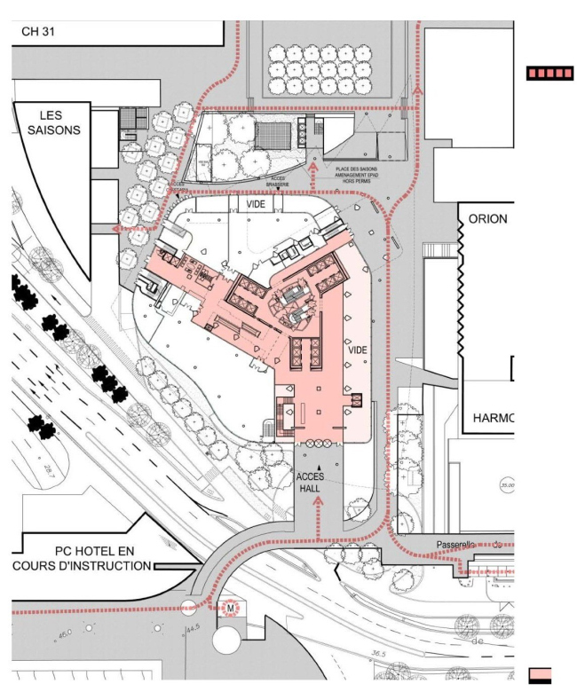
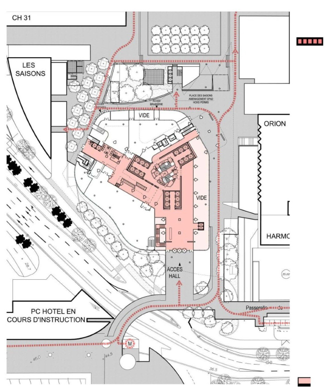
Башня FIRST - реконструкция. Пешеходный мост и вход в здание © KPF
Башня FIRST - реконструкция. Пешеходный мост и вход в здание © KPF
Башня FIRST - реконструкция © KPF
Башня FIRST - реконструкция © KPF
Башня FIRST - реконструкция © KPF
Башня FIRST - реконструкция © KPF