Размещено на портале Архи.ру (www.archi.ru)

05.07.2011

Консоли на склоне

Анна Мартовицкая
Объект:
Загородный жилой дом в Подмосковье-1
Адрес:
Россия, Москва.
Архитектор:
Роман Леонидов
Мастерская:
АБ Романа Леонидова
Авторский коллектив:
Автор проекта: Роман Леонидов. Дизайнер: Ксения Гусева. 3D-Визуализатор: Дмитрий Васильев

В ближайшем Подмосковье архитектор Роман Леонидов спроектировал дом сложной динамичной формы, главную роль в которой играют асимметричные консоли.

Загородный жилой дом в Подмосковье-1 © Архитектурное бюро Романа Леонидова
Загородный жилой дом в Подмосковье-1 © Архитектурное бюро Романа Леонидова

Заказчиками этого проекта выступили молодые супруги, не так давно приобретшие в собственность участок в одном из районов Московской области. Купленный ими надел земли расположен на склоне небольшого холма, который обращен к долине, окруженной многолетними деревьями. Именно этот живописный ландшафт и стал для супругов главным аргументом в пользу приобретения участка, поэтому их первым и основным пожеланием к архитектору было максимальное сохранение природной среды. И, конечно, они очень хотели, чтобы из большинства помещений их дома можно было любоваться окружающими просторами. Как признается Роман Леонидов, это и предопределило композицию коттеджа.

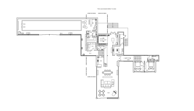
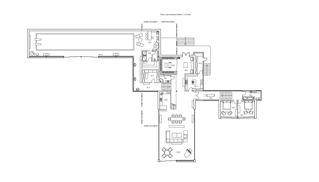
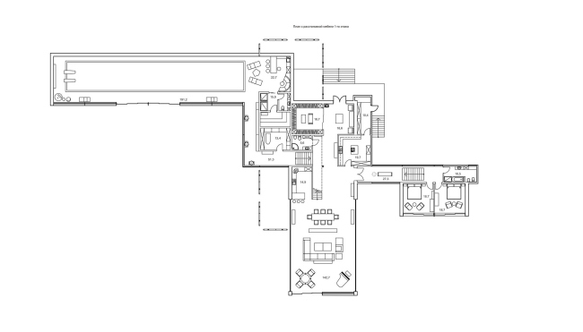
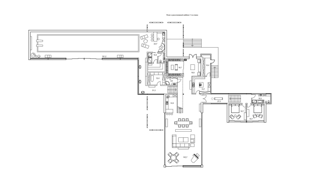
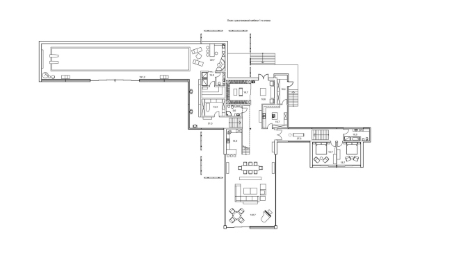
Прежде всего, архитектор развел функции по разным объемам, а объемы, в свою очередь, максимально рассредоточил по склону. У дома появились два независимых крыла, раскинувшихся в разные стороны: в одном расположен бассейн, в другом блок гостевых спален. При этом прямоугольные в плане объемы находятся не на одной оси, а намеренно смещены относительно друг друга, а в центральном «сердечнике» также прямоугольной формы расположены входная зона, лестницы, санузлы и диванная с большим камином, которая при желании может быть трансформирована в домашний кинотеатр.

Еще одна гостиная, совмещенная со столовой, трактована как галерея, панорамные окна которой выходят сразу на три стороны света. Внешне этот объем напоминает телескопический мост или трап, который ради наилучшего обзора выдвинут максимально далеко. Его «механическое» происхождение подчеркивают мощные диагонали оконных переплетов и брутальный каменный «кожух» самой консоли. На кровле галереи организована обширная терраса – с нее, расположенной на уровне крон деревьев, открываются еще более эпические виды окрестностей.

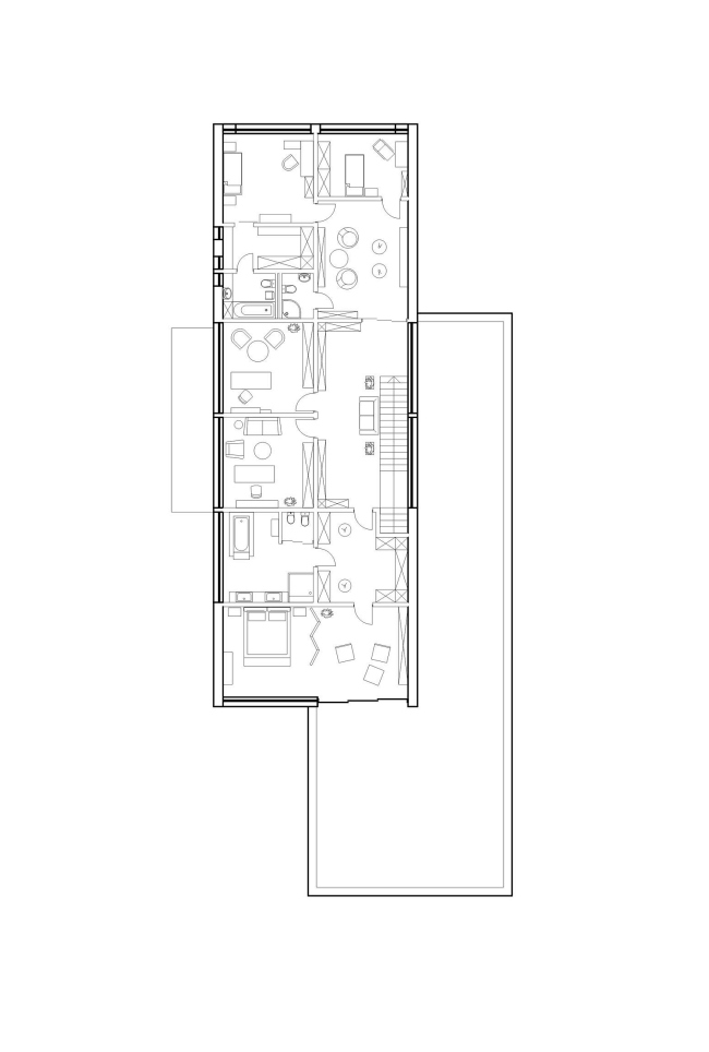
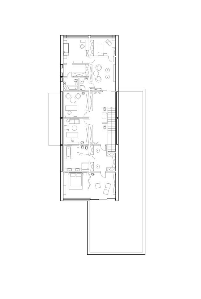
Приватные зоны хозяев – спальня родителей, детские комнаты и вместительная библиотека, – собраны на втором этаже, который тоже решен как вытянутый прямоугольный объем, сдвинутый относительный центра композиции и повисающий над главным входом эффектной консолью. А для того, чтобы визуально облегчить конструкцию и разнообразить ее, Леонидов сдвигает этот объем и относительно расположенной ниже галереи: параллелепипед спален лишь одной своей половиной покоится на «трапе» – вторую же поддерживают тонкие наклонные опоры, и они же с обратной стороны дома «страхуют» основную консоль. «Таким образом получилась очень динамичная форма, лишенная повторов и тем самым очень природная по своей сути, ведь в природе редко что-то повторяется дважды, – поясняет архитектор. – А для того, чтобы чуть-чуть уравновесить, «укротить» природный хаос, в проект и была введена система металлических опор-«ног». Смягчает геометризм и нарочитую как бы случайность композиции и сад круглой формы, разбитый перед домом. 

В соответствии с пожеланиями заказчиков, все помещения дома, включая бассейн и гостевые комнаты, имеют панорамное остекление, максимально впускающее окружающие пейзажи в интерьеры. Еще более условными границы внешнего-внутреннего становятся благодаря использованию в отделке комнат подчеркнуто нейтральных цветов и тех же материалов, что и в отделке фасадов. Извне вовнутрь «перетекают» поверхности из дерева и камня: так, условная граница между столовой и гостиной обозначена той же каменной плиткой, которой оформлены фасады бассейна и цоколя, а ниша для размещения экрана домашнего кинотеатра отделана деревом, присутствующим на фасадах приватного блока. Интересно решена и главная лестница: ее ступени как будто подвешены в воздухе и тем самым напоминают консоли, доминирующие в архитектурном облике дома, а поддерживающие их перекрещенные тросы воспринимаются как явный парафраз наружных наклонных опор.

Очень современный по своей композиции и сочетанию материалов, этот дом в то же время мгновенно опознается как наследник и даже прямой потомок и конструктивистов, и модернистов. Еще совсем недавно спрос на такие коттеджи был ничтожным, разве что для самих себя архитекторы проектировали подобные дома. Но, к счастью, вкусовые предпочтения публики имеют свойство прогрессировать, и столь популярная на Западе неомодернистская стилистика становится все более востребованной и в отечественном загородном строительстве. Роман Леонидов, всегда считавший себя наследником именно этой традиции (как он шутит, фамилия обязывает), активно ее развивает, и данный проект – лучшее тому подтверждение. Вписывая в холмистый подмосковный пейзаж столь сложную ассиметричную форму, «набранную» из простых и предельно лаконичных элементов, автор не просто решает утилитарные задачи по размещению всех необходимых заказчику функций и обеспечению классных видов, но добивается подлинного единения архитектуры и ландшафта.

Ксения Гусева, дизайнер проекта
Ксения Гусева, дизайнер проекта
Загородный жилой дом в Подмосковье-1 © Архитектурное бюро Романа Леонидова
Загородный жилой дом в Подмосковье-1 © Архитектурное бюро Романа Леонидова
Загородный жилой дом в Подмосковье-1 © Архитектурное бюро Романа Леонидова
Загородный жилой дом в Подмосковье-1 © Архитектурное бюро Романа Леонидова
Загородный жилой дом в Подмосковье-1 © Архитектурное бюро Романа Леонидова
Загородный жилой дом в Подмосковье-1 © Архитектурное бюро Романа Леонидова
Загородный жилой дом в Подмосковье-1 © Архитектурное бюро Романа Леонидова
Загородный жилой дом в Подмосковье-1 © Архитектурное бюро Романа Леонидова
Загородный жилой дом в Подмосковье-1 © Архитектурное бюро Романа Леонидова
Загородный жилой дом в Подмосковье-1 © Архитектурное бюро Романа Леонидова
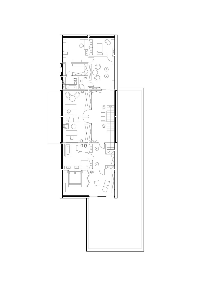
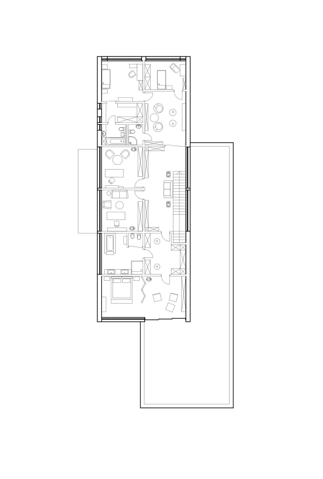
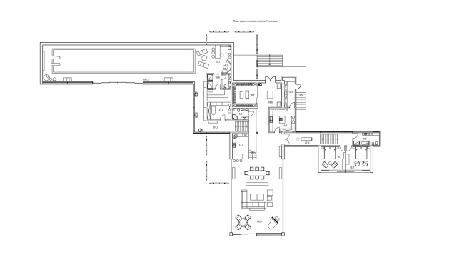
План первого этажа
План первого этажа
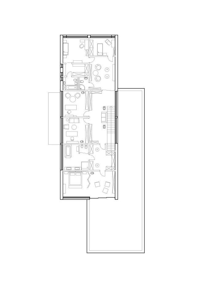
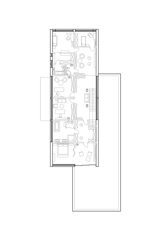
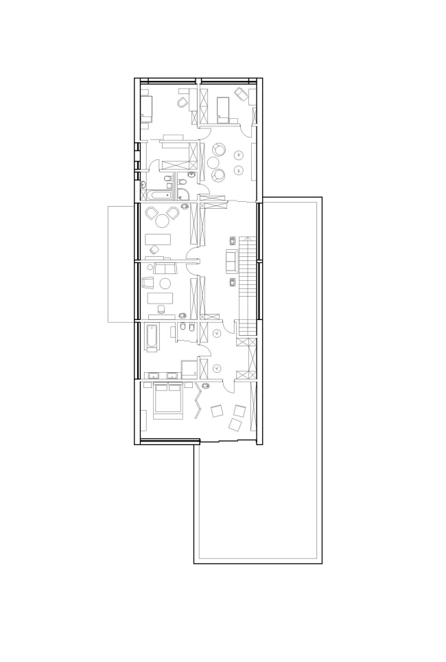
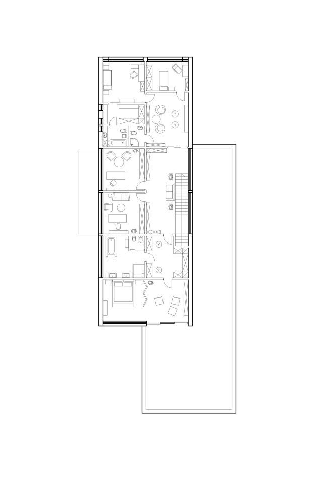
План второго этажа
План второго этажа