Размещено на портале Архи.ру (www.archi.ru)

28.06.2011

Дом ручной работы

Анна Мартовицкая
Объект:
Частный жилой дом в поселке «Сокол»
Адрес:
Россия, Москва.
Мастерская:
АСБ Карлсон & К

В знаменитом поселке художников «Сокол» архитектор Владислав Платонов (АСБ «Карлсон и К») построил черно-белый дом. Наделенный запоминающимся силуэтом и яркой внешностью, особняк, который сам автор называет «Инь-Янь», творчески развивает традиции застройки этого уникального для мегаполиса района.

К участию в проекте Владислав Платонов был приглашен для того, чтобы увеличить площадь уже имевшегося на участке коттеджа. Его реконструкцию владельцы затеяли после того, как в семье появились дети, и на прежней площади стало ощутимо тесно. Чтобы не перестраивать коттедж несколько раз, хозяйка сразу поставила перед архитектором задачу-максимум: увеличить площадь имеющегося объема в три раза. Наверно, в любом другом поселке такая операция прошла бы как по маслу, но на территории «Сокола» действуют жесткие градостроительные регламенты, поэтому Платонову пришлось изрядно поломать голову над тем, как «прирастить» желаемые метры максимально тактично по отношению к сложившемуся окружению.

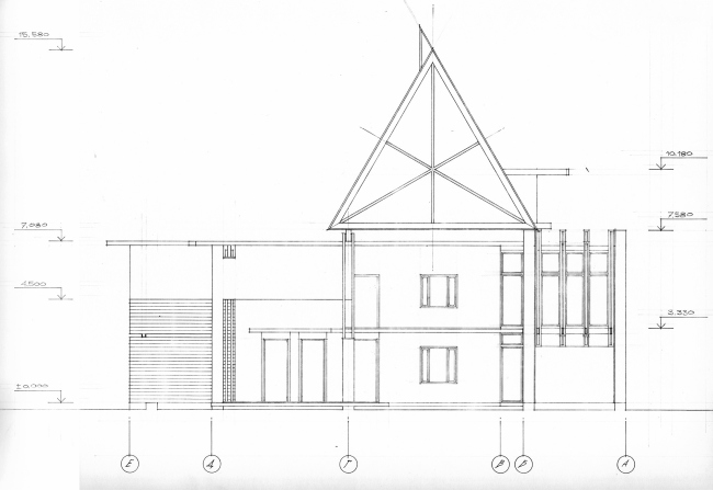
Прежде всего, Владислав Платонов задал сразу два направления развития существующего объема: к дому был пристроен гараж с жилым помещением на втором этаже, а двускатная кровля поднята на высокие стропила. При этом последняя сохранила прежний угол наклона скатов – архитектор сознательно не стал «растягивать» стропила на весь увеличенный объем, с тем, чтобы подросший дом сохранил свой прежний силуэт и не выглядел в поселке гигантом среди лилипутов.

Таким образом, реконструированный дом уподоблен комбинации нескольких разрозненных элементов: это основной жилой объем, который архитектор облицевал черным камнем, гараж, который выкрашен в белый цвет, и высокая пирамида кровли с остроугольным прозрачными фронтонами. На первый взгляд, эта комбинация кажется сложившейся совершенно произвольно, по воле случая, и подобная «необязательность» композиции придает довольно крупному объему визуальную легкость и динамизм. Впрочем, более внимательно изучая дом, быстро обнаруживаешь множество мелких архитектурных деталей, которые, словно незаметные стежки искусного портного, связывают разрозненные элементы в единое полотно. Это и пергола над эксплуатируемой кровлей белого объема, и элегантный «конструктивистский» балкончик, и узкая стеклянная «перемычка» между двумя параллелепипедами, и вынесенная тонкая наклонная опора из черного металла.

Заявленная на фасадах игра материалов в полной мере реализуется и в интерьере дома. Во входной зоне светлый деревянный пол комбинируется с черными стенами, выложенным той же каменной плиткой, что и наружные стены, а образ гостиной построен на взаимопроникновении черных и белых плоскостей, раскрывающих традиционную антитезу «инь и янь» в совершенно неожиданных с точки зрения пластики и геометрии сочетаниях. Жилое пространство второго этажа также разделено на «белую» (детскую) и «черную» (взрослую) половины, а границей между ними служит узкий коридор с темным потолком и светлым полом – на фасад он выходит как раз той самой стеклянной вертикальной «перемычкой».

Впрочем, тему взаимопроникновения внешнего и внутреннего архитектор развивает не только с помощью диалога белого и черного. Так, например, к дому пристроена терраса-помост: она выполнена в японском стиле, и в нем же оформлены интерьеры спальни родителей. И если внизу архитектор ограничился использованием характерных решетчатых перегородок, то на втором этаже атмосфера японского дома воссоздана им с потрясающей точностью и полнотой. Особенно эффектны здесь циновка, покрывающая пол и частично переходящая на стены, и изогнутые гофрированные листы, которыми отделаны стены и потолок.  Сам Владислав Платонов признается, что с помощью подобных пластических композиций стремился подчеркнуть интимность и замкнутость пространства спальни, превратить ее в своего рода кокон, уютный и безопасный.

Но, пожалуй, едва ли не самым интересным пространством в этом доме стала мансарда, площадь которой в ходе реконструкции увеличилась вдвое. Высоко поднятые стропила, остекленные проемы между ними и большие окна в торцах сделали это помещение более чем светлым и просторным, однако в нем требовалось найти место для душевой и санузла. Архитектор очень не хотел «дробить» получившееся пространство, наполненное светом, каким-либо перегородками, поэтому предложил заказчикам… предусмотреть еще один уровень. А для того, чтобы мансардный этаж остался таким же светлым, пол четвертого этажа сделали стеклянным. Прозрачные панели положили на массивные поперечные балки, требуемые  сантехнические кабины обнесли стенками из матового стекла, а лестницу, ведущую наверх, сделали максимально прозрачной и легкой: черные деревянные бруски, нанизанные на тонкие металлические стержни, кажутся подвешенными в воздухе.

Главная отличительная особенность этого дома – высочайшее качество проработки архитектурного образа в целом и всех деталей, вплоть до самых мельчайших, из которых складываются и интерьер и фасады. Подчеркнем, что подобная обстоятельность архитектора начинается задолго до реализации проекта: Владислав Платонов сам разрабатывает все узлы и элементы интерьера своих домов, вручную выполняет все чертежи, а затем строго следит за подбором материалов и ходом строительных и отделочных работ. Подобные «дома ручной работы» были чем-то само собой разумеющимся для эпохи мастеров и артелей, но сегодня они воспринимаются как исключение из правила, и тем удивительнее, что одно из таких счастливых исключений находится практически в самом центре Москвы.
Фотографии Зинура Разутдинова
Фотографии Зинура Разутдинова