Размещено на портале Архи.ру (www.archi.ru)

13.09.2011

Веер предложений

Татьяна Тимофеева
Объект:
Отель Standart
Адрес:
Россия, Москва. Тверская улица, вл.16/2, стр. 1
Архитектор:
Павел Андреев
Мастерская:
Архитектурная мастерская Павла Андреева
Авторский коллектив:
Архитекторы – Андреев П.Ю., Босин С.Н. при участии Канцедикайте Л.А., инженеры – Фурман В.Н., Стрельников В.Г.

Проектируя фасад гостиницы на Страстном бульваре, прямо перед Пушкиным, Павел Андреев предложил заказчикам полный набор решений: от лаконичного цветного минимализма и сталинского «ампира» до сдержанной версии модерна и постмодерна.

Отель Standart на Пушкинской площади, проект, варианты 2011
Отель Standart на Пушкинской площади, проект, варианты 2011
Архитектурная мастерская Павла Андреева
Гостиница возводится на месте дома XIX века, в котором многие годы располагалась редакция газеты «Московские новости». Дом неоднократно перестраивался, надстраивался и дважды горел, в результате чего был признан ветхим и аварийным, что, в свою очередь, позволило получить разрешение на его разборку и строительство на этом месте гостиницы с торговыми помещениями на первых этажах.

Проект этот по целому ряду причин можно назвать долгожителем: его разработка от первой концепции до начала согласований (при изначально определенном пятне застройки в габаритах разобранного дома, и разрешенной высоты в отметках соседнего дома «Галереи Актер») длилась почти 8 лет, в ходе которых он претерпел массу модификаций и метаморфоз. В частности, разрабатывались варианты реконструкции здания сначала с полным, а затем с частичным сохранением капитальных конструкций, но курс был взят на проектирование полностью нового здания, для которого архитекторы придумали множество самых разных фасадов. «Этот, на первый взгляд, «трепетный» поиск оптимальных творческих решений, на самом деле является следствием отсутствия ясных условий проектирования и доверия к заказчикам и авторам проекта, а также ярко выраженной зависимости от вкусов вышестоящих начальников, – признается Павел Андреев. – Для проекта это неизбежно обернулось огромными потерями как времени, так и денег».

Кстати, неоднократно менялся не только проект будущей гостиницы, но и ее название. Всего же, как вспоминает Павел Андреев, было «прокатано» около десятка вариантов фасадов для различных потенциальных операторов. Наиболее памятным авторам, пожалуй, было предложение для компании Four Seasons: протяженный (около 80 метров) главный фасад авторы разделили на четыре прямоугольника, символизирующих разные времена года, и каждый выкрасили собственным цветом: белым, зеленым, желтым и оранжевым.

Интересно, что тогда же в мастерской Андреева созрела идея о соединении второго этажа гостиницы и Пушкинского сквера с помощью пешеходного моста, который бы прошел над активно обсуждавшимся тогда транспортным тоннелем под Тверской и визуально воспринимался бы как парафраз «паперти» расположенного по соседству здания кинотеатра. У бывшего руководства города это предложение поддержки не нашло, а вот нынешнему заказчику оно кажется интересным и потому, возможно, будет вновь вынесено на обсуждение Москомархитектуры.

Почему именно над фасадами гостиницы велась столь скрупулезная работа, понятно: здание обращено к открытому пространству Пушкинского сквера – одному из самых популярных в Москве месту встреч и отдыха горожан, – плюс оно играет заметную роль в панораме центра при движении от Триумфальной площади вниз по Тверской. Так вот, во второй версии главный фасад получил три широких эркера, органично вписавшись, таким образом, в градостроительный контекст Тверской улицы. Темно-розовые стены и светло-бежевый камень в сочетании с бронзовыми элементами оконных переплетов и ограждений балконов, а также попарное объединение оконных проемов и галерейный ритм верхнего этажа аттика делают этот вариант решения фасада похожим на легкую, лишенную избыточной монументальности архитектуру (хорошо известную нам по дому ВЦСПС на Профсоюзной, или же, например, павильону станции метро Маяковская, расположенному в полукилометре отсюда).

И наконец, еще позднее инвесторы попросили добавить в окончательное решение элементы модерна. Архитекторы сделали и это, не стремясь при этом копировать исторические прототипы слишком буквально. Фасад получил обработку натуральным камнем с горизонтальным рисунком под руст, дугообразные окна, ряд скульптурных «медальонов», выполненных в «венском» духе, а также большой стеклянный козырек. Получилось похоже одновременно на «питерский югендстиль» и московский «Метрополь» (что для московской гостиницы вполне логично). Цветовые решения, разность материалов и фактур, подчеркивающие и разделяющие основной объем значительно сближены, что нивелирует пластическое решение, однако автор считает, что это «сдержанное решение далеко не окончательное, и работа над фасадами еще не закончена.

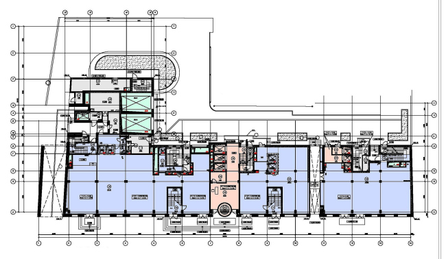
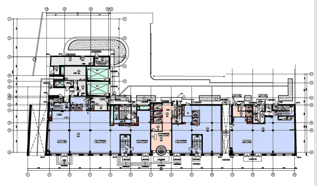
Если варианты фасада еще прорабатываются, то структура будущей гостиницы уже ясна. Два нижних этажа будут заняты магазинами, под ними расположится небольшая парковка, а гостиничное лобби разместится на третьем этаже. Это не новшество – в реконструируемой по соседству гостинице «Люкс» (Центральная), например, лобби расположено на верхнем этаже и туда надо подниматься на лифте. Зато такое решение позволяет не исключать из городской жизни первые этажи гостиницы – а ведь это 1500 кв.м. площадей и более 80 метров вдоль бульвара, – и одновременно обеспечить безопасность постояльцев гостиницы.
Отель Standart на Пушкинской площади, проект, варианты 2011
Отель Standart на Пушкинской площади, проект, варианты 2011
Архитектурная мастерская Павла Андреева
Отель Standart на Пушкинской площади, проект, варианты 2011
Отель Standart на Пушкинской площади, проект, варианты 2011
Архитектурная мастерская Павла Андреева
Отель Standart на Пушкинской площади, проект, варианты 2011
Отель Standart на Пушкинской площади, проект, варианты 2011
Архитектурная мастерская Павла Андреева
Отель Standart на Пушкинской площади, проект, варианты 2011
Отель Standart на Пушкинской площади, проект, варианты 2011
Архитектурная мастерская Павла Андреева
Отель Standart на Пушкинской площади, проект, варианты 2011
Отель Standart на Пушкинской площади, проект, варианты 2011
Архитектурная мастерская Павла Андреева
Отель Standart на Пушкинской площади, проект, варианты 2011
Отель Standart на Пушкинской площади, проект, варианты 2011
Архитектурная мастерская Павла Андреева