Размещено на портале Архи.ру (www.archi.ru)

03.06.2011

Картонный футляр для музыки

Нина Фролова
Объект:
Бумажный концертный зал в Л′Аквиле
Адрес:
Италия, None, Л'Аквила.

В Л'Аквиле открылся концертный зал, построенный по проекту Сигэру Бана.

Город, сильно пострадавший от землетрясения весной 2009-го, известен своей развитой музыкальной культурой. Идея построить там новый – временный – концертный зал, чтобы эти традиции не прерывались, возникла у японского правительства вскоре после стихийного бедствия.

Бумажный концертный зал в Л′Аквиле
Бумажный концертный зал в Л′Аквиле
© Shigeru Ban Architects

Проектирование было поручено Сигэру Бану, одному из крупнейших в мире специалистов по «архитектуре катастроф». Отказавшись от гонорара, архитектор не только спроектировал новый зал, но и продумал процесс реализации проекта так, чтобы ни денег, ни рабочих итальянскому государству выделять не пришлось (строить должны были студенты-архитекторы, финансирование обеспечили благотворители и японские власти).
Бумажный концертный зал в Л′Аквиле
Бумажный концертный зал в Л′Аквиле

Но характерная для Италии неразбериха заставила отложить строительство и сократить масштаб проекта. Но в прошлом месяце «Бумажный концертный зал» всё-таки открылся праздничным концертом; за дирижерским пультом стояла Томоми Нисимото.
Бумажный концертный зал в Л′Аквиле
Бумажный концертный зал в Л′Аквиле
© Shigeru Ban Architects

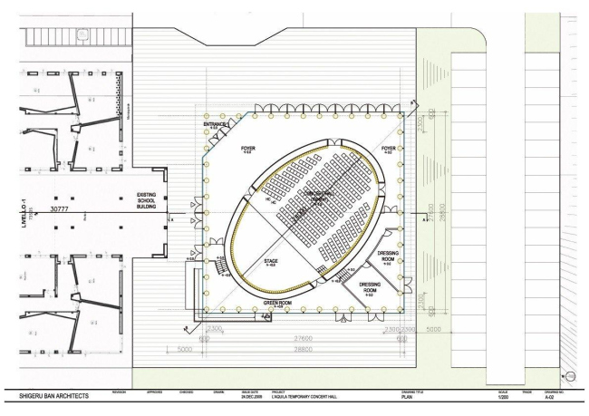
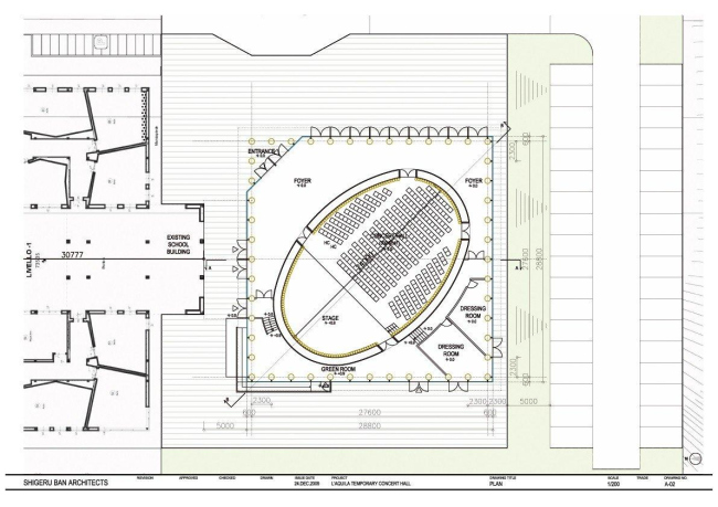
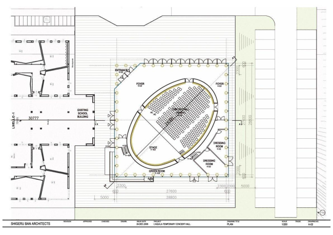
Постройка представляет собой прямоугольный объем, крыша которого опирается на картонные опалубки – любимый материал Бана (они образуют 44 столба, расставленные по периметру). Внутрь вписан овальный в плане зал на 230 мест; его стены сложены из мешков с балластом. Занимающее площадь 700 м2 сооружение можно легко разобрать и перенести на другое место: это и будет сделано, как только в Л'Аквиле появится новый, уже постоянный концертный зал.
Бумажный концертный зал в Л′Аквиле
Бумажный концертный зал в Л′Аквиле
© Shigeru Ban Architects
Бумажный концертный зал в Л′Аквиле
Бумажный концертный зал в Л′Аквиле
© Shigeru Ban Architects
Бумажный концертный зал в Л′Аквиле
Бумажный концертный зал в Л′Аквиле
Бумажный концертный зал в Л′Аквиле
Бумажный концертный зал в Л′Аквиле