Размещено на портале Архи.ру (www.archi.ru)

30.01.2007

Теле-фасад

Нина Фролова
Объект:
Нидерландский институт образа и звука
Адрес:
Нидерланды, None, Хилверсюм. Sumatralaan 45, Mediapark, 1217 GP
Мастерская:
Neutelings Riedijk

В голландском Хильверсюме открылось новое здание Института образа и звука, спроектированное роттердамской мастерской Neutelings Riedijk.

Нидерландский институт образа и звука. Фото: Scagliola/Brakkee © Neutelings Riedijk Architecten
Нидерландский институт образа и звука. Фото: Scagliola/Brakkee © Neutelings Riedijk Architecten
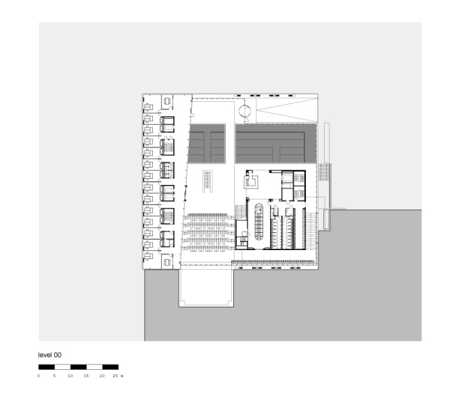
Основные функции нового сооружения – быть хранилищем национального архива аудио- и видеоматериалов, а также служить выставочным и исследовательским центром
Нидерландский институт образа и звука. Фото: Scagliola/Brakkee © Neutelings Riedijk Architecten
Нидерландский институт образа и звука. Фото: Scagliola/Brakkee © Neutelings Riedijk Architecten

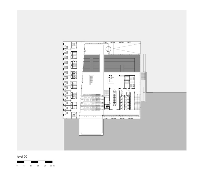
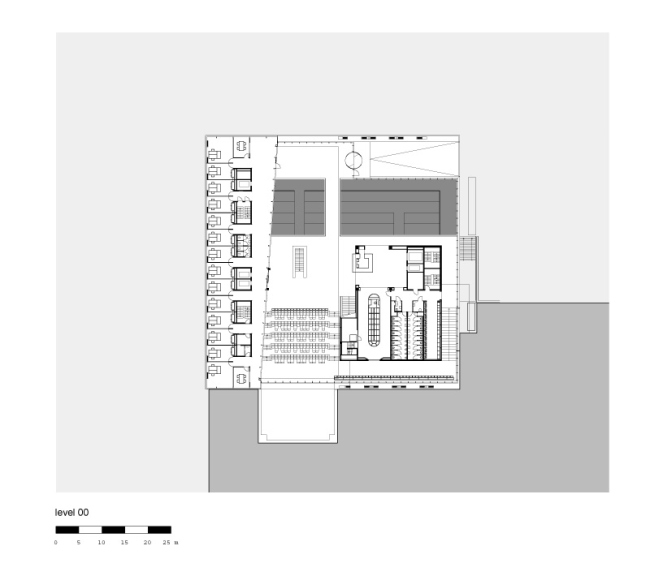
Постройка разделена внутри на три зоны: пять подземных этажей занимает архив, административные помещения и открытое для публики выставочное пространство. Главное место среди музейной экспозиции отдано проекту «Media Experience»: это серый зал размером 52 м x 28 м х 12 м, где установлено 15 тематических павильонов. В них посетитель может познакомиться с процессом создания телепрограмм и т. д.
Нидерландский институт образа и звука. Фото: Scagliola/Brakkee © Neutelings Riedijk Architecten
Нидерландский институт образа и звука. Фото: Scagliola/Brakkee © Neutelings Riedijk Architecten

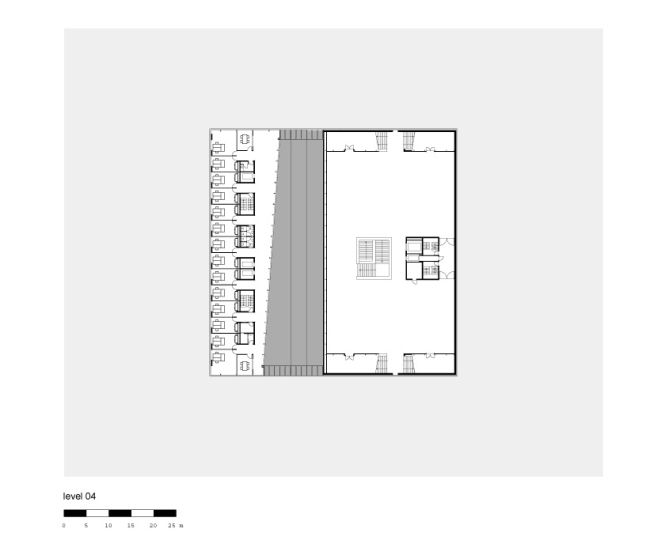
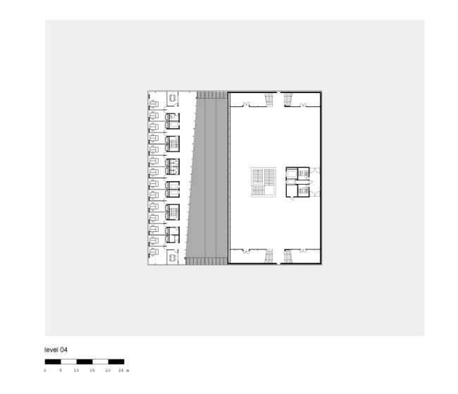
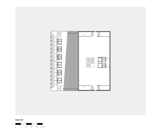
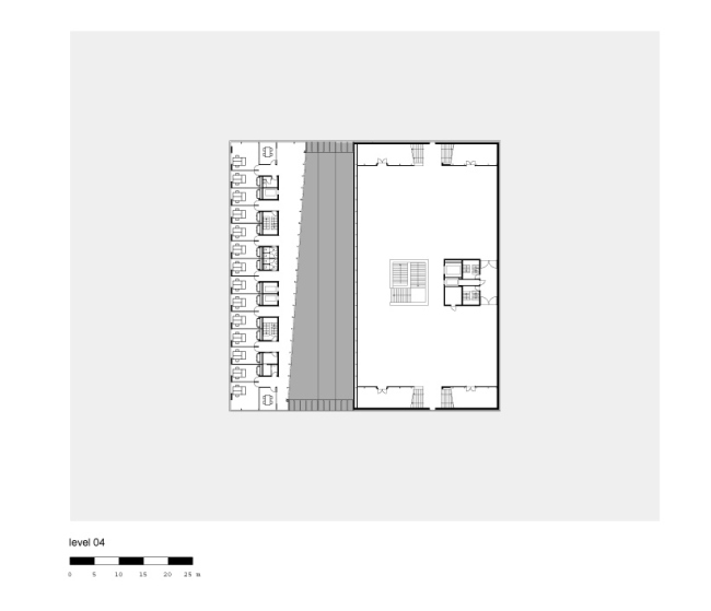
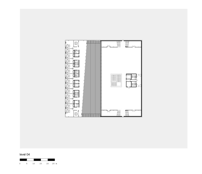
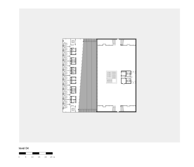
В центре здания расположен атриум, объединяющий 5 наземных и подземных этажей.
Нидерландский институт образа и звука. Фото: Scagliola/Brakkee © Neutelings Riedijk Architecten
Нидерландский институт образа и звука. Фото: Scagliola/Brakkee © Neutelings Riedijk Architecten

Но главной отличительной чертой новой постройки служат ее фасады, оформленные по проекту художника Япа Другстена [Jaap Drugsteen]. Он выбрал несколько сотен фотографий, иллюстрирующих историю голландского телевидения, подверг их цифровой обработке, «размазав» изображения в горизонтальном направлении, и нанес сухой краской на стеклянные панели внешних стен здания института. Вблизи можно рассмотреть очертания отдельных картинок, но издали создается впечатление огромного экрана, разбитого на отдельные цветные пиксели.
Нидерландский институт образа и звука. Фото: Scagliola/Brakkee © Neutelings Riedijk Architecten
Нидерландский институт образа и звука. Фото: Scagliola/Brakkee © Neutelings Riedijk Architecten
Нидерландский институт образа и звука © Neutelings Riedijk Architecten
Нидерландский институт образа и звука © Neutelings Riedijk Architecten
Нидерландский институт образа и звука © Neutelings Riedijk Architecten
Нидерландский институт образа и звука © Neutelings Riedijk Architecten
Нидерландский институт образа и звука © Neutelings Riedijk Architecten
Нидерландский институт образа и звука © Neutelings Riedijk Architecten
Нидерландский институт образа и звука © Neutelings Riedijk Architecten
Нидерландский институт образа и звука © Neutelings Riedijk Architecten
Нидерландский институт образа и звука © Neutelings Riedijk Architecten
Нидерландский институт образа и звука © Neutelings Riedijk Architecten
Нидерландский институт образа и звука © Neutelings Riedijk Architecten
Нидерландский институт образа и звука © Neutelings Riedijk Architecten
Нидерландский институт образа и звука © Neutelings Riedijk Architecten
Нидерландский институт образа и звука © Neutelings Riedijk Architecten
Нидерландский институт образа и звука © Neutelings Riedijk Architecten
Нидерландский институт образа и звука © Neutelings Riedijk Architecten
Нидерландский институт образа и звука © Neutelings Riedijk Architecten
Нидерландский институт образа и звука © Neutelings Riedijk Architecten
Нидерландский институт образа и звука © Neutelings Riedijk Architecten
Нидерландский институт образа и звука © Neutelings Riedijk Architecten
Нидерландский институт образа и звука © Neutelings Riedijk Architecten
Нидерландский институт образа и звука © Neutelings Riedijk Architecten
Нидерландский институт образа и звука © Neutelings Riedijk Architecten
Нидерландский институт образа и звука © Neutelings Riedijk Architecten
Нидерландский институт образа и звука © Neutelings Riedijk Architecten
Нидерландский институт образа и звука © Neutelings Riedijk Architecten
Нидерландский институт образа и звука © Neutelings Riedijk Architecten
Нидерландский институт образа и звука © Neutelings Riedijk Architecten
Нидерландский институт образа и звука © Neutelings Riedijk Architecten
Нидерландский институт образа и звука © Neutelings Riedijk Architecten