Размещено на портале Архи.ру (www.archi.ru)

05.05.2011

Здание в трико

Объект:
Штаб-квартира компании Gina Tricot
Адрес:
Швеция, None, Бурос.

В шведском городе Бурос архитектор Герт Вингорд закончил реализацию проекта главного офиса компании Gina Tricot – одного из самых популярных в Скандинавии брендов молодежной одежды.

Штаб-квартира компании Gina Tricot. Фото: Wingardh Arkitektkontor
Штаб-квартира компании Gina Tricot. Фото: Wingardh Arkitektkontor
В качестве размещения штаб-квартиры Бурос был выбран совсем не случайно – этот город, расположенный на западе Швеции, является центром текстильной и швейной промышленности страны. Хватает в Буросе и всевозможных заводов, в том числе машиностроительных и по производству электротехники, так что архитектору поневоле пришлось ориентироваться на индустриальное окружение будущего комплекса.

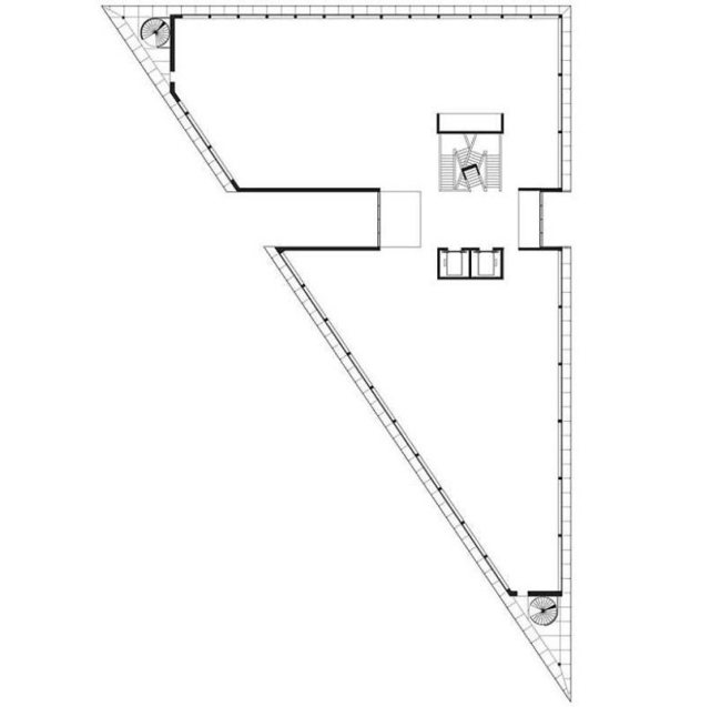
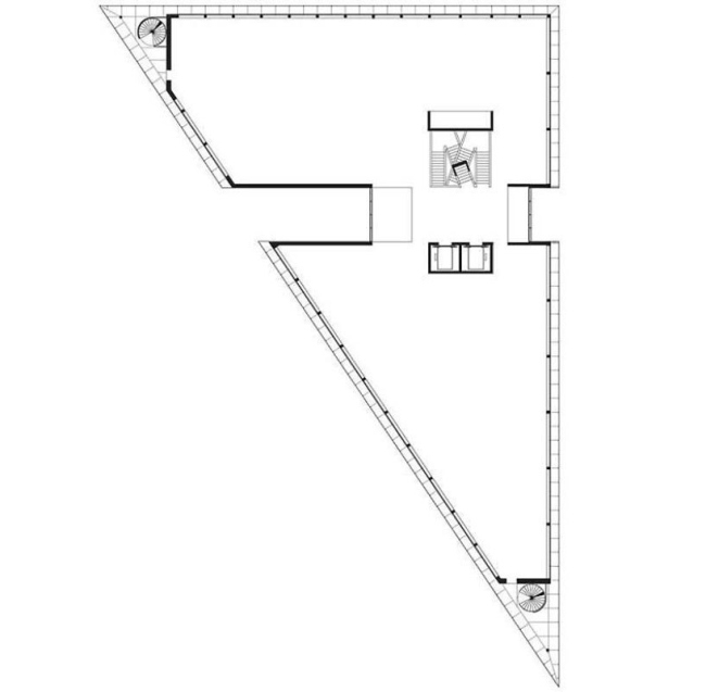
Компания, производящая модную одежду, и в архитектуре своего здания стремилась подчеркнуть принадлежность к миру fashion – именно такая нетривиальная задача была поставлена перед Гертом Вингордом. Определенные ограничения накладывал и сам участок, имевший треугольную форму. Вингорд признается, что сначала пытался спроектировать здание-подиум, но потом отказался от этой идеи в пользу формы, подсказанной самой площадкой. Правда, один угол имеющегося треугольника архитектор сделал прямым, два других заострил, а в длинных сторонах выполнил глубокие вырезы, обозначающие входные вестибюли.

Фасады треугольного здания облицованы стеклянными панелями, на которые нанесен тонкий перфорированный рисунок. Издалека оно воспринимается светло-серым, а его стены приобретают легкий отражающий эффект, что создает иллюзию частичного растворения в окружающем городском пейзаже. По мере приближения к зданию перфорация становится все более очевидной, и за тонкой, будто капроновой, сеткой проступают очертания окон и общественных зон первого этажа. В острых углах архитектор разместил винтовые лестницы, которые с улицы видны как в тумане.

Интерьеры штаб-квартиры компании Gina Tricot кардинально отличаются от решения ее фасадов. В оформлении внутренних пространств, будь то общественные зоны для сотрудников компании или шоу-румы для демонстрации продукции, доминируют четкие линии, подчеркнуто брутальные, «осязаемые» предметы мебели и сочетание белоснежного и черного цветов.

А.М.
Штаб-квартира компании Gina Tricot. Фото: Wingardh Arkitektkontor
Штаб-квартира компании Gina Tricot. Фото: Wingardh Arkitektkontor
Штаб-квартира компании Gina Tricot. Фото: Wingardh Arkitektkontor
Штаб-квартира компании Gina Tricot. Фото: Wingardh Arkitektkontor
Штаб-квартира компании Gina Tricot. Фото: Wingardh Arkitektkontor
Штаб-квартира компании Gina Tricot. Фото: Wingardh Arkitektkontor
Штаб-квартира компании Gina Tricot. Фото: Wingardh Arkitektkontor
Штаб-квартира компании Gina Tricot. Фото: Wingardh Arkitektkontor
Штаб-квартира компании Gina Tricot. Фото: Wingardh Arkitektkontor
Штаб-квартира компании Gina Tricot. Фото: Wingardh Arkitektkontor
Штаб-квартира компании Gina Tricot. Фото: Wingardh Arkitektkontor
Штаб-квартира компании Gina Tricot. Фото: Wingardh Arkitektkontor
Штаб-квартира компании Gina Tricot. План типового этажа. Wingardh Arkitektkontor
Штаб-квартира компании Gina Tricot. План типового этажа. Wingardh Arkitektkontor