Размещено на портале Архи.ру (www.archi.ru)

01.08.2011

Штаб-квартал

Анна Мартовицкая
Объект:
Новое административное здание компании «ЛУКОЙЛ»
Адрес:
Россия, Москва.
Архитектор:
Павел Андреев
Мастерская:
Архитектурная мастерская Павла Андреева

Между Костянским и Уланским переулками компания «Нордео» строит новое административное здание по проекту, разработанному творческим коллективом под руководством Павла Андреева. Заказчиком этого комплекса выступает компания «Лукойл», завершая таким образом формирование квартала своей штаб-квартиры на Сретенском бульваре.

Новое административное здание компании «ЛУКОЙЛ» © Архитектурная мастерская Павла Андреева
Новое административное здание компании «ЛУКОЙЛ» © Архитектурная мастерская Павла Андреева
Главное здание «Лукойла», стоящее на пересечении Сретенского бульвара и проспекта академика Сахарова, знакомо едва ли не всем москвичам. Его начали строить еще в конце 1970-х для Министерства электронной промышленности СССР по проекту архитектора Феликса Новикова. Но в 1990-е как-то стало не до электронной промышленности: СССР развалился, а сам комплекс, приобрела и достроила компания «Лукойл». И хотя архитектурное решение не претерпело существенных изменений – ряд дополнений новых владельцев (в том числе оштукатуривание и перекраска здания) вынудил автора проекта от отказаться авторства.

На протяжении многих лет это здание является центральным представительством одной из крупнейших нефтяных компаний страны. Но «Лукойл» так интенсивно развивался, что постепенно перерос свою штаб-квартиру. Сегодня целый ряд его подразделений рассредоточены по другим адресам Москвы, и компания уже несколько лет планирует расширение основного офиса для того, чтобы вновь собрать их под одной крышей и не тратиться на аренду. Долгое время это казалось почти невозможным, но нефтяники все же смогли договориться с городом и собственниками соседних владений: имевшийся в собственности «Лукойла» участок на Кутузовском проспекте был обменен на возможность расширения участка под строительство нового корпуса. Проектировать новый комплекс компания пригласила архитектора Павла Андреева.

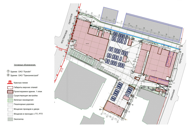
Поскольку участок, выделенный под строительство нового здания, расположен между двумя довольно узкими переулками со сложившейся застройкой, авторы стремились, по возможности, минимизировать влияние на окружение нового объема. «К моменту начала проектирования уже существовал согласованный с Москомархитектурой вариант высотного дома,– рассказывает Павел Андреев. – Нам он казался совершенно неуместным и градостроительно необоснованным, но для того, чтобы решить объем в логике и масштабе сложившейся застройки, сохранив при этом требуемые заданием площади, необходимо было увеличить участок застройки, и владельцы это сделали. Подчеркну, что это редчайший случай в московской строительной практике, достойный всяческого уважения и благодарности». Высота строящегося здания, таким образом понизилась с 90 до 46 метров и с одной стороны замыкает двор территории главных корпусов компании «Лукойл», а с другой подхватывает линии застройки обоих переулков и формирует квартальный периметр. Прямоугольные в плане, четырех-, шести- и восьмиэтажные корпуса, продолжая строчную застройку по Уланскому и Костянскому переулкам, «обнимают» с двух сторон двенадцатиэтажную центральную часть комплекса, имеющую в плане форму удлиненной трапеции. Своей скошенной стороной это здание подчеркивает координатную сетку существующего корпуса «Вега» и стилобатной части комплекса.

Все связи  нового комплекса с городом осуществляются через два небольших переулка, и, конечно, это отразилось как на его архитектурном решении, так и на организации транспортной схемы. В здании имеются две вестибюльные группы, выходящие на каждый переулок, а между ними, в уровне первого этажа, расположен благоустроенный внутренний двор с автостоянкой, накрытый вышележащим объемом главного корпуса. Здесь расположатся гостевые парковочные места, тогда как для машин сотрудников компании проектируется двухуровневый подземный паркинг, въезд в который будет расположен со стороны Уланского переулка. Данное решение неслучайно: архитекторы учли, что оба переулка являются дорогами с односторонним движением, а со стороны Костянского переулка уже есть въезд на паркинг «Лукойла».

Архитектурное решение нового комплекса, как уже  говорилось, носит подчеркнуто нейтральный характер. В облицовке здания авторы предлагается использовать натуральный камень белого, бежевого и светло-коричневого оттенков. Переменная этажность объемов подчеркивается с помощью декоративных «разрывов» – полностью остекленных вставок, придающих центральной более высокой части визуальную легкость и создающих иллюзию, будто офисный квартал собран из отдельных небольших блоков. В состав комплекса также включен воссоздаваемый фасад существующего дома №6 по Костянскому переулку, в котором когда-то находилось Харитоньевское городское начальное училище. Между собой, а также с существующим комплексом зданий все корпуса будут соединены остекленными галереями на уровне третьего этажа.
Новое административное здание компании «ЛУКОЙЛ». Ситуационный план © Архитектурная мастерская Павла Андреева
Новое административное здание компании «ЛУКОЙЛ». Ситуационный план © Архитектурная мастерская Павла Андреева
Новое административное здание компании «ЛУКОЙЛ» © Архитектурная мастерская Павла Андреева
Новое административное здание компании «ЛУКОЙЛ» © Архитектурная мастерская Павла Андреева
Новое административное здание компании «ЛУКОЙЛ» © Архитектурная мастерская Павла Андреева
Новое административное здание компании «ЛУКОЙЛ» © Архитектурная мастерская Павла Андреева
Новое административное здание компании «ЛУКОЙЛ». Фасад по Уланскому переулку © Архитектурная мастерская Павла Андреева
Новое административное здание компании «ЛУКОЙЛ». Фасад по Уланскому переулку © Архитектурная мастерская Павла Андреева
Новое административное здание компании «ЛУКОЙЛ». Северный фасад © Архитектурная мастерская Павла Андреева
Новое административное здание компании «ЛУКОЙЛ». Северный фасад © Архитектурная мастерская Павла Андреева
Новое административное здание компании «ЛУКОЙЛ». Фасад по Костянскому переулку © Архитектурная мастерская Павла Андреева
Новое административное здание компании «ЛУКОЙЛ». Фасад по Костянскому переулку © Архитектурная мастерская Павла Андреева
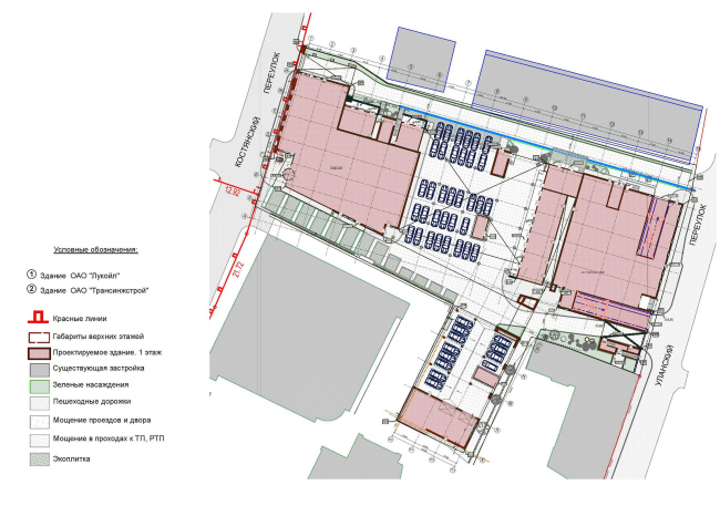
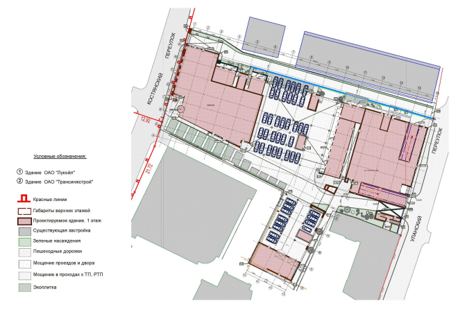
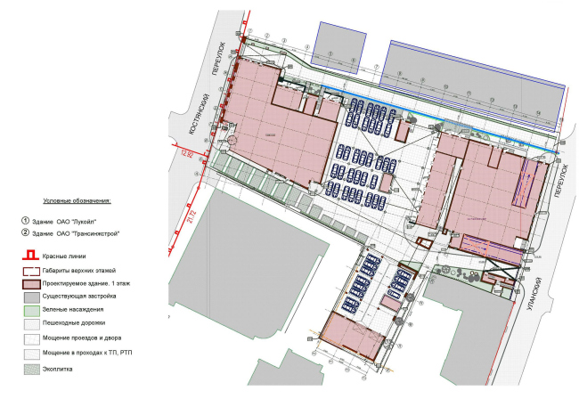
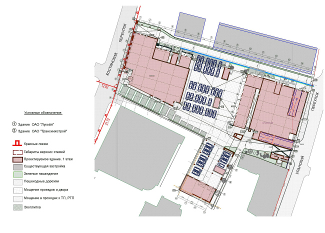
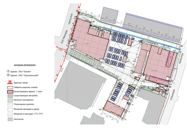
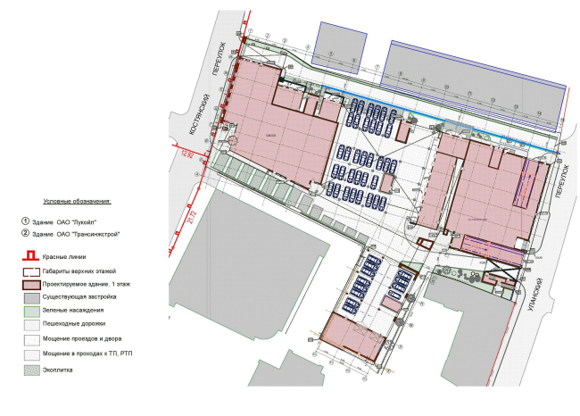
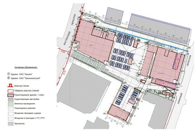
Новое административное здание компании «ЛУКОЙЛ». Генеральный план © Архитектурная мастерская Павла Андреева
Новое административное здание компании «ЛУКОЙЛ». Генеральный план © Архитектурная мастерская Павла Андреева
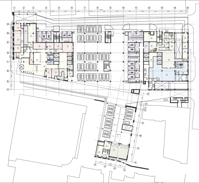
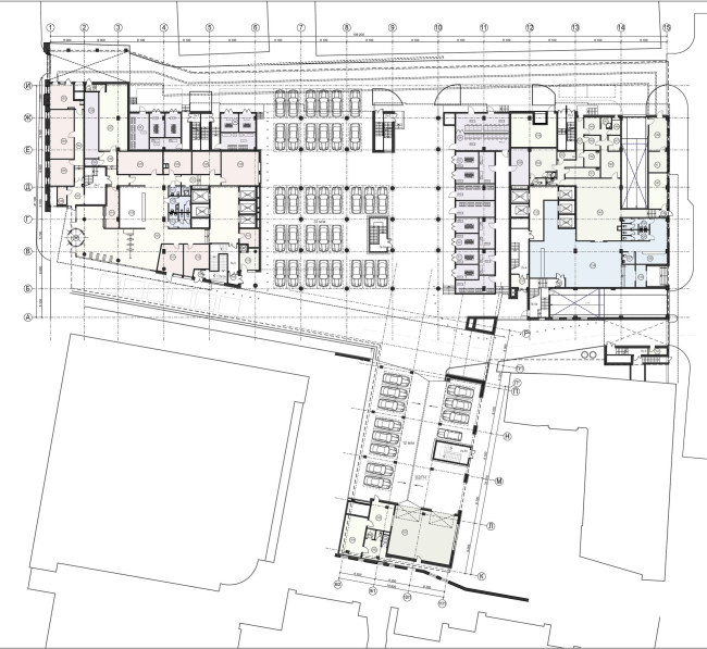
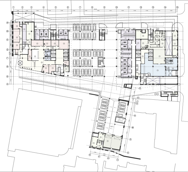
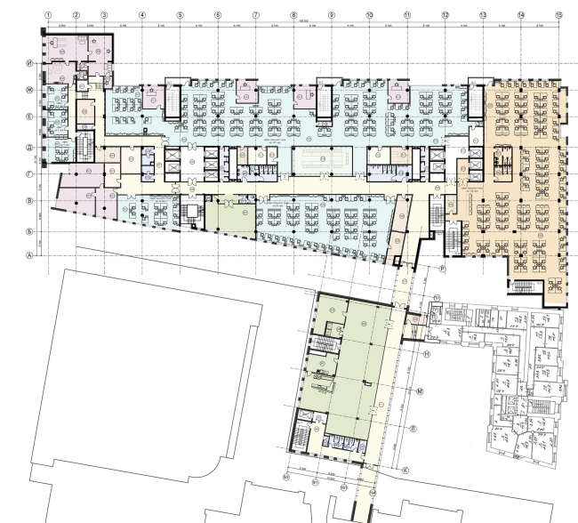
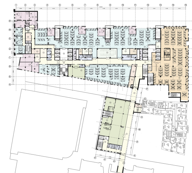
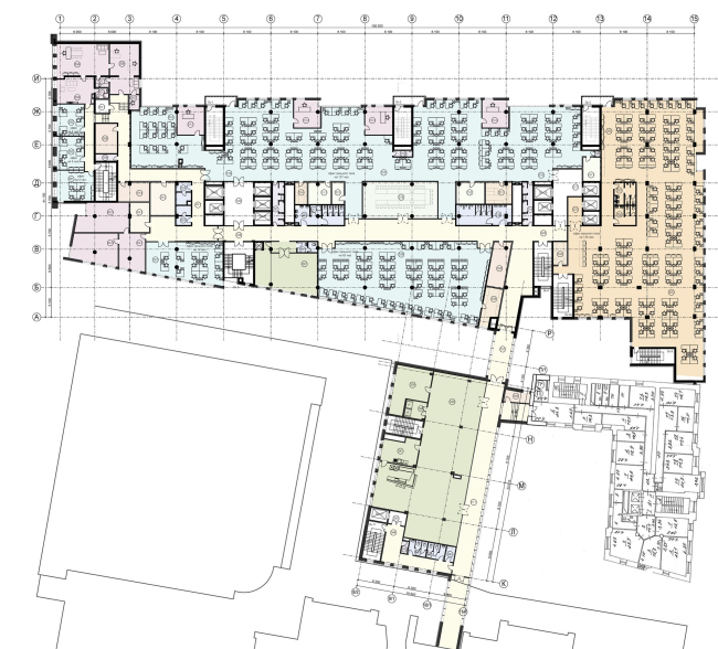
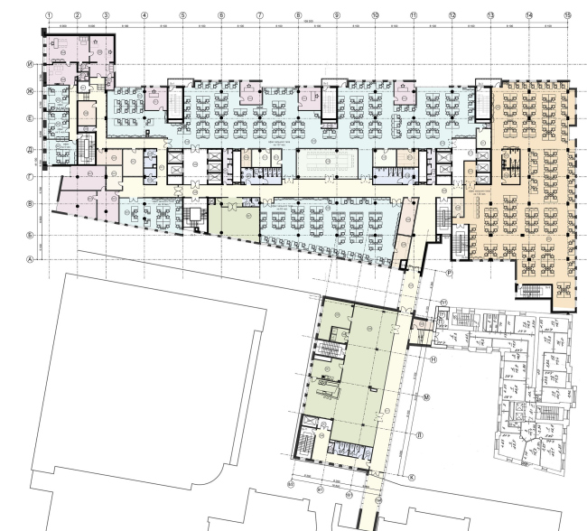
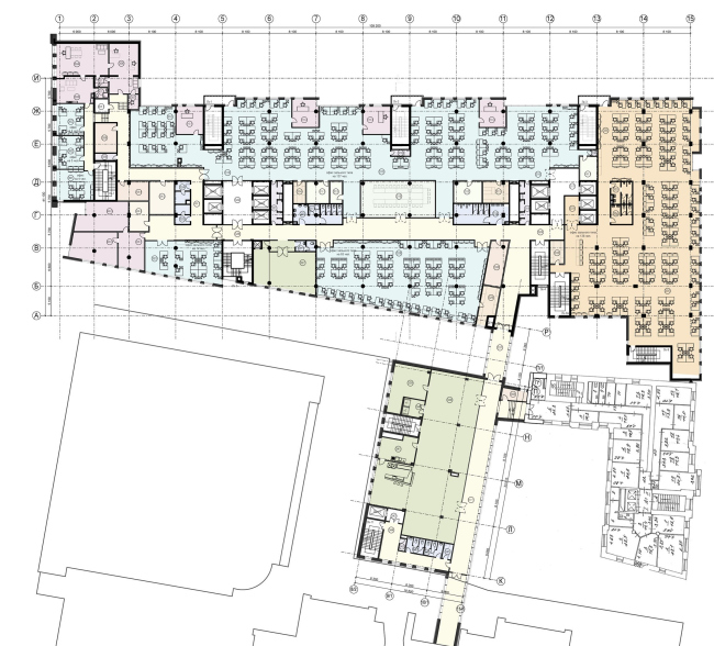
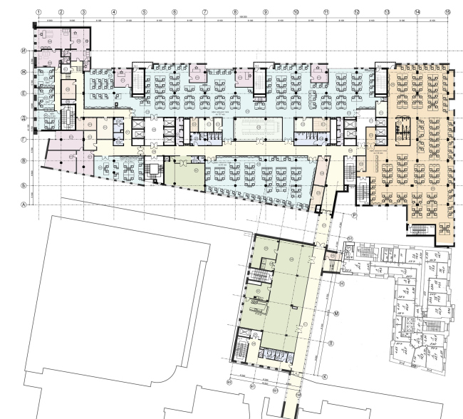
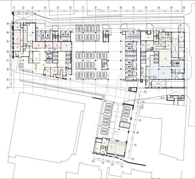
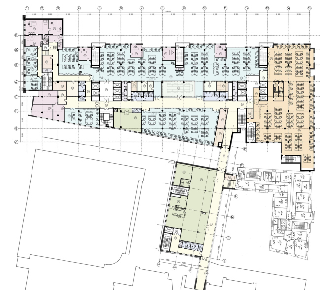
Новое административное здание компании «ЛУКОЙЛ». План 1-го этажа © Архитектурная мастерская Павла Андреева
Новое административное здание компании «ЛУКОЙЛ». План 1-го этажа © Архитектурная мастерская Павла Андреева
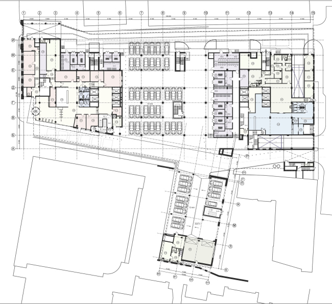
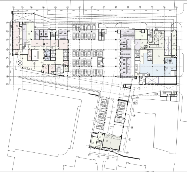
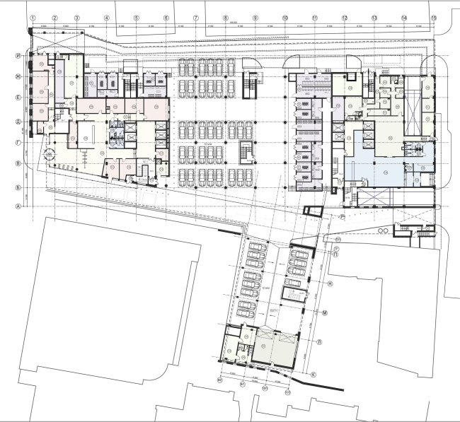
Новое административное здание компании «ЛУКОЙЛ». План 3-го этажа © Архитектурная мастерская Павла Андреева
Новое административное здание компании «ЛУКОЙЛ». План 3-го этажа © Архитектурная мастерская Павла Андреева