Размещено на портале Архи.ру (www.archi.ru)

27.04.2011

Черный ящик

Объект:
Новое крыло Школы Бернадотта
Адрес:
Дания, None, Копенгаген.
Мастерская:
Vandkunsten

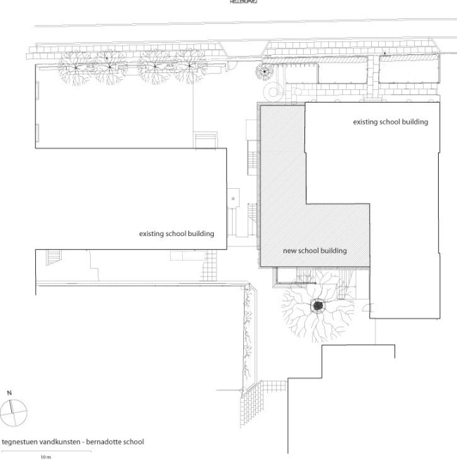
В пригороде Копенгагена архитектурное бюро Vandkunsten спроектировало для Школы Бернадотта новое крыло.

Новое крыло Школы Бернадотта. © Tegnestuen Vandkunsten
Новое крыло Школы Бернадотта. © Tegnestuen Vandkunsten
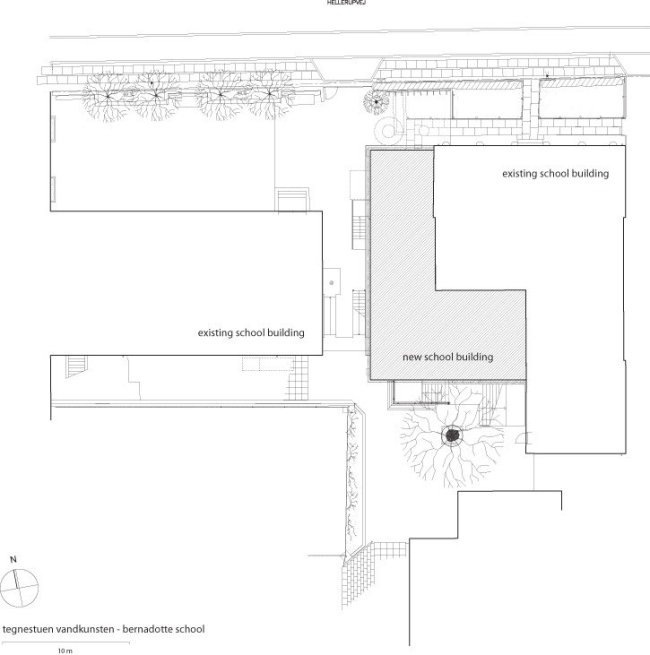
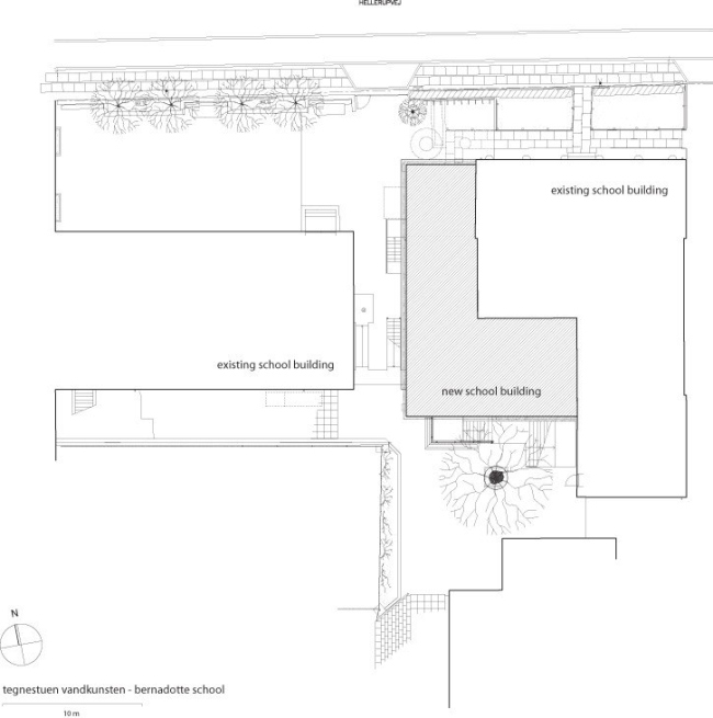
Перед архитекторами стояла двойная задача: обеспечить учебное заведение новыми классами и спортивной зоной, а также деликатно вписать пристройку в существующий облик школьного комплекса. Последнее было совсем не так просто, как может показаться на первый взгляд, поскольку Школа Бернадотта расположена в нескольких виллах, построенных в конце XIX века. Это характерные для Скандинавии того времени брутальные объемы с большими окнами и фасадами из красного кирпича. Поскольку новое крыло следовало пристроить вплотную к одному из них, архитекторы оказались перед выбором: сделать пристройку максимально нейтральной и незаметной, либо, наоборот, подчеркнуть ее принадлежность нашему времени.

Прежде всего, авторы проекта отказались от двускатной кровли, характерной для всех соседних строений. Сделано это было из прагматических соображений: плоская кровля пристройки активно эксплуатируется – на ней организованы детская игровая площадка и благоустроенная зона отдыха. Кроме того, в новом объеме нашлось место для библиотеки, спортивного зала, просторных рекреаций и учебных аудиторий. С основным зданием пристроенное крыло связано с помощью переходов, которые устроены на каждом этаже.

В качестве облицовочного материала, неброско контрастирующего с кирпичом, архитекторы выбрали листы стали, выкрашенные в черный матовый цвет. Поверх матовой поверхности натянуты тонкие металлические тросы – по замыслу архитекторов, они одновременно создают и изящный современный рисунок, и придают постройке «технократичный» характер, роднящий ее с брутальными кирпичными соседями. Первый этаж нового крыла полностью остеклен, а вход в него поднят на уровень выше – в «черный ящик» крыльца ведет открытая лестница.

А. М.
Новое крыло Школы Бернадотта. © Tegnestuen Vandkunsten
Новое крыло Школы Бернадотта. © Tegnestuen Vandkunsten
Новое крыло Школы Бернадотта. © Tegnestuen Vandkunsten
Новое крыло Школы Бернадотта. © Tegnestuen Vandkunsten
Новое крыло Школы Бернадотта. © Tegnestuen Vandkunsten
Новое крыло Школы Бернадотта. © Tegnestuen Vandkunsten
Новое крыло Школы Бернадотта. © Tegnestuen Vandkunsten
Новое крыло Школы Бернадотта. © Tegnestuen Vandkunsten
Новое крыло Школы Бернадотта. © Tegnestuen Vandkunsten
Новое крыло Школы Бернадотта. © Tegnestuen Vandkunsten
Новое крыло Школы Бернадотта. © Tegnestuen Vandkunsten
Новое крыло Школы Бернадотта. © Tegnestuen Vandkunsten
Новое крыло Школы Бернадотта. © Tegnestuen Vandkunsten
Новое крыло Школы Бернадотта. © Tegnestuen Vandkunsten
Новое крыло Школы Бернадотта. © Tegnestuen Vandkunsten
Новое крыло Школы Бернадотта. © Tegnestuen Vandkunsten
Новое крыло Школы Бернадотта. © Tegnestuen Vandkunsten
Новое крыло Школы Бернадотта. © Tegnestuen Vandkunsten
Новое крыло Школы Бернадотта. © Tegnestuen Vandkunsten
Новое крыло Школы Бернадотта. © Tegnestuen Vandkunsten
Новое крыло Школы Бернадотта. © Tegnestuen Vandkunsten
Новое крыло Школы Бернадотта. © Tegnestuen Vandkunsten