Размещено на портале Архи.ру (www.archi.ru)

04.05.2011

Красно-желтая линия

Анна Мартовицкая
Объект:
Проект жилой малоэтажной застройки близ села Ульянково
Адрес:
Россия, Мытищинский район, Москва.
Мастерская:
АМ Сергей Киселев и Партнеры
Авторский коллектив:
Архитекторы: А.В.Медведев, А.С.Литовский, Е.С.Палей. Инженеры: И.З.Шварцман, С.Б.Фомочкина

Рядом с подмосковным Ульянково, расположенным неподалеку от Пироговского водохранилища, архитектурная мастерская «Сергей Киселев и Партнеры» проектирует новый жилой массив. В его состав войдут как индивидуальные коттеджи, так и таунхаусы, а визитной карточкой обещает стать длинный многоквартирный дом в красно-желтой гамме.

Ульянково – это небольшая деревня, расположенная примерно посередине между двумя водохранилищами – Пироговским и Пяловским, и окруженная Учинским лесопарком. С близлежащими Жостово и Юдино она связана двухполосной дорогой, по которой можно быстро выбраться на Пироговское либо Осташковское шоссе и уже по ним мчаться в Москву. Таким образом, счастливое сочетание прекрасной экологии и хорошей транспортной доступности налицо, и строительство нового поселка в данном месте совсем неудивительно. Правда, у этого участка, расположенного напротив Ульянково (через дорогу, на месте совхоза им. Тимирязева) есть одно существенное ограничение: вплотную с ним проходит ЛЭП, вынуждая застройщика жертвовать частью территории. Именно этим объясняется очень затейливые контуры генплана новой застройки: извилистая дорога задает «легкую неровность» северной границы участка, а его восточная сторона вся словно расчерчена экспрессивными зигзагами.

Как известно, под ЛЭП и в непосредственной близости от нее нельзя строить, однако на земельные участки ограничение не распространяется, поэтому инвестор пошел на компромисс: по мере приближения к линии электропередач площадь приусадебных участков постепенно увеличивается, обеспечивая будущим коттеджам необходимый отступ. О том, насколько оправдан такой ход, можно спорить, но факт остается фактом: сообща инвестор и архитекторы нашли соломоново решение.

Главный архитектор проекта Алексей Медведев не скрывает, что в качестве приоритетной задачи Заказчик обозначил максимальный выход площадей, поэтому каждый метр земли авторы пытались использовать предельно эффективно. Вся территория будущего жилого района разбита «меридианами» и «параллелями» (последние повторяют плавный изгиб дороги) внутриквартальных проездов, а образованные ими трапециевидные сегменты расчерчены на прямоугольники ИЖС.

Особенностью данного участка является то, что своей едва ли не самой длинной стороной он обращен к проезжей части. От дороги новый поселок, конечно, следовало как-то оградить, но идею глухого забора (пусть даже художественно оформленного) архитекторы сразу отвергли. Во-первых, это само по себе не очень привлекательно, во-вторых, не соответствовало классу поселка, в котором инвестор намерен сочетать индивидуальные коттеджи небольшой площади и жилье эконом-класса. Именно последнее и подсказало архитекторам нужную идею: многоквартирные дома высотой 3-4 этажа сами могут «работать» как ограждающая конструкция – нужно лишь правильно их скомпоновать. «Мы рассматривали несколько вариантов композиции, – рассказывает Алексей Медведев. – В одном из них, например, вдоль дороги все-таки сооружался своего рода забор, в котором затем вырезались квадратные порталы, а с обратной стороны между ними встраивались дома. В другом варианте дома были обращены к дороге глухими торцами, а дворовые пространства между ними могли закрываться невысокими заборами, что вместе создавало очень динамичный силуэт».

С Алексеем Медведевым трудно не согласиться: на эскизах видно, как разновысотные элементы, выстраиваясь вдоль дороги, образуют четкую, ритмичную «кардиограмму», и за новый поселок с таким ровным уверенным пульсом как-то сразу становится очень спокойно. Однако расположение домов перпендикулярно трассе невольно «съедало» много ценных квадратных метров, поэтому инвестор попросил вытянуть жилую застройку вдоль дороги. Архитекторы долго ломали голову над тем, как не превратить столь длинный объем в однообразную «стену», и в конце концов решили сделать ставку на цвет.

Дома образуют сплошную линию, имеющую разрывы только для проездов и ЛЭП. Таким образом, корпуса могут быть разной длины, но архитектурно все они решены одинаково, а их форма полностью подчинена изгибам автодороги. Единство композиции подчеркивает и горизонтальная линия карниза. Фактически это лента, которая вьется параллельно трассе, и лента очень пестрая, поскольку фасады «набраны» из крупных горизонтальных прямоугольников разных цветов теплой красно-желтой гаммы. В жилых секциях между ними расположены окна (правда, все квартиры спроектированы таким образом, что на дорогу выходят либо гостиными, либо общественными галереями), а на глухой стене административно-торгового здания архитекторы предлагают дать крупными объемными буквами название поселка.

Совершенно иначе решены блокированные дома, расположенные в глубине территории вдоль одного из участков ЛЭП. Здесь уже нет никакого единства: «строчки» таунхаусов подчеркнуто раздроблены на отдельные жилые ячейки, а выступающие ребра стен выкрашены в различные оттенки холодной сине-зеленой гаммы. Для «длинного» дома эта часть комплекса служит своего рода фоном – как структурно, так и в плане колористического решения, – дополняя и обогащая общую композицию внешней линии застройки.
Проект жилой малоэтажной застройки близ села Ульянково
Проект жилой малоэтажной застройки близ села Ульянково
© АМ Сергей Киселев и Партнеры
Проект жилой малоэтажной застройки близ села Ульянково
Проект жилой малоэтажной застройки близ села Ульянково
© АМ Сергей Киселев и Партнеры
Проект жилой малоэтажной застройки близ села Ульянково
Проект жилой малоэтажной застройки близ села Ульянково
© АМ Сергей Киселев и Партнеры
Проект жилой малоэтажной застройки близ села Ульянково
Проект жилой малоэтажной застройки близ села Ульянково
© АМ Сергей Киселев и Партнеры
Проект жилой малоэтажной застройки близ села Ульянково
Проект жилой малоэтажной застройки близ села Ульянково
© АМ Сергей Киселев и Партнеры
Проект жилой малоэтажной застройки близ села Ульянково
Проект жилой малоэтажной застройки близ села Ульянково
© АМ Сергей Киселев и Партнеры
Проект жилой малоэтажной застройки близ села Ульянково
Проект жилой малоэтажной застройки близ села Ульянково
© АМ Сергей Киселев и Партнеры
Проект жилой малоэтажной застройки близ села Ульянково. Схема генплана
Проект жилой малоэтажной застройки близ села Ульянково. Схема генплана
© АМ Сергей Киселев и Партнеры
Проект жилой малоэтажной застройки близ села Ульянково
Проект жилой малоэтажной застройки близ села Ульянково
© АМ Сергей Киселев и Партнеры
Проект жилой малоэтажной застройки близ села Ульянково. Административно-торговое здание. План 1 этажа
Проект жилой малоэтажной застройки близ села Ульянково. Административно-торговое здание. План 1 этажа
© АМ Сергей Киселев и Партнеры
Проект жилой малоэтажной застройки близ села Ульянково. Административно-торговое здание. Планы 2 и 3 этажей
Проект жилой малоэтажной застройки близ села Ульянково. Административно-торговое здание. Планы 2 и 3 этажей
© АМ Сергей Киселев и Партнеры
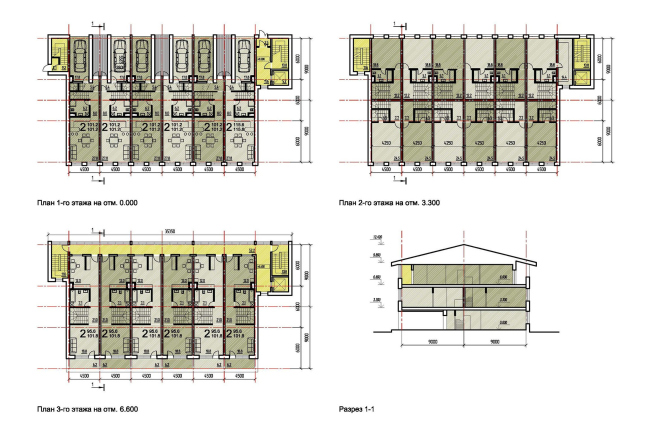
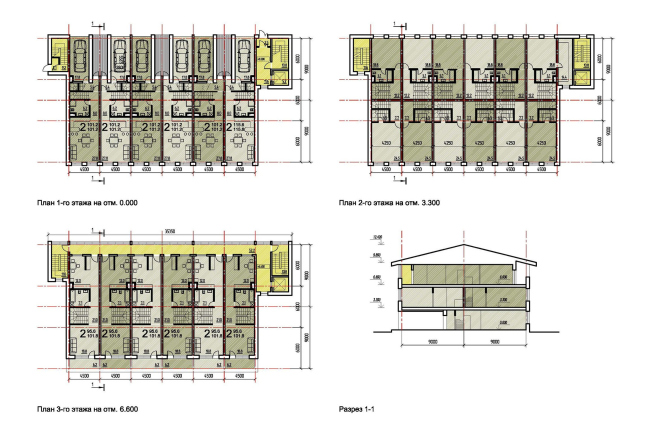
Проект жилой малоэтажной застройки близ села Ульянково. Поэтажные планы и разрез
Проект жилой малоэтажной застройки близ села Ульянково. Поэтажные планы и разрез
© АМ Сергей Киселев и Партнеры