Размещено на портале Архи.ру (www.archi.ru)

29.04.2011

Опора для спорта

Анна Мартовицкая
Объект:
Студенческий спортивный комплекс РГСУ
Адрес:
Россия, Москва. ул. Вильгельма Пика, вл. 4
Мастерская:
ПТАМ Виссарионова
Авторский коллектив:
Ю.Г.Виссарионов, К.М.Савкин, Ю.А.Филатов

Для Российского государственного социального университета ПТАМ Юрия Виссарионова спроектировала спортивный комплекс, который позволит студентам вместо скучной физкультуры выбрать занятия по самым разным видам спорта.

Студенческий спортивный комплекс РГСУ © ПТАМ Виссарионова
Студенческий спортивный комплекс РГСУ © ПТАМ Виссарионова
Российский государственный социальный университет (РГСУ) – самый молодой университет в стране. Он был создан в 1991 году и поначалу не имел практически никакой материальной базы. Сегодня на балансе университета (кстати, входящего в число 50 крупнейших ВУЗов России) несколько зданий в разных районах Москвы, правда, спортивного комплекса среди них до сих пор нет. Занятия физкультурой для студентов, конечно, проводятся, но возможности ходить в различные секции у них нет, и именно этот пробел призван восполнить проект, разработанный ПТАМ Юрия Виссарионова.

Участок, выделенный под строительство спортивного комплекса, расположен между РГСУ и природно-историческим парком «Останкино». Когда-то здесь находился стадион, который постепенно обветшал настолько, что перестал использоваться городом, и в 2005 году его территория была передана университету. Первым проектом ПТАМ Виссарионова на этой территории стало общежитие с универсальным залом и бассейном. Новое здание отчасти призвано поддержать ампирную солидность расположенного по соседству учебного корпуса, вместе с тем передавая эстафету хай-теку с его металлической облицовкой и легкими открытыми конструкциями.

Тема была продолжена при проектировании спорткомплекса. Его участок  имеет ярко выраженную треугольную форму, и архитекторы использовали это как подсказку – здание в плане напоминает перевернутую вверх ногами букву «У», каждая «палочка» которой – это отдельный тренировочный зал, а в «галочке» размещена входная группа, обращенная к главному зданию РГСУ. На территории, прилегающей к бывшему стадиону, также расположен небольшой пруд. Разработанный генплан участка предусматривает его частичное сохранение и обустройство – в частности, вдоль берега появятся озелененные прогулочные зоны, места отдыха, элегантные мощеные дорожки. Решается и проблема парковки: часть здания спорткомплекса архитекторы предлагают поднять на опоры, а между колоннами разместить небольшие гостевые стоянки.

Эти опоры во многом и формируют архитектурный образ будущего здания. Если бы глухие объемы спортзалов стояли на земле, они визуально воспринимались бы просто как два больших ангара, поднятые же на колонны (причем массивные балки квадратного сечения комбинируются с «трубами», поставленными под углом 45°) они приобретают отчетливое сходство с механизмами – эдакие «машины для спорта», у которых вместо колес ножки. Как уже говорилось, параллелепипеды расположены под углом друг к другу, а в «створе» спроектирован стеклянный объем входного вестибюля. Тему скрещивающихся опор архитекторы активно используют и в оформлении фасадов: входная группа акцентирована козырьком в виде брутальной решетки, а стеклянная поверхность «усилена» диагоналями металлических тяг. Опоры, поддерживающие вестибюльную группу, «протянуты» до самой кровли и выкрашены в яркий охристый цвет. Стоит отметить, что других активных тонов в палитре спорткомплекса нет – он решен в откровенном металлике. По мнению авторов, это нескрываемо молодежное, выполненное в духе техницизма, дополнение к традиционным штукатурно-желтоватым постройкам советского периода должно заметно обновить представления об учебной среде.

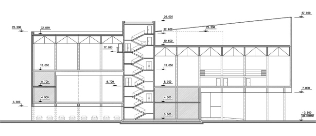
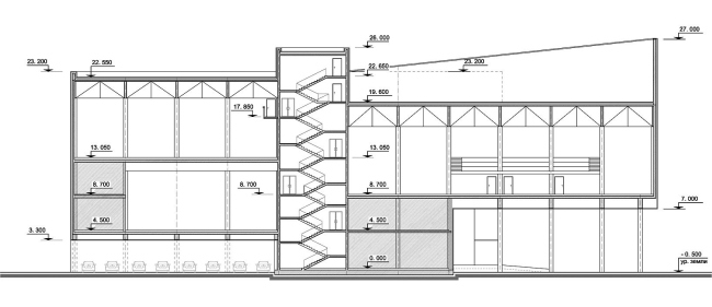
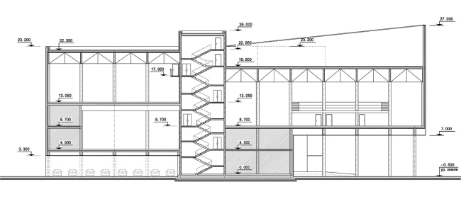
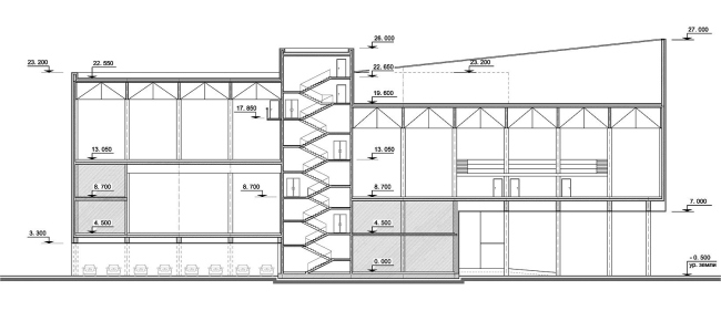
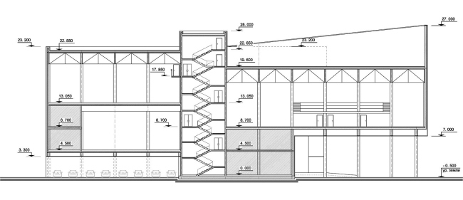
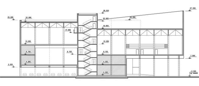
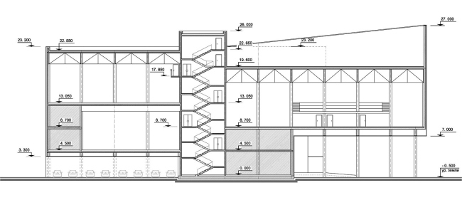
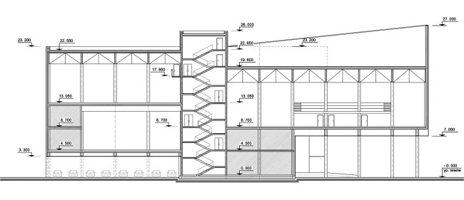
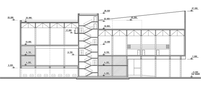
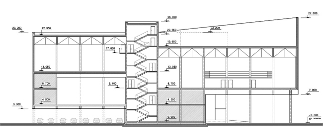
По своему функциональному устройству здание, имеющее переменную этажность, напоминает пирог, каждый «слой» которого посвящен отдельному виду спорта. Исключение составляет лишь первый этаж, где, помимо входного вестибюля, расположены кафе, медпункт и блок тренерских комнат  с душевыми и санузлами. Уровнем выше размещены зал для занятий настольным теннисом, тренажерный зал и помещение для занятий боксом и тяжелой атлетикой. Еще на этаж выше расположен универсальный спортзал, предназначенный для игровых видов спорта (баскетбол, волейбол, спортивная гимнастика, аэробика) и имеющий также площадь для размещения зрительских мест, а над ним – зал для занятий классической и вольной борьбой, самбо и художественной гимнастикой. Часть площади четвертого этажа также «съедает» балкон для зрителей универсального зала. Пятый этаж отведен под раздевалки, душевые и технические помещения, а шестой – это царство большого тенниса: здесь можно переодеться, размяться и выйти на сам корт, расположенный на эксплуатируемой кровле.
Объем спортивного комплекса на фоне нового общежития РГСУ, также спроектированного ПТАМ Ю.Виссарионова
Объем спортивного комплекса на фоне нового общежития РГСУ, также спроектированного ПТАМ Ю.Виссарионова
Студенческий спортивный комплекс РГСУ © ПТАМ Виссарионова
Студенческий спортивный комплекс РГСУ © ПТАМ Виссарионова
Студенческий спортивный комплекс РГСУ © ПТАМ Виссарионова
Студенческий спортивный комплекс РГСУ © ПТАМ Виссарионова
Студенческий спортивный комплекс РГСУ © ПТАМ Виссарионова
Студенческий спортивный комплекс РГСУ © ПТАМ Виссарионова
Студенческий спортивный комплекс РГСУ © ПТАМ Виссарионова
Студенческий спортивный комплекс РГСУ © ПТАМ Виссарионова
Студенческий спортивный комплекс РГСУ © ПТАМ Виссарионова
Студенческий спортивный комплекс РГСУ © ПТАМ Виссарионова
Студенческий спортивный комплекс РГСУ © ПТАМ Виссарионова
Студенческий спортивный комплекс РГСУ © ПТАМ Виссарионова
Студенческий спортивный комплекс РГСУ © ПТАМ Виссарионова
Студенческий спортивный комплекс РГСУ © ПТАМ Виссарионова