Размещено на портале Архи.ру (www.archi.ru)

15.04.2011

Тонкая работа по поиску опоры

Объект:
Комплекс "383 George Street"
Адрес:
Австралия, None, Сидней.
Мастерская:
PTW

Бюро PTW построит в Сиднее многофункциональный комплекс, вписанный в историческую застройку центра города.

Комплекс “383 George Street” © PTW Architects
Комплекс “383 George Street” © PTW Architects
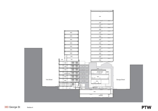
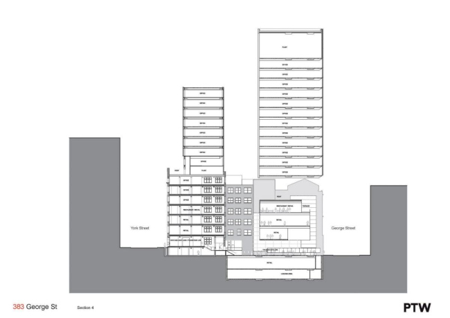
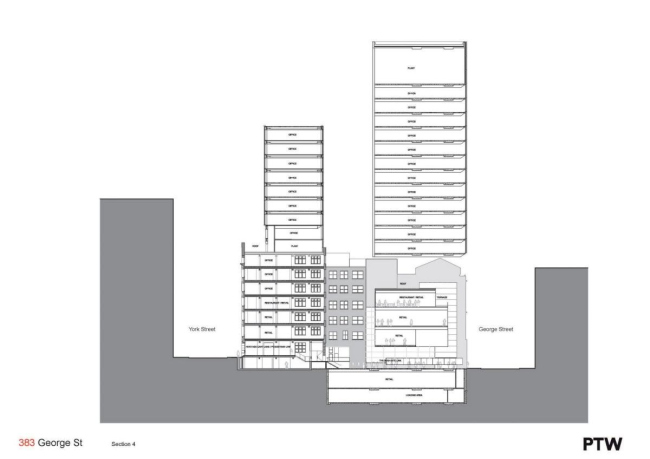
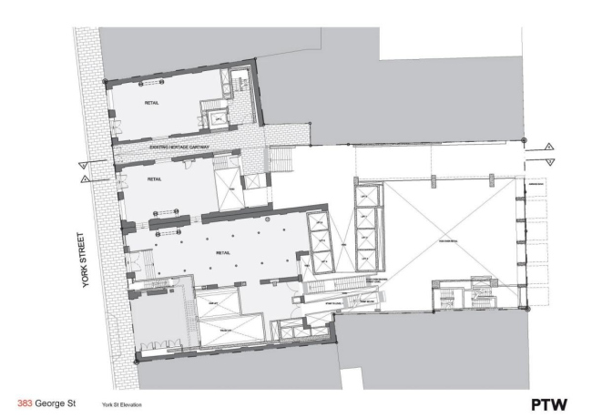
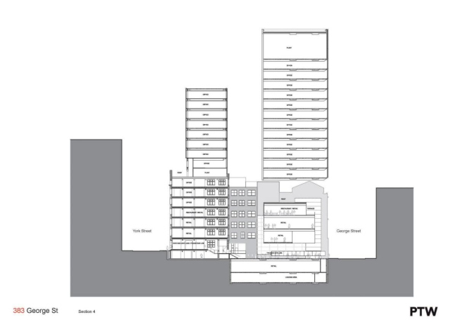
Он займет пространство шириной в городской квартал между Йорк-стрит и Джордж-Стрит. Фасад, выходящий на Джордж-стрит, вписан между двумя историческими зданиями, на Йорк-стрит — включает в себя два других памятника архитектуры, реставрация и приспособление которых под современные нужды включены в проект.

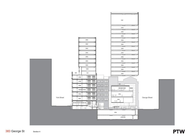
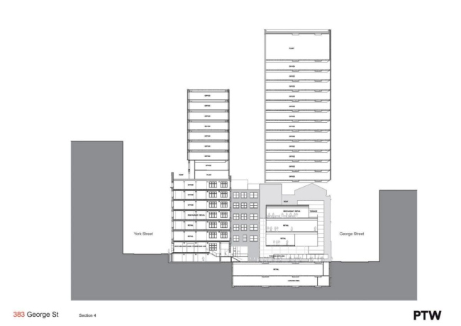
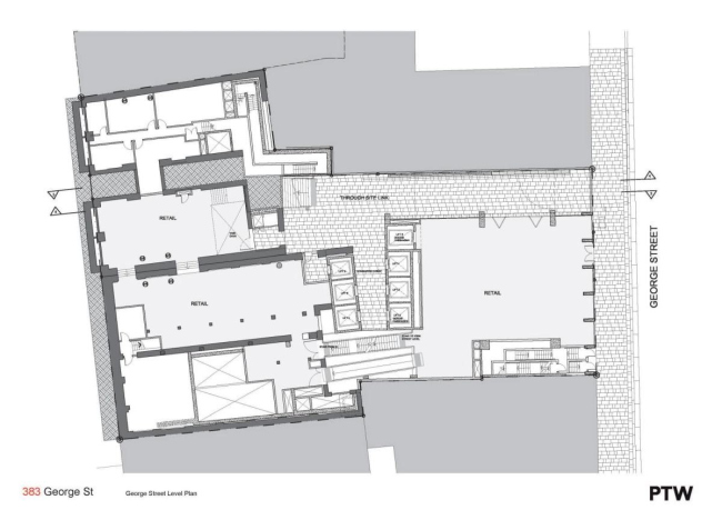
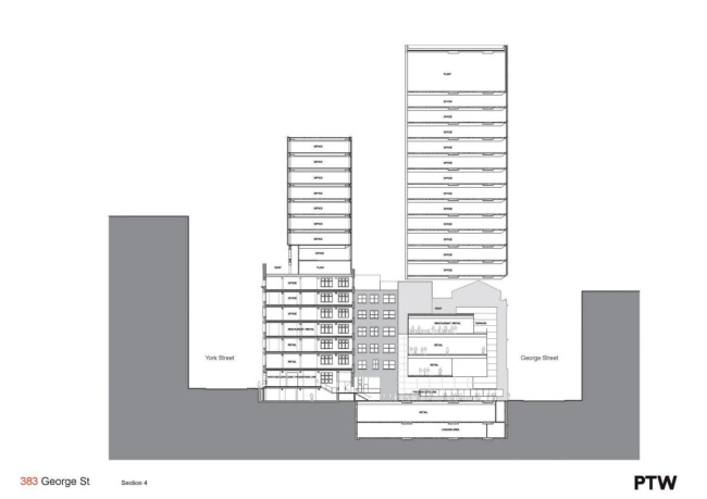
Таким образом, комплекс из подиума - торгового центра и помещенных на него 12-этажного и 9-этажного офисных корпусов свяжет две параллельные улицы, причем проходящие на разном уровне друг относительно друга. Пешеходная зона 1-го этажа будет частично идти по линии хозяйственного проулка, существовавшего когда-то на этом месте, а частично проходить через торговый центр. Оттуда же работники офисного комплекса смогут попасть на свои рабочие места. Дробное и разнообразное решение всех новых фасадов позволит лучше вписать комплекс в окружение, равно состоящее из исторической застройки и современных деловых зданий.

Офисный корпус, расположенный над включенными в комплекс охраняемыми постройками, будет возведен на легком стальном каркасе, чтобы давление на памятники было минимальным.

Н. Ф.
Комплекс “383 George Street” © PTW Architects
Комплекс “383 George Street” © PTW Architects
Комплекс “383 George Street” © PTW Architects
Комплекс “383 George Street” © PTW Architects
Комплекс “383 George Street” © PTW Architects
Комплекс “383 George Street” © PTW Architects
Комплекс “383 George Street” © PTW Architects
Комплекс “383 George Street” © PTW Architects
Комплекс “383 George Street” © PTW Architects
Комплекс “383 George Street” © PTW Architects
Комплекс “383 George Street” © PTW Architects
Комплекс “383 George Street” © PTW Architects
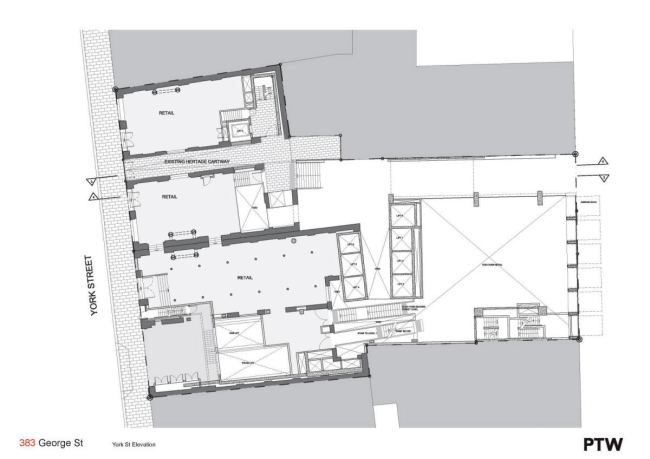
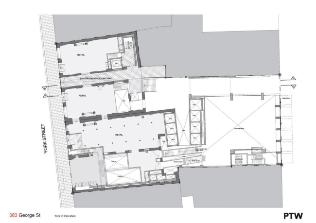
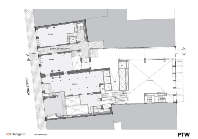
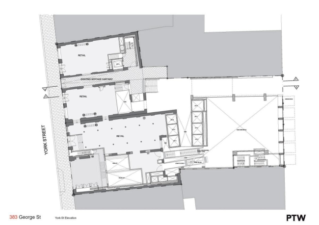
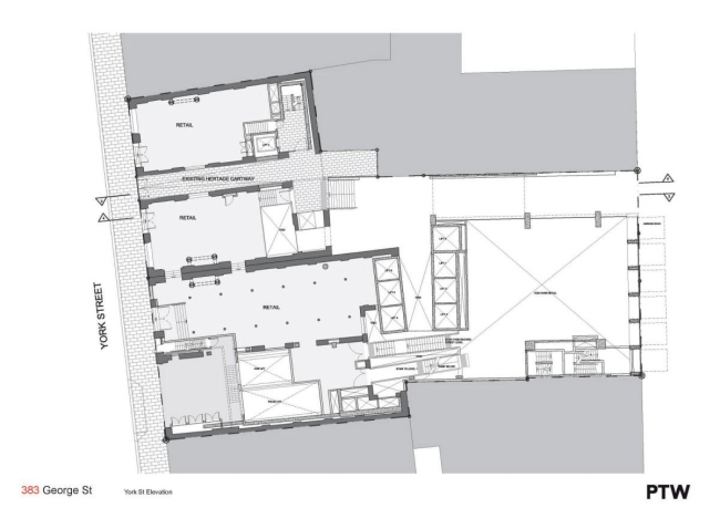
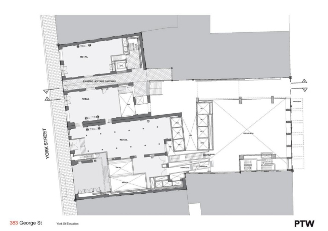
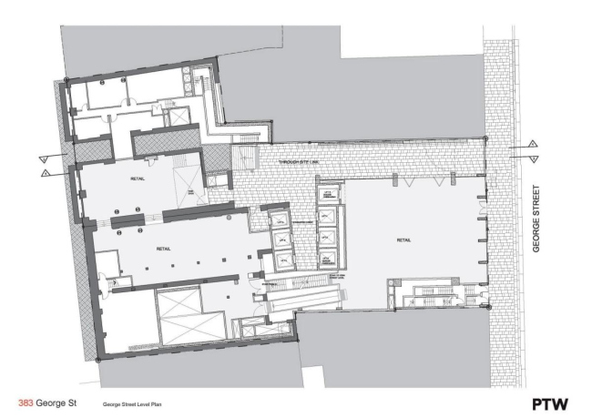
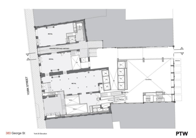
Комплекс “383 George Street”. План по уровню улицы Йорк-Стрит © PTW Architects
Комплекс “383 George Street”. План по уровню улицы Йорк-Стрит © PTW Architects
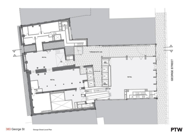
Комплекс “383 George Street”. 1-й этаж© PTW Architects
Комплекс “383 George Street”. 1-й этаж© PTW Architects
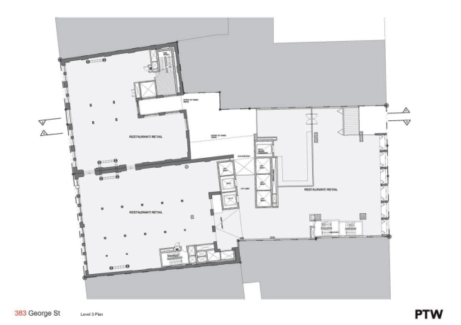
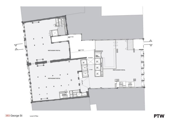
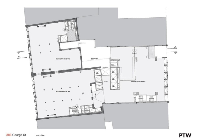
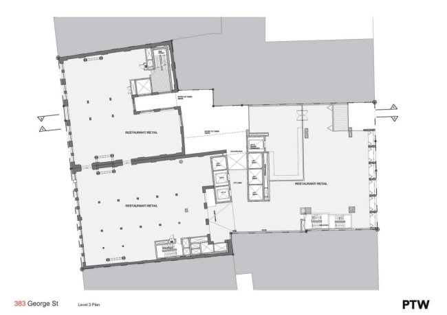
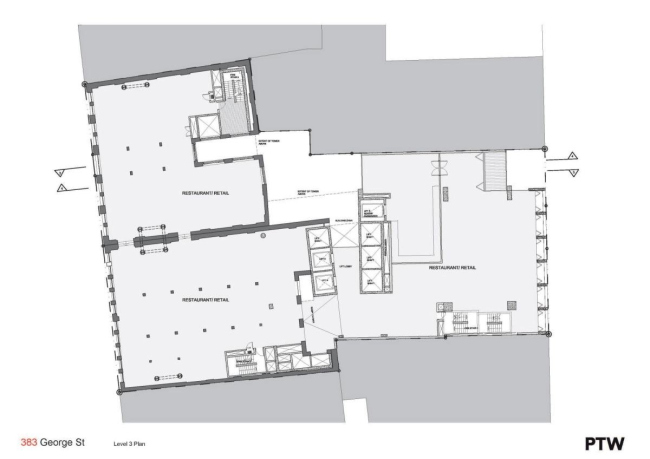
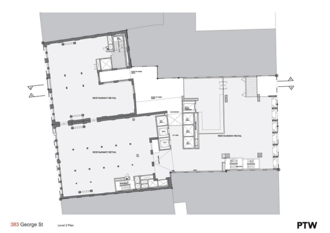
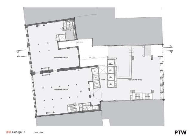
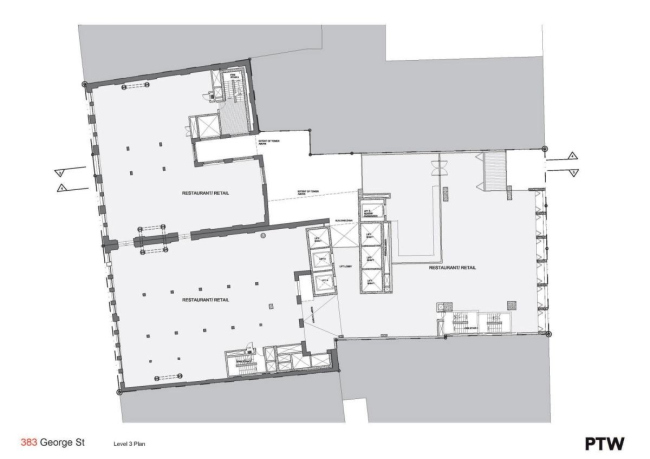
Комплекс “383 George Street”. 4-й этаж © PTW Architects
Комплекс “383 George Street”. 4-й этаж © PTW Architects
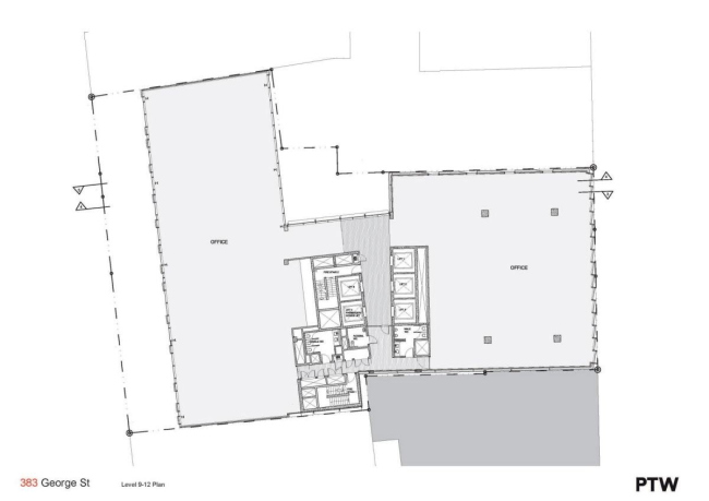
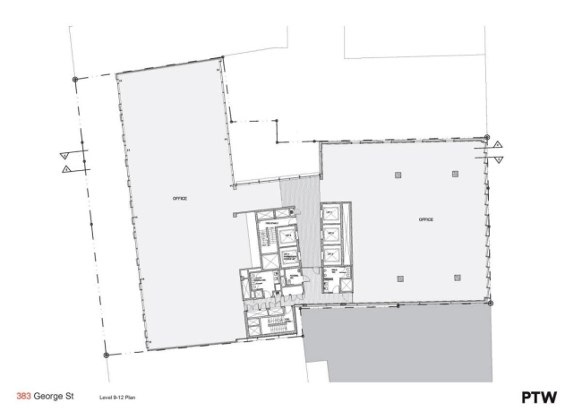
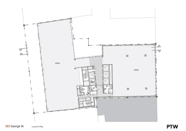
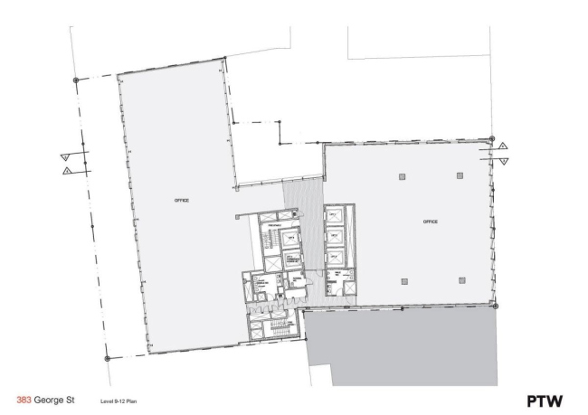
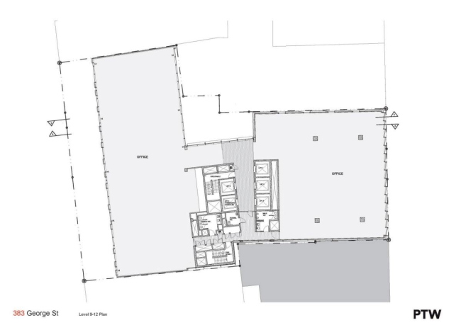
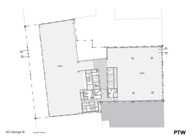
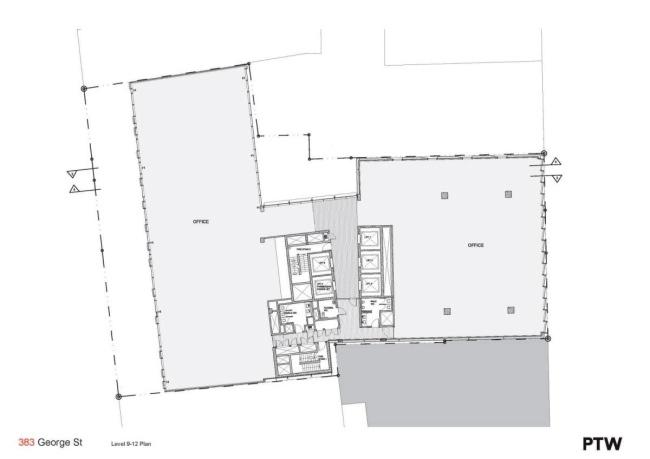
Комплекс “383 George Street”. План типового этажа офисного корпуса © PTW Architects
Комплекс “383 George Street”. План типового этажа офисного корпуса © PTW Architects
Комплекс “383 George Street” © PTW Architects
Комплекс “383 George Street” © PTW Architects
Комплекс “383 George Street” © PTW Architects
Комплекс “383 George Street” © PTW Architects
Комплекс “383 George Street” © PTW Architects
Комплекс “383 George Street” © PTW Architects
Комплекс “383 George Street” © PTW Architects
Комплекс “383 George Street” © PTW Architects