Размещено на портале Архи.ру (www.archi.ru)

07.04.2011

Преломление традиции

Маргарита Чубукова
Объект:
Посольство Великобритании в Грузии
Адрес:
Грузия, None, Тбилиси.
Мастерская:
Wilford Schupp Architekten

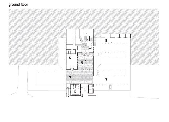
В Тбилиси по проекту мастерской Уилфорда Шуппа закончено строительство посольства Великобритании в Грузии. Дипломатическая миссия Англии, долгое время обитавшая в переоборудованном отеле, получила в свое распоряжение удобное и надежное здание, в архитектурном облике которого обыграны традиционные мотивы грузинского зодчества.

Посольство Великобритании в Грузии © Wilford Schupp Architekten
Посольство Великобритании в Грузии © Wilford Schupp Architekten
Заказ на проект здания британского посольства в Грузии мастерская Уилфорда Шуппа получила после того, как достроила аналогичный комплекс в Берлине. Министерство иностранных дел Великобритании очень высоко оценило этот проект, а свои пожелания к новому посольству сформулировало предельно просто: здание должно быть столь же эффектным внешне и при этом максимально надежно защищенным.

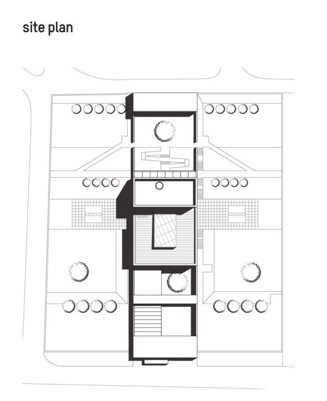
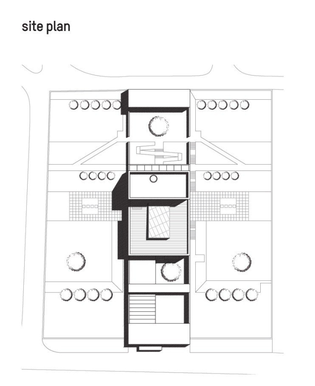
Участок под строительство новой дипмиссии был выделен в Кртсаниси, одном из самых престижных районов Тбилиси, который в городе также нередко называют «посольским» за большое количество расположенных здесь представительств иностранных государств. С трех сторон участок ограничен улицами с довольно активным трафиком, четвертой же обращен к живописной долине реки Куры, что во многом и предопределило композиционное решение комплекса.

Визуально посольство  разделено на два независимых объема – трехэтажный периметр, облицованный базальтом и оттого выглядящий весьма неприступным, и вырастающий из него золотистый резной куб, –  хотя на самом деле это единое здание. В «кубе» расположена резиденция посла Великобритании в Грузии. Нужно отметить, что подобное совмещение функций – мест работы и проживания посла – нетрадиционно, и архитекторы постарались сделать все возможное для того, чтобы максимально отделить одну зону от другой.

Все общественные зоны и рабочие кабинеты сгруппированы вокруг центрального атриума. По изящной лестнице можно попасть на второй этаж, в представительскую часть посольства, интерьеры которой отделаны дубовыми панелями. Здесь расположены несколько переговорных, конференц-зал, а также два кафетерия. Разделенные между собой стеклянными перегородками, они могут быть объединены в одно большое помещение, идеально подходящее для проведения приемов.

Резиденция посла с основным комплексом связана с помощью миниатюрного лифта, надежно спрятанного от глаз возможных посетителей. Жилой объем возносится гораздо выше офисной части, а его окна, в отличие от окон кабинетов, обращены к реке, благодаря чему возникает ощущение, что это два совершенно разных здания. «Резные» фасады резиденции представляют собой изящный парафраз традиций грузинского зодчества, в котором террасы жилых домов часто украшаются узорчатыми деревянными изгородями. Правда, в данном случае из соображений безопасности и удобства эксплуатации применен металл.
Посольство Великобритании в Грузии © Wilford Schupp Architekten
Посольство Великобритании в Грузии © Wilford Schupp Architekten
Посольство Великобритании в Грузии © Wilford Schupp Architekten
Посольство Великобритании в Грузии © Wilford Schupp Architekten
Посольство Великобритании в Грузии © Wilford Schupp Architekten
Посольство Великобритании в Грузии © Wilford Schupp Architekten
Посольство Великобритании в Грузии © Wilford Schupp Architekten
Посольство Великобритании в Грузии © Wilford Schupp Architekten
Посольство Великобритании в Грузии © Wilford Schupp Architekten
Посольство Великобритании в Грузии © Wilford Schupp Architekten
Посольство Великобритании в Грузии © Wilford Schupp Architekten
Посольство Великобритании в Грузии © Wilford Schupp Architekten
Посольство Великобритании в Грузии © Wilford Schupp Architekten
Посольство Великобритании в Грузии © Wilford Schupp Architekten
Посольство Великобритании в Грузии © Wilford Schupp Architekten
Посольство Великобритании в Грузии © Wilford Schupp Architekten
Посольство Великобритании в Грузии © Wilford Schupp Architekten
Посольство Великобритании в Грузии © Wilford Schupp Architekten
Посольство Великобритании в Грузии © Wilford Schupp Architekten
Посольство Великобритании в Грузии © Wilford Schupp Architekten
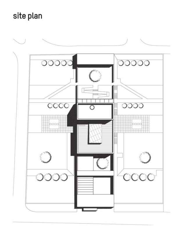
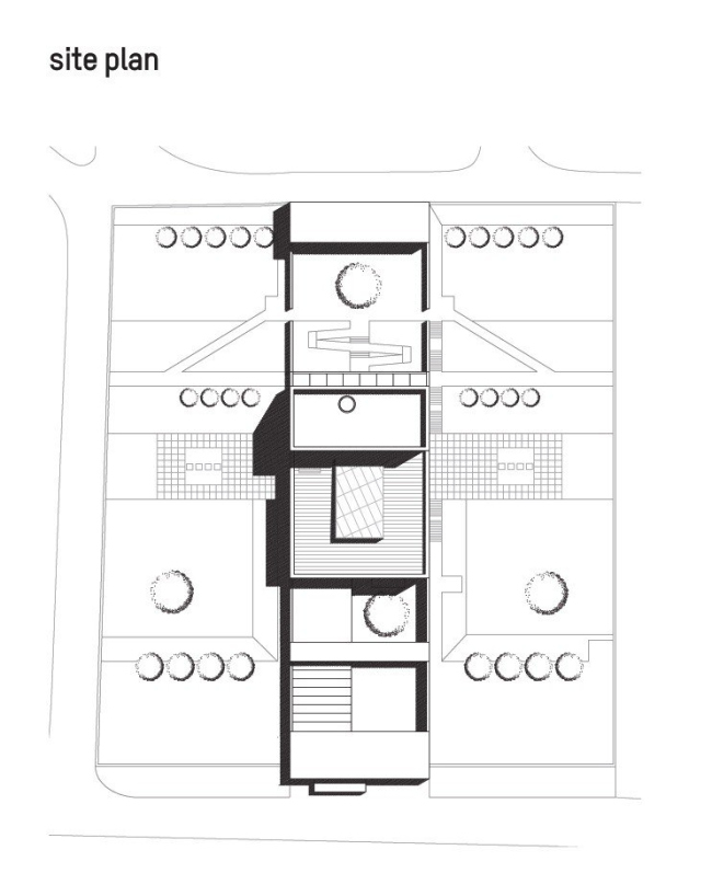
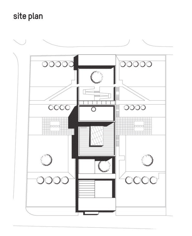
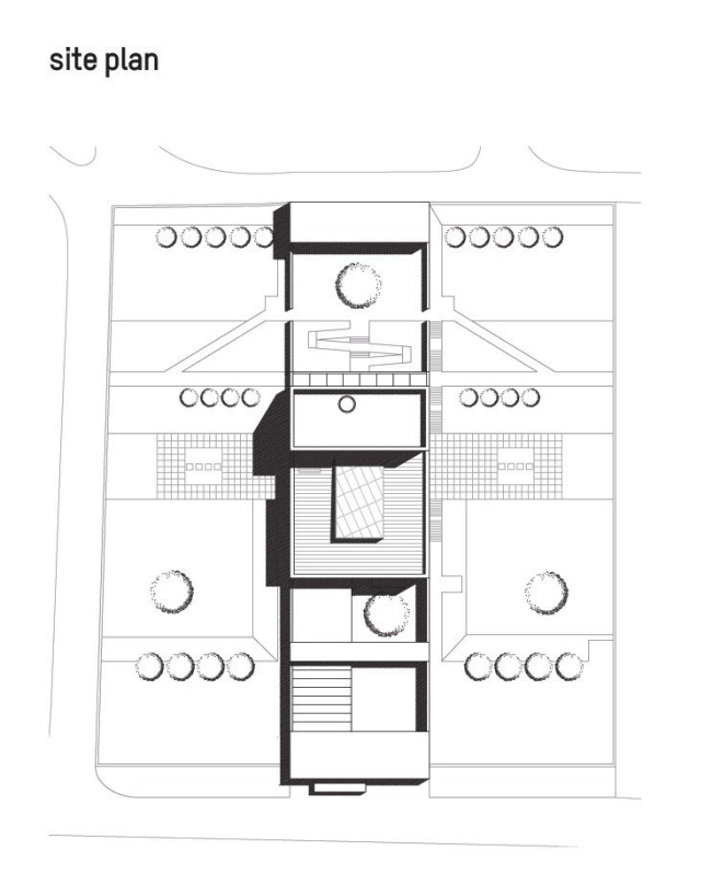
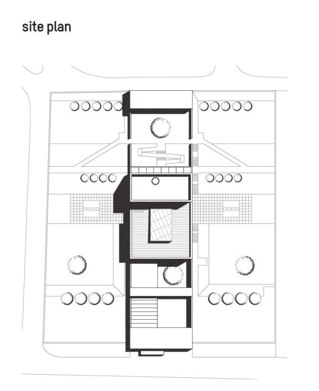
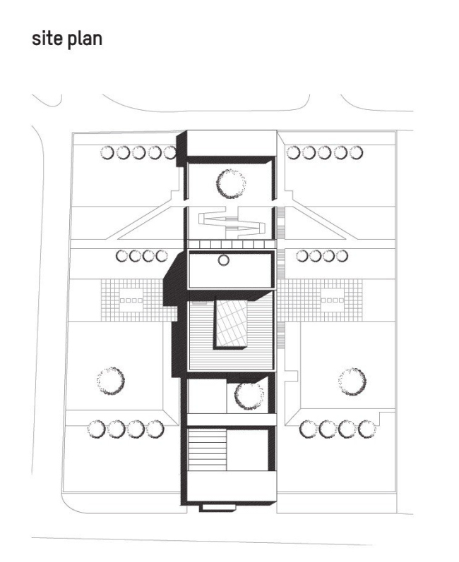
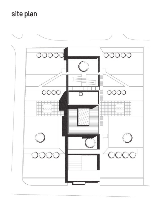
Посольство Великобритании в Грузии. Ситуационный план © Wilford Schupp Architekten
Посольство Великобритании в Грузии. Ситуационный план © Wilford Schupp Architekten
Посольство Великобритании в Грузии. Разрез © Wilford Schupp Architekten
Посольство Великобритании в Грузии. Разрез © Wilford Schupp Architekten
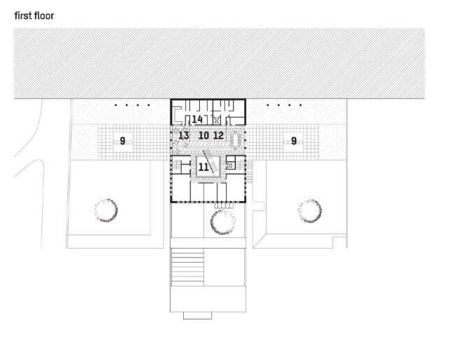
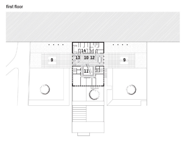
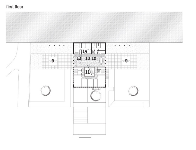
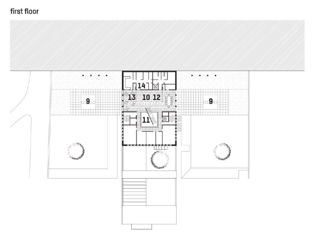
Посольство Великобритании в Грузии. 1-й этаж © Wilford Schupp Architekten
Посольство Великобритании в Грузии. 1-й этаж © Wilford Schupp Architekten
Посольство Великобритании в Грузии. 2-й этаж © Wilford Schupp Architekten
Посольство Великобритании в Грузии. 2-й этаж © Wilford Schupp Architekten
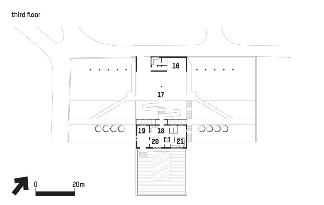
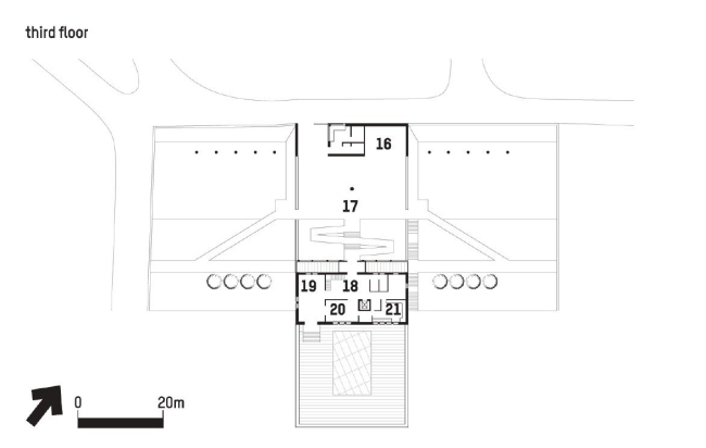
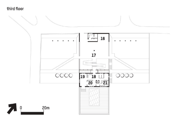
Посольство Великобритании в Грузии. 3-й этаж © Wilford Schupp Architekten
Посольство Великобритании в Грузии. 3-й этаж © Wilford Schupp Architekten
Посольство Великобритании в Грузии. 4-й этаж © Wilford Schupp Architekten
Посольство Великобритании в Грузии. 4-й этаж © Wilford Schupp Architekten
Посольство Великобритании в Грузии. 5-й этаж © Wilford Schupp Architekten
Посольство Великобритании в Грузии. 5-й этаж © Wilford Schupp Architekten