Размещено на портале Архи.ру (www.archi.ru)

07.04.2011

Такое разное дерево

Анна Мартовицкая
Объект:
Блокированные дома-апартаменты в Сочи
Адрес:
Россия, Москва.
Реконструкция жилого дома в Подмосковье
Адрес:
Россия, Москва.
Мастерская:
ПТАМ Виссарионова
Авторский коллектив:
Ю.Виссарионов, В.Кисель

7 апреля в рамках 17-й международной строительной выставки «MosBuild 2011» состоится конференция, посвященная экоустойчивому малоэтажному жилью. Одним из ее участников станет ПТАМ Виссарионова, которая представит сразу несколько своих новых проектов. О двух из них мы расскажем сегодня.

Блокированные дома-апартаменты в Сочи © ПТАМ Виссарионова
Блокированные дома-апартаменты в Сочи © ПТАМ Виссарионова
Тема экоустойчивых деревянных домов за последние два года стала одной из центральных для архитектурной мастерской Юрия Виссарионова. В частности, с проектом энергоэффективного коттеджа, в котором ярко обыгран образ традиционной хаты, творческий коллектив принимал участие в конкурсе «Дом XXI века», а позже разработал целый ряд предложений, где натуральное дерево является основным конструктивным и отделочным материалом. Среди последних – отдельно стоящие и блокированные жилые дома на одну семью, предназначенные для различных климатических районов страны.

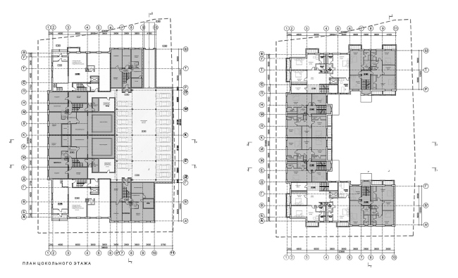
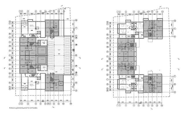
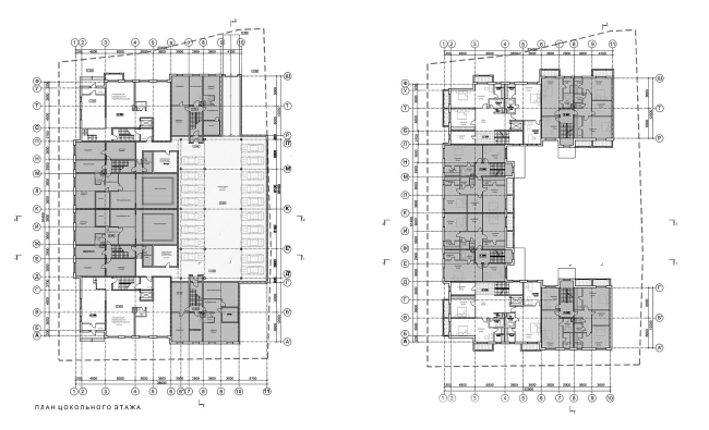
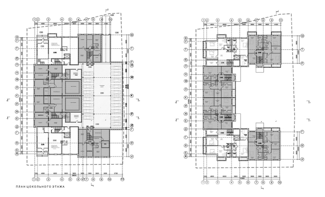
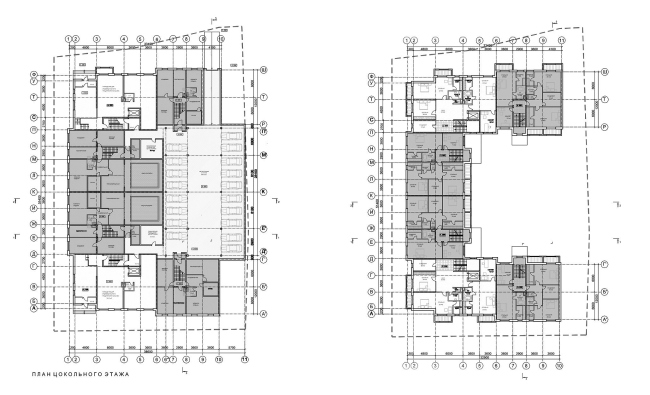
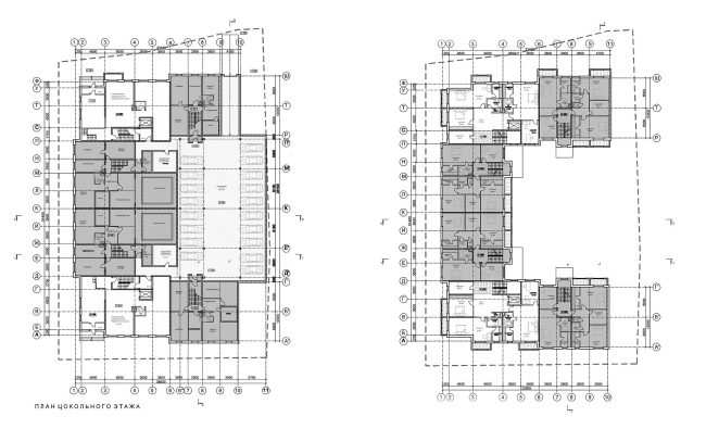
Первый проект представляет собой комплекс блокированных домов-апартаментов. Он разработан для Адлерского района Сочи и будет реализован неподалеку от горнолыжных спусков. Это соседство и подтолкнуло авторов к выбору архитектурной темы шале – традиционного альпийского жилища, в котором цокольный этаж оштукатуривается, а надстройка выполняется из дерева и накрывается деревянной же двускатной кровлей.
 
Участок, предназначенный для строительства апартаментов, имеет трапециевидную, почти прямоугольную форму и вытянут по оси север – юг. С севера он граничит с проезжей улицей (поэтому именно отсюда и организован заезд на придомовую территорию), со всех остальных сторон – с соседними жилыми участками. Кроме того, здесь есть незначительный уклон: перепад рельефа составляет около 2 метров, и архитекторы использовали его для размещения подземной автостоянки на 12 машин – с цокольными этажами жилых домов она связана с помощью специальных тамбур-шлюзов.

Комплекс состоит из шести жилых блоков и по сути своей является таунхаусом. В плане он напоминает квадратную скобку, в «стыках» которой на первом этаже размещены не жилые, а технические и офисные помещения – позже они могут использоваться и как кафе, и как магазины. В этих же угловых секциях помимо уличных входов с вестибюлями предусмотрены пассажирские лифты. Кроме того, каждый блок имеет внутреннюю лестницу с естественным освещением, а в двух центральных секциях на цокольном этаже также спроектированы небольшие бассейны.

Цокольный этаж комплекса облицован керамической плиткой, верхние этажи выполнены из клееного бруса. Насыщенный медовый оттенок дерева выгодно оттеняют белые «накладные» элементы – квадратные консоли балконов, размещенных на фасадах в шахматном порядке. Ограждения балконов выполнены из тонкой деревянной рейки, так же оформлены и входные зоны. Сочетание образа традиционного горного домика и лаконичных геометричных форм придает архитектуре комплекса современное и стильное звучание.

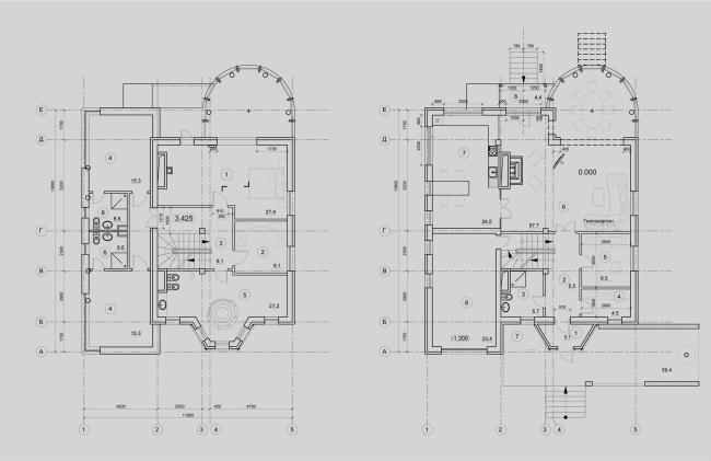
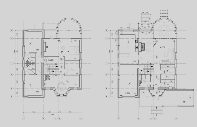
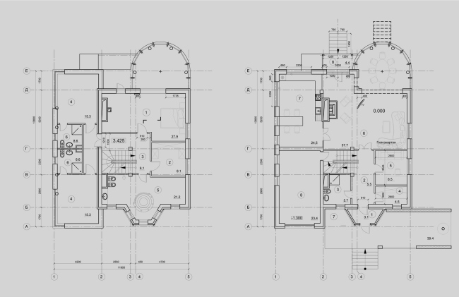
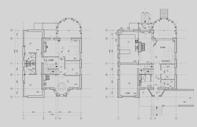
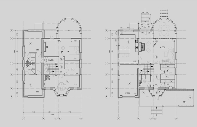
Второй проект – это реконструкция подмосковного коттеджа, в ходе которой традиционный образец «новорусского» строительства превратится в произведение «архитектурного минимализма» (определение авторов). «Пластической операции» подвергся весь жилой объем, но наибольшее число корректировок архитекторы внесли в облик кровли и полукруглый эркер во всю высоту дома. Последний архитекторы предлагают полностью остеклить и «прошить» тонкими вертикальными ламелями, выполненными из дерева. Это придаст довольно крупному объему визуальную легкость и некоторую экстравагантность, а внутренние помещения дома наполнит дневным светом.

Кроме того, в результате реконструкции в доме существенно увеличится площадь общественных зон. В частности, к открытой террасе второго этажа добавится эксплуатируемая кровля: вместо массивных скатов архитекторы проектируют лаконичную плоскую крышу. И вновь активно используется деревянная рейка, привносящая в облик дома шарм и подчеркивающая его открытость окружающей среде. В частности, из нее выполнено ограждение «обзорной площадки», благодаря чему новая кровля напоминает верхнюю палубу деревянного корабля.
Блокированные дома-апартаменты в Сочи © ПТАМ Виссарионова
Блокированные дома-апартаменты в Сочи © ПТАМ Виссарионова
Блокированные дома-апартаменты в Сочи © ПТАМ Виссарионова
Блокированные дома-апартаменты в Сочи © ПТАМ Виссарионова
Блокированные дома-апартаменты в Сочи © ПТАМ Виссарионова
Блокированные дома-апартаменты в Сочи © ПТАМ Виссарионова
Блокированные дома-апартаменты в Сочи © ПТАМ Виссарионова
Блокированные дома-апартаменты в Сочи © ПТАМ Виссарионова
Блокированные дома-апартаменты в Сочи © ПТАМ Виссарионова
Блокированные дома-апартаменты в Сочи © ПТАМ Виссарионова
Реконструкция жилого дома в Подмосковье © ПТАМ Виссарионова
Реконструкция жилого дома в Подмосковье © ПТАМ Виссарионова
Реконструкция жилого дома в Подмосковье © ПТАМ Виссарионова
Реконструкция жилого дома в Подмосковье © ПТАМ Виссарионова
Реконструкция жилого дома в Подмосковье © ПТАМ Виссарионова
Реконструкция жилого дома в Подмосковье © ПТАМ Виссарионова
Реконструкция жилого дома в Подмосковье © ПТАМ Виссарионова
Реконструкция жилого дома в Подмосковье © ПТАМ Виссарионова