Размещено на портале Архи.ру (www.archi.ru)

30.03.2011

Ржавое будущее

Объект:
Стадион Arena Ulstein
Адрес:
Норвегия, None, Ульстейнвик.
Мастерская:
Lund + Slaatto

В норвежском городе Ульстейнвике подведены итоги международного архитектурного конкурса на лучший проект спортивного комплекса Arena Ulstein. Первое место в этом состязании присуждено архитектурному бюро Лунд&Слотто, проект которого, по мнению жюри, наилучшим образом вписывает новый объект в сложившуюся ткань города.

Стадион Arena Ulstein © Lund+Slaatto & Nils Tveit
Стадион Arena Ulstein © Lund+Slaatto & Nils Tveit
Ульстейнвик – небольшой город на западном побережье Норвегии, который на протяжении нескольких столетий развивался исключительно как центр судостроения. Известен город и как родина футбольного клуба Хёдд, одного из самых успешных в стране. В XXI веке Ульстейнвик переживает масштабную реконструкцию: целый ряд верфей перестраиваются под социальные и культурные функции, а бывшая портовая зона превращена в променад. На ось главного пешеходного бульвара «нанизаны» многочисленные поперечные направления – аллеи, небольшие благоустроенные скверы и камерные площади. И именно на этом бульваре был выделен участок под строительство нового комплекса, под крышей которого предполагается объединить сразу несколько видов спорта.

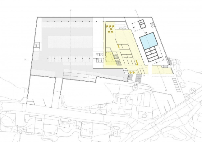
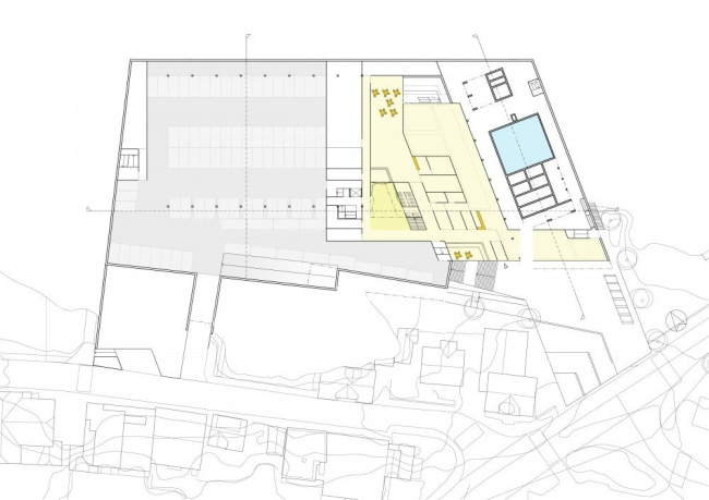
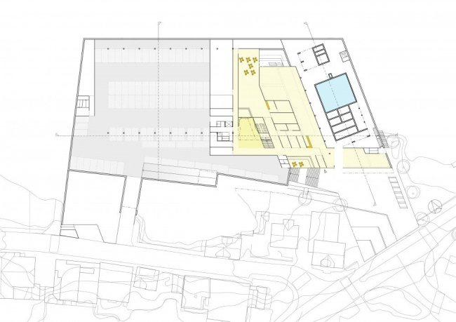
Впрочем, Лунд&Слотто пошли дальше и в состав комплекса, помимо бассейна и спортзалов, также включили молодежный клуб и библиотеку. По мнению архитекторов, эти функции, не имеющие прямого отношения к спорту, но интересные молодежи, помогут новому объекту как можно быстрее включиться в активную социальную жизнь города.

Участок, предназначенный для строительства комплекса, имеет довольно значительный перепад рельефа, который архитекторы умело обыграли. Спортивный центр частично врыт в склон, и в получившихся подземных уровнях размещена парковка. Стилобатная часть комплекса следует логике рельефа и фактически развивается на двух уровнях, образуя живописную «складку». В месте «перегиба» архитекторы озеленяют кровлю стилобата и превращают ее в открытую игровую площадку. Пешеходы этот «разрыв» между двумя корпусами спортцентра также могут использовать для того, чтобы перейти на параллельную бульвару улицу, не обходя здание целиком.

Проект Лунд&Слотто предусматривает панорамное остекление большинства спортивных и общественных зон комплекса и озеленение кровель обоих корпусов. Кроме того, в отделке фасадов предполагается применить листы кортеновской стали, ржавая бархатистая структура которой, по замыслу архитекторов, как нельзя лучше подчеркивает преемственность поколений, напоминая о судостроительном прошлом застраиваемой территории. А в отделке интерьеров авторы проекта предлагают использовать древесину местных сортов и светлый бетон.

А.М.
Стадион Arena Ulstein © Lund+Slaatto & Nils Tveit
Стадион Arena Ulstein © Lund+Slaatto & Nils Tveit
Стадион Arena Ulstein © Lund+Slaatto & Nils Tveit
Стадион Arena Ulstein © Lund+Slaatto & Nils Tveit
Стадион Arena Ulstein © Lund+Slaatto & Nils Tveit
Стадион Arena Ulstein © Lund+Slaatto & Nils Tveit
Стадион Arena Ulstein. © Lund+Slaatto & Nils Tveit
Стадион Arena Ulstein. © Lund+Slaatto & Nils Tveit
Стадион Arena Ulstein © Lund+Slaatto & Nils Tveit
Стадион Arena Ulstein © Lund+Slaatto & Nils Tveit
Стадион Arena Ulstein © Lund+Slaatto & Nils Tveit
Стадион Arena Ulstein © Lund+Slaatto & Nils Tveit
Стадион Arena Ulstein © Lund+Slaatto & Nils Tveit
Стадион Arena Ulstein © Lund+Slaatto & Nils Tveit
Стадион Arena Ulstein © Lund+Slaatto & Nils Tveit
Стадион Arena Ulstein © Lund+Slaatto & Nils Tveit
Стадион Arena Ulstein © Lund+Slaatto & Nils Tveit
Стадион Arena Ulstein © Lund+Slaatto & Nils Tveit
Стадион Arena Ulstein © Lund+Slaatto & Nils Tveit
Стадион Arena Ulstein © Lund+Slaatto & Nils Tveit
Стадион Arena Ulstein © Lund+Slaatto & Nils Tveit
Стадион Arena Ulstein © Lund+Slaatto & Nils Tveit
Стадион Arena Ulstein © Lund+Slaatto & Nils Tveit
Стадион Arena Ulstein © Lund+Slaatto & Nils Tveit
Стадион Arena Ulstein © Lund+Slaatto & Nils Tveit
Стадион Arena Ulstein © Lund+Slaatto & Nils Tveit
Стадион Arena Ulstein © Lund+Slaatto & Nils Tveit
Стадион Arena Ulstein © Lund+Slaatto & Nils Tveit
Стадион Arena Ulstein © Lund+Slaatto & Nils Tveit
Стадион Arena Ulstein © Lund+Slaatto & Nils Tveit
Стадион Arena Ulstein © Lund+Slaatto & Nils Tveit
Стадион Arena Ulstein © Lund+Slaatto & Nils Tveit
Стадион Arena Ulstein. План © Lund+Slaatto & Nils Tveit
Стадион Arena Ulstein. План © Lund+Slaatto & Nils Tveit
Стадион Arena Ulstein. План © Lund+Slaatto & Nils Tveit
Стадион Arena Ulstein. План © Lund+Slaatto & Nils Tveit
Стадион Arena Ulstein. План уровня 0 © Lund+Slaatto & Nils Tveit
Стадион Arena Ulstein. План уровня 0 © Lund+Slaatto & Nils Tveit