Размещено на портале Архи.ру (www.archi.ru)

12.09.2011

На гребне

Анна Мартовицкая
Объект:
Жилой комплекс комфорт-класса
Адрес:
Россия, Санкт-Петербург. Московский проспект, вл.65
Архитектор:
Владимир Плоткин
Мастерская:
ТПО «Резерв»

На месте Санкт-Петербургского молокозавода «Петмол», занимавшего 11 га на углу Московского проспекта и набережной Обводного канала, ТПО «Резерв» спроектировало жилой комплекс общей площадью 340 тысяч квадратных метров. Столь высокая плотность застройки не помешала архитекторам органично включить новый микрорайон в ткань города.

Жилой комплекс комфорт-класса, Санкт-Петербург © ТПО «Резерв»
Жилой комплекс комфорт-класса, Санкт-Петербург © ТПО «Резерв»
«Петмол», один из самых крупных производителей молочных продуктов в Санкт-Петербурге, несколько лет назад переехал в промзону Парнас, а на его месте новый собственник территории намерен построить жилье. Решение более чем логичное: вокруг завода преобладают именно жилые кварталы, даже от Московского проспекта «Петмол» все эти годы был отделен линией многоквартирных домов. На проект жилого комплекса был объявлен закрытый международный архитектурный конкурс, одним из участников которого и стало ТПО «Резерв».

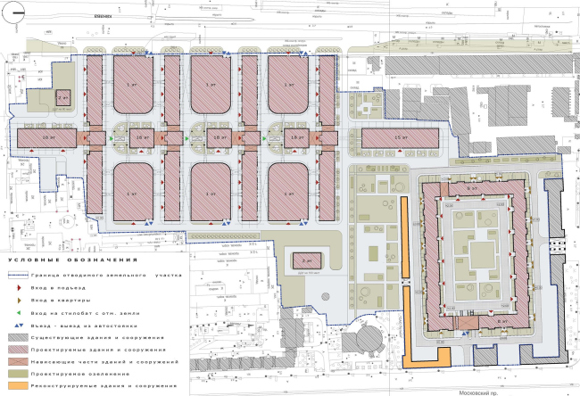
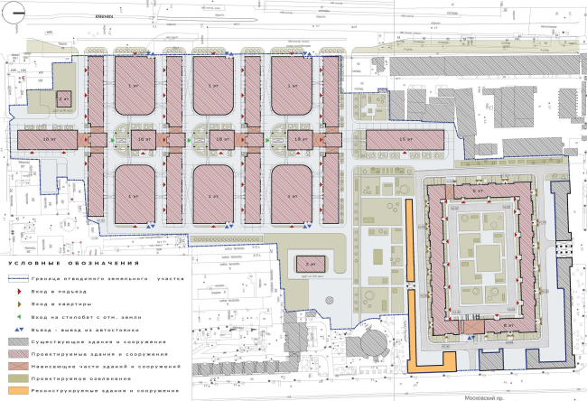
Участок, предназначенный под застройку, имеет протяженную форму, ориентированную с севера на юг. По своим длинным сторонам этот прямоугольник ограничен Московским проспектом и параллельной ей Варшавской улицей (пока только проектируемой), по коротким – набережной Обводного канала и улицей  Красуцкого. Однако заводские строения занимают его отнюдь не целиком: в силу разных ограничений, производство развивалось каскадом, от юго-западной границы участка к северо-восточной. Их ближайшим соседом является вестибюль станции метро «Фрунзенская» с ее неизбежной зоной отчуждения, врезающейся в участок огромным незастроенным клином земли. Другое ограничение связано с памятником архитектуры: на территории завода, ближе всего к Обводному каналу, располагается скотопригонный двор, построенный в 1823-1826 годах по проекту архитектора Иосифа Шарлеманя, который не только следует сохранить, но и окружить относительно невысокой застройкой.

Проанализировав все обстоятельства, Владимир Плоткин решил разбить проектируемый жилой район на две независимые части. Помимо сугубо градостроительных соображений, архитектор принимал во внимание и экономические. Дом меньшей этажности, расположенный рядом с памятником архитектуры и имеющий вид на дугу Обводного канала, имеет все основания стать объектом более высокого класса и на рынок может быть выведен девелопером как самостоятельный продукт.

«Конечно, когда думаешь о застройке Санкт-Петербурга, первое, что приходит на ум – это классическая регулярная структура с замкнутыми кварталами, столь характерная для города, – говорит Владимир Плоткин. – И именно такую модель мы предложили реализовать в случае с более дорогим домом, расположенным ближе к метро». Восьмиэтажный объем архитектор замыкает в периметр и помещает в другую «коробочку» – уже существующих исторических одноэтажных строений. Памятники, таким образом, превращаются в своего рода форпосты нового дома, что как нельзя лучше соотносится с их брутальной промышленной внешностью. Внутренний двор дома архитекторы предлагают поднять над землей – он расположен на кровле одноэтажной автостоянки (отметка пола составляет -2.5 м), полностью озеленен и превращается в сад для жильцов. Кстати, квартиры на первом уровне имеют два этажа – это своего рода таунхаусы, из которых до центра Петербурга можно добраться на метро на каких-то пятнадцать минут.

Основная же часть жилого комплекса стать кварталом ну никак не могла. В этом случае были бы нарушены все мыслимые и немыслимые нормы инсоляции квартир, а дворовые пространства превратились бы в затененные холодные колодцы. И тогда архитекторы ограничились аллюзией на классическую квартальную застройку, разработав планировочную схему, основанную на компоновке нескольких курдонеров.

Комплекс имеет ярко выраженную продольную ось, параллельную Московскому проспекту, на которую «нанизаны» разомкнутые жилые кварталы с озелененными дворами, решенными в двух уровнях. Размеры этого «гребня» (внутренние габариты каждого квартала составляют 60-70 м) масштабны застройке чуть более центральной части города, расположенной по ту сторону Обводного канала, а именно Красноармейских улиц, которые вместе с улицей Егорова образуют на карте именно такую решетку. На ситуационном плане отчетливо видно, что архитекторы воспроизводят этот рисунок почти досконально, только в районе бывших казарм роль хребта и поперечных ребер играют улицы, а в генплане жилого комплекса – наоборот, дома.

Для того, чтобы наполнить дворы максимальным количеством солнечного света, центральная ось не застраивается полностью: в пластине главного продольного корпуса архитекторы предлагают сделать разрывы почти во всю высоту здания – лишь последние три этажа соединены перекладинами, подчеркивающими единство объема. Этажность боковых «крыльев» понижается перпендикулярно проспекту и Варшавской улице, постепенно приближаясь к масштабу исторической застройки набережной Обводного, а граница каждого двора обозначена с помощью невысоких и компактных в плане одноподъездных домов – их появление помогает «добрать» заданное заказчиком количество квадратных метров, а также отделить пространство, предназначенное только для жильцов, от улицы.  Как несложно догадаться, и в этой части жилого комплекса все дворы подняты на уровень выше, озеленены и сделаны полностью пешеходными – они «перетекают» друг в друга, благодаря спроектированным ТПО «Резерв» мостикам. В стилобатной части размещены парковки и объекты инфраструктуры.

Проект, разработанный в рамках конкурса на лучшую концепцию жилого комплекса, не предполагал детальной проработки его архитектуры. Но минимальные предложения по внешнему облику зданий все же были сделаны. Авторы разработали 8 типов фасадов, которые можно комбинировать в разной последовательности, создавая тем самым насыщенную визуальную среду. Чередование динамичных вертикальных и горизонтальных членений и применение материалов разной фактуры и цвета избавляют жилой комплекс от ощущения массивности и делают его узнаваемым.
Ситуационный план. Жилой комплекс комфорт-класса, Санкт-Петербург © ТПО «Резерв»
Ситуационный план. Жилой комплекс комфорт-класса, Санкт-Петербург © ТПО «Резерв»
Жилой комплекс комфорт-класса, Санкт-Петербург © ТПО «Резерв»
Жилой комплекс комфорт-класса, Санкт-Петербург © ТПО «Резерв»
Жилой комплекс комфорт-класса, Санкт-Петербург © ТПО «Резерв»
Жилой комплекс комфорт-класса, Санкт-Петербург © ТПО «Резерв»
Жилой комплекс комфорт-класса , Санкт-Петербург © ТПО «Резерв»
Жилой комплекс комфорт-класса , Санкт-Петербург © ТПО «Резерв»
Жилой комплекс комфорт-класса, Санкт-Петербург © ТПО «Резерв»
Жилой комплекс комфорт-класса, Санкт-Петербург © ТПО «Резерв»
Жилой комплекс комфорт-класса, Санкт-Петербург © ТПО «Резерв»
Жилой комплекс комфорт-класса, Санкт-Петербург © ТПО «Резерв»
Жилой комплекс комфорт-класса, Санкт-Петербург © ТПО «Резерв»
Жилой комплекс комфорт-класса, Санкт-Петербург © ТПО «Резерв»
Жилой комплекс комфорт-класса, Санкт-Петербург © ТПО «Резерв»
Жилой комплекс комфорт-класса, Санкт-Петербург © ТПО «Резерв»
Схема фасадов. Жилой комплекс комфорт-класса, Санкт-Петербург © ТПО «Резерв»
Схема фасадов. Жилой комплекс комфорт-класса, Санкт-Петербург © ТПО «Резерв»
Схема фасадов. Жилой комплекс комфорт-класса, Санкт-Петербург © ТПО «Резерв»
Схема фасадов. Жилой комплекс комфорт-класса, Санкт-Петербург © ТПО «Резерв»
Генеральный план. Жилой комплекс комфорт-класса, Санкт-Петербург © ТПО «Резерв»
Генеральный план. Жилой комплекс комфорт-класса, Санкт-Петербург © ТПО «Резерв»
Жилой комплекс комфорт-класса, Санкт-Петербург © ТПО «Резерв»
Жилой комплекс комфорт-класса, Санкт-Петербург © ТПО «Резерв»
Жилой комплекс комфорт-класса, Санкт-Петербург © ТПО «Резерв»
Жилой комплекс комфорт-класса, Санкт-Петербург © ТПО «Резерв»