Размещено на портале Архи.ру (www.archi.ru)

22.03.2011

Свободное обращение с памятником

Нина Фролова
Объект:
Посетительский центр "Атриум Альгамбры"
Адрес:
Испания, None, Гранада.
Мастерская:
Cruz y Ortiz

Алваро Сиза победил в конкурсе идей на проект «атриума» — посетительского центра — для цитадели Альгамбра в Гранаде.

Посетительский центр «Атриум Альгамбры» © Estudio Juan Domingo Santos & Estudio Alvaro Siza
Посетительский центр «Атриум Альгамбры» © Estudio Juan Domingo Santos & Estudio Alvaro Siza
Сооружение должно было разместиться в отдалении от этого памятника Всемирного наследия, но все же не настолько далеко, чтобы туристы не смогли добраться до него пешком, поэтому участники конкурса должны были, безусловно, учитывать подобное внушающее трепет соседство.
Посетительский центр «Атриум Альгамбры» © Estudio Juan Domingo Santos & Estudio Alvaro Siza
Посетительский центр «Атриум Альгамбры» © Estudio Juan Domingo Santos & Estudio Alvaro Siza

Алваро Сиза предложил решить комплекс вполне в русле своего индивидуального стиля: лаконичные прямоугольные блоки вписаны в живописный ландшафт, не сливаясь с ним, но и не создавая диссонанса – подчеркивая и свою геометричность, и органичность природных форм. Горизонтальная ориентация объемов обеспечивает им незаметность при взгляде от Альгамбры: подобные детали особенно важны при работе с памятником ЮНЕСКО, так как эта организация особенно следит за сохранностью исторического облика местности в т. н. буферной зоне исторического сооружения.
Посетительский центр «Атриум Альгамбры» © Estudio Juan Domingo Santos & Estudio Alvaro Siza
Посетительский центр «Атриум Альгамбры» © Estudio Juan Domingo Santos & Estudio Alvaro Siza

При этом Сиза обосновал свой проект в почти революционном ключе. Он обратил внимание на сочетание в комплексе Альгамбры двух разнородных памятников: изысканной исламской жилой архитектуры дворца мавританских правителей Гранады с чередой небольших внутренних дворов и памятника Возрождения – дворца Карла V архитектора Педро Мачуки: идеальной ордерной постройки крупного масштаба с удивительным круглым двором для боя быков, окруженным колоннадой. По мнению португальского архитектора, несмотря на то, что за этим контрастом стоит резкая смена власти – мавры были изгнаны испанцами с Пиренейского полуострова всего за несколько десятилетий до создания ренессансного дворца – новое здание, смело помещенное Мачукой в сложившуюся структуру, не разрушило ее, но придало новый смысл и подчеркнуло характерные свойства – и свои, и более ранних сооружений. Возникшие в итоге череда объемов и пустот, маршруты и пространства с перепадами масштабов, которые составляют сегодняшнюю Альгамбру, вполне могут служить образцом и для нового сооружения, равно определяемого «духом места» и требованиями программы.
Посетительский центр «Атриум Альгамбры» © Estudio Juan Domingo Santos & Estudio Alvaro Siza
Посетительский центр «Атриум Альгамбры» © Estudio Juan Domingo Santos & Estudio Alvaro Siza

Второе место на конкурсе занял гранадский архитектор Гильермо Васкес Консуэгра (Guillermo Vazquez Consuegra), а третье – бюро «Крус & Ортис».
Посетительский центр «Атриум Альгамбры» © Estudio Juan Domingo Santos & Estudio Alvaro Siza
Посетительский центр «Атриум Альгамбры» © Estudio Juan Domingo Santos & Estudio Alvaro Siza
Посетительский центр «Атриум Альгамбры» © Estudio Juan Domingo Santos & Estudio Alvaro Siza
Посетительский центр «Атриум Альгамбры» © Estudio Juan Domingo Santos & Estudio Alvaro Siza
Посетительский центр «Атриум Альгамбры» © Estudio Juan Domingo Santos & Estudio Alvaro Siza
Посетительский центр «Атриум Альгамбры» © Estudio Juan Domingo Santos & Estudio Alvaro Siza
Посетительский центр «Атриум Альгамбры» © Estudio Juan Domingo Santos & Estudio Alvaro Siza
Посетительский центр «Атриум Альгамбры» © Estudio Juan Domingo Santos & Estudio Alvaro Siza
Конкурсный проект Гильермо Васкеса Консуэгры © Guillermo Vazquez Consuegra
Конкурсный проект Гильермо Васкеса Консуэгры © Guillermo Vazquez Consuegra
Конкурсный проект Гильермо Васкеса Консуэгры © Guillermo Vazquez Consuegra
Конкурсный проект Гильермо Васкеса Консуэгры © Guillermo Vazquez Consuegra
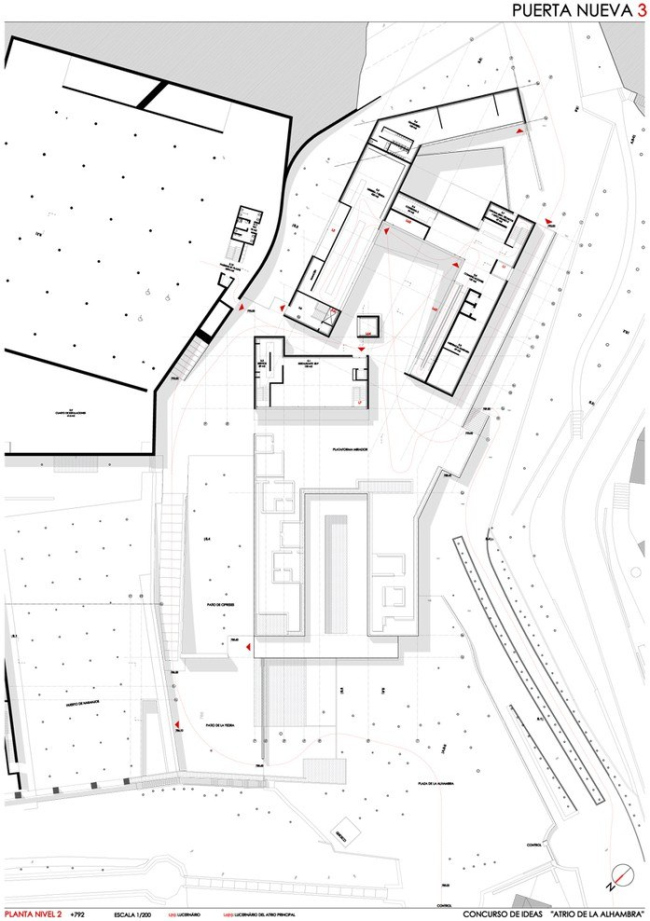
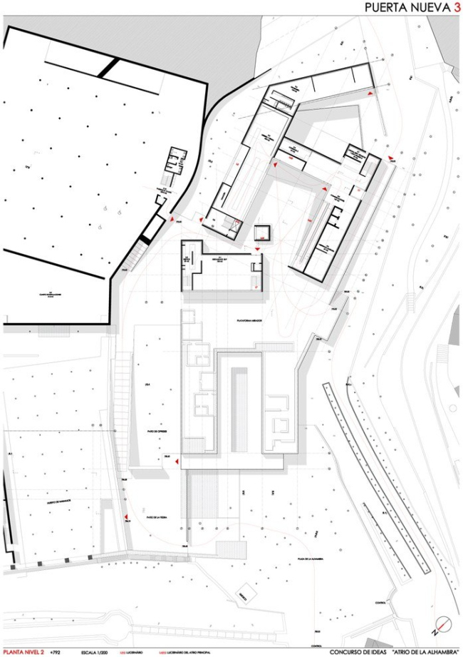
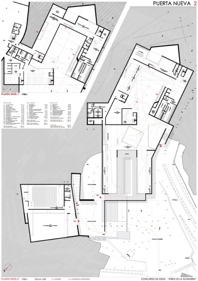
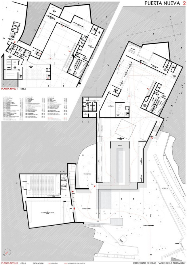
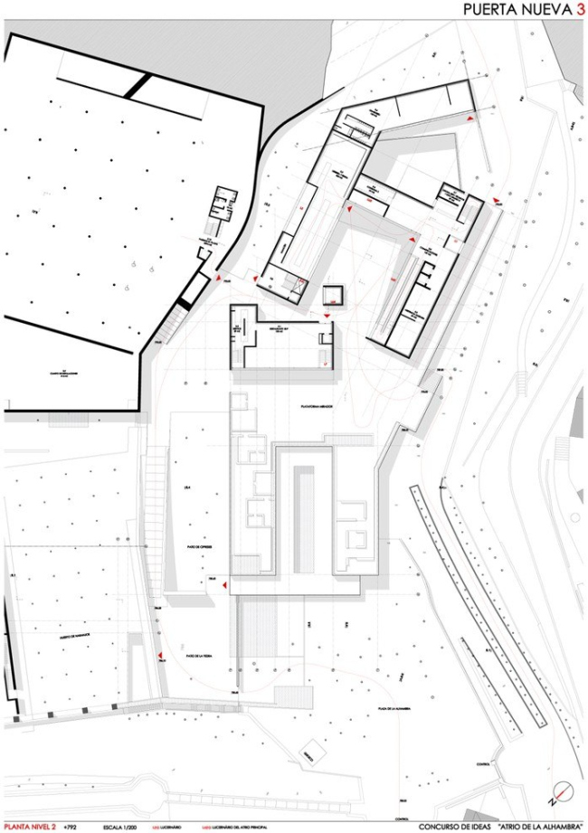
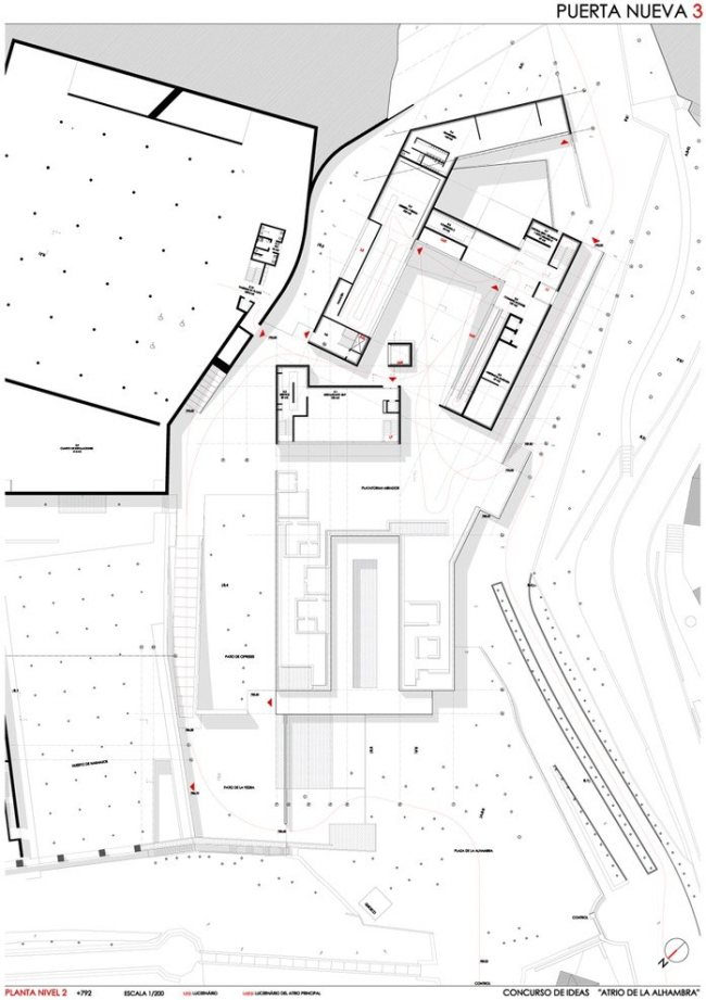
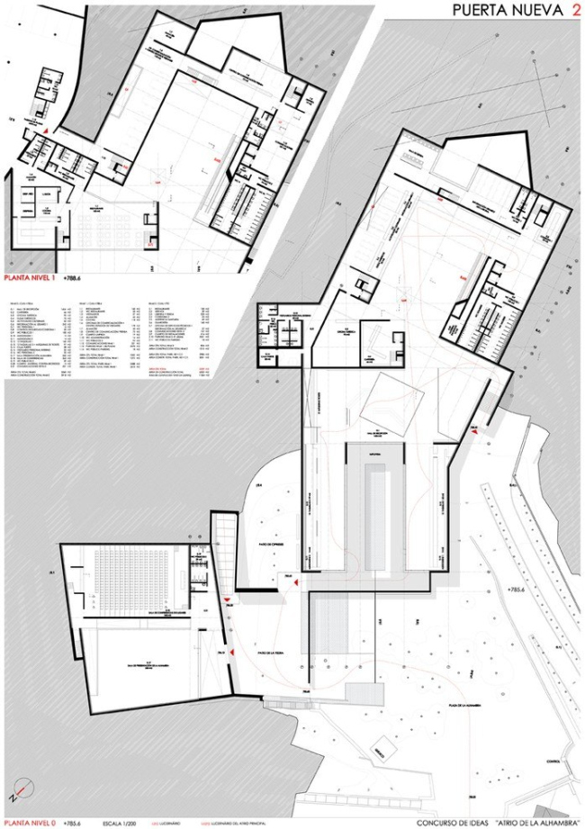
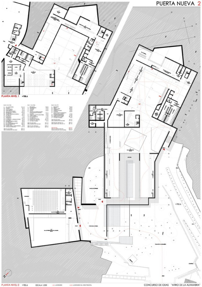
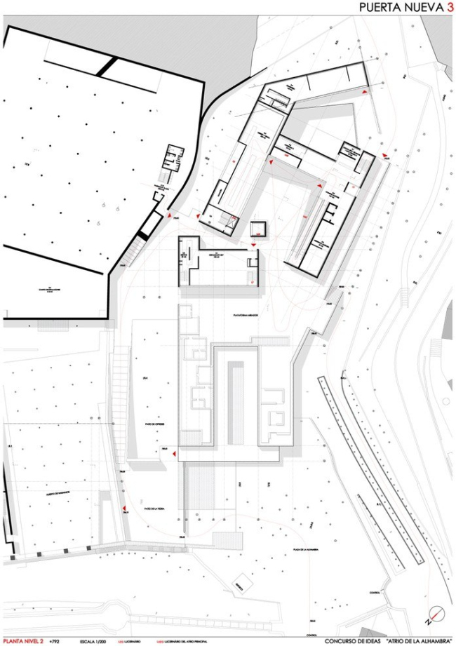
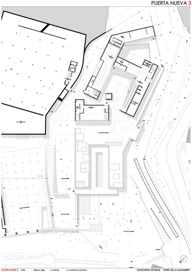
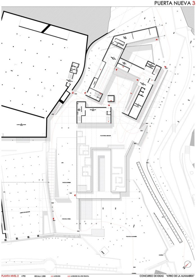
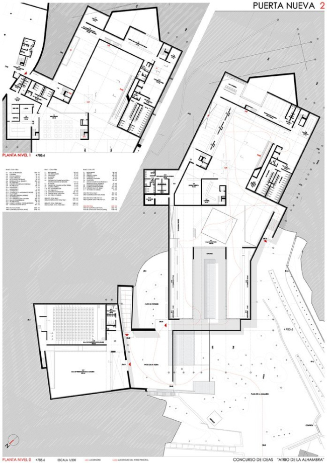
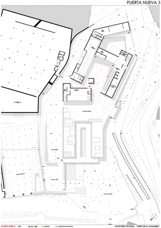
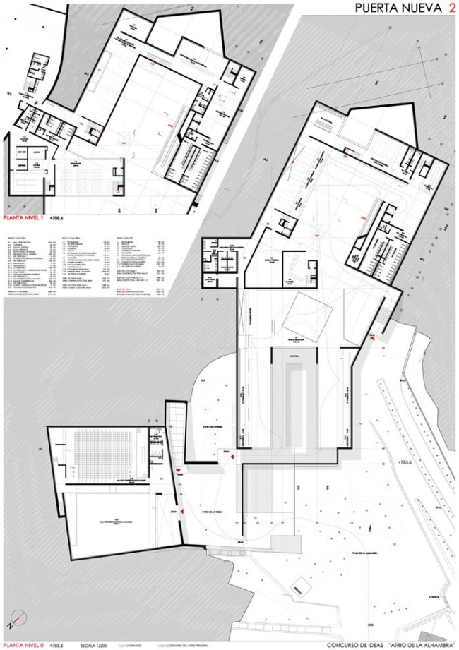
Конкурсный проект бюро «Крус & Ортис» © Cruz y Ortiz Arquitectos
Конкурсный проект бюро «Крус & Ортис» © Cruz y Ortiz Arquitectos
Конкурсный проект бюро «Крус & Ортис» © Cruz y Ortiz Arquitectos
Конкурсный проект бюро «Крус & Ортис» © Cruz y Ortiz Arquitectos
Комплекс Альгамбры. Общий вид
Комплекс Альгамбры. Общий вид
Львиный дворик в мавританской части Альгамбры
Львиный дворик в мавританской части Альгамбры
Двор дворца Карла V в Альгамбре
Двор дворца Карла V в Альгамбре