Размещено на портале Архи.ру (www.archi.ru)

17.03.2011

Перфорация как средство маскировки

Объект:
Многоуровневый общественный паркинг на Кулинштрассе
Адрес:
Германия, None, Висбаден.
Мастерская:
Claus & Kaan

В центре Висбадена будет реконструирован общественный многоуровневый паркинг. Проект, разработанный бюро BHSF Architects и Claus en Kaan Architecten, предусматривает превращение сугубо утилитарного сооружения в многофункциональный объем, накрытый вуалью.

Многоуровневый общественный паркинг на Кулинштрассе. © BHSF Architekten/Claus en Kaan Architecten
Многоуровневый общественный паркинг на Кулинштрассе. © BHSF Architekten/Claus en Kaan Architecten
Висбаден – один из немногих исторических городов Германии, застройка которого не пострадала во время Второй мировой войны, благодаря чему в облике его центральных районов и сегодня доминируют классицистические здания середины XIX века. Подобная аутентичная архитектурная среда делает Висбаден привлекательным и для туристов, и для развития бизнеса: в центре города очень много офисов, гостиниц, разнообразных кафе и ресторанов. Естественно, высока потребность этого района и в парковочных местах – с середины 1970-х годов на границе исторической и современной застройки, то есть фактически по периметру «сердца» города, стали возводиться многоуровневые паркинги. Один из таких комплексов, расположенный на Кулинштрассе, и стал темой архитектурного конкурса, объявленного в конце прошлого года. Его участники должны были разработать проект реконструкции многоэтажного здания и не только дополнить его новыми коммерческими функциями, но продумать решение фасадов, которое бы помогло органично вписать объем в существующую застройку. Наиболее полно отвечающим этим требованиям международное жюри сочло проект бюро BHSF Architects и Claus en Kaan Architecten.

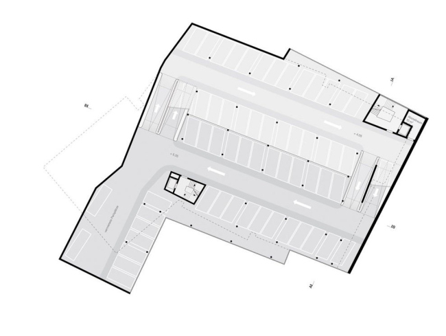
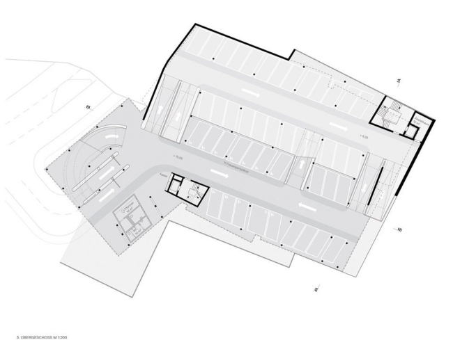
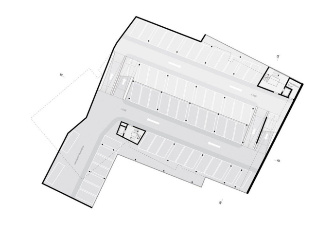
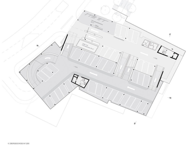
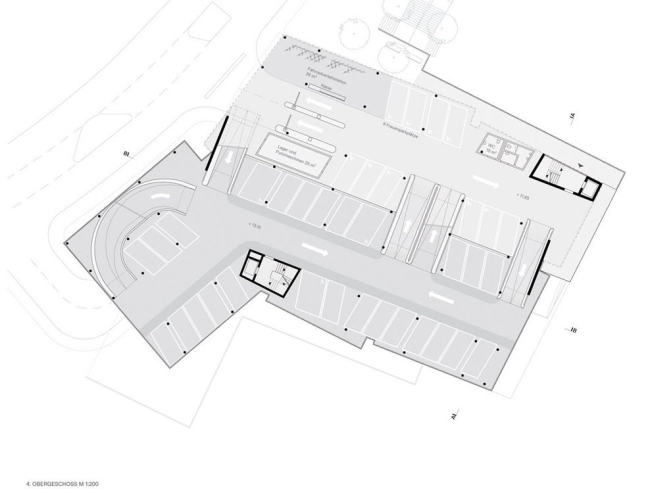
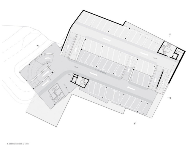
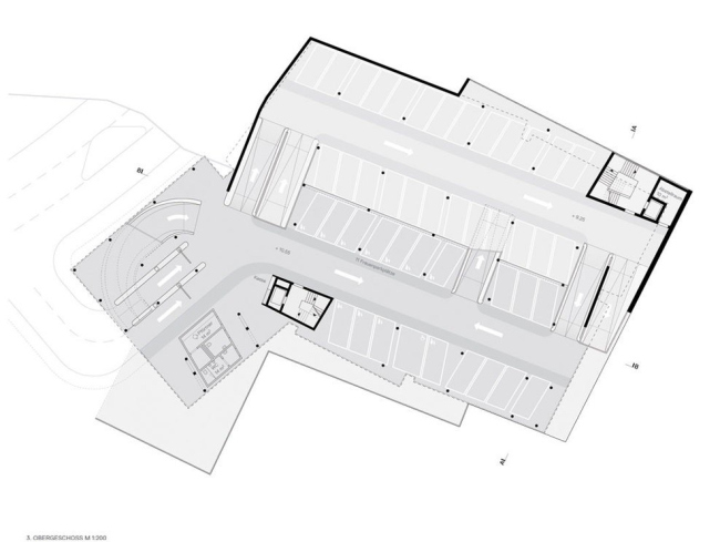
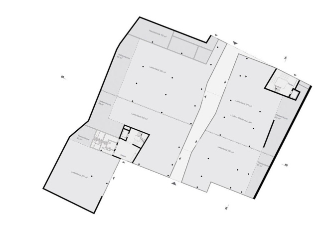
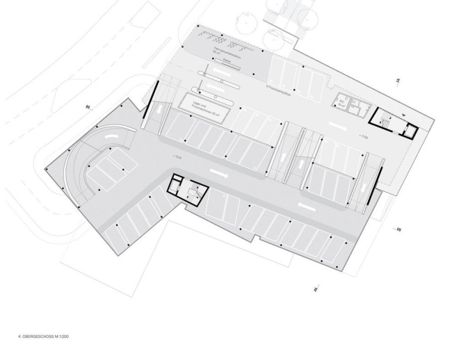
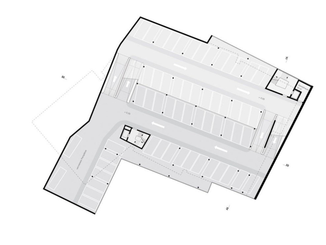
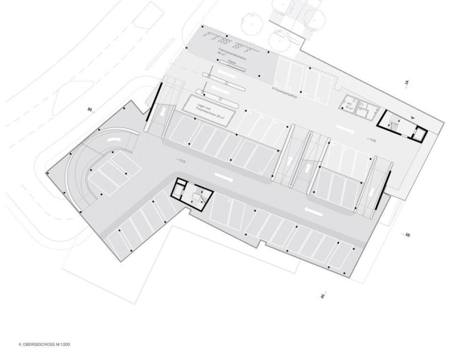
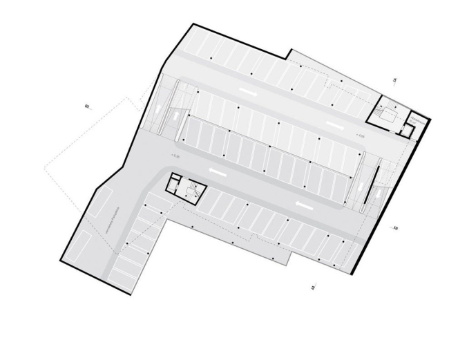
Паркинг, рассчитанный на 400 автомобилей, представляет собой многоэтажный полурамповый гараж, то есть разница отметок перекрытий в его смежных секциях составляет пол-этажа. Подобная конструктивная схема является оптимальной при необходимости вписать максимально вместительный паркинг в ограниченный по площади участок, и авторы проекта «выжали» из нее, что называется, по максимуму. Всего таких секций две: в одной, почти квадратной плане, размещена собственно спираль рампы и небольшое количество парковочных мест, а вторая полностью отведена под хранение автомобилей. И если меньшая секция ориентирована вдоль Кулинштрассе, то более крупный объем развернут перпендикулярно ей и развивается вглубь участка. На заднем дворе комплекса разбит небольшой сад, к которому можно пройти как с Кулинштрассе, так и с параллельной ей Шутценхофштрассе.

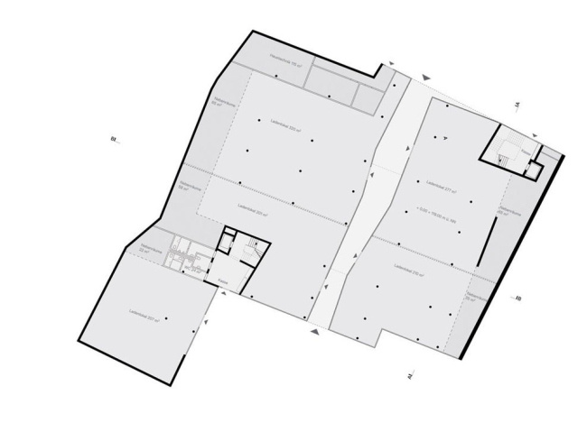
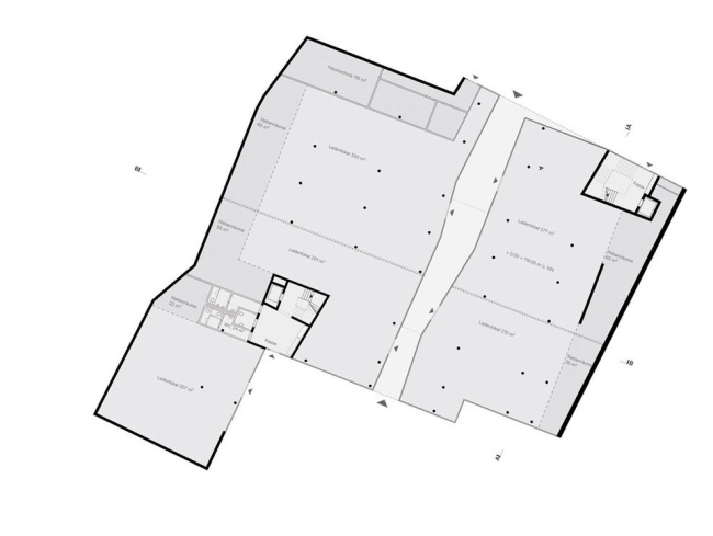
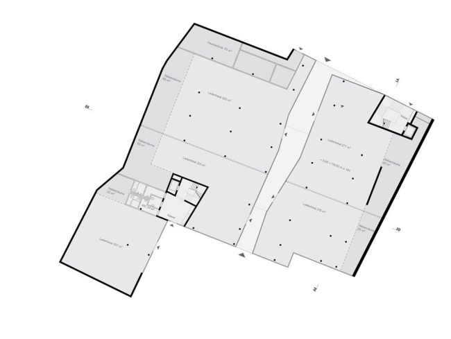
На первом этаже паркинга, услугами которого могут воспользоваться как сотрудники близлежащих офисов, так и туристы, размещены магазины – специализированные автомобильные и повседневного спроса. Этот этаж имеет панорамное остекление, а пилоны воспроизводят торжественный классический ритм ближайших соседей нового здания. Верхние уровни комплекса решены совершенно иначе. Они облицованы панелями из анодированного алюминия, причем каждая из них имеет перфорацию. Отверстия разного диаметра – от трехмиллиметровых до сантиметровых – создают эффект воздушной вуали, за которой смутно угадываются структура паркинга и очертания автомобилей. Подобное решение, по мнению архитекторов, с одной стороны, подчеркивает современность здания и его деликатность по отношению к ближайшему окружению, а с другой, обеспечивает преемственность поколений: реконструируемый паркинг был построен в 1970-е, и BHSF Architects и Claus en Kaan Architecten не стали отказываться от выразительной лаконичности модернизма, а лишь развили эту тему.


А. М.
Многоуровневый общественный паркинг на Кулинштрассе. © BHSF Architekten/Claus en Kaan Architecten
Многоуровневый общественный паркинг на Кулинштрассе. © BHSF Architekten/Claus en Kaan Architecten
Многоуровневый общественный паркинг на Кулинштрассе. © BHSF Architekten/Claus en Kaan Architecten
Многоуровневый общественный паркинг на Кулинштрассе. © BHSF Architekten/Claus en Kaan Architecten
Многоуровневый общественный паркинг на Кулинштрассе. © BHSF Architekten/Claus en Kaan Architecten
Многоуровневый общественный паркинг на Кулинштрассе. © BHSF Architekten/Claus en Kaan Architecten
Многоуровневый общественный паркинг на Кулинштрассе. © BHSF Architekten/Claus en Kaan Architecten
Многоуровневый общественный паркинг на Кулинштрассе. © BHSF Architekten/Claus en Kaan Architecten
Многоуровневый общественный паркинг на Кулинштрассе. © BHSF Architekten/Claus en Kaan Architecten
Многоуровневый общественный паркинг на Кулинштрассе. © BHSF Architekten/Claus en Kaan Architecten
Многоуровневый общественный паркинг на Кулинштрассе. © BHSF Architekten/Claus en Kaan Architecten
Многоуровневый общественный паркинг на Кулинштрассе. © BHSF Architekten/Claus en Kaan Architecten
Многоуровневый общественный паркинг на Кулинштрассе. © BHSF Architekten/Claus en Kaan Architecten
Многоуровневый общественный паркинг на Кулинштрассе. © BHSF Architekten/Claus en Kaan Architecten
Многоуровневый общественный паркинг на Кулинштрассе. © BHSF Architekten/Claus en Kaan Architecten
Многоуровневый общественный паркинг на Кулинштрассе. © BHSF Architekten/Claus en Kaan Architecten
Многоуровневый общественный паркинг на Кулинштрассе. © BHSF Architekten/Claus en Kaan Architecten
Многоуровневый общественный паркинг на Кулинштрассе. © BHSF Architekten/Claus en Kaan Architecten
Многоуровневый общественный паркинг на Кулинштрассе. © BHSF Architekten/Claus en Kaan Architecten
Многоуровневый общественный паркинг на Кулинштрассе. © BHSF Architekten/Claus en Kaan Architecten