Размещено на портале Архи.ру (www.archi.ru)

14.03.2011

Связанные одной кладкой

Анна Мартовицкая
Объект:
«Красный Октябрь». Концепция строительства двух жилых зданий на Болотной набережной
Адрес:
Россия, Москва. Болотная набережная, вл.16, 17
Архитектор:
Сергей Скуратов
Мастерская:
Сергей Скуратов ARCHITECTS
Авторский коллектив:
Руководитель авторского коллектива: С.Скуратов. Главный архитектор проекта: В.Обвинцев. Архитекторы: А.Барклянский, Н.Асадов, К.Харитонова, Е.Шалимова

Закрытый архитектурный конкурс на проект жилого комплекса на Болотной набережной в начале этого года объявила компания «ГУТА-Девелопмент». Одним из его участников стала мастерская «Сергей Скуратов Architects».

«Красный Октябрь». Концепция строительства двух жилых зданий на Болотной набережной. Ситуационный план © Сергей Скуратов ARCHITECTS
«Красный Октябрь». Концепция строительства двух жилых зданий на Болотной набережной. Ситуационный план © Сергей Скуратов ARCHITECTS
Предметом конкурсного проектирования стали участки 16 E и 17 F, расположенные на месте бывшего холодильного цеха «Красного октября». Это последнее перед Патриаршим мостом здание, ориентированное вдоль набережной. По замыслу девелоперов, на его месте должны появиться жилые дома, объединенные внутренним двором и общей инфраструктурой. При этом градостроительная концепция развития всей территории фабрики (разработана в начале 2000-х годов «Моспроектом-2») предусматривает превращение Болотной набережной в полностью пешеходную зону: для подъезда к будущему жилому комплексу параллельно ей пробивается новый проезд. Жесткие ограничения проектируемые здания также имеют по высоте, форме кровель и материалу.

«Ситуацию, в которой оказались участники конкурса, простой не назовешь, – говорит архитектор Сергей Скуратов. – Работу над проектом затрудняли не столько имеющиеся ограничения, которые как раз естественны и ожидаемы в историческом центре, сколько абсолютная неясность с тем, что будет построено на соседних участках. Как известно, многие из них уже закреплены за известными иностранными и российскими архитекторами, однако ни одного утвержденного проекта пока не существует, поэтому фактически мы работали «вслепую». Лично для меня в этой ситуации самым естественным стало решение отталкиваться от стилистики и образа самой фабрики».

В плане жилой комплекс имеет форму трапеции, узкий «створ» которой обращен к Патриаршему мосту. Перед ним Болотная набережная из проезжей части превращается в пешеходную, поэтому заезд в новый комплекс Сергей Скуратов предложил организовать именно с этой стороны. В подземную парковку ведет двухпутная рампа, а сам въезд оформлен ярко-алым порталом. «Попа макаки», – в шутку называет его архитектор, но тут же спохватывается и дает менее метафоричное, но куда более корректное определение: «красный въезд в чрево «Красного октября». И поясняет: под воздействием мощного автомобильного потока узкий фасад не может не деформироваться – в архитектуре здания это отражено в виде символической вмятины во всю высоту дома.

На -1 этаже Сергей Скуратов проектирует кладовые для всех квартир, а также подземную улицу с двусторонним движением, предназначенную для загрузки комплекса. На -2 и -3 этажах расположены парковки, которые в перспективе предполагается объединить с подземными паркингами соседних жилых комплексов. Под землю архитектор также предложил спрятать трансформаторную подстанцию и мусорокамеру, поскольку размеры участка не позволяют разместить их рядом с проектируемыми зданиями.

Как уже говорилось, жилой комплекс состоит из двух корпусов, разделенных сквером. Тот, что расположен ближе к Патриаршему мосту, то есть в узкой части трапеции, вытянулся вдоль набережной на 60 с лишним метров, второй фиксирует собой угол Болотной и Берсеневского переулка и в плане имеет почти квадратную форму. Помимо общей подземной части, корпуса соединены пешеходной галереей – со стороны Проектируемого проезда, к которому обращены входные группы обоих зданий, она подчеркнута узкой горизонтальной прорезью в глухом кирпичном заборе.

Кирпич, любимый материал архитектора Скуратова, – еще одно связующее звено для двух этих зданий. И, конечно, для их облицовки автор выбрал кирпич темно-красного цвета, который исконно воспринимается синонимом «Красного октября». Лишь для двух боковых фасадов, обращенных во внутренний двор, сделано исключение: торец длинного корпуса облицован зеркальным стеклом, а его визави – стеклом обычным, но за прозрачной ширмой спрятано дерево янтарного оттенка. Использование зеркала не только визуально раздвигает границы сквера, но и позволяет обеспечить его дополнительным солнечным светом, так как отражающая поверхность обращена на юг.

Одним из пунктов технического задания была разная форма кровель жилых корпусов. Длинный надлежало накрыть кровлей скатной, а квадратный – плоской, однако Скуратов не был бы собой, если бы не использовал это требование для создания сложной и насыщенной пластики, придающей архитектуре комплекса яркий и узнаваемый характер. «Съехавшая» в сторону Проектируемого проезда скатная кровля длинного корпуса роднит это здание со знаменитым жилым домом в Тессинском переулке. Но если там архитектор на этом и останавливался, то здесь сдвиг крыши одного корпуса влечет за собой кардинальное переосмысление формы крыши второго. Прежде всего, он сохраняет заданный длинным домом уклон кровли, но поскольку второй корпус имеет более жесткие ограничения по высоте, она подрезается под совсем другим углом: скат идет вниз, но неожиданно заворачивает и движение вниз продолжает уже обратным ходом. На архитектуре этот динамичный «загиб» сказался самым непосредственным образом: к пересечению набережной и Берсеневского переулка комплекс обращен скругленным наклонным фасадом – эдакий нос корабля, роль палуб которого играют возникшие за счет наклона стены дополнительные балконы.

С одной стороны, таким образом соблюдены формальные требования: с Якиманской набережной «короткий» корпус кажется накрытым плоской кровлей, а с другой, Скуратов не просто визуально объединяет два здания, но трактует их как части целого, искусственно разъединенные. «Рваная» кладка торцов недвусмысленно намекает на имевший место разрыв, а взаимное притяжение «половин» подчеркивает сложный ритм пилонов, которые разбегаются от центра композиции и выстраиваются подчеркнуто регулярно по мере приближения к боковым фасадам. При этом низкий первый этаж, где размещены входные вестибюли, кафе и детский сад, решен как практически крепостная стена с редкими окнами, а пять жилых этажей имеют нарочито укрупненный масштаб. Сергей Скуратов объясняет: дробить плоскость фасада горизонтальными членениями он не стал для того, чтобы комплекс соответствовал масштабу исконной застройки «Красного октября».

«Сегодня фабрика выглядит как квартал, застроенный крупными жилыми объемами. Это и натолкнуло меня на мысль о том, что современные дома, которые будут построены на месте выведенного производства, наоборот, должны внешне напоминать промышленные объекты, обладать ярко выраженной эстетикой лофтов», – говорит архитектор. Архитектура жилого комплекса действительно лишена мелких деталей и декоративных элементов – его образ создан пластикой и фактурой самих объемов, а также виртуозной работой с материалом, в которой Сергею Скуратову нет равных.
«Красный Октябрь». Концепция строительства двух жилых зданий на Болотной набережной. Перспективный вид с Якиманской набережной © Сергей Скуратов ARCHITECTS
«Красный Октябрь». Концепция строительства двух жилых зданий на Болотной набережной. Перспективный вид с Якиманской набережной © Сергей Скуратов ARCHITECTS
«Красный Октябрь». Концепция строительства двух жилых зданий на Болотной набережной. Перспективный вид с Якиманской набережной © Сергей Скуратов ARCHITECTS
«Красный Октябрь». Концепция строительства двух жилых зданий на Болотной набережной. Перспективный вид с Якиманской набережной © Сергей Скуратов ARCHITECTS
«Красный Октябрь». Концепция строительства двух жилых зданий на Болотной набережной © Сергей Скуратов ARCHITECTS
«Красный Октябрь». Концепция строительства двух жилых зданий на Болотной набережной © Сергей Скуратов ARCHITECTS
«Красный Октябрь». Концепция строительства двух жилых зданий на Болотной набережной © Сергей Скуратов ARCHITECTS
«Красный Октябрь». Концепция строительства двух жилых зданий на Болотной набережной © Сергей Скуратов ARCHITECTS
«Красный Октябрь». Концепция строительства двух жилых зданий на Болотной набережной © Сергей Скуратов ARCHITECTS
«Красный Октябрь». Концепция строительства двух жилых зданий на Болотной набережной © Сергей Скуратов ARCHITECTS
«Красный Октябрь». Концепция строительства двух жилых зданий на Болотной набережной © Сергей Скуратов ARCHITECTS
«Красный Октябрь». Концепция строительства двух жилых зданий на Болотной набережной © Сергей Скуратов ARCHITECTS
«Красный Октябрь». Концепция строительства двух жилых зданий на Болотной набережной © Сергей Скуратов ARCHITECTS
«Красный Октябрь». Концепция строительства двух жилых зданий на Болотной набережной © Сергей Скуратов ARCHITECTS
«Красный Октябрь». Концепция строительства двух жилых зданий на Болотной набережной © Сергей Скуратов ARCHITECTS
«Красный Октябрь». Концепция строительства двух жилых зданий на Болотной набережной © Сергей Скуратов ARCHITECTS
«Красный Октябрь». Концепция строительства двух жилых зданий на Болотной набережной. Внутренний двор комплекса © Сергей Скуратов ARCHITECTS
«Красный Октябрь». Концепция строительства двух жилых зданий на Болотной набережной. Внутренний двор комплекса © Сергей Скуратов ARCHITECTS
«Красный Октябрь». Концепция строительства двух жилых зданий на Болотной набережной. Внутренний двор комплекса © Сергей Скуратов ARCHITECTS
«Красный Октябрь». Концепция строительства двух жилых зданий на Болотной набережной. Внутренний двор комплекса © Сергей Скуратов ARCHITECTS
«Красный Октябрь». Концепция строительства двух жилых зданий на Болотной набережной. Фасады по Болотной набережной © Сергей Скуратов ARCHITECTS
«Красный Октябрь». Концепция строительства двух жилых зданий на Болотной набережной. Фасады по Болотной набережной © Сергей Скуратов ARCHITECTS
«Красный Октябрь». Концепция строительства двух жилых зданий на Болотной набережной. Боковые фасады © Сергей Скуратов ARCHITECTS
«Красный Октябрь». Концепция строительства двух жилых зданий на Болотной набережной. Боковые фасады © Сергей Скуратов ARCHITECTS
«Красный Октябрь». Концепция строительства двух жилых зданий на Болотной набережной. Фасады по Проектируемому проезду © Сергей Скуратов ARCHITECTS
«Красный Октябрь». Концепция строительства двух жилых зданий на Болотной набережной. Фасады по Проектируемому проезду © Сергей Скуратов ARCHITECTS
«Красный Октябрь». Концепция строительства двух жилых зданий на Болотной набережной © Сергей Скуратов ARCHITECTS
«Красный Октябрь». Концепция строительства двух жилых зданий на Болотной набережной © Сергей Скуратов ARCHITECTS
«Красный Октябрь». Концепция строительства двух жилых зданий на Болотной набережной. План -1 этажа © Сергей Скуратов ARCHITECTS
«Красный Октябрь». Концепция строительства двух жилых зданий на Болотной набережной. План -1 этажа © Сергей Скуратов ARCHITECTS
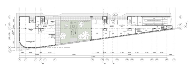
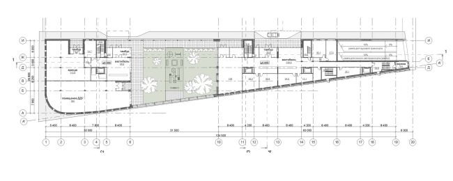
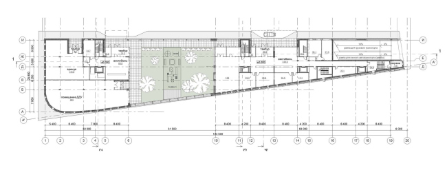
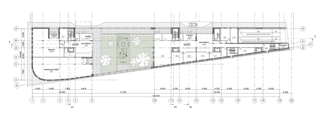
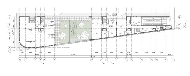
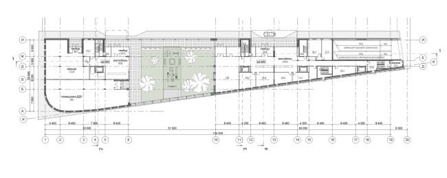
«Красный Октябрь». Концепция строительства двух жилых зданий на Болотной набережной. План 1 этажа © Сергей Скуратов ARCHITECTS
«Красный Октябрь». Концепция строительства двух жилых зданий на Болотной набережной. План 1 этажа © Сергей Скуратов ARCHITECTS
«Красный Октябрь». Концепция строительства двух жилых зданий на Болотной набережной. План кровли © Сергей Скуратов ARCHITECTS
«Красный Октябрь». Концепция строительства двух жилых зданий на Болотной набережной. План кровли © Сергей Скуратов ARCHITECTS