Размещено на портале Архи.ру (www.archi.ru)

21.03.2011

Проект с перевоплощением

Анна Мартовицкая
Объект:
Комплексы зданий для размещения представителей СМИ во время Олимпиады-2014 в Сочи
Адрес:
Россия, Краснодарский край, Сочи. Имеретинская низменность, участки №12, 14, 17
Архитектор:
Сергей Чобан
Сергей Кузнецов
Мастерская:
СПИЧ
Авторский коллектив:
Сергей Чобан, Сергей Кузнецов. Главный архитектор проекта: Алексей Ильин. Главный инженер проекта: Александр Дмитриев. Архитекторы проекта: Александра Сытникова, Софья Васильева, Юлия Гордакова, Александр Лайко, Рамиль Зиядетдинов

Архитектурная мастерская «SPEECH Чобан/Кузнецов» продолжает проектировать для сочинской Олимпиады. Среди последних работ бюро – жилые кварталы, предназначенные для размещения журналистов во время соревнований 2014 года.

Комплексы зданий для размещения представителей СМИ во время Олимпиады-2014 в Сочи
Комплексы зданий для размещения представителей СМИ во время Олимпиады-2014 в Сочи
© SPEECH
Для «SPEECH Чобан/Кузнецов» это уже далеко не первый олимпийский объект. В 2009 году мастерская участвовала в конкурсе на проектирование стадиона открытия Зимних Олимпийских Игр, а год назад разработала проект главного Медиацентра Олимпиады-2014. Обустроив рабочие места журналистов, которые приедут в Сочи для освещения главных спортивных соревнований планеты, архитекторы вполне закономерно переключились на создание комплексов, в которых пресса будет жить.

Жилье для журналистов проектируется в виде небольших кластеров, каждый из которых состоит максимум из 8 кварталов. Общая площадь застройки составляет чуть меньше 30 гектаров, однако на самом деле речь идет о трех обособленных друг от друга участках. Решение не строить одну внушительную медиа-деревню объясняется просто: вместо «города в городе» Сочи получит после Олимпиады несколько независимых жилых комплексов, заполняющих лакуны между объектами социальной и спортивной инфраструктуры и тем самым создающих полноценную и разнообразную среду обитания.

Застройка каждого из трех выделенных участков проектируется отдельно, но в основу всех предложений положены одни и те же архитектурные и планировочные принципы. «И экономические, – добавляет руководящий партнер «SPEECH Чобан/Кузнецов» Сергей Кузнецов, – поскольку требование спроектировать бюджетное и при этом качественное по своему внешнему облику и материалам жилье было одним из главных в полученном нами техническом задании».

Именно исходя из соображений экономии, ставка изначально была сделана на пятиэтажные секционные дома, а для того, чтобы добиться максимального визуального разнообразия, архитекторы разработали достаточно много проектов секций (по 4-6 квартир каждая) и затем скомпоновали их в различном порядке. В результате получились корпуса различной конфигурации – от компактных одноподъездных до протяженных и г-образных, – и уже из них сформированы кварталы. На время Олимпиады здания будут функционировать как гостиничный комплекс на 4200 номеров, соответствующий уровню «3 звезды», а после ее окончания превратятся в жилье.

Необходимость заложить в проект возможность двойного использования объектов потребовала от архитекторов дополнительных хитроумных решений. В частности, необходимо было придумать такую планировочную и конструктивную систему зданий, которая бы трансформировалась без особых материальных и временных затрат. Эта задача решается с помощью легких перегородок, которые можно быстро демонтировать. Плюс все номера спроектированы либо уже с кухнями, либо таким образом, что под кухню легко приспосабливается одно из жилых помещений. Важно и то, что входные группы домов расположены по внешнему периметру, так что внутренние дворы освобождены от движения транспорта. На время Олимпиады в них, скорее всего, будут разбиты летние кафе и зоны отдыха, а после Игр, когда гостиницы превратятся в жилые дома, во дворах будут созданы детские площадки. Похожие трансформации переживет и вся расположенная на нижних этажах домов инфраструктура.

Архитектурное решение кварталов носит подчеркнуто сдержанный характер. И это сознательный выбор авторов проекта: вокруг будущих гостиниц для журналистов возводится такое количество ярких архитектурных сооружений, что их просто необходимо чем-то уравновесить. Тут как нельзя кстати оказался богатый опыт «SPEECH Чобан/Кузнецов» по проектированию жилья – не бросающегося в глаза, но мгновенно опознаваемого как очень качественное, «европейское». Иными словами, никакой игры с формами и никакого броского декора здесь нет, зато есть деликатность и точность пропорционирования, тонкая проработка декора и использование благородных строительных материалов. Цоколь и некоторые декоративные элементы выполняются из натурального камня, фасады отделываются гладкой или рельефной штукатуркой теплых пастельных тонов. Для остекления лоджий используется эмалит, а наличники и декоративные пояса разной ширины выполняются из бетона. С помощью этой скромной, но тщательно подобранной палитры материалов и элементов архитекторы создают жилые кварталы с ненавязчивым и максимально комфортным глазу обликом.
Комплексы зданий для размещения представителей СМИ во время Олимпиады-2014 в Сочи
Комплексы зданий для размещения представителей СМИ во время Олимпиады-2014 в Сочи
© SPEECH
Комплексы зданий для размещения представителей СМИ во время Олимпиады-2014 в Сочи
Комплексы зданий для размещения представителей СМИ во время Олимпиады-2014 в Сочи
© SPEECH
Комплексы зданий для размещения представителей СМИ во время Олимпиады-2014 в Сочи
Комплексы зданий для размещения представителей СМИ во время Олимпиады-2014 в Сочи
© SPEECH
Комплексы зданий для размещения представителей СМИ во время Олимпиады-2014 в Сочи
Комплексы зданий для размещения представителей СМИ во время Олимпиады-2014 в Сочи
© SPEECH
Комплексы зданий для размещения представителей СМИ во время Олимпиады-2014 в Сочи. Генеральный план
Комплексы зданий для размещения представителей СМИ во время Олимпиады-2014 в Сочи. Генеральный план
© SPEECH
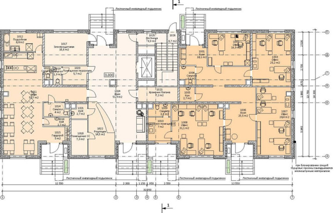
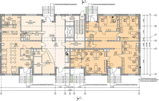
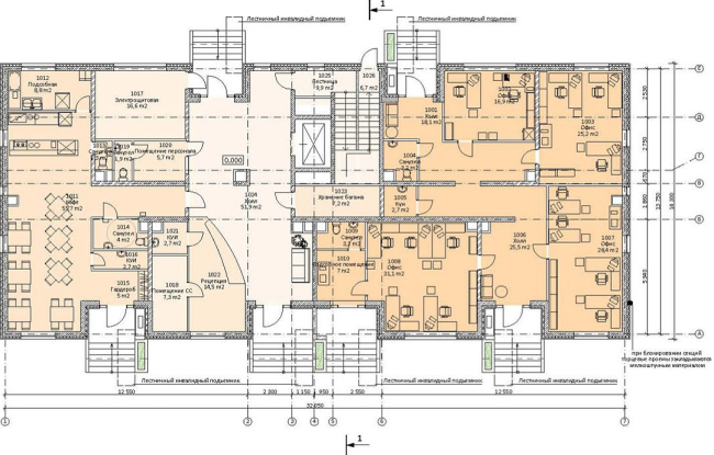
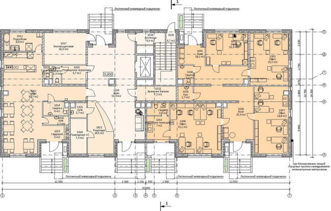
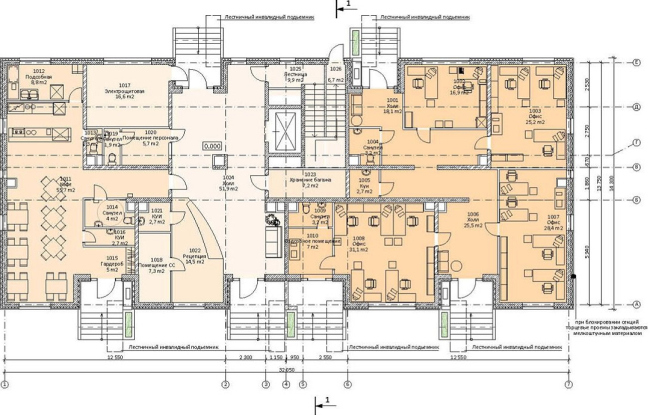
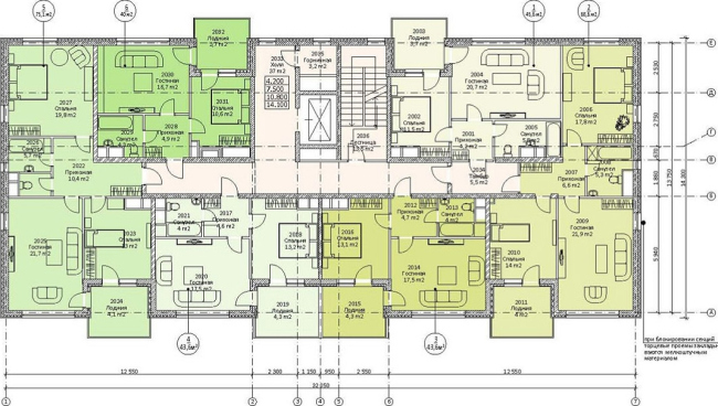
Комплексы зданий для размещения представителей СМИ во время Олимпиады-2014 в Сочи. План общественного этажа
Комплексы зданий для размещения представителей СМИ во время Олимпиады-2014 в Сочи. План общественного этажа
© SPEECH
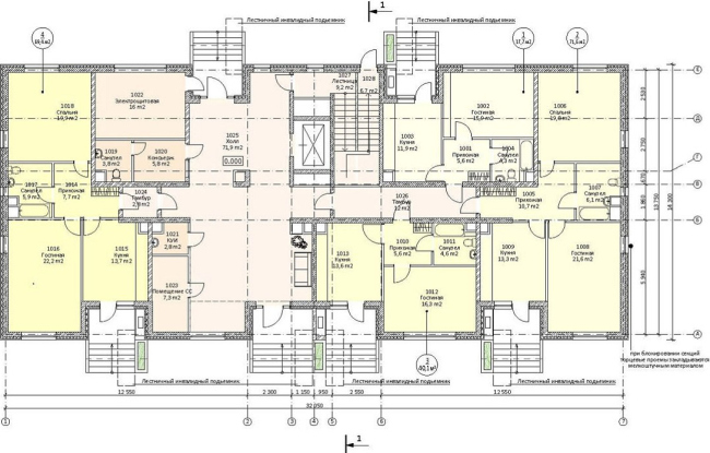
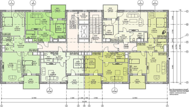
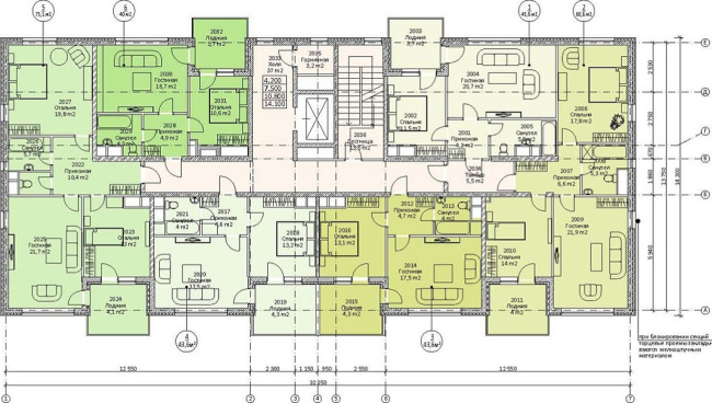
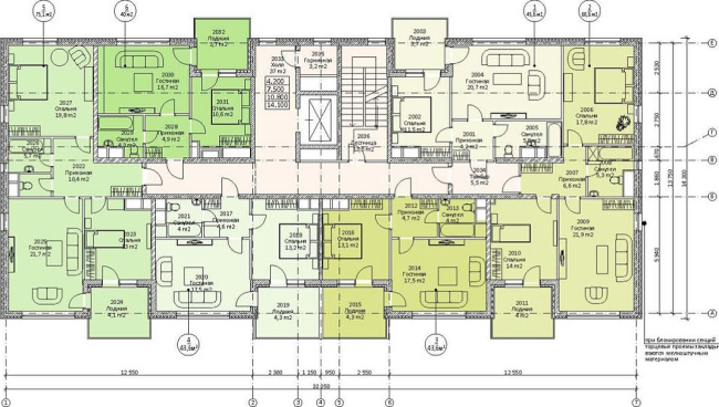
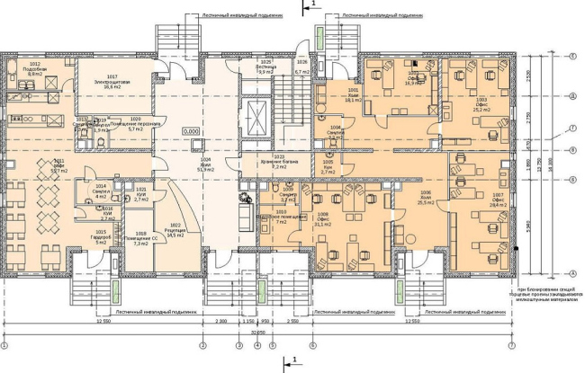
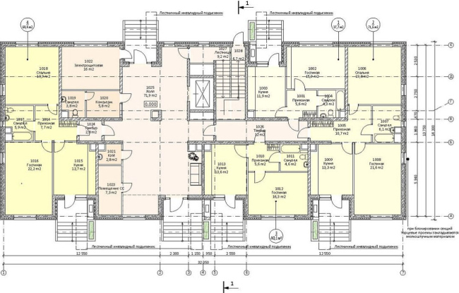
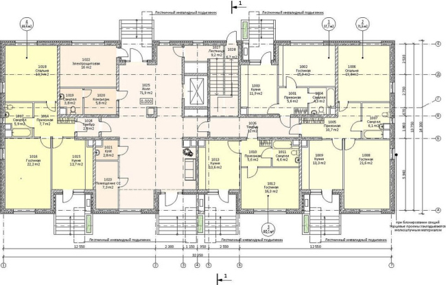
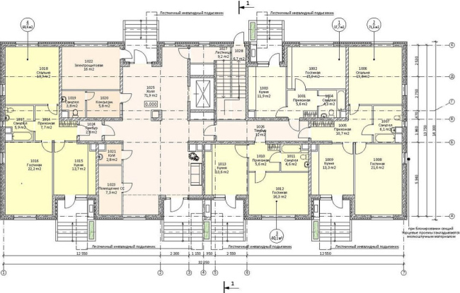
Комплексы зданий для размещения представителей СМИ во время Олимпиады-2014 в Сочи. План первого жилого этажа
Комплексы зданий для размещения представителей СМИ во время Олимпиады-2014 в Сочи. План первого жилого этажа
© SPEECH
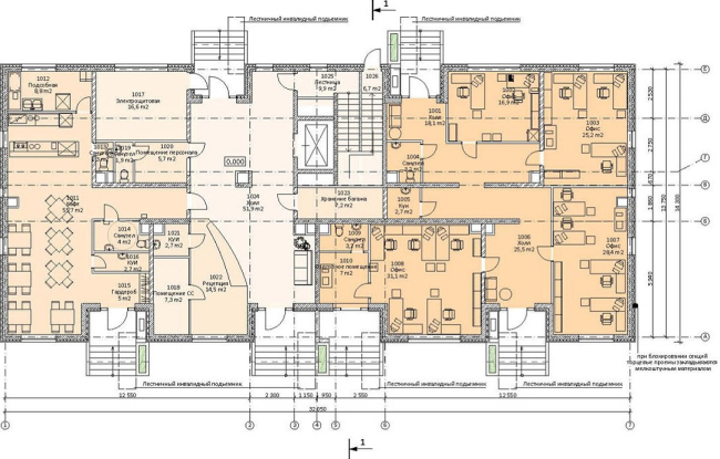
Комплексы зданий для размещения представителей СМИ во время Олимпиады-2014 в Сочи. План типового этажа
Комплексы зданий для размещения представителей СМИ во время Олимпиады-2014 в Сочи. План типового этажа
© SPEECH
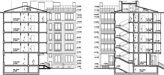
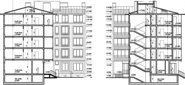
Комплексы зданий для размещения представителей СМИ во время Олимпиады-2014 в Сочи. Разрезы
Комплексы зданий для размещения представителей СМИ во время Олимпиады-2014 в Сочи. Разрезы
© SPEECH